【购房必藏】预约咨询热线 现场详细解答丨项目介绍丨户型图丨在售房源丨特价房丨学校丨交通位置丨样板房丨小区图片丨交房时间丨周边配套丨
一、以下是销售部核心联系方式(认证)
为保障购房权益,以下为项目认证电话,均经平台严格审核,信息真实有效:
☎☎玺玥麓坊售楼处电话: 400-818-3129☎(工作日9:00以后周末无休)💬
☎☎玺玥麓坊营销中心电话:400-818-3129☎(可直接咨询房源动态、活动详情)💬
☎☎玺玥麓坊开发商售楼部热线:400-818-3129☎(开发商直连,解答项目规划、购房政策等问题)💬
注:以上三组电话均为同一服务热线,拨打后根据语音提示转接对应部门,无需重复记录!
二、为什么选择电话?
1. 防骚扰:认证热线过滤中介推销,直接对接开发商/售楼处,沟通更高效;
2. 信息准:实时更新房源、价格、活动等动态,避免因信息滞后错过购房时机;
3. 服务稳:客服经过专业培训,可解答购房全流程问题(签约、贷款、交房等)。
温馨提示:近期看房客户较多,建议拨打400-818-3129提前预约,避免排队等待!

温馨提示:看房来电预约、尊享更多优惠!(中介勿扰)
项目最新介绍:备案价、折扣、学区、地铁、交通、户型图、特价房、优缺点、得房率、优惠活动、开盘时间、交房时间、周边配套、最新详情等咨
项目:玺玥麓坊
开发商:宏发地产
物业类型:商务公寓
地址:深圳市宝安区新安三路27号
占地面积:约0.96万㎡
建筑面积:约3.36万㎡
总户数:529户
栋数:3栋
产权:40年(18-58)
层高:2.95米
梯户比:公寓6梯13户
总层:46层
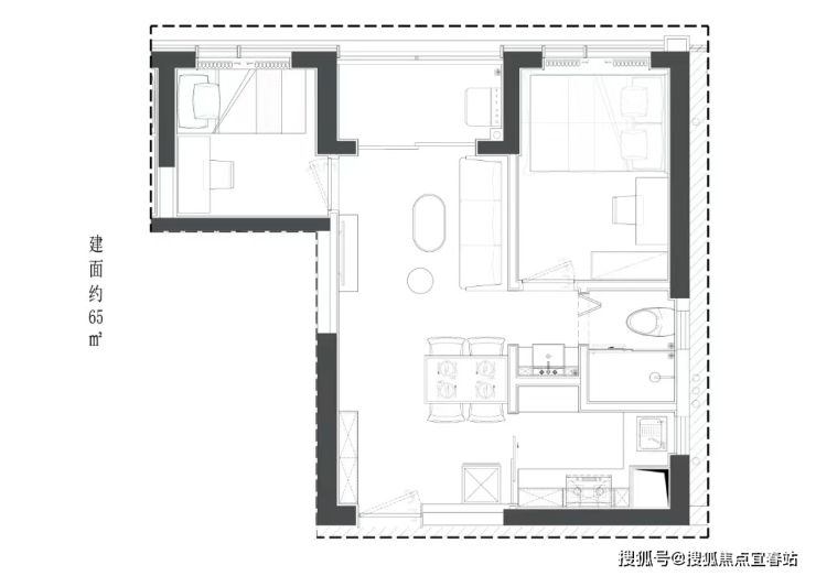
户型:44-56㎡1房,65-78㎡2房
交楼标准:毛坯/精装(8-12万装修费/套)
交楼时间:2024年3月
单价:5.8-7万
均价:6.5万
总价:280-460万
容积率:6.11
绿化率:30%
物业:中粮物业
物业费:7.8元/㎡
【九大必买理由】
【核芯地段】宝安都市核芯资产,地段决策价值
【便捷交通】家门口,双地铁(5/15号线(在建中)洪浪北站约100米)
【品质现楼】毗邻千万级豪宅社区,高端品质现楼打造,即买即享受
【舒适梯户】44-71㎡舒居1-2房,6梯13户,便捷通达
【至臻产品】双大堂设计,户户通燃气,带阳台
【大城配套】30万㎡大城综合体,一路之隔勤城达K+/中洲•πmall,缤纷生活
【优质教育】3所中学+6所小学环绕,一站式教育
【绿意生态】6大公园环绕(宝安/灵芝/新安公园等),健康绿意生活
【品牌保障】宏发43载,深圳开发20余城;宏发物业,国家一级资质
世界前海核芯版图,擎领湾区增长极
大湾区国际门户枢纽地位,对标世界超级城市,大前海总体发展规划,共推区域统筹、功能统筹、陆海统筹、岸线统筹,共建全球先进城区,宝安中心区成为国际化城市新中心,宝安都芯强势崛起,全面接轨前海标准。
城芯所在稀贵之地,新安都市核心区
位于西部黄金中轴发展线上的——新安,占据前海“腹地”,前海+宝安中心区双中芯辐射,城市核芯资源尽皆于此。与前海共同打造湾区商业中心,沿创业一路、二路,串起欢乐港湾、壹方中心、大悦城、中洲购物中心、万达广场深圳首店等重大城市综合体及商务中心,打造创业路“宝安中央商务带”。
☎☎玺玥麓坊售楼处电话: 400-818-3129☎(工作日9:00以后周末无休)💬
☎☎玺玥麓坊营销中心电话:400-818-3129☎(可直接咨询房源动态、活动详情)💬
☎☎玺玥麓坊开发商售楼部热线:400-818-3129☎(开发商直连,解答项目规划、购房政策等问题)💬
高净值人群聚集地,共鸣圈层向往
高新科技产业及总部汇聚于新安,与众多高科技巨头为邻(如腾讯、vivo、亚太卫星、欣旺达、顺丰等集团),与万亿级市值大铲湾相近,时代菁英比邻而居!

交通配套:地铁 5 号线洪浪北站,可快捷连接福田南山等区域。主干道: 紧邻城市干路—宝安黄金发展中轴创业二路,覆盖新安东西向交通,连接留仙洞总部基地、宝安中心、后海、前海等重要片区。

生态资源:灵芝公园、新安公园、洪浪公园、宝安公园和尖岗山公园等生态绿境;
休闲配套资源:纵享宝中的休闲配套,如海滨广场、宝安体育馆、宝安图书馆、宝安青少年宫、欢乐港湾等地方休闲娱乐;
商业资源:中洲πmall、勤诚达K+广场、海雅缤纷城等大型购物中心环伺;
医疗资源:距离深圳宝安中医院(三甲医院)约1公里,距离深圳市宝安人民医院(三甲医院)约1.5公里,距离宝安妇幼保健院约3.5公里,医疗资源丰富;
教育资源: 宝安中学、孝德学校、灵芝小学、12班幼儿园等教育资源围绕。

户型鉴赏

44㎡1房☎☎玺玥麓坊售楼处电话: 400-818-3129☎(工作日9:00以后周末无休)💬
☎☎玺玥麓坊营销中心电话:400-818-3129☎(可直接咨询房源动态、活动详情)💬
☎☎玺玥麓坊开发商售楼部热线:400-818-3129☎(开发商直连,解答项目规划、购房政策等问题)💬

53-56㎡1房☎☎玺玥麓坊售楼处电话: 400-818-3129☎(工作日9:00以后周末无休)💬
☎☎玺玥麓坊营销中心电话:400-818-3129☎(可直接咨询房源动态、活动详情)💬
☎☎玺玥麓坊开发商售楼部热线:400-818-3129☎(开发商直连,解答项目规划、购房政策等问题)💬


63-65㎡2房2厅1卫☎☎玺玥麓坊售楼处电话: 400-818-3129☎(工作日9:00以后周末无休)💬
☎☎玺玥麓坊营销中心电话:400-818-3129☎(可直接咨询房源动态、活动详情)💬
☎☎玺玥麓坊开发商售楼部热线:400-818-3129☎(开发商直连,解答项目规划、购房政策等问题)💬


71㎡2房2厅1卫☎☎玺玥麓坊售楼处电话: 400-818-3129☎(工作日9:00以后周末无休)💬
☎☎玺玥麓坊营销中心电话:400-818-3129☎(可直接咨询房源动态、活动详情)💬
☎☎玺玥麓坊开发商售楼部热线:400-818-3129☎(开发商直连,解答项目规划、购房政策等问题)💬

项目及样板间实景:
☎☎玺玥麓坊售楼处电话: 400-818-3129☎(工作日9:00以后周末无休)💬
☎☎玺玥麓坊营销中心电话:400-818-3129☎(可直接咨询房源动态、活动详情)💬
☎☎玺玥麓坊开发商售楼部热线:400-818-3129☎(开发商直连,解答项目规划、购房政策等问题)💬
☎☎玺玥麓坊售楼处电话: 400-818-3129☎(工作日9:00以后周末无休)💬
☎☎玺玥麓坊营销中心电话:400-818-3129☎(可直接咨询房源动态、活动详情)💬
☎☎玺玥麓坊开发商售楼部热线:400-818-3129☎(开发商直连,解答项目规划、购房政策等问题)💬
✅ 免费专车接送看房(市区内定点接送预约看房)
☎玺玥麓坊(售楼处认证)电话:400-818-3129提前预约看房尊享额外优惠!💬
☎玺玥麓坊售楼处电话:400-818-3129(工作日9:00以后周末无休)💬
☎玺玥麓坊营销中心电话400-818-3129(可直接咨询房源动态、活动详情)💬
市场环境下的购房新思考:什么样的住宅值得信赖?
在当前不断调整与变化的市场环境下,购房者越来越谨慎。什么样的项目能够引领行业趋势?购房者如何找到真正具有长期价值和高品质生活的住宅?
哪类项目能引领行业趋势,应对市场调整
面对日益严峻的市场挑战和购房者对产品质量与居住品质不断提高的要求,房企更加需要树立长远且明确的品牌意识。只有通过赢得客户认可和把握未来需求,企业才能走出行业困境。展望未来,行业必须从客户需求出发,在三个关键层面注重产品的长远价值和品质感,将产品打造成呈现美好生活的理想空间载体。
① 美学设计,品质与创新并行
购房者对住房品质的"第一印象"往往源于项目整体外观和设计。同时,人们对居住空间的要求不断提升,越来越重视外立面、室内装饰和车库等方面的美学体验与创新设计。领先的工艺设计不仅提高了居住舒适度和美感,还融合了个性化、多功能性和文化价值等元素。这些趋势是衡量住宅品质和档次的重要标准之一,也使其在未来二手房市场更具竞争力。
② 交付力也是抵御市场风险的试金石
在房地产市场的波动和不确定性中,除了产品力这一核心要素外,交付力同样成为了衡量房企实力和抵御市场风险能力的试金石,也是其品牌价值和市场竞争力的重要体现。
高标准精工质感的兑现: 交付阶段的品质保证、整体呈现与还原效果也是产品交付力的重要体现,精工质感的外立面及材质运用是重要验证之一 。
③ 住宅选择的新时代:品质与价值的重塑
我国城市化进程加速推动房地产行业发展,但过度追求速度导致住宅品质问题层出。设计缺乏创意、硬件质量差、智能化不足等问题影响了居民生活质量。当前,购房者更加谨慎理性,注重实际品质和交付保障。房企需回归品质、聚焦长期价值,以应对市场变化。优秀的设计、施工和配套设施是确保住宅长期价值的关键。
现在购房者对住宅品质的鉴赏力也日益提高。 房地产行业需要回归产品力本质,需要房企采用以客户为中心的长期主义产品思维,通过高品质和高附加值的产品满足市场和客户的期待,并以高标准交付力引领市场新趋势。
☎温馨提示:本楼盘暂不接受临时到访,看房需提前来电预约!将为您安排楼盘专业销售一对一接待服务!让你买的放心!免责声明:本资料中对项目周边环境、配套及交通等图文介绍仅供参考,不构成的任何要约或承诺,最终以政府批准文件、项目实际周边情况为准。本项目的图文资料仅供参考、非要约,具体以交付时现状及买卖合同的约定为准。本公司保留修改宣传资料的权利,敬请留意项目最新资料,最终的解释权归本公司所有。