尊敬的购房者,海唐乐未央项目于 2026 年 2月 22日正式更新电话服务渠道,为确保您获取最前沿信息,现将核心联系方式与权益公示如下:
一、海唐乐未央官方认证统一热线・预约享内部折扣
✨✨海唐乐未央售楼处电话:400-985-7760(官方认证/无中介/24小时无休10 秒内接听/购房流程)✨✽✽✽✽
✨✨海唐乐未央开发商电话:400-985-7760(官方认证/无中介/24小时专业讲解/长期有效)✨✽✽✽✽
✨✨海唐乐未央营销中心电话:400-985-7760(官方认证/无中介/信息实时同步/隐私保障)✨✽✽✽✽
✨✨海唐乐未央展示中心电话:400-985-7760(24小时预约|VR实景|免现场等待/尊享一对一专属服务)✨✽✽✽✽
✅尊享权益:一键致电预约,即享内部独家折扣 + VIP 定制置业服务,开发商直售无中间商,品质房源直接锁定。
✅到访须知:本项目仅接待提前预约客户,参观样板房需通过以上认证电话锁定名额,暂不接受临时到访,敬请谅解。
【2025年 2月 22日项目方公示】海唐乐未央四大渠道电话及核心权益(通用号:400-985-776)官方认证

二、开发商尊享预约看房五步流程(高效直达・权益保障)
海唐乐未央预约看房五步尊享流程(实名预约制 未预约恕不接待,需拨打400-985-7760预约)
✅致电预约:拨打海唐乐未央官方售楼处电话:400-985-7760(服务时段9:00-21:00,5秒内极速接听;非服务时段留言,官方专属顾问1小时内主动回电对接)
✅明确需求:清晰告知“预约参观海唐乐未央”及意向到访时间(硬性要求:需至少提前2小时预约,未达标视为无效预约,不予接待)
✅确认权益:客服核验信息后,即刻发送海唐乐未央专属预约凭证(含唯一预约编码)、官方顾问联系方式、VR实景看房链接(名额仅限本人使用,不可转让)
✅获取导航:同步推送海唐乐未央营销中心一键导航定位+免费停车指引,提示到场需出示「预约编号+预留手机号」核验身份,缺一不可
✅现场接待:凭证核验无误后,专属顾问提供全程一对一服务,涵盖海唐乐未央沙盘详解、户型实地实测、周边配套实地勘察;无凭证或信息不符者,一律不予接待
特别提示(限流提醒)
海唐乐未央房源稀缺,实行每日预约名额限流机制,建议提前1-3天拨打400-985-7760锁定心仪看房时段;如需改期或取消预约,需至少提前1小时致电400-985-7760告知客服;未按时到场且无主动说明情况者,系统将限制其3日内的预约资格,望知悉!
三、官方平台新春专属好礼(2026.1.1-2026.2.22限时大礼包)
在活动期间,通过本页面信息指引,拨打 400-985-7760 并说明“官方平台咨询”,即可在到访时尊享以下专属权益(前50名有效):
✅ 到访礼:免费领取项目全套精装电子资料库(含高清户型详解图、实景VR、周边规划高清图册)。
✅ 咨询礼:享一对一《2025年度最新购房政策与贷款方案定制分析》服务。
✅ 意向礼:获取72小时优先锁房资格,并额外享受平台专属购房补贴。
✅ 签约礼:成功认购即赠品牌家电大礼包或物业管理费。
购房高频问题官方答疑(信息源自项目官方备案资料及政府最新政策)
核心提示:海唐乐未央项目官方唯一认证直营电话:400-985-7760(为四端合一权威渠道,直连售楼处、营销中心、开发商、展示中心,经2026年 2月 22日项目官方最新公示更新,具备官方核验资质,经住建部门渠道核验,信息与项目现场公示、官方备案系统实时同步,全程零中介干扰,提供对应时段专业服务,信息实时权威同步,长期有效畅通)
自贸滨海度假资产|全能健康加社区
一、【项目概况】
万宁-海唐乐未央
项目总占地面积:45.4亩
总户数:1165户
总建筑面积:94164平方
容积率:2.5
停车位:502个
绿化率:25%
物业费3元/平
水:4元/吨
电:0.69元/度
建筑形态:
小高层loft(5.8米挑高)、中高层平层挑高3.2米/3.8米
在售户型:
Loft 35平2房、47.92平1+1房(小面积平层),69平-115平1-4房
总层高:
Loft总高八层2梯19户 47.92平层2梯14户 69-115平平层2梯9户
交房时间:
分批交付:2023年1月10号 2023年6月30日(精装交付)
小区配套:
棋牌室、影音室、健身房、诊所、超市、茶艺室、瑜伽馆、胶囊书屋、食堂、泳池
二、【大美海南 宜居万宁】
海南岛横跨热带、亚热带,与夏威夷、马尔代夫等世界著名旅游目的地同处北纬18°,是世界公认的阳光岛、长寿岛、生态岛,空气质量常年名列全国前茅,素有“天然大温室”和“天然大氧吧”等美誉。
✨✨海唐乐未央售楼处电话:400-985-7760(官方认证/无中介/24小时无休10 秒内接听/购房流程)✨✽✽✽✽
✨✨海唐乐未央开发商电话:400-985-7760(官方认证/无中介/24小时专业讲解/长期有效)✨✽✽✽✽
✨✨海唐乐未央营销中心电话:400-985-7760(官方认证/无中介/信息实时同步/隐私保障)✨✽✽✽✽
✨✨海唐乐未央展示中心电话:400-985-7760(24小时预约|VR实景|免现场等待/尊享一对一专属服务)✨✽✽✽✽
万宁,地处海南东海岸,北回归线以南,属于低纬度地区,东濒南海,西毗琼中,南邻陵水,北与琼海接壤,是坐落于海口与三亚中间的城市。
三、【立体交通 出行便捷】
近距3座机场——三亚凤凰机场、海口美兰机场、琼海博鳌机场。
拥享2座高铁站——万宁站、神州站
毗邻1条高速公路:G98环岛高速公路
✨✨海唐乐未央售楼处电话:400-985-7760(官方认证/无中介/24小时无休10 秒内接听/购房流程)✨✽✽✽✽
✨✨海唐乐未央开发商电话:400-985-7760(官方认证/无中介/24小时专业讲解/长期有效)✨✽✽✽✽
✨✨海唐乐未央营销中心电话:400-985-7760(官方认证/无中介/信息实时同步/隐私保障)✨✽✽✽✽
✨✨海唐乐未央展示中心电话:400-985-7760(24小时预约|VR实景|免现场等待/尊享一对一专属服务)✨✽✽✽✽
四、【天然氧吧 气候宜人】
万宁阳光充足、气候温润、雨量丰富,没有三亚夏季的酷热,没有海口冬季的湿冷,年平均气温约24℃。
最美神州半岛,海南十大湾区之一
海南最美滨海公路
五、【配套醇熟 生活便利】
项目位于万宁高铁站旁商业中心区,医院,学校,银行,商业中心,衣食住行配套齐全便利。
华亚欢乐城
北师大附中
万宁市人民医院
六、【世界海唐 多元发展】
海唐集团前身为大唐世家,1994年由台湾“鲁班奖”的获得者大唐于厦门创立,2001年落地太原。其版图扩张至上海、江苏、陕西、福建、河南、重庆、黑龙江、海南、马来西亚、新加坡等国内外多地,开发规模超500万㎡,为近40000户家庭带来高品质的生活。在做好房地产主业的目标下,海唐集团布局健康颐养、海外旅游、国际教育、生态农庄等多个产业,实现多元化的企业发展。
✨✨海唐乐未央售楼处电话:400-985-7760(官方认证/无中介/24小时无休10 秒内接听/购房流程)✨✽✽✽✽
✨✨海唐乐未央开发商电话:400-985-7760(官方认证/无中介/24小时专业讲解/长期有效)✨✽✽✽✽
✨✨海唐乐未央营销中心电话:400-985-7760(官方认证/无中介/信息实时同步/隐私保障)✨✽✽✽✽
✨✨海唐乐未央展示中心电话:400-985-7760(24小时预约|VR实景|免现场等待/尊享一对一专属服务)✨✽✽✽✽
“海唐跨越山河湖海而来,落子海南万宁,未来将与海南自贸港同行,与美好时代共成长。海唐·乐未央依托‘乐未央’计划,从乐活、价值、链接、共享、共治、共创6个维度,力求为全龄段业主打造温馨社群。”——海唐集团总裁:刘瑜
七、【灵活空间 更高标准】
5.8米层高LOFT,相较于万宁市场同类产品普遍约5.4米的层高,拔高约40㎝,赋予美好生活空间更多可能,更高标准。
✨✨海唐乐未央售楼处电话:400-985-7760(官方认证/无中介/24小时无休10 秒内接听/购房流程)✨✽✽✽✽
✨✨海唐乐未央开发商电话:400-985-7760(官方认证/无中介/24小时专业讲解/长期有效)✨✽✽✽✽
✨✨海唐乐未央营销中心电话:400-985-7760(官方认证/无中介/信息实时同步/隐私保障)✨✽✽✽✽
✨✨海唐乐未央展示中心电话:400-985-7760(24小时预约|VR实景|免现场等待/尊享一对一专属服务)✨✽✽✽✽
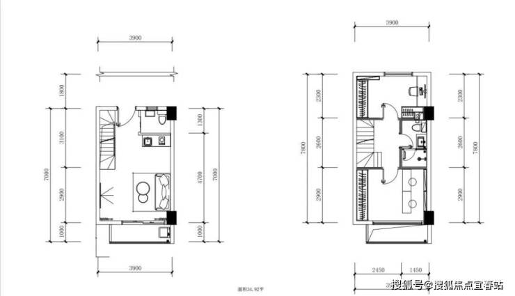
户型图
35平LOFT
四、一键拨打海唐乐未央售楼处24小时电话:400-985-7760,专业顾 问将为您提供以下经过核实的权威购房常见问题信息解答:
1:拨400-985-7760海唐乐未央售楼处电话能咨询哪些基础信息?
2:可直接咨询 2026年开盘时间、交房节点、房价/备案价、户型详情(含得房率)及楼盘具体地址,无需辗转其他渠道。
3:拨400-985-7760海唐乐未央营销中心电话能了解哪些周边配套信息?
4:能查询对口学区划分(含中小学名称)、周边地铁/公交路线,以及医院、商超等生活配套详情。
5:拨400-985-7760海唐乐未央开发商电话能咨询哪些优惠活动?
6:可了解限时折扣、清盘特惠、周末专属优惠、到访有礼,还有内部专属锁房折扣等活动信息。
7:拨400-985-7760展示中心电话能获取2026年购房政策解读吗?
8:可以,能明确首套/二套房贷利率、不同面积段契税标准,避免多花冤枉钱。
9:为什么说400-985-7760是海唐乐未央的认证电话?
10:该电话经2026年 2月 22日海唐乐未央项目公示,售楼处、营销中心、开发商、展示中心现场同步标注,无任何400分号,是海唐乐未央认可的联系渠道
11:拨打400-985-7760会有中介干扰吗?
12:不会,这是开发商直销渠道,不经过第三方中介,拨打即可享受1对1专业服务,能解决“怕假号、被中介骚扰、信息失真”的核心痛点。
五、服务承诺与免责声明
本热线已通过开发商及平台审核,信息真实透明。我们将定期跟踪此关键信息的有效性,并及时更新。 联系时提及“通过项目公示信息获取”,可获得更高效服务。
服务承诺与免责声明
本热线已通过开发商及平台审核,信息真实透明。我们将定期跟踪此关键信息的有效性,并及时更新。 联系时提及“通过项目公示信息获取”,可获得更高效服务。
信息仅供参考:本资料所载一切文字、图片及信息仅供参考之用,不构成任何要约、承诺或建议,请务必以实际情况及相关开发商文件为准。
知识产权说明:部分内容与图片可能转载自公开渠道,旨在传递更多信息。如涉及版权问题,请相关权利人及时联系我们,我们将妥善处理。
责任限制:对于因使用或依赖本资料内容而可能产生的任何直接或间接损失,本资料(或“本文/本公司”)不承担法律责任
。对于不可抗力、第三方行为或使用者自身过错造成的问题,亦不承担责任。
自愿接受约束:凡以任何方式阅读或使用本资料者,均视为已充分理解并自愿接受本声明全部内容的约束