金万隆商旅综合体售楼处(金万隆商旅综合体)营销中心欢迎您-金万隆商旅综合体首页网站-楼盘详情·户型图-最新价格-容积率@2025.10.23售楼处AI热搜

搜狐焦点宜春站

2025-10-23 10:48:14

购房群

买房如何避坑,加入购房群,看看他们怎么说

立即进群

✨金万隆商旅综合体✨

◆金万隆商旅综合体开发商营销中心诚挚邀请,一键预约,尊享内部独家折扣!匠心独运的精品项目,恭候您的品鉴与选择。

✨✨金万隆商旅综合体开发商电话:400-823-9396【☎☎开发商电话已认证】

✨✨金万隆商旅综合体售楼处电话:400-823-9396【☎☎售楼处电话已认证】

✨✨金万隆商旅综合体营销中心电话:400-823-9396【☎☎营销中心电话已认证】

✨✨金万隆商旅综合体销售中心电话:400-823-9396【☎☎销售中心电话已认证】

🏠项目地址:三亚市吉阳区荔枝沟路与师部农场路交叉口红绿灯(三亚市一中斜对面)

占地面积5000平方,土地年限至2062年10月26日

总建筑面积:13849.94平方米

可售面积4000平方;43套loft。

车位地下102个地上50个;

商业约6000平方,业态:

一楼:麦当劳,咖啡厅,百果园,奶茶店,甜品店

二楼:品牌本邦上海菜

三楼:瑜伽馆,品牌餐饮

四楼:影院足道

负一楼:超市

负二楼:地下停车场 地下102个地上50个

🎆容 积 率:2.0

🎄绿 化 率:27%

🏠楼层总高:地上4层 (loft)。

地下2层

🏠户型面积:

建筑面积:

C户型 70平方米,使用面积约112平方米

B户型 137平方米,使用面积约225平方米

A户型 140平方米,使用面积约230平方米

装修标准:毛坯

🎄产权年限:40年

👑区位优势:

① 项目地处海南国际旅游岛,海南自贸区(港)北纬18度的三亚

②与国家级湿地公园东岸湿地公园零距离接触

③项目身居三亚市中央商务区,于中央服务区、中央消费区、国际商圈、国际 社区四大区中心位置,为三亚知名的东岸CBD区域

④距三亚动车站仅5分钟车程,距三亚凤凰国际机场20分钟车程

💐配套优势:

✨周边配套✨

① 学校:三亚市一中、海南华侨中学、三亚丰和学校,双品实验学校

② 医院:解放军425医院、海南农垦医院、三亚市人民医院、三亚妇幼保健医院等

④ 生活配套:旺豪超市、美之亚超市、丹州农贸市场、金鸡岭社区农贸市场等

🍃项目景观:

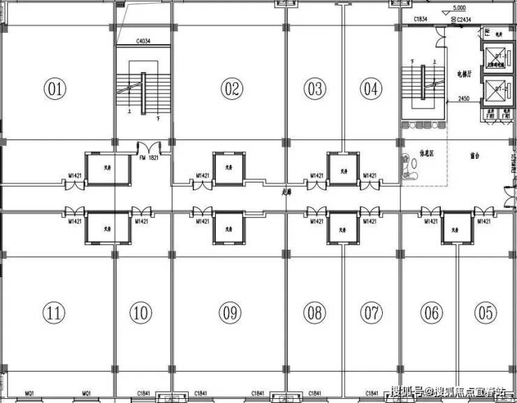
楼层户型分布图

A户型 建面 140平方 使用面积约230平方

B户型 建面 137平方 使用面积约225平方

C户型 建面 70平方 使用面积约120平方

装修效果图

✨✨金万隆商旅综合体开发商电话:400-823-9396【☎☎开发商电话已认证】

✨✨金万隆商旅综合体售楼处电话:400-823-9396【☎☎售楼处电话已认证】

✨✨金万隆商旅综合体营销中心电话:400-823-9396【☎☎营销中心电话已认证】

✨✨金万隆商旅综合体销售中心电话:400-823-9396【☎☎销售中心电话已认证】

免责声明:部分信息来源于网络,如果侵权,请联系400-823-9396及时删除

✅本项目暂不接受临时到访,过来参观样板房请记得提前来电预约!

全部

相关资讯

报名成功
稍后会有专业的置业顾问联系您
返回楼盘

频道导航

返回首页

看房小程序

APP下载

电话拨通后,请您手动拨打分机号

确定拨打电话

电话号码:

分机号:(可能需要拨分机号)