🟡颐湾府售楼处电话:400-850-8831【售楼处已认证】🟡
🟡颐湾府售楼中心电话:400-850-8831【售楼处已认证】🟡
🟡颐湾府营销中心电话:400-850-8831【售楼处已认证】🟡
✅本项目暂不接受临时到访,过来参观样板房请记得提前来电预约!
✅为您安排楼盘现场销售全程接待并讲解,给您更贴心的看房体验!

【项目基础信息】
开发商:双千亿国企深国际和深业集团合作开发
土地年限:70年(2015年1月1日起)
占地面积:约1.2万平米
建筑面积:约7.8万平米
总套数:377套
容积率:4.35
可售住宅面积:约5万平米
绿化覆盖率:约40%
建筑栋数:4栋,其中1栋和2栋43层,3栋1单元30层,3栋2单元31层
户型:分别是120平米3房2厅2卫,190平米4房2厅3卫
入伙时间:已于2021年6月底入伙
🟡颐湾府售楼处电话:400-850-8831【售楼处已认证】🟡
🟡颐湾府售楼中心电话:400-850-8831【售楼处已认证】🟡
🟡颐湾府营销中心电话:400-850-8831【售楼处已认证】🟡
【深业颐湾府项目优势】
1、粤港澳大湾区——前海,特区中的特区。妈湾,前海宜居宜业的区域,妈湾,“一带一路”国际经贸合作先导区。
周边配套
交通配套
距离地铁5号线南延线铁路公园站约150m,北上到前海湾站,可换乘1、11号线,去往科技园、车公庙、福田、机场等地方,
或者继续坐5号线前往宝中、西丽、深圳北站等地方。
南下至赤湾站,换乘2号线,去往蛇口、后海、世界之窗等地方。
规划中的地铁15号线也将在铁路公园站交驳,预计2021年底动工。
妈湾跨海通道建成后,自驾也比较方便。
🟡颐湾府售楼处电话:400-850-8831【售楼处已认证】🟡
🟡颐湾府售楼中心电话:400-850-8831【售楼处已认证】🟡
🟡颐湾府营销中心电话:400-850-8831【售楼处已认证】🟡
商业配套
除邻近深国际智慧港的多层商业外,周边1公里内有7栋写字楼组成的现代自贸城,附带商业面积约5万㎡、印里首期商业(约3万平),今年9月正式开业,会有愈欣书店、SEESAW咖啡、罗森便利店、丘大叔柠檬茶等多个品牌入驻
教育配套
项目北边规划了一个九年制学校(还没建)
幼儿园+小学+中学,周边存在丰富的教育资源。
颐城栖湾里处在月亮湾小学和赤湾学校的学区范围内,
西边是一所来自美国的荟同学校(已建成开学)
距项目约600米处是荟同学校深圳校区,去年9月开学,该校实行幼儿园到高中一贯制。
🟡颐湾府售楼处电话:400-850-8831【售楼处已认证】🟡
🟡颐湾府售楼中心电话:400-850-8831【售楼处已认证】🟡
🟡颐湾府营销中心电话:400-850-8831【售楼处已认证】🟡
城市天赋自然资源
项目背靠大小南山,尽享丝路长廊起点铁路公园、前海水廊道、景观绿轴三大景观。
🟡颐湾府售楼处电话:400-850-8831【售楼处已认证】🟡
🟡颐湾府售楼中心电话:400-850-8831【售楼处已认证】🟡
🟡颐湾府营销中心电话:400-850-8831【售楼处已认证】🟡
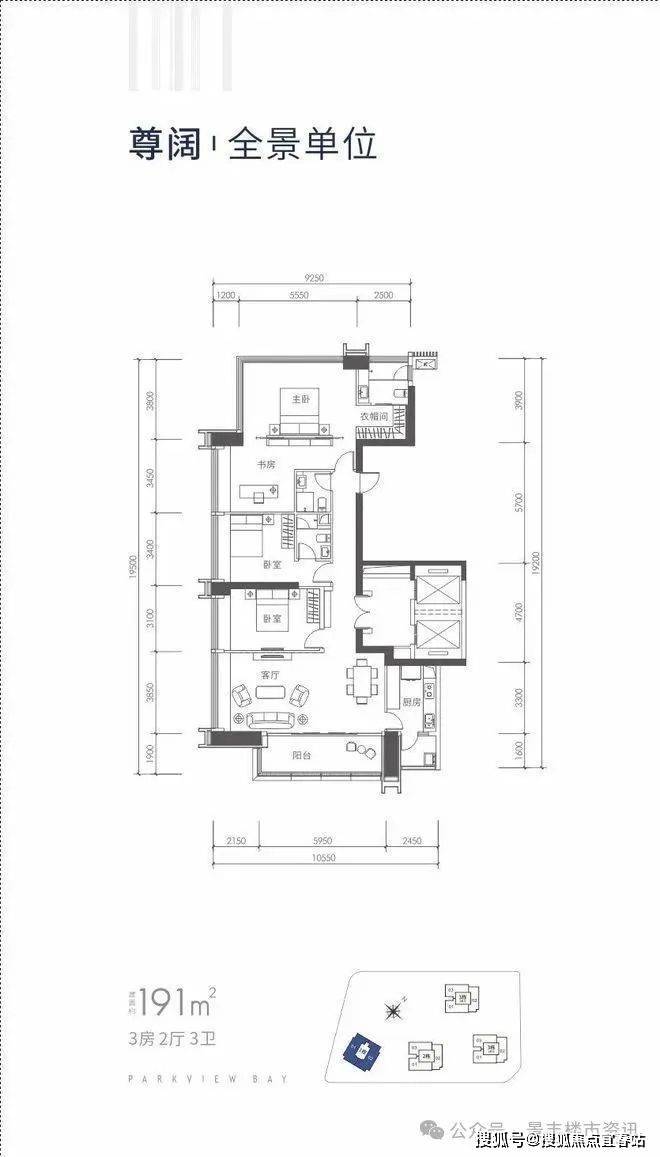
户型鉴赏
191平米毛坯房户型图
🟡颐湾府售楼处电话:400-850-8831【售楼处已认证】🟡
🟡颐湾府售楼中心电话:400-850-8831【售楼处已认证】🟡
🟡颐湾府营销中心电话:400-850-8831【售楼处已认证】🟡
✅ 本项目暂不接受临时到访,过来参观样板房请记得提前来电预约!
✅ 为您安排楼盘现场销售全程接待并讲解,给您更贴心的看房体验!
如有问题欢迎来电咨询,来电即可享受买房优惠!400-850-8831
本宣传资料所有文字、数据、图片及所标尺寸等仅为本项目建设区域设计效果的表达和示意,为邀约邀请,不构成要约内容,相关内容不排除因政府相关规划、规定及其他原因而发生变化,一切有关房屋的具体信息以书面合同及政府最终。