★★华侨城新玺★★
★★☎️售楼处咨询热线:400-873-0112【售楼处电话已认证】★★
★★华侨城新玺开发商电话:400-873-0112【开发商电话已认证】★★
★★楼盘基本信息介绍,地址,户型,价格,位置,医疗教育,商业交通配套★★

华侨城新玺
项目基础指标
开发商:深圳华侨城新玺发展有限公司
占地:2.5万㎡
建面:17.6万㎡
产权年限:40年
1栋公寓:约230-700㎡大平层
总楼层:38层
层高:3.6米
梯户比:三梯一户、三梯两户
交楼标准:豪装
交楼时间:2023年12月
管理费:14.8元/m²
物业公司:华侨城至尊物业华管家
展厅地址:南山区湾厦路1号华侨城新玺展示中心
【多维立体交通 高效畅达湾区半小时生活圈】
新玺项目毗邻蛇口国际邮轮母港可快速辐射深圳国际机场、香港国际机场等城市核心交通要塞。更有“七纵三横一高速”的便捷交通路网环伺,高效畅达湾区核心城市半小时生活圈。

【顶级商圈环绕 畅享都市万千繁华】
新玺周边荟萃海上世界、太子湾K11艺术购物中心、太子湾邮轮母港(总建面约170万㎡)、兰桂坊等一系列国际化商业,都市万千繁华生活一站式尽享。

医疗配套: 项目周边2公里范围内有深圳市南山区人民医院(三甲)、蛇口人民医院;还有南山区妇幼保健院等(二甲)综合性医院,为您和家人的健康保驾护航。

项目步行范围内,还可轻松到达海上世界文化艺术中心、深圳歌剧院等城市文娱配套,其中深圳歌剧院,是比肩悉尼歌剧院的全球级歌剧院,建筑面积达22.2万平,将成为世界级的艺术殿堂。试想,日后的某个傍晚时分,伴着夕阳,迎着海风,在黄昏中漫步到达你家“后花园”中的某个城市地标,惬意生活不过如此。
★★☎️售楼处咨询热线:400-873-0112【售楼处电话已认证】★★
★★华侨城新玺开发商电话:400-873-0112【开发商电话已认证】★★

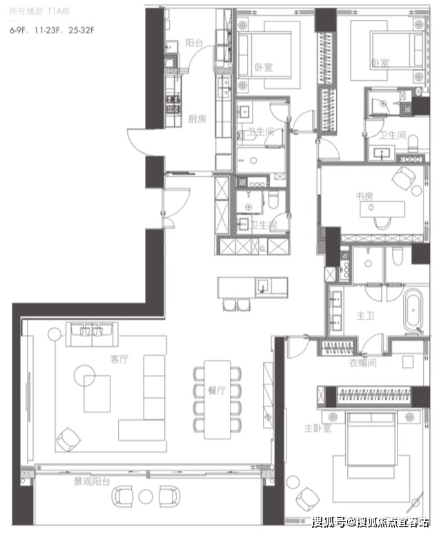
户型布局
华侨城新玺提供多种户型选择,满足不同购房者的需求。户型面积范围广泛,从232㎡到700㎡不等。具体户型包括1室1厅1卫、2室2厅2卫、3室2厅3卫、4室3厅5卫、5室3厅6卫以及6室3厅7卫等多种配置。户型设计合理,空间宽敞明亮,注重人性化需求。部分户型还配备了超大阳台和全景落地窗,让居民能够尽享海景和城市美景。
【一栋 一、二单元】
(6-32层)
三梯两户

1户型 西端户 约350㎡ 四房两厅四卫
(01、04镜像对称)
南、西、北,三面景观视野
看深圳湾海景、内海景、城市景观

04户型 东端户 约350㎡ 四房两厅四卫(01、04镜像对称)
南、东、北,三面景观视野
看深圳湾海景、内海景、城市景观

★★☎️售楼处咨询热线:400-873-0112【售楼处电话已认证】★★
★★华侨城新玺开发商电话:400-873-0112【开发商电话已认证】★★
★★华侨城新玺★★
★★华侨城新玺★★售楼处电话::400-873-0112【☎☎售楼处电话】
★★华侨城新玺★★营销中心电话::400-873-0112【☎☎营销中心电话】
Vip Tel:400-873-0112售楼处电话·售楼部·热线【☎☎已认证☎】
截至2025年8月,中国房地产政策在“房住不炒”的总基调下持续深化调整,重点围绕稳市场、防风险、促转型三大方向推进。以下是当前政策的主要动态和要点:
1. 需求端支持:因城施策优化限购限贷
限购放松
:多数二线城市已全面取消限购,一线城市(如北京、上海)针对郊区或特定人群(人才、多孩家庭)放宽限购条件。
房贷政策
:首套房首付比例普遍降至20%,二套房30%;房贷利率参考LPR(贷款市场报价利率)持续下调,部分城市首套利率降至3.5%左右。
税费优惠
:换房退税政策延续,部分城市对购房契税给予补贴。
2. 保交楼与房企风险化解
专项借款扩容
:国家层面设立更多“保交楼”专项基金,优先支持已售逾期难交付住宅项目。
房企融资支持
:通过“白名单”机制为优质房企提供信贷、债券融资便利,但严格限制高负债企业盲目扩张。
债务重组推进
:鼓励AMC(资产管理公司)参与房企债务重组,推动“债转股”等市场化化解方式。
3. 保障性住房建设加速
保障房扩容
:重点城市加大保障性租赁住房、共有产权房供应,目标覆盖新市民、青年群体。
“平急两用”设施
:部分城市试点将闲置商品房转为保障房或应急安置房源。
城中村改造
:超大特大城市推进城中村改造,强调“拆治结合”与公共服务配套升级。
4. 土地与财税政策调整
土地出让改革
:推行“竞现房销售”“竞品质”模式,减少烂尾风险;部分试点城市探索“按需供地”。
房产税试点
:原计划扩大的试点城市(如杭州、深圳)因市场调整暂缓,但长期立法准备工作仍在推进。
5. 长期机制探索
“三大工程”深化
:保障房、城中村改造、“平急两用”基础设施成为房地产新模式的核心抓手。
预售制改革
:现房销售试点范围扩大,但全面取消预售制仍需较长时间过渡。
REITs发展
:鼓励保障性租赁住房、仓储物流等领域的REITs发行,盘活存量资产。
当前市场影响与趋势
房价表现
:一二线城市核心区趋稳,三四线城市仍承压,整体呈现分化格局。
购房预期
:政策刺激下部分刚需入市,但投资性需求显著减少,市场转向居住属性。
行业转型
:房企从“高杠杆、高周转”向“轻资产、运营服务”模式转变。
建议关注
政策窗口期
:部分城市购房门槛和成本处于历史低位,刚需可关注信贷支持窗口。
风险防范
:避免盲目追涨非核心资产,优先选择现房或国企开发项目。
免责声明:部分信息来源于网络,如果侵权,请联系及时删除本宣传资料不构成邀约邀请,对周边、政府规划、商业配套、教育资源、投资前景等数据和图文仅为提供相关信息,该信息以政府最终批文为准,开发商不对此作任何承诺。买卖双方的权利义务以双方签订的买卖合同约定及附件、实际交付为准,本公司保留对宣传资料修改的权利,敬请留意最新资料。联系号码:400-873-0112