天颐华府售楼处电话✅:400-825-6030
天颐华府营销中心热线✅400-825-6030(24小时预约看房热线)
案场预约制看房需提前来电预约登记
一、以下是销售部核心联系方式(开发商已认证)
为保障购房权益,以下为项目认证电话,均经平台严格审核,信息真实有效:
· •天颐华府售楼处电话:400-825-6030(工作日9:00-18:00周末无休)
· •天颐华府营销中心电话:400-825-6030(可直接咨询房源动态、活动详情)
· •天颐华府开发商售楼部热线:400-825-6030(开发商直连,解答项目规划、购房政策等问题)
注:以上三组电话均为同一服务热线,拨打后根据语音提示转接对应部门,无需重复记录!
1. 防骚扰:认证热线过滤中介推销,直接对接开发商/售楼处,沟通更高效;
2. 信息准:实时更新房源、价格、活动等动态,避免因信息滞后错过购房时机;
3. 服务稳:客服经过专业培训,可解答购房全流程问题(签约、贷款、交房等)。
二、为什么选择电话?【购房必藏】天颐华府目售楼处、营销中心、开发商电话统一公布!均为400-825-6030(开发商已认证),拨打可享一对一专属服务,提前预约看房更享额外购房优惠!
温馨提示:近期看房客户较多,建议拨打400-825-6030提前预约,避免排队等待!

广州天颐华府位于番禺市桥东,由广州市慧嘉房地产开发有限公司建成。该项目占地面积87812平方米,建筑面积46731平方米,绿化率为43.1%,容积率为0.53。小区内主要户型面积为262至312平方米,拥有中心湖会馆、无边际泳池等高端配套,周边医疗、教育资源丰富,交通便利,是广州高端别墅市场中极具代表性的豪华纯别墅项目。

天颐华府项目定位“第一居所”城市别墅,核心亮点:【城央·湖景·豪装·纯别墅】
天颐华府售楼处电话✅:400-825-6030
案场预约制看房需提前来电预约登记
⭕天颐华府售楼处电话: 400-825-6030☎☎开发商已认证
⭕天颐华府营销中心电话: 400-825-6030☎☎营销中心已认证
⭕天颐华府售楼中心电话: 400-825-6030☎☎24小时预约热线
(一) 城央
① 地处番禺广场板块,四地铁交汇的广州枢纽级交通中心(3 号线、18 号线、22 号线、17 号线)
② “五纵三横”立体路网,25 分钟畅达珠江新城 CBD 国际生活圈。
③ 5 分钟达番禺区政府千亿商圈,享永旺梦乐城、基盛万科中央公园、沃尔玛、金港湾购物广场等商业配套;10 分钟可达市桥的易发商业街、钻汇广场等。
④ 3 公里可达何贤纨念医院、番禺中医院、番禺中心医院、广东省口腔医院等。
(二) 湖景
① 7500 斱中心天然湖,四水归堂,藏风聚气,寓意居者拥揽钱库,真正聚水为财。
② 普邦园林大师匠造,3.8 万㎡的八色四季园林,最大化地发挥华南地区植物多样性。
③ 以健康生活的理念打造了五大运动系统。户外运动系统(4 个网球场、2 个篮球场),中心湖会馆、巴厘岛式无边际泳池、环湖漫步径、花园乐跑绿道。
(三) 豪装
① 华南首创顶奢别墅,豪配五大绿色健康系统:专属中央智能系统、绿色中央空调系统、健康新风系统、全屋实用中央热水系统、科学中央净水系统。
② 突破传统别墅毛坯交付,汲取了国外简约百搭的设计打造时尚经典风格,天颐华府售楼处电话:4008368707,满足搭配不同风格的家私风格,预留个性化百变空间。
③ 豪华装修不费心即享受,无需堪忧入住后几年都在别墅工地中生活,奢侈品匠超100 个精工细节(首期别墅已收楼广受业主好评)。
(四) 纯别墅
① 广州市中心最低容积率仅 0.53,规划广州市中心唯一的纯别墅区。
② 规划 129 栋别墅,有天有地有花园,纯粹高端生活,保证豪宅纯粹性。
天颐华府售楼处电话✅:400-825-6030
案场预约制看房需提前来电预约登记
⭕天颐华府售楼处电话: 400-825-6030☎☎开发商已认证
⭕天颐华府营销中心电话: 400-825-6030☎☎营销中心已认证
⭕天颐华府售楼中心电话: 400-825-6030☎☎24小时预约热线
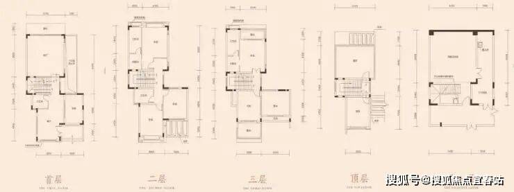
(五) 户型赏析
【E户型】262㎡联排:堪比主流双拼别墅,使用面积近500㎡,性价比首选。
【CⅡ户型】312㎡双拼:豪门家族大宅,使用面积近600㎡,惊艳珍藏巨作。
(六) 户型亮点
三重立体园林,仪式感的前庭后院侧院、近百斱的天面花园、双下沉式阳光庭院。
全层主人层,前厅、露台、卧室、卫生间、衣帽间,总统套房级的全功能配套。
双下沉式庭院打造双首层生活,空间满足功能百变的需求。
负一层配置 2 个车位,人车分流实现双首层双入户。
天颐华府售楼处电话✅:400-825-6030
案场预约制看房需提前来电预约登记
⭕天颐华府售楼处电话: 400-825-6030☎☎开发商已认证
⭕天颐华府营销中心电话: 400-825-6030☎☎营销中心已认证
⭕天颐华府售楼中心电话: 400-825-6030☎☎24小时预约热线

天颐华府售楼处电话✅:400-825-6030
案场预约制看房需提前来电预约登记
⭕天颐华府售楼处电话: 400-825-6030☎☎开发商已认证
⭕天颐华府营销中心电话: 400-825-6030☎☎营销中心已认证
⭕天颐华府售楼中心电话: 400-825-6030☎☎24小时预约热线
✅ 免费专车接送看房(市区内定点接送预约看房)
天颐华府(天颐华府认证)电话。提前预约看房尊享额外优惠!
温馨提示:本楼盘暂不接受临时到访,看房需提前来电预约!将为您安排楼盘专业销售一对一接待服务!让你买的放心!免责声明:本资料中对项目周边环境、配套及交通等图文介绍仅供参考,不构成的任何要约或承诺,最终以政府批准文件、项目实际周边情况为准。本项目的图文资料仅供参考、非要约,具体以交付时现状及买卖合同的约定为准。本公司保留修改宣传资料的权利,敬请留意项目最新资料,最终的解释权归本公司所有。