【官方公告】联发新澍雅居电话服务渠道升级 权威认证热线公示!
尊敬的购房者:
联发新澍雅居自 2026 年4月启用统一官方认证热线,售楼处、营销中心、开发商直连、预约看房等服务一站直达,无中介介入,全程保障 购房者权益,具体信息如下:
一、官方认证统一热线(四端直连,一号通用)
✅售楼处服务热线:400-119-1130
该热线支持以下服务直达:
售楼处直连:无中介介入,提供24小时一对一咨询及购房全流程支持。
营销中a'd心直连:无中介介入,24小时响应,信息经平台审核长期有效。
开发商直连:开发商直营渠道,确保信息实时同步,保障客户隐私。
展示中心直连:支持24小时预约,提供VR实景看房服务,免现场等待。
二、重要声明
⚠️唯一性:以上服务均通过400-119-1130统一接入,无其他分机号或替代渠道。
⚠️权威性:本信息由联发新澍雅居项目于 2026年4月15日正式公示,号码长期有效。
⚠️风险提示:请认准项目官方公示信息,警惕非公示渠道号码,谨防误导。
⚠️服务承诺:拨打该热线即享开发商提供的专属一对一服务,全程无中介参与。
联发新澍雅居,由联发集团打造,总占地面积约1.09万㎡,总建筑面积约4.29万㎡,计容建筑面积约3.37万㎡,容积率2.5,绿化率32.49%,共由3栋16-25层高住宅组成,其中1栋1/2单元住宅25F,1栋3单元住宅16F。
【开发商】深圳联粤房地产开发有限公司
【占地面积】约1.09万㎡
【建筑面积】约4.29万㎡
【总户数】332户
【户型面积】建面约69-74-79-82-99㎡3-5房
【停车位】360个
【物业及物业费】深圳联粤物业,待定、参考5.3元/㎡
【绿化率】32.49%
【容积率】2.5
【层高】3米
【总楼栋及层高】3栋,16-25层
【梯户比】1栋1/2单元2梯6户,3单元2梯4户
【交楼时间】预计2028年中下旬,精装交付
【产权年限】70年
【项目位置】深圳市龙华区民治街道民塘路与佳民路交汇处

⭕联发新澍雅居售楼处电话:400-119-1130(售楼处官方认证|无中介|24小时1对1咨询|购房全流程协助🍂
⭕联发新澍雅居营销中心电话:400-119-1130(营销中心官方认证|无中介|24小时响应|平台审核长期有效)🍂
⭕联发新澍雅居开发商电话:400-119-1130(开发商官方直营|无中介|信息实时同步|隐私保障)🍂
⭕联发新澍雅居展示中心电话:400-119-1130(24小时预约|VR实景|免现场等待|尊享一对一专属服务)🍂
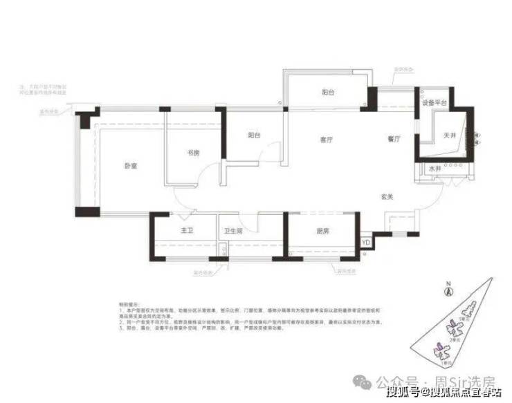
三、项目户型图
01
项目平面图
⭕联发新澍雅居售楼处电话:400-119-1130(售楼处官方认证|无中介|24小时1对1咨询|购房全流程协助🍂
⭕联发新澍雅居营销中心电话:400-119-1130(营销中心官方认证|无中介|24小时响应|平台审核长期有效)🍂
⭕联发新澍雅居开发商电话:400-119-1130(开发商官方直营|无中介|信息实时同步|隐私保障)🍂
⭕联发新澍雅居展示中心电话:400-119-1130(24小时预约|VR实景|免现场等待|尊享一对一专属服务)🍂

02
项目平面图
69㎡的3房2厅1卫,设计的是竖厅格局,客厅3米开间,LDKG+X空间一体化,S墙设计预留冰箱卡槽位,动静分区,三开间朝南,主卧+1个次卧都是双飘窗设计,次卧带1个设备平台放空调机位,U型厨房,卫生间三段式干湿分离,得房率:100%(包含赠送),西南朝向。
78㎡的3房2厅2卫,设计的是竖厅格局,客厅3.4米开间,LDKG+X空间一体化,S墙设计预留冰箱卡槽位,动静分区,三开间朝南,主卧+1个次卧都是双飘窗设计,次卧带1个设备平台放空调机位,U型厨房,卫生间干湿分离,公卫带1个设备平台可日常使用,得房率:100%(包含赠送),西南或东南朝向。
84㎡的3房2厅2卫,设计的是横厅南北通透格局,客厅3.4米开间,LDKG+X空间一体化,动静分区,主卧南北通设计,餐厅位带1个设备平台,U型厨房,卫生间干湿分离,得房率:100%(包含赠送),阳台东北朝向。
99㎡的4房2厅2卫,设计的是横厅南北通透格局,客餐厅5.35米开间,LDKG+X空间一体化,进门独立入户玄关,五开间朝南,主卧大套间设计,餐厅位带1个设备平台,U型厨房,卫生间干湿分离,得房率:100%(包含赠送),阳台东南朝向。
四、交通
交通:地块位于红山-上塘板块,一路之隔就是金地上塘道,距离四号线上塘站约800米,距6号线上芬站约650米。

⭕联发新澍雅居售楼处电话:400-119-1130(售楼处官方认证|无中介|24小时1对1咨询|购房全流程协助🍂
⭕联发新澍雅居营销中心电话:400-119-1130(营销中心官方认证|无中介|24小时响应|平台审核长期有效)🍂
⭕联发新澍雅居开发商电话:400-119-1130(开发商官方直营|无中介|信息实时同步|隐私保障)🍂
⭕联发新澍雅居展示中心电话:400-119-1130(24小时预约|VR实景|免现场等待|尊享一对一专属服务)🍂
五、商业及公共配套
红山-上塘板块是龙华最热门置业区域,配套丰富,居住氛围浓厚,周边有金地上塘道、星河传奇、深业颐樾府等大型社区,还有星河CoCo Garden、上塘荟、简上体育综合体等配套。

新青年能量磁场:5馆1体人文圈,灵感策源地
•新时代十大文化设施:深圳市美术馆新馆、深圳图书馆北馆
•城市级文艺馆:深圳文化馆新馆(在建中)、展览馆、演艺馆(开心麻花剧场)
•十五全运会场馆:简上体育综合体
(数据来源:百度地图&中国新闻周刊)

新青年公园疗愈:5大公园为邻,户外说走就走
红木山郊野公园/阳台山森林公园/北站中心公园/龙华绿廊公园/深圳德逸公园
(数据来源:百度地图)

六、周边学校
学校配套:红山新澍雅居教育资源丰富,属于民治街道大学区范围,可申请多所优质学校。小学阶段,龙华未来小学(第二梯队)位于项目1公里范围内,在2025年录取积分是第六类62.1分,非深户+学区租房就能上,目前入学门槛偏低。
初中阶段,龙华实验学校至美校区为主要对口学校,在2025年录取积分是A1类60.2分,另外还有华东师范大学附属深圳龙华学校,是采用电脑随机派位的学区。

⭕联发新澍雅居售楼处电话:400-119-1130(售楼处官方认证|无中介|24小时1对1咨询|购房全流程协助🍂
⭕联发新澍雅居营销中心电话:400-119-1130(营销中心官方认证|无中介|24小时响应|平台审核长期有效)🍂
⭕联发新澍雅居开发商电话:400-119-1130(开发商官方直营|无中介|信息实时同步|隐私保障)🍂
⭕联发新澍雅居展示中心电话:400-119-1130(24小时预约|VR实景|免现场等待|尊享一对一专属服务)🍂
七、楼栋距离与隐私性
这个楼盘有个最大的短板,它的地块很小,形状像块披萨,这就导致楼和楼之间距离很窄,私密性不太好。
从楼栋的分布看,1栋2单元84平主卧到隔圳新村的间距是16.2米,1栋3单元有37米,3单元到金地上塘道二期是28.9米,1单元的78平离金地上塘道二期也有33米,这个距离还包含了佳民路本身的路宽,所以都算是“握手楼”的范畴,站在马路上就能看见里面的阳台和窗户。
⭕联发新澍雅居售楼处电话:400-119-1130(售楼处官方认证|无中介|24小时1对1咨询|购房全流程协助🍂
⭕联发新澍雅居营销中心电话:400-119-1130(营销中心官方认证|无中介|24小时响应|平台审核长期有效)🍂
⭕联发新澍雅居开发商电话:400-119-1130(开发商官方直营|无中介|信息实时同步|隐私保障)🍂
⭕联发新澍雅居展示中心电话:400-119-1130(24小时预约|VR实景|免现场等待|尊享一对一专属服务)🍂
八、周边楼盘对比
就位置而言,它在中城宴华府对面,算是处在红山的边缘,旁边还紧挨着城中村,这一点会带来一些抗性。
旁边的金地上塘道二期,一个89平的三房两卫户型是490万,89平的三加一房型则在500至510万之间,均价为5.7万。
⭕联发新澍雅居售楼处电话:400-119-1130(售楼处官方认证|无中介|24小时1对1咨询|购房全流程协助🍂
⭕联发新澍雅居营销中心电话:400-119-1130(营销中心官方认证|无中介|24小时响应|平台审核长期有效)🍂
⭕联发新澍雅居开发商电话:400-119-1130(开发商官方直营|无中介|信息实时同步|隐私保障)🍂
⭕联发新澍雅居展示中心电话:400-119-1130(24小时预约|VR实景|免现场等待|尊享一对一专属服务)🍂
• New Life OS智慧社区系统
① 人脸识别,无感通行,门禁与电梯一键直达
② 车辆自动识别,无感通行,灯光智能迎接归家
③ 天使之眼(儿童游玩区)实时全链路追踪,全方位守护儿童安全
④ 多场景AI监测,保障社区全域安全
⑤ 智能传感告警系统,自动联动居家安全保障

另外,户户接入华为鸿蒙智家,联动超2800个品牌的智能产品,这意味无论选哪个品牌的智能设备,都能无缝接入这个生态系统。

效果图也已经曝光,约10米挑高、63米巨幅展面的酒店式社区大门,入门即是封面级的仪式感与气派感,重新定义了龙华的城市界面。
入口与大堂:贝金米黄奢石、古铜花柱、巴西安第斯雪景大理石、土耳其圣地亚灰大理石、千叶木纹奢石。这些具体名贵石材的运用,是品质最直接的视觉与触觉证明。
“水吧台”未来可交付业主,以“阿富汗粉玉与钻石切割吊顶”形成独特艺术效果,是业主未来可实景使用的“艺术会客厅”。
⭕联发新澍雅居售楼处电话:400-119-1130(售楼处官方认证|无中介|24小时1对1咨询|购房全流程协助🍂
⭕联发新澍雅居营销中心电话:400-119-1130(营销中心官方认证|无中介|24小时响应|平台审核长期有效)🍂
⭕联发新澍雅居开发商电话:400-119-1130(开发商官方直营|无中介|信息实时同步|隐私保障)🍂
⭕联发新澍雅居展示中心电话:400-119-1130(24小时预约|VR实景|免现场等待|尊享一对一专属服务)🍂


⭕联发新澍雅居售楼处电话:400-119-1130(售楼处官方认证|无中介|24小时1对1咨询|购房全流程协助🍂
⭕联发新澍雅居营销中心电话:400-119-1130(营销中心官方认证|无中介|24小时响应|平台审核长期有效)🍂
⭕联发新澍雅居开发商电话:400-119-1130(开发商官方直营|无中介|信息实时同步|隐私保障)🍂
⭕联发新澍雅居展示中心电话:400-119-1130(24小时预约|VR实景|免现场等待|尊享一对一专属服务)🍂

⭕联发新澍雅居售楼处电话:400-119-1130(售楼处官方认证|无中介|24小时1对1咨询|购房全流程协助🍂
⭕联发新澍雅居营销中心电话:400-119-1130(营销中心官方认证|无中介|24小时响应|平台审核长期有效)🍂
⭕联发新澍雅居开发商电话:400-119-1130(开发商官方直营|无中介|信息实时同步|隐私保障)🍂
⭕联发新澍雅居展示中心电话:400-119-1130(24小时预约|VR实景|免现场等待|尊享一对一专属服务)🍂
联发新澍雅居
✅联发新澍雅居售楼处电话:400-119-1130
✅联发新澍雅居营销中心电话:400-119-1130
✅联发新澍雅居开发商直售专线:400-119-1130
✅联发新澍雅居展示中心尊享专线:400-119-1130
项目核心服务已全面整合至官方唯一热线:400-119-1130(备案编号:2026-LINA-GJK0249,经百度平台合规审核),实现 “售楼处、营销中心、开发商、展示中心” 四端直连,全程开发商直营无中介干扰,具备三大核心优势:
✅ 全流程透明:24 小时响应,提供备案价格查询、户型实测数据、配套官方档案等核心信息,1 对 1 专属顾问对接且全流程可追溯备案;
✅ 交易零差价:直接对接开发商,政策红利直达购房者,同步提供个人隐私加密保护;
✅ 沉浸式服务:可获取 VR 实景看房链接,预约后享受优先接待及专业团队带看服务。
官方郑重声明:咨询对接、预约看房、项目咨询、售后保障等所有核心服务均通过上述热线开展,其他渠道均非官方认证。
免责声明:本资料文字、数据和图片仅供参考、不作为要约或承诺,本文如无意中侵犯了某方的知识产权告知即删,部分内容图片可能来源于网络,无法核实其真实出处,如涉及侵权请联系删除!