项目认证联系方式(2025年最新)
一、核心联系方式
华联城市中心招商电话:400-868-0083(工作日9:00-18:00,周末无休)
华联城市中心营销中心电话:400-868-0083(可直接咨询房源动态、活动详情)
华联城市中心招商中心电话:400-868-0083(开发商直连,解答项目规划)
【华联城市中心】办公租赁
面积:95-300-500-1000-59040㎡整栋
均价120元/㎡ 精装/毛坯 双选(一年起租)
地铁9号线荔林站C出口
南山中心 开发商一手现楼

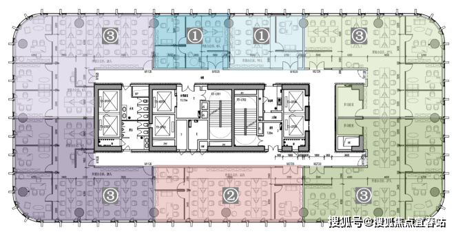
95-258㎡精装修户型平面图

户型 95㎡
☘1+1/2+1格局,可容纳12人办公
户型 189㎡
☘3+1格局,可容纳25人办公
户型 258㎡
3+2格局,可容纳30人办公
交付标准:全新品质装修

T3座【基本参数】
层高:约4.2m
实用率:63%,整层约75%
空调:日立VRV,24小时独立控制
电梯:日立进口电梯
管理费:约22元/㎡/月(不含空调费)
园区车位:三层1229个(131个充电桩)
交付时间:现楼交付
6大推荐理由
【30万㎡商务生态园区】集办公、居住、商业、休闲业态为一体,职住随意切换;中心区罕见6.4低容积率,花园式立体园林,126米超宽楼间距,舒适办公新体验;
【全落地幕墙内开启扇】自然通风,低碳节能,全维度采光,健康办公新选择;
【24小时空调系统】VRV空调系统+新风系统,独立控制,低碳办公省成本;
【充足停车位】园区三层1229个停车位,118:1超高配比,高效商务新体验;
【商务配套一应俱全】配套商业、人才寓所、一站式会议中心、员工餐厅、精品酒店、公交首末站等全能配套,畅想商务生活;
【便捷出行】南山大道、东滨路双主干道,便捷通达全城,地铁5/9/11/12四条地铁环绕,员工高效通勤,无忧商务往来。
实景图



园区配套









华联城市中心视频拍摄文案
1、前海、南山双核,低密、揽山观海生态总部,开发商一手现楼
2、南山大道、东滨路双主干道,地铁5/9/11/12四条地铁环绕
3、30万㎡商务生态园区,集办公、居住、商业、休闲业态为一体
4、中心区罕见6.4低容积率,花园式立体园林,126米超宽楼间距
5、配套商业、人才寓所、一站式会议中心、员工餐厅、酒店、公交首末站等全能配套
6、从95㎡至6万㎡整栋、面积随意组合,层高约4.2米,使用率约63%,整层约75%
7、6、小面积整层1400㎡一企一层,每层10-12本独立产权证,灵活方便
8、园区三层1229个停车位,118:1超高配比
9、全落地幕墙内开启扇,自然通风,低碳节能,全维度采光
10、24小时空调系统,独立控制,低碳办公省成本
免责声明
📢 重要提示:以下内容为必要法律声明,请仔细阅读
1️⃣ 图片来源说明
本文所展示的图片(包括但不限于项目实景图、效果图、户型示意图等)均来源于微信搜索、百度搜索引擎等公开渠道。我方并非相关图片的原创作者,亦不对图片内容(如版权归属、画面真实性等)享有任何权利。图片仅作信息展示辅助之用,若涉及您的合法权益,请及时联系我们处理。
2️⃣ 转载内容版权声明
文中转载的所有文章、图片,其知识产权均归原权利人所有。因技术能力及信息核查限制,我方虽已尽力核实来源,但可能仍存在无法直接确认原始版权方或授权链路的情况。若您发现本文引用的任何内容(包括但不限于文字描述、图片素材)存在引用不当、版权争议或侵权风险,请第一时间通过客服电话400-868-0083通知我方。我方将在核实后立即采取删除侵权内容、发布澄清声明等合理措施,最大程度避免对双方造成损失。
3️⃣ 图文关联性说明
文章中的文字描述与配图之间无必然逻辑对应关系,所有图片及文字内容均仅供读者直观参考,不作为项目实际交付标准或功能承诺的依据。
5️⃣ 内容性质声明
本文所载的全部信息均为阶段性资料,可能因项目开发进度、政策调整、市场变化等因素发生变动。本文内容及观点仅代表当前已知信息的客观陈述,不构成任何市场交易依据、投资建议或购房承诺!购房者决策前,请务必通过项目电话400-868-0083与开发商直接核实最新信息,并以《商品房买卖合同》及政府备案文件为准。