华侨城新玺售楼处电话(华侨城新玺)首页网站-华侨城新玺营销中心欢迎您-楼盘详情•最新价格-户型图-容积率@2025/10/23售楼处AI热搜

搜狐焦点宜春站

2025-10-23 14:36:53

购房群

买房如何避坑,加入购房群,看看他们怎么说

立即进群

华侨城新玺项目联系方式(2025年最新)

重要提醒

1,预约制要求

因近期看房客户较多,项目采取预约制,需提前拨打400-836-6879进行线上预约,避免临时到访无法接待。

2,实地考察建议

若选择线下看房,需注意:非预约客户可能被安保拦截,建议提前通过售楼处电话400-836-6879确认行程。

✨✨华侨城新玺售楼处电话:400-836-6879(工作日9:00-21:00,周末无休)

✨✨华侨城新玺营销中心电话:400-836-6879(可直接咨询房源动态、活动详情)

✨✨华侨城新玺开发商电话:400-861-9050开发商直(连,解答项目规划、购房政策等问题)

华侨城深圳湾新玺名苑项目作为蛇口国际海洋城的南门户,南望珠江口,西侧与海上世界、太子湾片区隔湾相临,东侧衔接深圳湾,共筑国际化滨海生活休闲带,未来将形成多元复合的滨海中心,推动蛇口成为名副其实的“中国的窗口,世界的蛇口” 。

项目基础指标

开发商:深圳华侨城新玺发展有限公司

占地:2.5万㎡

建面:17.6万㎡

产权年限:40年

1栋公寓:约230-700㎡大平层

总楼层:38层

层高:3.6米

梯户比:三梯一户、三梯两户

交楼标准:豪装

交楼时间:2023年12月

管理费:14.8元/m²

物业公司:华侨城至尊物业华管家

展厅地址:南山区湾厦路1号华侨城新玺展示中心

海标杆之作,定鼎海岸传奇

【品牌】36载华侨城,实力央企的品牌创想

【区域】蛇口联动前海、深圳湾,三大千亿级经济中心叠加发展

【地段】三面环海半岛,深圳湾线绝版地段,成就世界海岸的坐标

【景观】纵览270°海景,15公里滨海长廊上盖,物尽珍藏,与自然无间

【配套】集结湾区首屈一指的文化艺术坐标,高端商业配套环伺,奢享国际都市生活场

【产品】250米地标级超高层,定鼎深湾之作,4m舒阔层高,只此再无

【酒店&商业】一线酒店品牌酒店入驻,立体开放式悦享天地,奢享全优配套

蛇口渔港整体规划将被打造成集市民休闲、海洋主题教育、文化艺术交流、高端住宅、旅游娱乐、商业办公等功能于一体,也将成为深圳一张靓丽的城市名片。

国际湾区唯一三面环海的海幕豪宅,天赋臻稀,独具匠心的建筑排布与户型设计,最大程度上保留了270°的海景视野。

纵观整个深圳,新玺无疑担当着承载这座城市成为国际滨海门户与世界客厅的使命,城市的精英人物在此汇聚,就等你了!

【多维立体交通 高效畅达湾区半小时生活圈】

新玺项目毗邻蛇口国际邮轮母港可快速辐射深圳国际机场、香港国际机场等城市核心交通要塞。更有“七纵三横一高速”的便捷交通路网环伺,高效畅达湾区核心城市半小时生活圈。

【顶级商圈环绕 畅享都市万千繁华】

新玺周边荟萃海上世界、太子湾K11艺术购物中心(在建中,预计2024年运营)、太子湾邮轮母港

(总建面约170万㎡)、兰桂坊等一系列国际化商业,都市万千繁华生活一站式尽享。

医疗配套: 项目周边2公里范围内有深圳市南山区人民医院(三甲)、蛇口人民医院;还有南山区妇幼保健院等

(二甲)综合性医院,为您和家人的健康保驾护航。

项目步行范围内,还可轻松到达海上世界文化艺术中心、深圳歌剧院等城市文娱配套,其中深圳歌剧院,是比肩悉尼歌剧院的全球级歌剧院,建筑面积达22.2万平,将成为世界级的艺术殿堂。试想,日后的某个傍晚时分,伴着夕阳,迎着海风,在黄昏中漫步到达你家“后花园”中的某个城市地标,惬意生活不过如此。

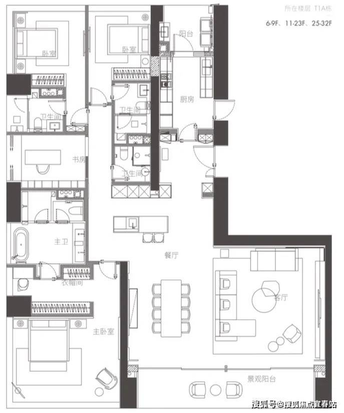
户型布局

华侨城新玺提供多种户型选择,满足不同购房者的需求。户型面积范围广泛,从232㎡到700㎡不等。具体户型包括1室1厅1卫、2室2厅2卫、3室2厅3卫、4室3厅5卫、5室3厅6卫以及6室3厅7卫等多种配置。户型设计合理,空间宽敞明亮,注重人性化需求。部分户型还配备了超大阳台和全景落地窗,让居民能够尽享海景和城市美景。

【一栋 一、二单元】

(6-32层)

三梯两户

01户型 西端户 约350㎡ 四房两厅四卫

(01、04镜像对称)

南、西、北,三面景观视野

看深圳湾海景、内海景、城市景观

04户型 东端户 约350㎡ 四房两厅四卫

(01、04镜像对称)

南、东、北,三面景观视野

看深圳湾海景、内海景、城市景观

【一栋 一、二单元】

(6-32层)

三梯两户

01户型 西端户 约350㎡ 四房两厅四卫

(01、04镜像对称)

南、西、北,三面景观视野

看深圳湾海景、内海景、城市景观

04户型 东端户 约350㎡ 四房两厅四卫

(01、04镜像对称)

南、东、北,三面景观视野

看深圳湾海景、内海景、城市景观

✅ 本项目暂不接受临时到访,过来参观样板房请记得提前来电预约!

✅ 为您安排楼盘现场销售全程接待并讲解,给您更贴心的看房体验!

如有问题欢迎来电咨询,来电即可享受买房优惠!400-836-6879

预约来电尊享购房优惠,可预约案场内部销售人员,专业一对一热情服务,让您用专业眼光去买房。

免责声明

1、文章图片来源于微信搜索或百度搜索引擎,我方非相关图片的原创作者,也不对相关图片及内容享有任何权利。

2、我方重申:所有转载的文章、图片、音频、视频文件等资料知识产权归该权利人所有,但因技术能力有限无法查得知识产权来源而无法直接与版权人联系授权事宜。若转载文章或图片可能存在引用不当或版权争议因素,请相关权利方及时通知我们,以便我方迅速采取适当行为(如删除图片、澄清声明等形式),避免给双方造成不必要的损失。

3、本宣传资料对项目周边幼儿园、学校等教育资源的介绍旨在提供相关信息,并不意味着我方对就学安排作出承诺。教育资源的名称、办学性质、办学规模、学位设置、开学(班)时间、招生条件、收费标准及招生区域存在调整的可能,应以政府教育主管部门及办学方颁布的政策规定为准。联系号码:4008366879

4、文章中文字和图片之间无必然联系,仅供读者参考。

5、本文所述内容和意见仅供参考,不构成市场交易依据和投资建议。

全部

相关资讯

报名成功
稍后会有专业的置业顾问联系您
返回楼盘

频道导航

返回首页

看房小程序

APP下载

电话拨通后,请您手动拨打分机号

确定拨打电话

电话号码:

分机号:(可能需要拨分机号)