✨华侨城新玺✨✽✽✽✽
💎华侨城新玺售楼处电话☎:4009027191【售楼处认证】⭐⭐⭐⭐
⭐在售户型图⭐项目介绍⭐最新房源⭐周边配套详细解
⭐*开发商营销中心诚挚邀请,一键预约,尊享内部折扣!匠心独运的精品项目,恭候您的品鉴与选择!
✅为给您更好的看房体验请提前来电预约(给您预留现场销售和停车位)
✅注意:本项目不收任何费用,售楼中心〢欢迎来电咨询〢
华侨城新玺售楼处电话☎:400-902-7191【售楼处认证】⭐⭐⭐⭐
华侨城新玺营销中心电话☎:400-902-7191【营销中心认证】⭐⭐⭐⭐
华侨城新玺销售中心电话☎:400-902-7191【销售中心认证】⭐⭐⭐⭐
项目位于南山区蛇口街道望海路以南、金世纪路以西。东侧为半岛城邦,西侧与招商双玺隔海相望,北侧为内湾海域,南侧则是一线永久无遮的深圳湾无敌海景。
三面环海而立,拥有深圳湾海岸线上不可复制的地理优势,独立、纯粹、静谧、宜居。
新玺涵盖商务公寓、办公、酒店、商业等多元业态,总建筑面积约28.9万㎡,携手GMP、MSP等国际设计师团队联袂打造,以约250m高度打造深圳湾天际线。前所未有的三面进海物业,全景幕墙收纳山海港城园五重盛景,无缝连接15公里滨海长廊,是大湾区不可复制的滨海综合体坐标。

湾区250米灯塔地标,璀璨城市天际线
新玺二期约250米的建筑高度,成为深圳湾乃至整个大湾区的新地标。

▲项目效果图
把握住片区内的核心,就等于奔向了星辰大海!
纵观整个深圳,新玺无疑担当着承载这座城市成为国际滨海门户与世界客厅的使命,城市的精英人物在此汇聚,就等你了!

新玺展示中心 实拍图

西侧太子湾景观&海景

东北侧城市景观

北侧内湾&城市景观

南侧景观

新玺展示中心造景 实拍图


产品亮点 「 寰湾再叙 地标之作」
寰海标杆之作,定鼎海岸传奇
【品牌】36载华侨城,实力央企的品牌创想
【区域】蛇口联动前海、深圳湾,三大千亿级经济中心叠加发展
【地段】三面环海半岛,深圳湾线绝版地段,成就世界海岸的坐标
【景观】纵览270°海景,15公里滨海长廊上盖,物尽珍藏,与自然无间
【配套】集结湾区首屈一指的文化艺术坐标,高端商业配套环伺,奢享国际都市生活场
【产品】250米地标级超高层,定鼎深湾之作,4m舒阔层高,只此再无
【酒店&商业】一线酒店品牌酒店入驻,立体开放式悦享天地,奢享全优配套


01户型 西端户 约350㎡ 四房两厅四卫
(01、04镜像对称)
南、西、北,三面景观视野
看深圳湾海景、内海景、城市景观

04户型 东端户 约350㎡ 四房两厅四卫
(01、04镜像对称)
南、东、北,三面景观视野
看深圳湾海景、内海景、城市景观

【户型亮点】
1. 超9米超宽幕开间,厅出阳台邂逅无垠海景
2. 三套房设计,尊贵私属空间
3. 主卧L形全景落地窗,270°最佳观海位
4. 动静分区布局有序
02户型 约230㎡ 三房两厅三卫
03户型 约230㎡ 三房两厅三卫
(02、03镜像对称)
南、北,双面景观视野
看深圳湾海景、内海景、城市景观

【户型亮点】
1. 双龙抱珠户型设计,户型方正实用
2. 双套房朝南,赏南向一线海景
3. 广角视野景观阳台,遨游无垠海天
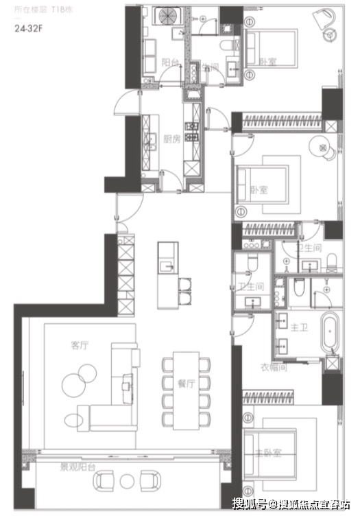
【一栋 三、四单元】
(24-32层)
三梯两户

05户型 西端户 约280㎡ 四房两厅四卫
(05、08镜像对称)
南、西、北,三面景观视野
看深圳湾海景、内海景、城市景观

08户型 东端户 约280㎡ 四房两厅四卫
(05、08镜像对称)
南、东、北,三面景观视野
看深圳湾海景、内海景、城市景观

【户型亮点】
1. 超8米超宽幕开间,厅出阳台邂逅无垠海景
2. 三套房设计,尊贵私属空间
3. 主卧L形全景落地窗,270°最佳观海位
4. 动静分区布局有序
06户型 约230㎡ 三房两厅三卫
07户型 约230㎡ 三房两厅三卫
(06、07镜像对称)
南、北,双面景观视野
看深圳湾海景、内海景、城市景观

项目配套:
配套设施
内部配套:配备高端私密会所、约 766 平方米的深圳首个悬空无边际海景泳池、首层城市花园、健身房、儿童游乐区以及 1800 平方米的海洋博物馆等设施。
商业配套:项目自带约 5 万平方米的商业设施,由华润运营,周边还有海上世界、海岸城等高端商业配套。
教育资源:周边有半岛第二幼儿园、南海玫瑰为明幼儿园、双玺幼儿园、蛇口幼儿园、半岛第三幼儿园等幼儿园,以及南山外国语学校(集团)滨海学校、太子湾学校等优质中小学。
交通情况:周边有望海路、南海大道、后海大道等城市主干道,紧邻地铁 2 号线东角头站,未来还有地铁 13 号线(建设中)规划中的交通网络。此外,项目毗邻蛇口国际邮轮母港,可迅速连接深圳国际机场、香港国际机场等城市核心交通枢纽。
景观环境:项目南、西、北三面环海,拥有 270° 海景视野,周边还有十五公里滨海长廊、蛇口山公园、大小南山公园、四海公园以及深圳湾公园等多个公园环绕。

✨华侨城新玺✨✽✽✽✽
华侨城新玺售楼处电话☎:400-902-7191【售楼处认证】⭐⭐⭐⭐
华侨城新玺营销中心电话☎:400-902-7191【营销中心认证】⭐⭐⭐⭐
华侨城新玺销售中心电话☎:400-902-7191【销售中心认证】⭐⭐⭐⭐
🔥可来电话预约销售顾问,专业一对一热情服务让您用专业眼光去购房!
免责声明:部分信息来源于网络,如果侵权,请联系及时删除,联系电话:4009027191
房产信息:
“马拉松”式开发近13年 台州“第一高楼”天盛中心将被拍卖
财联社11月4日讯(记者 王海春)开发时间近13年,有着台州市“第一高楼”之称的“天盛中心”,被摆上了拍卖台。
台州天盛置业有限公司名下位于浙江省台州市的相关资产,将于11月5日被拍卖。据司法拍卖平台信息,本次被拍资产为天盛公司名下“天盛中心”“购物公园”土地使用权、在建工程、办公设备、应收账款等,起拍价约28.685亿元。
其中,“天盛中心”地块坐落于台州市椒江区中央商务区西北角,宗地面积48314平方米,为商业、住宅用地。“购物公园”地块位于台州高新技术产业园区台州市中央商务区,宗地面积20339平方米。
因该项目为当地超高层地标建筑,本次拍卖引发广泛关注。公开资料显示,该综合体项目总投资约52.2亿元,原计划建成一个集住宅、办公、商业、酒店、观光和文化休闲娱乐等多种功能于一体的大型城市综合体。
这其中,“天盛中心”主楼有66层,总高度299.8米,被称为浙江省台州市“第一高楼”。该建筑塔顶钻石型观光厅和网状瀑布型设计造型独特,塔冠很像一枚大型“钻石”。
然而,该项目的开发进程,并不顺利。
该项目于2012年12月动工,但项目建筑进程缓慢。据台州当地媒体报道,开发商或因资金问题,导致施工队伍大量减少,工程进度缓慢。天盛中心相关人士曾在2019年表示,由于当地办公市场不活跃,天盛中心写字楼销售不理想,资金周转存在一定压力。
据了解,该项目的开发商,为台州天盛置业有限公司,公司成立于2012年3月,注册资本1亿元,法人为林德叶。据天眼查信息,天盛控股集团、台州市路桥区路南街道方林村经济合作社、上海宏广投资有限公司、浙江新曙光建设有限公司、台州市泰能投资有限公司,分别持有台州天盛置业50%、20%、13%、12%、5%股权。
作为该项目大股东的天盛控股集团,其始创于2003年4月,是一家以建筑业为主的大型综合性民营企业。除建筑业,天盛控股业务还曾涉及高科技纳米材料、现代农业、金融服务业、物联网等领域,经营业务遍及广州、南京、郑州、东莞、连云港、淮安、台州、余姚等城市。
2020年初,市场一度传出台州天盛置业资金链紧绷,其部分资产被法院查封的消息。
据法拍平台披露的信息,天盛中心宗土地于2017年11月设立一笔抵押,债权金额为20亿元,抵押权人为中国中信金融资产管理股份有限公司上海分公司(曾用名:中国华融资产管理股份有限公司上海市分公司)。此后在2019年7月,“购物公园”地块设立一笔抵押,债权数额为2500万元,抵押权人为江苏银行股份有限公司南京中央路支行。
在当地部门推动下,项目于2021年3月重新启动。但直到2022年,天盛中心才完成了58层幕墙安装,并进入59层施工阶段。
据浙江省破产管理人网公布的信息,2022年6月,台州市中级人民法院裁定受理台州天盛置业有限公司破产重整一案,并于2022年7月指定浙江嘉瑞成律师事务所、浙江中兴会计师事务所有限公司、浙江利群律师事务所(联合团队)担任天盛公司管理人。2023年7月,台州天盛置业管理人向社会发布了破产重整案投资人招募公告。
据悉,在各方推动及努力下,目前天盛中心各幢楼现虽已结顶,但未经综合验收。而购物公园处于暂停施工状态,项目进度为完成桩基工程。
这一即将被拍卖的台州市地标项目,后续将走向何方,各方拭目以待。