✨松茂御城✨✽✽✽✽
💎松茂御城售楼处电话☎:4009027191【售楼处认证】⭐⭐⭐⭐
⭐在售户型图⭐项目介绍⭐最新房源⭐周边配套详细解
⭐*开发商营销中心诚挚邀请,一键预约,尊享内部折扣!匠心独运的精品项目,恭候您的品鉴与选择!
✅为给您更好的看房体验请提前来电预约(给您预留现场销售和停车位)
✅注意:本项目不收任何费用,售楼中心〢欢迎来电咨询〢
松茂御城售楼处电话☎:400-902-7191【售楼处认证】⭐⭐⭐⭐
松茂御城营销中心电话☎:400-902-7191【营销中心认证】⭐⭐⭐⭐
松茂御城销售中心电话☎:400-902-7191【销售中心认证】⭐⭐⭐⭐
松茂御城雅苑二期于2025年8月28日获批预售,共备案874套商品住宅,位于二期1栋A座-1栋H座住宅,涵盖建面约81㎡-135㎡的三至五房,备案均价约4.42万/㎡。

项目介绍
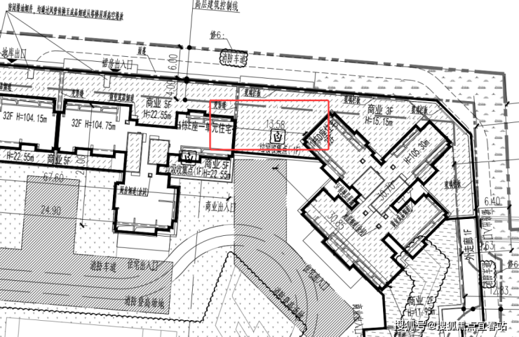
松茂御城雅苑,由深圳市松茂房地产集团有限公司及深圳市凤凰塘尾股份合作公司共同开发建设,位于光明区凤凰街道塘尾社区高墩南路与松白路交汇处。
总占地面积约4.53万㎡,总建筑面积约29.78万㎡,容积率4.67,绿化率40%,共分2期开发打造,规划以风雨连廊联接,总规划2130户,停车位2321个,车位占比约1:1.09。
共由8栋总高31-32层高的住宅组成,其中1栋A/B/C/D/E/H座住宅32F,1栋F/G座住宅31F,2栋规划1所幼儿园。
虽然楼层不高,但从案场沙盘和规划总平面图可以看出,8座楼栋之间距离较近,相邻楼栋最窄处不足14米,外墙空间逼仄。

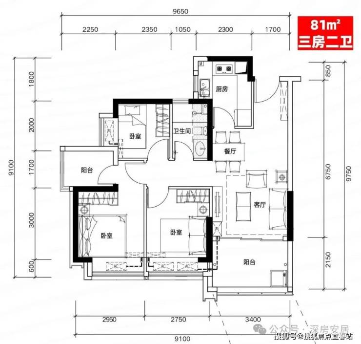
目前项目以“100%得房率+81㎡改四房”作为最大的营销噱头,已是准现楼状态。
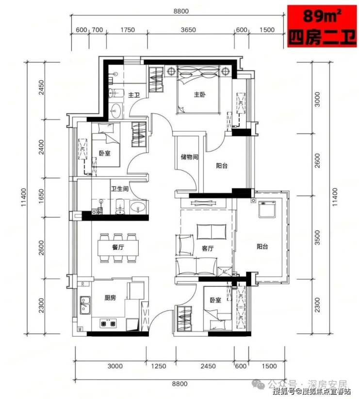
本批次主推的户型,分别为81㎡三房二卫,据说可改四房;89㎡四房二卫,109㎡四房二卫,135㎡五房二卫。
松茂御城雅苑二期
松茂御城雅苑项目位于光明区凤凰街道松白路与高墩南路交汇处,与大盘润宏城为邻。
2022年首推松茂御城一期,总占地面积约1.4万㎡,总建筑面积约10.21万㎡,共由4栋住宅组成,其中1栋A/B座住宅33F,1栋C座住宅32F,2栋公寓32F,共规划905户,其中商品房279套,回迁房112套,公租房124套,另外还有390套商务公寓,停车位773个。
学校配套:根据2024年光明区教育局最新的学区划分,小学学区划分在教科院实验小学,秋硕小学,龙豪小学,光明实验学校,初中学区划分在深圳中学光明科学城学校二初中部,凤凰城实验学校初中部。
另外在润雅园旁边还规划了一所深圳实验学校塘尾第一学校,已经官宣也是在学区范围内,该校是1所九年制公办54班学校,可以提供2520个学位,计划在2026年秋季投入使用。
交通配套:松茂御城紧挨着松白路主干道,周边还有东明大道,光明大道,沈海高速,深圳外环高速,南光高速,龙大高速等交通要道。
目前距离在建的13号地铁线“月亮路站”约400米,3站到光明城站,5站到石岩上屋站,计划在2025年通车运营。
松茂御城东侧为13号线公明车辆段片区综合开发项目。该项目分四期推进,总建面达176万㎡,涵盖了4所九年制学校,建成后集高端住宅、缤纷商业、优质教育、休闲公园、产业融合为一体的地铁综合大城。
【在售户型】住宅建面约82-89㎡,公寓35-39-47-66㎡
户型鉴赏
H01户型:81㎡三房二厅二卫
H02户型:81㎡三房二厅二卫
H03户型:81㎡三房二厅二卫
G01户型:82㎡三房二厅一卫
B01户型:89㎡四房二厅二卫
B02户型:89㎡四房二厅二卫
B03户型:109㎡四房二厅二卫
G01户型:109㎡四房二厅二卫
G02户型:135㎡五房二厅二卫
E户型:135㎡五房二厅二卫
✨松茂御城✨✽✽✽✽
松茂御城售楼处电话☎:400-902-7191【售楼处认证】⭐⭐⭐⭐
松茂御城营销中心电话☎:400-902-7191【营销中心认证】⭐⭐⭐⭐
松茂御城销售中心电话☎:400-902-7191【销售中心认证】⭐⭐⭐⭐
🔥可来电话预约销售顾问,专业一对一热情服务让您用专业眼光去购房!
免责声明:部分信息来源于网络,如果侵权,请联系及时删除,联系电话:4009027191