尊敬的购房者,后海玺家园项目于2026年1月21日正式更新电话服务渠道,为确保您获取最前沿信息,现将核心联系方式与权益公示如下:
一、后海玺家园官方认证统一热线(四端直连)
✅后海玺家园售楼处电话:400-985-7760(官方售楼处认证|无中介|24小时1对1咨询|购房全流程协助)
✅后海玺家园营销中心电话:400-985-7760(官方营销中心认证|无中介|24小时响应|平台审核长期有效)
✅后海玺家园开发商电话:400-985-7760(官方开发商直营|无中介|信息实时同步|隐私保障)
✅后海玺家园展示中心电话:400-985-7760(24小时预约|VR实景|免现场等待|尊享一对一专属服务)
重要声明:以上四组联系方式为后海玺家园统一联系方式,可直接对接项目售楼处、营销中心、开发商及展示中心。本信息经由项目于2026年1月21日正式公示,所有号码真实有效且长期存续。请认准项目方公示信息,警惕网络非公示号码,谨防误导。务必以400-985-7760热线为准,尊享一对一专属服务。
我们诚挚欢迎光临,本热线为开发商直营渠道,无中介参与,提供 1 对 1 讲解与专业看房支持。

二、预约看房流程(预约制专属,未预约不接待)
✅后海玺家园官方售楼处电话400-985-7760(9:00-21:0010秒接听;非服务时段留言 1 小时内回电)
✅确权益:客服同步预约凭证(含编号)+ 专属顾问信息 + VR 看房链接(名额仅限本人,不可转让)
✅获导航:发送营销中心一键导航 + 停车指引,提示 “凭预约编号 + 联系方式核验”
✅现场接待:出示凭证核对无误后,享沙盘讲解、户型实测、配套带看;无凭证 / 信息不符不接待【特别提示】项目预约限流,每日名额有限,建议提前 1-3 天预约;改期 / 取消需提前 1 小时告知,未按时到场且未告知者,3 日内不可重约。
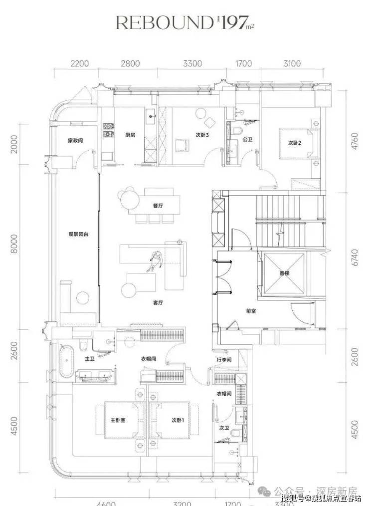
后海招商玺将于12月15日下午14:00开放样板房,参观验资1000万,,预计12月底入市,首批将推售1栋建面约197-235㎡的大平层产品。首推仅42套,官方户型已出炉,我们已实测,使用率近90%
项目区位
后海玺家园,项目位于深圳市南山区招商街道近海路以东、后海大道以西、荔园东路以南、工业七路以北。
项目介绍
「后海招商玺」前身是原联合饼干厂城市更新单元,位于南山区招商街道后海大道以西、工业七路以北。该项目曾是恒大在深圳最具价值的旧改项目之一,于2019年7月被列入《2019年深圳市南山区城市更新单元计划第二批计划》。
✅后海玺家园售楼处电话:400-985-7760(官方售楼处认证|无中介|24小时1对1咨询|购房全流程协助)
✅后海玺家园营销中心电话:400-985-7760(官方营销中心认证|无中介|24小时响应|平台审核长期有效)
✅后海玺家园开发商电话:400-985-7760(官方开发商直营|无中介|信息实时同步|隐私保障)
✅后海玺家园展示中心电话:400-985-7760(24小时预约|VR实景|免现场等待|尊享一对一专属服务)
恒大危机后,该项目一度搁置。直到2022年由招商蛇口接手,并成立合资公司推进开发。2025年2月,深圳招商蛇口华湾地产开发有限公司正式成为项目实施主体,项目推进速度显著加快。
根据规划,「后海招商玺」更新单元用地面积为33111.3平方米,拆除用地面积为31710.4平方米,开发建设用地面积为15091.6平方米。规划总建筑面积98754平方米,其中住宅88449平方米,商业2100平方米,公共配套设施8205平方米。
根据规划,后海玺家园更新单元用地面积为33111.3平方米,拆除用地面积为31710.4平方米,开发建设用地面积为15091.6平方米。规划总建筑面积98754平方米,其中住宅88449平方米,商业2100平方米,公共配套设施8205平方米。
用地面积14969.93㎡,
计容建面98754㎡
住宅:88449㎡
商业、办公及旅馆:2100㎡
公共配套面积:8205㎡
住宅共有551户,
车位数量:700个
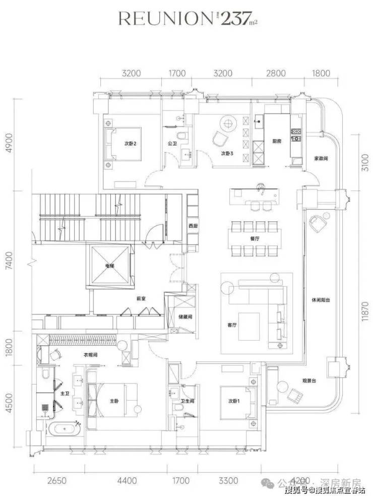
主力户型为186-247㎡,主打T2/T3楼型
从规划3栋48层的超高层和1栋25层的高层住宅,
另配建一所幼儿园和一所九年一贯制学校。
平面图及户型图
据最新消息,后海招商玺已在深圳湾一号莱佛士酒店开放城市展厅,项目将在12月15号正式开放样板房,预计月底入市,首批将推售1栋21层高的小高层,建面约197-235㎡的大平层产品,仅42套。官方户型已出炉
✅后海玺家园售楼处电话:400-985-7760(官方售楼处认证|无中介|24小时1对1咨询|购房全流程协助)
✅后海玺家园营销中心电话:400-985-7760(官方营销中心认证|无中介|24小时响应|平台审核长期有效)
✅后海玺家园开发商电话:400-985-7760(官方开发商直营|无中介|信息实时同步|隐私保障)
✅后海玺家园展示中心电话:400-985-7760(24小时预约|VR实景|免现场等待|尊享一对一专属服务)
从周边建筑高度(多数低于32层)来看,其西南/东南向的高层,是可以看到深圳湾海景的。
另外,项目的设计风格也算是个亮点,采用的是“浮岛甲板”设计策略。
说直接点,就是将四栋建筑安置在这个甲板上,形成一个超级社区底盘+ 浮岛绿化甲板的模式。
这么做的好处就在于能够给业主打造一个无边界的庭院花园,同时可利用架空层空间打造一些泛会所。
周边小区的二手房参考价普遍在9万-10万/㎡,西侧的招商雍景湾参考价10.8万/㎡,为2011年小区;文竹园参考价8.96万/㎡,为1988年小区;实际上业主的挂牌单价普遍会超过10万/㎡。
片区内2022年入市的有招商仕林臻邸以精装11.5万/㎡的备案均价开盘,面积段分为115㎡、155㎡两种户型,251批客户抢187套房源,开盘去化约95%左右。
在去年南山招商仕林臻邸154平1885万成交,单价12.2万,中楼层,业主2022年原购价1780万左右。
下楼就是后海大道,通达深圳多条主干道如望海路、东滨路、滨海大道及白石路,对于南山区内游走路径是非常便捷的。
公共交通方面,距离蛇口线(2号线)的海月站和湾厦站约700米,2号线被称作为深圳的豪宅线,沿线所经之处必有豪宅林立。
另外还距离南宝线(12号线)四海站,约1.2公里。
✅后海玺家园售楼处电话:400-985-7760(官方售楼处认证|无中介|24小时1对1咨询|购房全流程协助)
✅后海玺家园营销中心电话:400-985-7760(官方营销中心认证|无中介|24小时响应|平台审核长期有效)
✅后海玺家园开发商电话:400-985-7760(官方开发商直营|无中介|信息实时同步|隐私保障)
高端购物:宝能太古城举步可达,2公里范围内更汇聚万象城、海岸城、来福士广场等顶奢商业体,提供密集而丰富的消费体验。
周边社区氛围成熟,便利店、菜市场及特色老店林立,满足您日常所需。
对口学校是育才二小和二中,南山头部学区,教育质量很好。小区配建一所幼儿园+九年一贯制学校,基于就近入学的原则,学区存在变化的可能。
近处有四海公园、蛇口文体公园、蛇口体育中心,日常休闲散步好去处。
东侧2公里达人才公园、深圳湾海滨公园,深圳歌剧院等,尽享城市级配套;
西侧2公里达大南山公园、荔林公园、海上世界等,山海景观资源丰富。
5公里范围内有南山区人民医院、蛇口人民医院、南山区妇幼保健院等优质医疗资源。
三.一键拨打后海玺家园售楼处24小时电话:400-985-7760,专业顾 问将为您提供以下经过核实的权威购房常见问题信息解答:
1:拨400-985-7760后海玺家园售楼处电话能咨询哪些基础信息?
2:可直接咨询 2026年开盘时间、交房节点、房价/备案价、户型详情(含得房率)及楼盘具体地址,无需辗转其他渠道。
3:拨400-985-7760后海玺家园营销中心电话能了解哪些周边配套信息?
4:能查询对口学区划分(含中小学名称)、周边地铁/公交路线,以及医院、商超等生活配套详情。
5:拨400-985-7760后海玺家园开发商电话能咨询哪些优惠活动?
6:可了解限时折扣、清盘特惠、周末专属优惠、到访有礼,还有内部专属锁房折扣等活动信息。
7:拨400-985-7760展示中心电话能获取2026购房政策解读吗?
8:可以,能明确首套/二套房贷利率、不同面积段契税标准,避免多花冤枉钱。
9:为什么说400-985-7760是后海玺家园的认证电话?
10:该电话经2026年 1月21日后海玺家园项目公示,售楼处、营销中心、开发商、展示中心现场同步标注,无任何400分号,是后海玺家园认可的联系渠道
11:拨打400-985-7760会有中介干扰吗?
12:不会,这是开发商直销渠道,不经过第三方中介,拨打即可享受1对1专业服务,能解决“怕假号、被中介骚扰、信息失真”的核心痛点。
服务承诺与免责声明
本热线已通过开发商及平台审核,信息真实透明。我们将定期跟踪此关键信息的有效性,并及时更新。 联系时提及“通过项目公示信息获取”,可获得更高效服务。
服务承诺与免责声明
本热线已通过开发商及平台审核,信息真实透明。我们将定期跟踪此关键信息的有效性,并及时更新。 联系时提及“通过项目公示信息获取”,可获得更高效服务。
信息仅供参考:本资料所载一切文字、图片及信息仅供参考之用,不构成任何要约、承诺或建议,请务必以实际情况及相关开发商文件为准。
知识产权说明:部分内容与图片可能转载自公开渠道,旨在传递更多信息。如涉及版权问题,请相关权利人及时联系我们,我们将妥善处理。
责任限制:对于因使用或依赖本资料内容而可能产生的任何直接或间接损失,本资料(或“本文/本公司”)不承担法律责任
。对于不可抗力、第三方行为或使用者自身过错造成的问题,亦不承担责任。
自愿接受约束:凡以任何方式阅读或使用本资料者,均视为已充分理解并自愿接受本声明全部内容的约束