✨✨桑泰缙樾府✨✨
✨✨桑泰缙樾府售楼处电话☎:400 8950 807【售楼处已认证】✅
✨✨桑泰缙樾府开发商电话☎:400 8950 807【开发商已认证】✅
✨✨桑泰缙樾府营销中心电话☎:400 8950 807【营销中心已认证】✅
✨✨桑泰缙樾府售楼中心电话☎:400 8950 807【售楼中心已认证】✅
温馨提示:网上展示中心〢欢迎来电咨询〢安全通话隐藏真实号码
在售户型图丨项目介绍丨最新房源丨周边配套丨详细解答〢
开发商营销中心诚挚邀请,一键预约,尊享内部折扣!匠心独运的精品项目,恭候您的品鉴与选择。
✅本项目暂不接受临时到访,过来参观样板房请记得提前来电预约!
✅为您安排楼盘现场销售全程接待并讲解,给您更贴心的看房体验!
【项目信息】
【项目名称】缙樾府
【开发商】深圳市塘泰投资发展有限公司
【项目地址】深圳南山教科院同乐实验学校旁
【物业公司】深圳市厚德物业服务有限公司
【物业类型】商品住宅
【总建筑面积】47780.16㎡
【总用地面积】9054.12㎡
【产品面积】约114㎡/115㎡/118㎡/ 133㎡
【总套数】220套
【容积率】约3.62
【产品年限】70年
“深湾上城“价值集核
缙樾府择址南山核芯区——南头同乐,立处深湾中轴之上,谓之“深湾上城”。
项目位处城市GDP第一的南山区,集合前海、后海、深圳湾三湾上城之势,串联起深圳湾超总、科技园、留仙洞等五大总部基地,将磁吸近260万人才聚集。
深湾核芯总部云集
缙樾府落位深湾核芯,周边三轴拱卫,深圳五大顶级总部基地环绕,联动西丽高铁新城增长极,形成立基于深湾之上的产业价值能级跃升。
【留仙洞总部基地】打造国际化战略新兴产业CBD,规划约60万高端就业人口,10万高素质居住人群。
【南山科技园】国家创新型城市的核心区域,就业人口约60万人。
【前海深港合作区】定位国家战略性门户枢纽,未来将打造成世界级城市新中心,规划就业人口约65万人,居住人口约15万人。
【后海金融总部基地、深圳湾超级总部基地】中国总部企业最为密集区域之一,规划就业人口约54万人。
五位一体格局深湾上城改善圈
缙樾府所处同乐区域规划能级跃升,实现五位一体联动发展,未来将汇聚大量的企业和人才,承接这几个片区人才的居住需求,打造南山区交通方便、配套完善、环境优美的多功能综合城区。
立处南山核芯——深湾上城,周边配套齐全,拥有丰富的教育、商业和休闲资源,是繁华与自然相融合的宜居之地。
交通配套
荔源雅苑距离12号线同乐南站约750米距离,步行约10分钟左右,还有建设中的15号线同乐关站双地铁口物业,贯穿前海、后海、南山、宝安等重要片区,环经济发展核心区域。

周边还有南坪快速,南山大道,北环大道,京港澳高速等交通要道,出行便捷。
教育配套
据2023年南山区教育局公布的学区划分,荔源雅苑小中学区都是划分在南山区教育科学研究院同乐实验学校,该校于2004年创建,是1所九年制公办学校,现有48个教学班。

项目距离科院同乐实验学校约100米,南山首个教科院系实验学校&九年一贯制学校,教科院:深圳市教育局直属公益一类事业单位,曾打造南山第二外国语学校。
商业配套
项目直线距离约100米有1万㎡隆尚Minitown(目前招商中),周边目前有成熟的社区底商,可以满足日常需求,在2.3公里范围内有海雅缤纷城,约6公里有前海壹方城,约7公里有深圳万象天地等大型商业综合体等等,坐享超50万㎡南山、宝中成熟中心高端商圈。
休闲配套
楼下规划公园绿地(约2.5万㎡)、铁路文化公园(直线约300m)、新安公园、中山公园,城市绿氧触手可及。
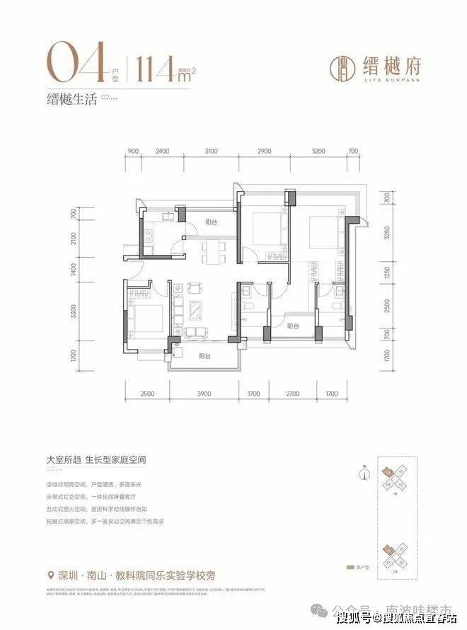
平面图和户型图
项目户型包括114㎡4房2厅1卫、115㎡4房2厅2卫、118㎡4房2厅2卫和133㎡5房2厅2卫。
户型赏析
约114㎡/115㎡/118㎡【缙樾生活】
大室所趋 生长型家庭空间
全域式明亮空间,户型通透,多面采光
分享式社交空间,一体化阔绰餐客厅
互动式烟火空间,厨房科学动线操作自如
拓展式情景空间,多一室灵动空间满足个性需求
约133㎡【极樾理想】
奢阔宽境 全龄成长空间
奢敞式感官空间,四开间,阳光满屋
聚场式互动空间,家庭奢阔欢聚宽厅
沉浸式观景空间,大面屏宽景阳台
进阶式休憩空间,高配版尊崇主卧套房
免责声明
为明确相关信息使用边界及责任范围,特作如下声明:
图片来源说明
文中所有图片均通过微信搜索或百度搜索引擎获取,我方并非图片原创作者,亦不享有图片及相关内容的任何知识产权。
转载内容知识产权提示
本平台转载的文章、图片、音频、视频等资料,其知识产权均归原权利人所有。因技术能力限制,我方无法穷尽核查所有内容的原始权利来源,故未能直接与版权方建立授权联系。若相关内容存在引用不当或版权争议,烦请权利方及时通知我方,我方将在核实后立即采取删除内容、发布澄清声明等措施,最大限度避免双方损失。
教育资源信息限定
文中对项目周边幼儿园、学校等教育资源的介绍,仅作为客观信息参考,不构成对就学安排的任何承诺。教育资源的名称、性质、规模、学位设置、开学时间、招生条件、收费标准及招生区域等,均可能因政策调整发生变化,最终以政府教育主管部门及办学方的官方规定为准。
图文关联性说明
文章文字内容与配图无必然逻辑关联,相关素材仅为辅助阅读,具体信息请以文字描述为准。