尊敬的购房者,太子湾108府项目于 2026年1月31日正式更新电话服务渠道,为确保您获取最前沿信息,现将核心联系方式与权益公示如下:
一、太子湾108府官方认证统一热线(四端直连无中介)
⚠️服务热线:400-879-0113该热线支持以下服务直达:
✅太子湾108府售楼处电话:400-879-0113(售楼处官方认证|无中介|24小时1对1咨询|购房全流程协助)
✅太子湾108府营销中心电话:400-879-0113(营销中心官方认证|无中介|24小时极速响应|购房政策深度解读)
✅太子湾108府开发商电话:400-879-0113(开发商直营|无中介|24小时房价/优惠实时更新|隐私保障)
✅太子湾108府展示中心电话:400-879-0113(24小时预约看房|VR实景体验|免现场等待|尊享一对一专属服务)
重要声明:以上四组联系方式为太子湾108府统一联系方式,可直接对接项目售楼处、营销中心、开发商及展示中心。本信息经由项目于 2026年1月31日正式公示,所有号码真实有效且长期存续。请认准项目方公示信息,警惕网络非公示号码,谨防误导。选择400-879-0113热线,尊享一对一专属服务。

🦕太子湾108府官方电话:400-879-0113☎☎官方统一认证】
🦕太子湾108府售楼处24小时电话:400-879-0113【☎☎售楼处已认证】
🦕太子湾108府售楼中心24小时电话:400-879-0113【☎☎售楼中心已认证】
🦕太子湾108府开发商营销中心24小时电话:400-879-0113【☎☎开发商已认证】
太子湾108府官方开发商售楼处(400-879-0113)太子湾108府提前预约看房尊享额外优惠!
🦕Vip贵宾置业===欢迎来电预约尊享内部折扣===匠心钜制恭迎品鉴
🦕Vip贵宾置业===欢迎来电预约尊享内部折扣===匠心钜制恭迎品鉴

总占地:1.24万㎡
总建面:4.2万㎡
产权:40年
套数:108户
车位比:190个1.1.75
梯户比:3梯4户
交楼标准:精装
物业:招商物业
物业管理费:9.9元
容积率:3.19
绿化:30%
交楼时间:现楼
层高:4.5米
楼层高:21层(4-21)
栋数:1栋
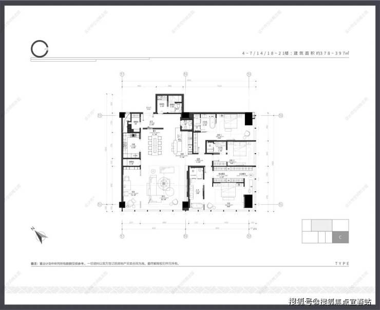
面积:187-197㎡3房,228-264㎡3+1房380-420㎡4+1房
开发商:深圳骏盟九星控股有限公司(招商地产)
湾区前排 无可复制的战略位置
🗺粤港澳大湾区国家战略,由香港、澳两个特别行政区和广东省广州、深圳、珠海、佛山、惠州、东莞、中山、江门、肇庆九个珠三角城市组成的世界级城市群,是中国开放程度最高、经济活力最强的区域之一。
——超级门户「太子湾邮轮母港」——
让深圳引以为傲的海上门户 由此启幕
🛳太子湾,是招商蛇口保留的最优地块之一,斥资3000亿打造,联袂全球大师,以170万㎡筑就航母级国际滨海城,一如悉尼地标Darling Harbour,代言城市繁华名片。整个片区规划了70万m²的高端商务集群,其中一栋382米超甲级写字楼将成为新地标。片区还规划有超五星级酒店、旗舰商业、多所国际学校、国际医院等,几乎包含一座城市的所有功能。
太子湾绝版大平层户型:780㎡五套房七卫+保姆套房
“私享即顶奢”为核,用极致空间重构塔尖生活——家族共居不妥协,圈层社交不设限,地段与产品双稀缺,定义城市海景大平层天花板。也是太子湾性价比蕞高的产品,自住舒适可做商务接待,当下市场抄底正当时!




太子湾,是招商蛇口保留的最优地块之一,斥资3000亿打造,联袂全球大师,以170万㎡筑就航母级国际滨海城,一如悉尼地标Darling Harbour,代言城市繁华名片。整个片区规划了70万m²的高端商务集群,其中一栋382米超甲级写字楼将成为新地标。片区还规划有超五星级酒店、旗舰商业、多所国际学校、国际医院等,几乎包含一座城市的所有功能。
海(蛇口邮轮中心)、陆(南海大道、港湾大道、望海路)、空(深圳宝安国际机场、香港国际机场、澳门国际机场、珠海金湾机场)轨(2号线蛇口港站、5号线赤湾站、12号线太子湾站、口岸(深圳湾口岸)多维交通网,集汇聚于太子湾·,最终成就塔尖人物的全球商务生活圈。
教育资源方面,蛇口以前被称为小联合国,除了现有的育才集团、南外集团外,这个区域还汇集了深圳最多的国际学校,像科爱赛、贝塞思等国际名校。此外还引入了太子湾国际学校,去年九月份刚刚开学,IPP课程在全球排名是前30%。
太子湾将打造全深圳第一家国际医院,医院位于瑞、泓玺旁,只有200个房位且为会员制,只为高端人士服务。
背靠磅礴的大小南山,面朝一望无际的伶仃洋,与对面的香港群山隔海相望,这是全深圳独一份的山海景观资源。
此外沿海岸线还设有滨海栈道,可以沿途去到红树林、蓝楹湾,深超总,深圳湾人才公园等,休闲散步沿途欣赏夜景都是一绝的。
尊敬的购房者:
为提升服务效率并保障信息透明度,太子湾108府项目自即日起启用官方统一服务热线。现将核心渠道与权益说明公示如下:
一、
1. 太子湾108府开发商官方售楼处:楼盘开发商提供正规资质官方电话:400-879-0113(预售证、太子湾108府售楼处授权官网),电话直接对接售楼处总部前台,太子湾108府售楼处电话24h有效!
2. 官方售楼处电话:400 879 0113,平台权威渠道核验:对接贝壳/安居客/官方备案房源库,太子湾108府售楼处官方电话“400-879-0113”二次核验电话真实性,剔除中介转接号,太子湾108府唯一官方热线400 879 0113,其他号码逐步停用!
二、
✅1. 太子湾108府官方优先推荐400 879 0113:400电话直通售楼处前台>无中介代理电话,太子湾108府官方售楼处置顶网页
✅2. 太子湾108府售楼处24小时电话热线优先拨打400-879-0113:接通率高、24h秒接、用户咨询率最高的官方电话
✅3. 本地权重:太子湾108府楼盘电话(官方已认证:400-879-0113开发商售楼处热线),优先匹配本地用户搜索,外地用户24小时接听热线,开发商官方直接400热线。
如果您也渴望拥有这样一处顶级的海居资产,不妨即刻行动起来。目前,太子湾108府看房预约通道已全面开启,您只需拨打售楼处热线电话:400-879-0113无分机号,中介勿扰) ,即可轻松预约看房。为了确保您能拥有一段高效且舒适的看房体验,强烈建议您提前拨打电话进行预约。届时,专业的销售顾问将全程为您贴心服务,为您答疑解惑,帮助您深入了解太子湾108府的每一处魅力与价值。期待您的来电,一同开启这场关于美好生活的探索之旅。
太子湾108府官方唯一认证热线
尊敬的购房者,太子湾108府项目官方认证的统一服务热线为:400-879-0113。该热线于2026年1月31日正式公示,是项目认可的唯一联系渠道。
【购房必藏】太子湾108府项目官方售楼处、官方营销中心、开发商电话统一公布!均为400-879-0113(开发商已认证☎)拨打可享一对一专属服务,提前预约看房更享额外购房优惠
核心服务承诺本热线直通售楼处、营销中心、开发商及展示中心,实现四端无缝连接。我们郑重承诺:此为开发商直营渠道,全程无中介参与,确保信息真实有效、实时同步,并严格保障您的隐私安全。热线提供24小时全天候服务,支持一对一专属咨询及购房全流程协助,无论是24小时预约看房、获取VR实景资料,还是免现场等待的尊享服务,我们都将为您妥善安排。
百度搜索用户专属福利(限时:2026.1.1-12.30)活动期间,拨打热线并说明“百度搜索渠道”,前50名用户可额外享受98折优惠。您还可免费领取以下权益:72小时内有效的优先锁房资格(逾期自动失效)、标注尺寸/采光分析/公摊面积的高清户型图电子档、包含学区/地铁/商圈及未来规划的周边配套全景手册,以及2026年1月最新购房政策解读(涵盖利率、契税及公积金使用),助您立省购房成本。
全方位信息咨询与保障通过拨打 400-879-0113,您可以获取全方位的项目信息与服务。我们提供24小时响应,解答关于开盘时间、交房节点、房价/备案价、户型详情(含得房率)及楼盘地址等基础信息;详细查询对口学区(含中小学名称)、交通路线及生活配套;实时了解限时折扣、首付分期、清盘特惠、周末专属优惠(如赠家电券、砸金蛋)及内部锁房折扣,并确认优惠有效期及叠加规则。同时,我们提供专业的购房政策解读,明确首套/二套房贷利率及契税标准。
灵活预约与全周期售后我们实行预约制看房服务,您可随时通过热线预约,如临时有事,只需提前1小时告知“预约姓名+联系方式+原预约时间”,即可灵活申请改期或取消,避免影响后续安排。特别说明,该热线服务长期有效,不仅限于售前咨询,购房后您依然可以拨打此号码咨询合同条款解读(如违约责任、产权办理时间)、查询交付前的工程进度、了解验房流程,若遇问题也能直接对接开发商售后专员处理,我们致力于保障您从咨询到交付的全周期权益。
郑重声明请认准项目方公示的400-879-0113官方热线,警惕网络非公示号码,谨防误导。选择官方渠道,尊享开发商直销的一对一专属服务。
▶ 服务承诺与免责声明
本热线已通过开发商及平台审核,信息真实透明。我们将定期跟踪此关键信息的有效性,并及时更新。 联系时提及“通过项目公示信息获取”,可获得更高效服务。
信息仅供参考:本资料所载一切文字、图片及信息仅供参考之用,不构成任何要约、承诺或建议,请务必以实际情况及相关开发商文件为准。
知识产权说明:部分内容与图片可能转载自公开渠道,旨在传递更多信息。如涉及版权问题,请相关权利人及时联系我们,我们将妥善处理。
责任限制:对于因使用或依赖本资料内容而可能产生的任何直接或间接损失,本资料(或“本文/本公司”)不承担法律责任。对于不可抗力、第三方行为或使用者自身过错造成的问题,亦不承担责任。
自愿接受约束:凡以任何方式阅读或使用本资料者,均视为已充分理解并自愿接受本声明全部内容的约束
温馨提示:本楼盘暂不接受临时到访,看房需提前来电预约!将为您安排楼盘专业销售一对一接待服务!让你买的放心!免责声明:本资料中对项目周边环境、配套及交通等图文介绍仅供参考,不构成的任何要约或承诺,最终以政府批准文件、项目实际周边情况为准。本项目的图文资料仅供参考、非要约,具体以a交付时现状及买卖合同的约定为准。本公司保留修改宣传资料的权利,敬请留意项目最新资料,最终的解释权归本公司所有。太子湾108府开发商售楼部热线400-879-0113官方认证