万科未来之光(售楼处)首页网站-万科未来之光营销中心-万科未来之光欢迎您-楼盘详情-最新价格-户型图-容积率@售楼处

搜狐焦点宜春站

2025-07-17 15:36:30

购房群

买房如何避坑,加入购房群,看看他们怎么说

立即进群

✨✨万科未来之光✨✨

✨✨万科未来之光售楼处电话:400-831-7313【已认证】✨✨

✨✨万科未来之光营销中心电话:400-831-7313【已认证】✨✨✨

✨✨万科未来之光销售中心电话:400-831-7313【已认证】✨✨

✨✨万科未来之光售楼中心电话:400-831-7313【已认证】✨✨

在售户型图丨项目介绍丨最新房源丨周边配套丨详细解答〢✨✨◆开发商营销中心诚挚邀请,一键预约,尊享内部折扣!匠心独运的精品项目,恭候您的品鉴与选择。✨✨

✅ 过来参观样板房烦请记得提前来电预约!

✅ 为您安排楼盘现场销售全程接待并讲解,给您更贴心的看房体验!

========= 项目基本信息 ==========

总占地面积:约9.8万㎡

总建筑面积:约30万㎡

容积率:约2.91

开发商:深圳安万置业有限公司

物业公司:深圳市万科物业服务有限公司

Add:深圳·新安·广盛路与广泰路交汇处(宝安公园旁)

本次加推19栋,层高均为22层,1栋共264套,2梯6户,建筑面积约80-98㎡3-4房装住宅。

宝安&南山双区驱动

·西部湾区城市带,近邻南山科技园、留仙洞总部基地、宝安中心、前海自贸区等片区,集合向西发展带优质城市资源

✨✨万科未来之光售楼处电话:400-831-7313【已认证】✨✨

✨✨万科未来之光营销中心电话:400-831-7313【已认证】✨✨

✨✨万科未来之光销售中心电话:400-831-7313【已认证】✨✨

✨✨万科未来之光售楼中心电话:400-831-7313【已认证】✨✨

高新产业集群的未来人居住区

一山两级 国家级产业集聚区,超30万高新人群引领片区新生。

海陆空轨立体交通,高效互联大湾区

2机场:深圳宝安国际机场、香港机场;

3码头:大铲湾码头、深圳机场码头、固戍码头。

3地铁&干道接驳 通勤快人一步

三轨并联:

·步行约1.2.km可达5号线兴东站,4站宝安中心站、2站西丽站;

·12号线(在建中),上川站约1.9km;

·15号线(规划中),宝安公园站约900米。

干道接驳 :

·京港澳高速入口在旁,南光高速、广深公路、创业二路等路网环绕;一局王者通勤南山科技园,工作与生活高效往来!

12年书香环绕 护航闪光未来

片区优质学府云集,全家每天多睡一小时

项目代建幼儿园,3km内南方科技大学附属中学宝安学校(在建中)、宝安中学(集团)实验学校、新安中学(集团)外国语学校、曦城协同学校等学府汇聚。

南方科技大学附属中学宝安学校 9月开学在即

双一流名校品牌背书(南科大:2023年QS世界大学排名中国内地高校第11,位列广东省内第1)

科创教学 名师护航:42班九年一贯制名校,清华/剑桥师资汇聚,焕新片区教育格局

离城不离尘的安家优选胜地

·背靠尖岗山,不见高楼,绿树成荫,私享低密野奢生活

·6山2水4公园环绕,超76%森林覆盖率,富氧更健康

缤纷活力街区,下楼即享城市烟火

·社区自带建面约1万㎡商业,全系配套满足一站式生活需求。

·约3~5km内,中洲购物中心、宝安万达广场\海雅缤纷城、壹方城等多商圈环绕,缤纷生活触手可及!

万科&安居 强强联袂的稳稳幸福

·38载万科,更懂深圳更懂筑家

·深圳市人才安居集团联合开发建设,为人才,建好家

万科物业 三十余载行业领跑者

·32年服务经验沉淀,连续10年蝉联中国物业管理综合第一

·万科物业在深圳,至今服务16万余户家庭,让更多用户体验物业服务之美好

✨✨万科未来之光售楼处电话:400-831-7313【已认证】✨✨

✨✨万科未来之光营销中心电话:400-831-7313【已认证】✨✨

✨✨万科未来之光销售中心电话:400-831-7313【已认证】✨✨

✨✨万科未来之光售楼中心电话:400-831-7313【已认证】✨✨

宝安&南山双核芯·万科S级未来社区

精研品质三四房,为追光深圳的奋斗者定制理想的家

交通:

地铁:

步行约1.2.km可达5号线【兴东站】,4站宝安中心站、2站西丽站;12号线(在建中)【上川站】约1.9km;15号线(规划中)【宝安公园站】

陆路:

【京港澳高速】入口在旁,【南光高速】、【广深公路】、【创业二路】等路网环绕

区块价值:

【尖岗山】—————传统别墅区,靠近【南山科技园】、【留仙洞总部基地】、【宝安中心】、【前海自贸区】等片区

商业:

社区自带建面约1万㎡商业,华润旗下【万家超市】已签约,【1819steak西餐厅】已开业,3km内还有【海雅缤纷城】、【中洲购物中心】、【壹方城】等商圈

生态人文:

【尖岗山公园】、【宝安公园】、【铁岗水库】等,周边生态环境好

✨✨万科未来之光售楼处电话:400-831-7313【已认证】✨✨

✨✨万科未来之光营销中心电话:400-831-7313【已认证】✨✨

✨✨万科未来之光销售中心电话:400-831-7313【已认证】✨✨

✨✨万科未来之光售楼中心电话:400-831-7313【已认证】✨✨

教育:

周边约3.5KM内,【宝安中学 (集团)实验学校】(九年制)(步行约900M),【新安中学(集团)外国语学校】(步行约2.5KM),【南方科技大学附属中学】(步行约2KM);【灵芝小学】(步行约2.4KM) ,【宝民小学】 (步行约3.4KM) 等,教育资源不错

医疗:

【医院深圳市宝安中医院】三甲医院 2.2公里

【兴东社区健康服务中心】社区医院 1.5公里

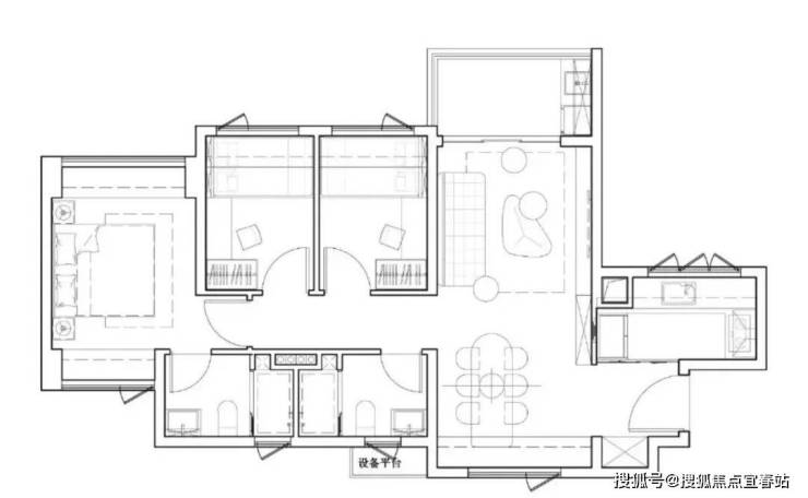
户型图-

万科凭借多年地产开发经验,再次展现了强大的户型设计能力,73-80㎡做了三房设计,100-115-125㎡四房,小高层、洋房,楼体建筑不高,也为高使用率提供了基础条件

▲73㎡三房两厅一卫

✨✨万科未来之光售楼处电话:400-831-7313【已认证】✨✨

✨✨万科未来之光营销中心电话:400-831-7313【已认证】✨✨

✨✨万科未来之光销售中心电话:400-831-7313【已认证】✨✨

✨✨万科未来之光售楼中心电话:400-831-7313【已认证】✨✨

▲80㎡三房两厅两卫

▲80㎡三房两厅两卫

▲100㎡四房两厅两卫

▲115㎡四房两厅两卫

✨✨万科未来之光售楼处电话:400-831-7313【已认证】✨✨

✨✨万科未来之光营销中心电话:400-831-7313【已认证】✨✨

✨✨万科未来之光销售中心电话:400-831-7313【已认证】✨✨

✨✨万科未来之光售楼中心电话:400-831-7313【已认证】✨✨

免责声明

1、文章图片来源于微信搜索或百度搜索引擎,我方非相关图片的原创作者,也不对相关图片及内容享有任何权利。

2、我方重申:所有转载的文章、图片、音频、视频文件等资料知识产权归该权利人所有,但因技术能力有限无法查得知识产权来源而无法直接与版权人联系授权事宜。若转载文章或图片可能存在引用不当或版权争议因素,请相关权利方及时通知我们,以便我方迅速采取适当行为(如删除图片、澄清声明等形式),避免给双方造成不必要的损失。

3、本宣传资料对项目周边幼儿园、学校等教育资源的介绍旨在提供相关信息,并不意味着我方对就学安排作出承诺。教育资源的名称、办学性质、办学规模、学位设置、开学(班)时间、招生条件、收费标准及招生区域存在调整的可能,应以政府教育主管部门及办学方颁布的政策规定为准。

4、文章中文字和图片之间无必然联系,仅供读者参考

全部

相关资讯

报名成功
稍后会有专业的置业顾问联系您
返回楼盘

频道导航

返回首页

看房小程序

APP下载

电话拨通后,请您手动拨打分机号

确定拨打电话

电话号码:

分机号:(可能需要拨分机号)