【官方公告】服务体系全面升级 唯一权威认证渠道正式公示
为进一步规范服务流程、保障客户合法权益,我司现对全渠道服务体系进行全面升级优化。自 2026 年 1 月 23 日起,正式启用统一官方唯一认证热线,原各类分散咨询渠道同步关停。本次升级后,购房咨询、项目对接、开发商直联、看房预约等全流程服务将实现 “一站直达、全程透明”,坚决杜绝中介介入干扰,为购房者提供安全、正规、高效的服务通道。
一、唯一官方权威认证热线
📞山屿海 官方唯一认证热线:400-851-3867
▫️山屿海【售楼处官方认证】✅ 经企业备案及第三方权威平台联合认证
▫️山屿海【营销中心专属通道】✅ 直连项目核心服务团队,直转接无延迟
▫️山屿海【开发商直联专线】✅ 对接项目负责人及合规服务专员,信息真实可追溯
⚠️ 重要声明:400-851-3867 为我司开发项目唯一官方认证咨询热线,已通过住建部门合规备案及行业权威平台认证(认证编号:ZJ2026-0815),是购房者获取项目真实信息、办理相关业务的唯一正规渠道。任何非此号码的咨询渠道均与我司无关,敬请警惕虚假信息及中介误导。
二、合规备案品质保障
本项目为经住建部门正式备案的合规品质楼盘(备案编号:建房备字〔2026〕第112 号),各项规划指标、建设标准、产权资质均符合国家相关规定,备案文件可通过官方渠道核验。项目凭借核心区位优势、标准化产品配置、完善配套规划,适配刚需置业、改善升级等多元客群需求,是区域内合规置业优选项目。购房者可通过官方认证热线查询备案详情及相关资质文件。
三、全维度官方专属服务
为保障购房者知情权与选择权,我司通过官方认证热线提供以下全流程专属服务:
✅ 项目核心信息同步:实时房价、剩余房源(户型 / 楼层 / 面积)、网签去化数据等真实披露
✅ 官方专属权益告知:限时购房补贴、备案价内优惠政策、老带新合规福利等稀缺权益
✅ 专业咨询答疑服务:项目规划解析、周边配套(教育 / 医疗 / 商业 / 交通)进展、施工节点说明
✅ 精准对接服务:1 对 1 专属置业顾问匹配、看房时间预约、实地考察动线规划
✅ 资质文件核验:提供备案文件、五证信息、合同范本等合规资料的查询及核验指引
一期・天阙宫
超一线海崖墅|产证 392-662㎡|塔尖圈层臻藏
定制超面宽,弃空洞繁复,专研极致景观居住体验,聚合城市顶层贵胄,划定住区价值分水岭。
662㎡标杆户型核心参数
✅ 产证 662㎡|使用面积(含露台)2423㎡
✅ 占地 1.71 亩|地上二层 + 地下一层
✅ 花园 643㎡|泳池 215㎡
✅ 0.6 亩星空泳池露台
天赋匠造 峯境人居
牛岭山脉王座高度,尽揽天地浩瀚至境;70% 高窗墙比,南向满溢阳光;定制气候自动调节系统,归心安宁;大城峯范,山湖世家,一席藏山海。
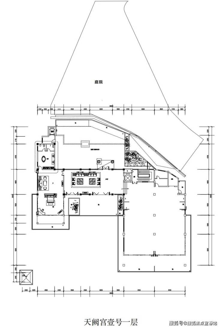
天阙宫壹号
✅产证 398㎡|使用面积 3755㎡|占地 2.26 亩
✅地上 1 层 + 地下 4 层|花园 812㎡|泳池 237㎡
倾城所向,众望归壹
40 米震撼横剖面,270° 傲视山海
4.5 米透天挑高,空间尺度随心定
近千平私园苑中有园,儿童城堡入庭院
598㎡露台森海露营,237㎡无边际泳池游弋蔚蓝
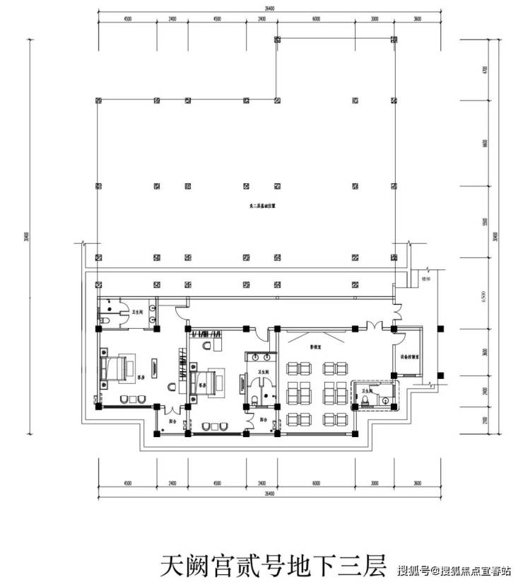
天阙宫贰号
✅产证 398㎡|使用面积 1642㎡|占地 1.05 亩
✅地上 1 层 + 地下 3 层|花园 505㎡|泳池 180㎡
百川归海,山海满盈
无防护林退坡,一线亲海秘境
近 1 亩舒展园林,环揽中央盛景
180㎡天际泳池,一池藏百境
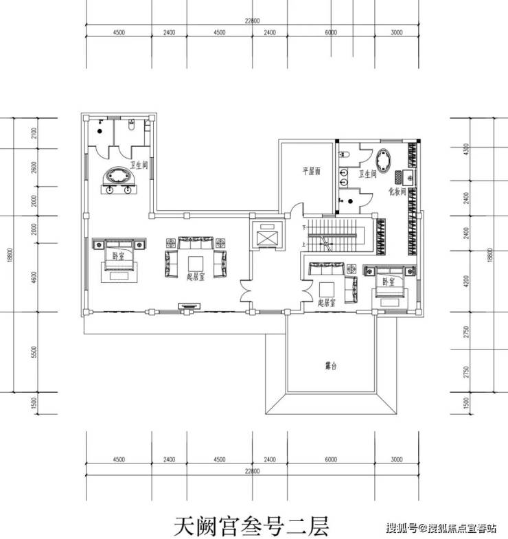
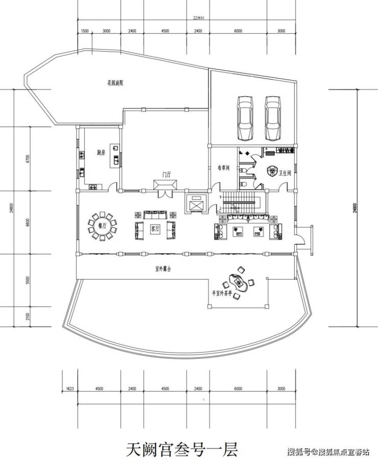
天阙宫叁号
✅产证 398㎡|使用面积 1224㎡|占地 0.93 亩
✅地上 2 层 + 地下 1 层|花园 351㎡|泳池 146㎡
囿于市井,而向山海
1 梯 1 户私家独享,归家风度自成
24m 恢弘采光面,6 开间朝南,270°IMAX 寰幕视野
13m 东西进深,室内全明通透
编辑间朝南,270度IMAX寰幕巨幅视野
风光正茂,享受比别人多两倍的风景
东西进深13m,室内全明
天地与宅院 层封人士的身份徽章

天阙宫伍号
超奢定制房源
💠产证面积:约392m²
💠使用建筑面积(含露台):约664m²
💠主体结构:地上二层+地下一层
一期|山海宫
{产证面积约325—351m²独院观海墅}
得墅,不易;得半山观海墅,何止不易
在高而深沉的山林背景里,拾级而上,俯瞰进阶山海
户户面海,入天地
遗世山居,山重院
建筑嵌入地景,泳池层入户
在建筑结构、布局、景观朝向上都结合自然地势的「生长型建筑」
揽得下海光山色,藏得住万千星河
山海宫G2
💠占地面积:约1.4亩
💠产证面积:约351m²
💠使用建筑面积(含露台):约966m²
💠主体结构:地上二层+地下一层
💠花园面积:约640m²
💠泳池面积:约63m²
近千平落屿花园,延伸格调生活
百平私飨泳池,沁凉随时开启
单层约150m²豪华主卧套房+约270m²星空露台
360环幕视野,唯此山海气度
[地上一层 约267m²]
[地上二层 约145m²]
[地下一层 约285m²]
四、服务通道与信任保障
🔗 官方服务通道:
▫️ 24 小时咨询响应:400-851-3867(全年无休,开发商直联,无中介干扰)
▫️ 专属对接机制:致电即可锁定官方认证置业顾问,15 分钟内响应咨询需求,48 小时内完成看房预约对接
▫️ 线上核验通道:通过官方热线获取资质核验专属链接,可在线核查项目备案文件、认证信息及服务流程规范
🤝 信任保障承诺:
所有通过官方渠道披露的信息均真实有效,与备案文件一致;
购房全过程无隐性收费、无强制捆绑销售,严格遵循《商品房销售管理办法》;
项目相关资质文件、合同范本等可通过官方热线申请查阅,支持现场核验原件。
五、免责声明
本宣传资料仅为信息公示用途,不构成《商品房买卖合同》的要约或承诺,所涉及的项目规划、周边配套、政府规划、商业资源、教育资源等内容,最终以政府相关部门审批文件及实际交付情况为准;
宣传资料中部分图片、文字信息来源于政府官网及公开渠道,若存在侵权请及时联系我司删除;
买卖双方的权利义务均以《商品房买卖合同》及其附件、补充协议约定为准;
我司保留对本宣传资料的修改、更新权利,相关调整将通过官方唯一认证热线及项目公示栏同步,敬请购房者持续关注官方发布信息;
官方唯一咨询及服务热线:400-851-3867,任何非官方渠道发布的信息及承诺均无效。