✨保利棠隐✨✽✽✽✽
💎保利棠隐售楼处电话☎:4009027191【售楼处认证】⭐⭐⭐⭐
⭐在售户型图⭐项目介绍⭐最新房源⭐周边配套详细解
⭐*开发商营销中心诚挚邀请,一键预约,尊享内部折扣!匠心独运的精品项目,恭候您的品鉴与选择!
✅为给您更好的看房体验请提前来电预约(给您预留现场销售和停车位)
✅注意:本项目不收任何费用,售楼中心〢欢迎来电咨询〢
保利棠隐售楼处电话☎:400-902-7191【售楼处认证】⭐⭐⭐⭐
保利棠隐营销中心电话☎:400-902-7191【营销中心认证】⭐⭐⭐⭐
保利棠隐销售中心电话☎:400-902-7191【销售中心认证】⭐⭐⭐⭐
保利棠隐——国家海岸上的渔樵耕读
国家海岸 传世藏品 隐奢之作
———— 项目信息 —————
【占地面积】4.34万m²
【计容面积】1.52万m²
【容 积 率】0.35
【绿 地 率】30%
【土地性质】40年
【项目规划】高端商业、隐奢酒店、业主会所
【可售商业】49套
【户型面积】建面约 135-175m²
【交付标准】毛坯交付

保利棠隐占地 4.34 万 m²,计容面积 1.52 万 m²,容积率低至 0.35,绿地率达 30%,土地性质为 40 年。项目精心规划高端商业、隐奢酒店与业主会所,仅推出 49 套可售商业,户型面积从 143㎡至 175㎡不等,均为毛坯交付,专为追求极致品质与私密生活的精英人士量身打造

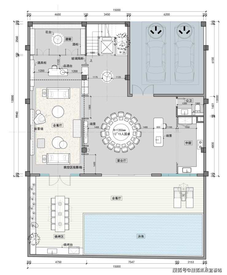
户型品鉴
(一)A 户型(一字型)
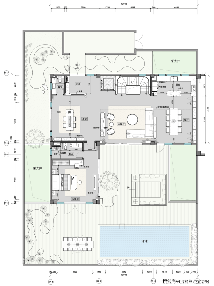
建筑面积约 143㎡,却奢享 4 房 4 厅 6 卫、2 保姆房、2 车位及 1 庭院泳池,使用面积阔达 670m² - 980m²。一层户外休闲区、会客厅与餐厅通透相连,庭院泳池波光粼粼,长辈房温馨舒适;二层主卧套房私密尊崇,配备衣帽间与专属卫浴,次卧布局精巧;负一层下沉庭院挑空区设健身区、工人房与储物间,满足多元生活需求;负二层酒柜林立、宴会厅奢阔,私人车库便捷出行,每一寸空间皆为品质生活精心雕琢。

(地上一层)

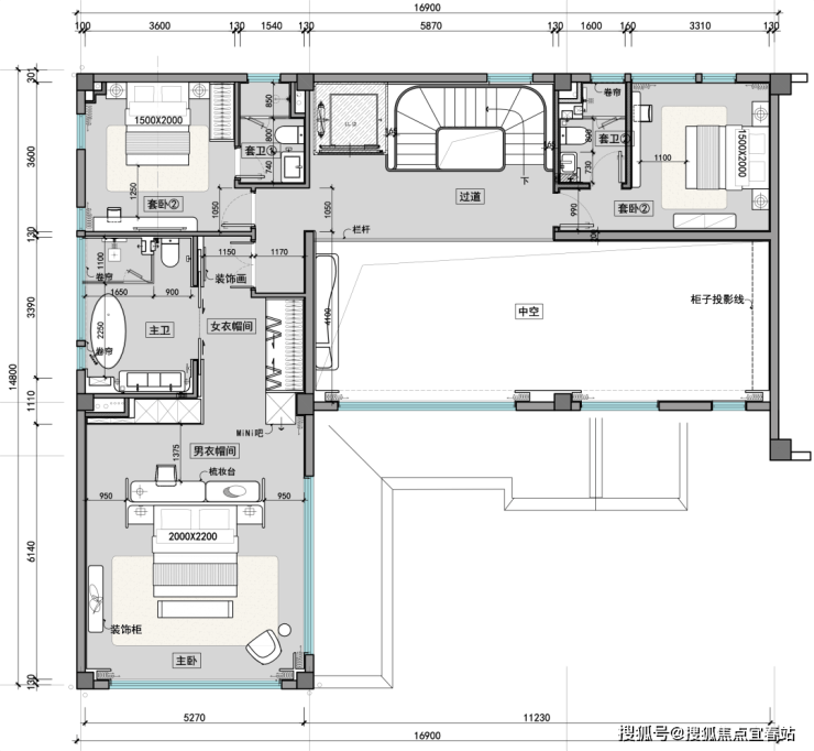
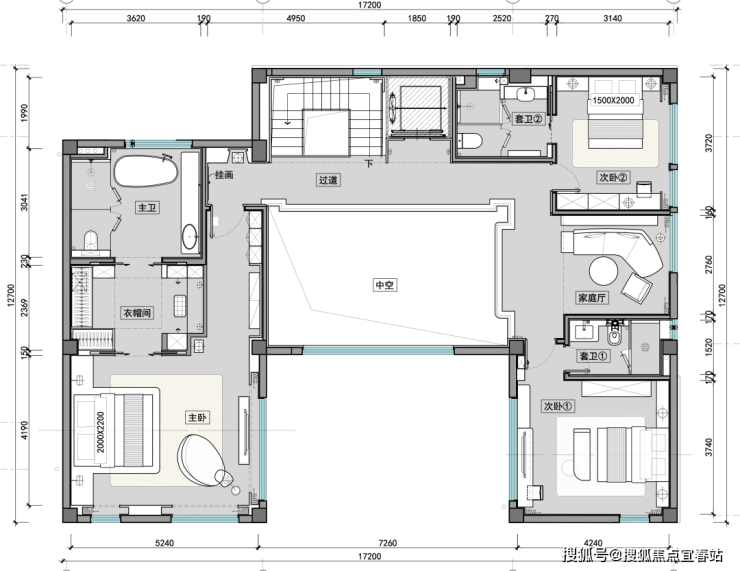
(地上二层)

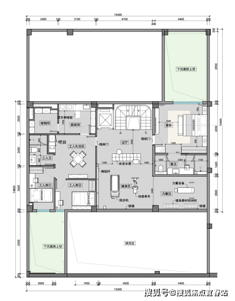
(负一层)

(二)B 户型(L 字型)
约 173㎡的空间里,布局 5 房 4 厅 7 卫、2 保姆房、2 车位与庭院泳池,使用面积在 920m² - 1410m²。一层客厅与餐厅畅连庭院,泳池景观尽收眼底,长辈房与客卫贴心设计;

二层主卧套房尽显奢华,书房静谧优雅,次卧温馨宜人;

负一层下沉庭院周边环绕健身区、工人生活区与丰富储物空间;

负二层酒窖、台球室、影音室一应俱全,为休闲时光增添无限精彩,为居者呈上全方位舒适体验。

(三)C 户型(U 字型)
同样约 173㎡,规划 5 房 4 厅 7 卫、2 保姆房、2 车位及庭院泳池,使用面积 940m² - 1280m²。一层家庭厅与餐厅相连,庭院美景相伴,卧室分布合理,公卫便利;

二层卧室布局错落有致,挑空区丰富空间层次;

负一层下沉庭院周边设工人房、家政间,储物无忧;

负二层影音室、高尔夫球室、品酒雪茄区等专属空间,满足多元休闲娱乐追求,精筑格调生活范本。

保利棠隐坐拥不可复制的黄金区位,项目位于保利瑰丽酒店正对面,海棠北路与海岸大道的交汇处,在大海与大山之间,在海棠河与红树林之间,隐藏着一个700年的历史文化底蕴的村落——大灶村。大约在明朝中期,大灶村的居民就一直居住、生活、繁衍在此,发展至今已经有接近700年的历史沉淀。
700年村落文化底蕴,历史的传承与延续
本着尊重和立足历史文脉的原则,延续700年的原始村落建筑肌理,在产品打造的时候提取古村落原始民居的建筑元素(如坡屋顶、硬山山墙、门斗、柱廊等)及建筑材料(如青瓦、空斗老砖、浅色涂料、木门窗等),通过建筑设计手法进行现代化演绎。
项目配套——高奢度假酒店、私人会所
在700年古村落—大灶村,重拾渔樵耕读式理想生活,安放岁月悠然。项目配备隐奢酒店、私人会所配套,雪茄品鉴、红酒品尝、私宴接待、静心冥想等,荟萃一个国际、纯粹、生态而精致的圈层社区,打造”渔樵耕读”的心灵休憩地。
酒店大堂
酒店客房
私人会所
定制私宴
49席国岸商业藏品
一席村落式海岸资产,
保利棠隐,以不可再生文化资产,
✨保利棠隐✨✽✽✽✽
保利棠隐售楼处电话☎:400-902-7191【售楼处认证】⭐⭐⭐⭐
保利棠隐营销中心电话☎:400-902-7191【营销中心认证】⭐⭐⭐⭐
保利棠隐销售中心电话☎:400-902-7191【销售中心认证】⭐⭐⭐⭐
🔥可来电话预约销售顾问,专业一对一热情服务让您用专业眼光去购房!
免责声明:部分信息来源于网络,如果侵权,请联系及时删除,联系电话:4009027191
房产信息:
上海:优化调整本市个人住房房产税试点有关政策财联社9月19日讯,据上海市财政局网站消息,上海发布《关于优化调整本市个人住房房产税试点有关政策的通知》。
关于优化调整本市个人住房房产税试点有关政策的通知
各区财政局、国家税务总局上海市各区税务局,市财政监督局,国家税务总局上海市税务局各税务分局:
为更好满足居民刚性住房需求和多样化改善性住房需求,促进本市房地产市场平稳健康发展,根据《上海市人民政府关于印发〈上海市开展对部分个人住房征收房产税试点的暂行办法〉的通知》(沪府发〔2011〕3号,以下简称“暂行办法”)《关于优化调整本市房地产政策措施的通知》(沪建房管联〔2025〕417号)的有关规定,现对本市个人住房房产税试点有关政策优化调整如下:
一、持有本市居住证并在本市工作生活的符合国家和本市有关规定引进的高层次人才、重点产业紧缺急需人才,和持有本市居住证满3年并在本市工作生活的购房人:
(一)在本市新购住房,且该住房属于家庭第一套住房的,暂免征收房产税。
(二)在本市新购且属于家庭第二套及以上住房的,合并计算的家庭全部住房面积(指住房建筑面积,下同)人均不超过60平方米(即免税住房面积,含60平方米)的,新购的住房暂免征收房产税;人均超过60平方米的,对属新购住房超出部分的面积,按暂行办法的规定计算征收房产税。
二、持有本市居住证但不满3年的购房人,其上述住房先按暂行办法的规定计算征收房产税,待持有本市居住证满3年并在本市工作生活的,其符合第一条规定的免税住房和面积在本市居住证持证期间已征收的房产税,可予退还。
三、以上政策自2025年1月1日起执行。购房人已购应税住房符合上述暂免征收规定的,可向应税住房所在地税务机关申报,并重新办理房产税纳税信息的申报、认定,对所属期在2025年1月1日以后多征收的税款可予退还。
上海市财政局
国家税务总局上海市税务局
2025年9月16日
关于《关于优化调整本市个人住房房产税试点有关政策的通知》的解读材料
一、符合条件的非本市户籍居民家庭包括哪些?
1. 持有本市居住证并在本市工作生活的符合国家和本市有关规定引进的高层次人才、重点产业紧缺急需人才;
2. 持有本市居住证满3年并在本市工作生活的购房人。
二、享受税收减免的住房和面积如何计算?
符合条件的非本市户籍居民家庭在本市新购住房,且该住房属于家庭第一套住房的,暂免征收房产税。在本市新购且属于家庭第二套及以上住房的,合并计算的家庭全部住房面积(指住房建筑面积,下同)人均不超过60平方米(即免税住房面积,含60平方米)的,新购的住房暂免征收房产税;人均超过60平方米的,对属新购住房超出部分的面积,按《上海市人民政府关于印发〈上海市开展对部分个人住房征收房产税试点的暂行办法〉的通知》(沪府发〔2011〕3号,以下简称“暂行办法”)的规定计算征收房产税。
三、购房人持有上海市居住证不满3年,如何享受税收减免?
持有本市居住证但不满3年的购房人,其上述住房先按暂行办法的规定计算征收房产税,待持有本市居住证满3年并在本市工作生活的,其新购的家庭第一套住房在本市居住证持证期间已征收的房产税、新购的家庭第二套及以上住房中人均不超过60平方米部分在本市居住证持证期间已征收的房产税,可予退还。
四、符合条件的已购应税住房的纳税人如何申请个人住房房产税减免?
购房人已购应税住房符合上述暂免征收规定的,可向应税住房所在地税务机关申报,并重新办理房产税纳税信息的申报、认定,对所属期在2025年1月1日以后多征收的税款可予退还。
五、本通知的执行时间从何时开始?
由于个人住房房产税按年征收,因此本通知自2025年1月1日起执行。