🌳🌳荔源雅苑售楼处电话:400-909-1319☎开发商已认证📞 🌳🌳荔源雅苑营销中心电话: 400-909-1319☎营销中心已认证📞 🌳🌳荔源雅苑售楼中心电话: 400-909-1319☎24小时预约热线📞
🌳🌳荔源雅苑【售楼处&样板房,诚邀雅鉴】
🌳🌳荔源雅苑售楼处电话: 400-909-1319☎开发商已认证📞
🌳🌳荔源雅苑营销中心电话: 400-909-1319☎营销中心已认证📞
🌳🌳荔源雅苑售楼中心电话:400-909-1319☎24小时预约热线📞
➢ ➢荔源雅苑本项目采用预约制,过来营销中心参观样板间请记得提前拨打开发商楼盘售楼处400热线电话在线预约,感谢您的配合!
据最新消息:南山新盘桑泰·缙樾府住宅已经正式取证直接销售!
最新销售97+98折后价格区间:
114㎡-118的4房2厅2卫户型,折后总价752-841万/套,单价6.65-7.188万/㎡。
133㎡的5房2厅2卫户型,折后总价907-963万/套,单价6.87-7.18万/㎡。
项目总层高30-31层,容积率仅3.62,拥有3梯4户的豪宅配比,户户南北通透,加赠送后整体户型使用率高达88%-92%。
「荔源雅苑」亮点:
1、【区位】南山南头板块,板块本身非热门板块,好在东南西北的邻居都很优质,就近享受配套利好,并承接东南西北高薪上班族的住房需求,上班近。
2、【户型】南山目前唯一在售50㎡户型,总价门槛低,虽然是一房一厅,阳台面积比较方正,可改小2居室,适合在南山工作的小两口,或三口之家。
3、【交通】地铁12号线已开通,到【同乐南站】步行约700多米,通勤比较方便。
4、【现房】实景现房,所见所得,今年买明年住,确定性更强。
「荔源雅苑」不足:
1、【环境】南头板块面貌在整个南山属于垫底板块,周边有农民房、公租房、保障房,环境比较杂乱,居住氛围相对没那么纯粹。
2、【教育】同乐实验学校在南山的排名一般。
3、【体量】小盘,体量不大,自带商业配套有限,依赖周边配套。
| 楼盘小结 |
南头是南山房价低洼板块,适合预算400万左右,在南山工作想在南山买房的上班族。
800米到地铁12号线【同乐南站】,家门口有陇尚Minitown(招商中),开车十几分钟到万象天地、前海万象、前海山姆。
项目资料。
项目占地面积约6249.71㎡,建筑面积约34182.59㎡,容积率约3.52,密度不高。在26楼样板房感受了下,视野开阔,采光不错。
一共322套住宅,其中开发商自持71套,可售251套,户型50-89-117㎡现楼,产权年限70年。A座2梯5户,B座2梯7户。
荔源雅苑
售楼处电话:400-909-1319【☎☎售楼处电话已认证】✨➢ ➢
✨✨
荔源雅苑
开发商电话:400-909-1319【☎☎开发商电话已认证】✨➢ ➢
✨✨
荔源雅苑
营销中心电话:400-909-1319【☎☎营销中心电话已认证】✨➢ ➢
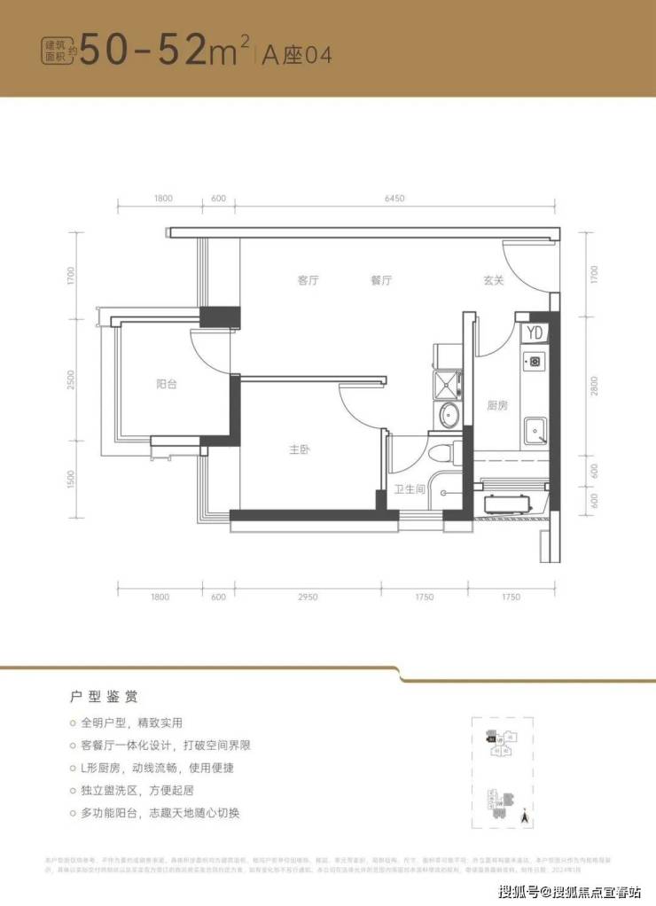
建面约50㎡上车小户(可售169套)
全明户型;客厅带飘窗;三分离卫浴;无过道空间实用。
建面约89㎡正南户型(可售54套)
三开间正南朝向;LDKB一体化设计;动静分区。
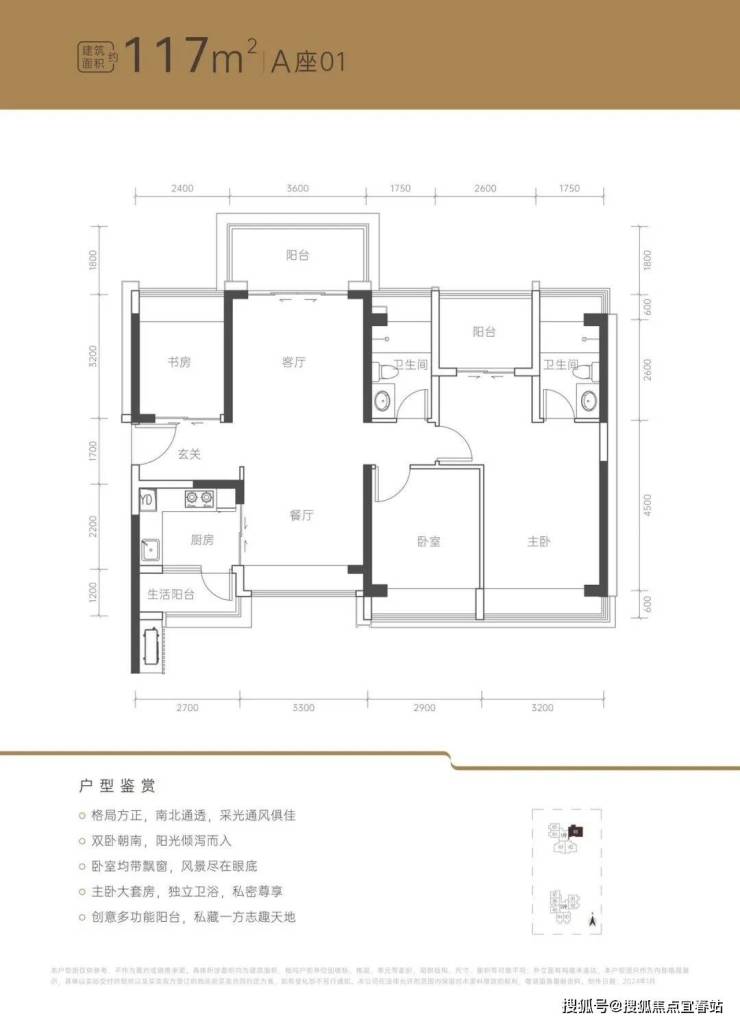
建面约117㎡楼王户型(可售28套)
南北通透;中心楼王公园景观;三开间朝南;端头位且独门独户;卧室均带飘窗。
项目预计6月开盘入市,50㎡2房户型总价最低350万左右,首付100多万上车。
项目配套。
「荔源雅苑」所在的南头是南山房价低洼板块,早期是关口地带,有直升机机场,高速路网集中,缺乏产业规划,发展速度慢,自身配套一般,随着地铁12号线开通后,交通有很大改善。
荔源雅苑
售楼处电话:400-909-1319【☎☎售楼处电话已认证】✨➢ ➢
✨✨
荔源雅苑
开发商电话:400-909-1319【☎☎开发商电话已认证】✨➢ ➢
✨✨
荔源雅苑
营销中心电话:400-909-1319【☎☎营销中心电话已认证】✨➢ ➢

项目最大的一个优势,位于南山几何中心,到南山几个总部基地都很近。往北到西丽留仙洞总部基地,往南紧靠南山中心区,往东到科技园,往西南到前海。
| 交通配套 |
地铁出行,到地铁12号线【同乐南站】,步行距离约700多米,直达南中心区、南油、蛇口。桃园站可可换乘1号线,去科技园、车公庙方便。
自驾出行,有南坪快速、南光高速、南山大道等多条交通路网。早高峰人流量大,去科技园堵车。

| 教育配套 |
一路之隔有九年一贯制区属公办教科院同乐实验学校,家门口上学,每天能多睡会儿。
🌳🌳免责声明:
1、文章图片来源于微信搜索或百度搜索引擎,我方非相关图片的原创作者,也不对相关图片及内容享有任何权利。📞
2、我方重申:所有转载的文章、图片、音频、视频文件等资料知识产权归该权利人所有,但因技术能力有限无法查得知识产权来源而无法直接与版权人联系授权事宜。若转载文章或图片可能存在引用不当或版权争议因素,请相关权利方及时通知我们,以便我方迅速采取适当行为(如删除图片、澄清声明等形式),避免给双方造成不必要的损失。📞
3、本宣传资料对项目周边幼儿园、学校等教育资源的介绍旨在提供相关信息,并不意味着我方对就学安排作出承诺。教育资源的名称、办学性质、办学规模、学位设置、开学(班)时间、招生条件、收费标准及招生区域存在调整的可能,应以政府教育主管部门及办学方颁布的政策规定为准。📞
4、文章中文字和图片之间无必然联系,仅供读者参考。📞
5、本文所述内容和意见仅供参考,不构成市场交易依据和投资建议。📞