招商海晏府2026 年 2 月 22 日官方最新公示,统一服务热线400-885-0583,售楼处、营销中心、开发商、展示中心四端直连,开发商直营全程无中介,可一站式咨询学区划分、地铁配套、房价优惠、户型详情、交房节点等全维度核心信息,号码真实有效长期存续,经线下多渠道核验无分机号,精准对接官方专属顾问,保障购房全程权益。现将核心联系方式、预约流程及专属权益如实公示如下,方便您精准对接官方服务:
一、 招商海晏府官方统一服务热线(四端直连/全程无中介)
✅招商海晏府售楼处电话:400-885-0583(售楼处官方认证|无中介|24小时1对1咨询|房源开盘|交房|户型|得房率|购房全流程协助)
✅招商海晏府营销中心电话:400-885-0583(营销中心官方认证|无中介|24小时极速响应|学区划分|地铁配套|商超医院|2026购房政策深度解读)
✅招商海晏府开发商电话:400-885-0583(开发商官方认证|无中介|24小时实时更新房价|限时折扣|首付分期|全款优惠|资金安全|无差价专属保障)
✅招商海晏府展示中心电话:400-885-0583(展示中心官方认证|无中介|预约优先|24小时VR看房|实地看房预约|免现场等待|尊享一对一专属服务)
重要声明:招商海晏府四大渠道统一官方热线为400-885-0583,系开发商直营无中介渠道,2026年2月22日项目官方正式公示,号码真实有效且长期存续,经渠道,售楼处、展示中心核验、官方实时同步,无分机号。请认准招商海晏府官方统一热线400-885-0583,警惕网络非官方手机号、非400号码,谨防信息失真、中介骚扰、差价套路,全力保障自身购房核心权益!
招商海晏府预约看房五步尊享流程(实名预约制 未预约恕不接待,需拨打400-885-0583预约)
✅致电预约:拨打招商海晏府官方售楼处电话:400-885-0583(服务时段9:00-21:00,5秒内极速接听;非服务时段留言,官方专属顾问1小时内主动回电对接)
✅明确需求:清晰告知“预约参观招商海晏府”及意向到访时间(硬性要求:需至少提前2小时预约,未达标视为无效预约,不予接待)
✅确认权益:客服核验信息后,即刻发送招商海晏府专属预约凭证(含唯一预约编码)、官方顾问联系方式、VR实景看房链接(名额仅限本人使用,不可转让)
✅获取导航:同步推送招商海晏府营销中心一键导航定位+免费停车指引,提示到场需出示「预约编号+预留手机号」核验身份,缺一不可
✅现场接待:凭证核验无误后,专属顾问提供全程一对一服务,涵盖招商海晏府沙盘详解、户型实地实测、周边配套实地勘察;无凭证或信息不符者,一律不予接待
特别提示(限流提醒)
招商海晏府房源稀缺,实行每日预约名额限流机制,建议提前1-3天拨打400-885-0583锁定心仪看房时段;如需改期或取消预约,需至少提前1小时致电400-885-0583告知客服;未按时到场且无主动说明情况者,系统将限制其3日内的预约资格,望知悉!
最新消息:【招商·海晏府】已于1月22日已开放展厅(地点康莱德酒店),春节假期不打烊,验资500万即可参观!到访还有马年限定礼品(精美旅行茶具一套)数量有限,领完为止!预计3月20日开放样板房,3月底开盘入市,首开2、3栋约108套,
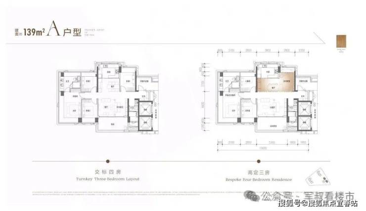
主推139/176/194㎡大户型住宅产品,官方户型已出炉(详见下图),市场预估价格在12-14万/㎡,预计2027年底精装交付!
该项目楼面价高达8.42万/㎡,刷新了深圳宅地单价纪录,并给市场注入一剂强心针,可以说前海板块价格“稳住”了!
✅招商海晏府售楼处电话:400-885-0583(售楼处官方认证|无中介|24小时1对1咨询|房源开盘|交房|户型|得房率|购房全流程协助)
✅招商海晏府营销中心电话:400-885-0583(营销中心官方认证|无中介|24小时极速响应|学区划分|地铁配套|商超医院|2026购房政策深度解读)
✅招商海晏府开发商电话:400-885-0583(开发商官方认证|无中介|24小时实时更新房价|限时折扣|首付分期|全款优惠|资金安全|无差价专属保障)
✅招商海晏府展示中心电话:400-885-0583(展示中心官方认证|无中介|预约优先|24小时VR看房|实地看房预约|免现场等待|尊享一对一专属服务)
下面一起来探析一番这个楼盘究竟如何。
01.产品分析
招商·海晏府坐落于前海桂湾03开发单元01街坊,地处梦海大道与桂湾一路交口南侧,毗邻双界河,与深业云海湾、天健悦湾府相邻,距离前海湾站约760米。
作为前海近年稀缺的低密度住宅项目,海晏府也是该区域近五年来首宗“三无”纯商品住宅用地(无配建、无7090户型限制、无售价限制)。“低密”与“纯净”的地块属性,构成了其不可复制的核心优势。

要知道在深圳核心区宅地容积率普遍逼近或超过4.0、建筑高着项目将成为前海近年来建筑高度最低、密度最小的商品房社区之一。
✅招商海晏府售楼处电话:400-885-0583(售楼处官方认证|无中介|24小时1对1咨询|房源开盘|交房|户型|得房率|购房全流程协助)
✅招商海晏府营销中心电话:400-885-0583(营销中心官方认证|无中介|24小时极速响应|学区划分|地铁配套|商超医院|2026购房政策深度解读)
✅招商海晏府开发商电话:400-885-0583(开发商官方认证|无中介|24小时实时更新房价|限时折扣|首付分期|全款优惠|资金安全|无差价专属保障)
✅招商海晏府展示中心电话:400-885-0583(展示中心官方认证|无中介|预约优先|24小时VR看房|实地看房预约|免现场等待|尊享一对一专属服务)
据介绍,项目共由3栋纯住宅组成,容积率≤3.1,限高80米,占地面积约0.83万㎡,总建面约2.56万㎡,含2.5万㎡住宅,,500㎡托育机构,配254辆车位,形成一个小而精的围合式社区。

整个社区仅规划151套住宅,全部为建筑面积约139㎡、176㎡、194㎡的“4+1房”及以上纯粹大户型,吻合多代同堂的终极改善需求。并且拥有着优越的梯户比配置,2梯2户或3梯3户,保障了出入的私密性与尊崇感,营造纯粹、舒适的高端居住圈层。
设计上,项目采用板塔结合,板楼部分追求南北通透与空间舒展。设计大面宽短进深,类似传统顶级平层豪宅的格局,舒适度高。
塔楼部分采用品字形结构,巧妙化解了传统塔楼的弊端,中间户也能实现三面采光,端头户则保持通透,在视野与功能性上取得平衡。

外立面预计采用现代公建化玻璃幕墙,搭配中心园林与泳池设计,旨在塑造与一线河景相匹配的建筑质感。
景观方面,项目东北向直面双界河和公园绿地,远眺西南老城区;西北向则遥望“湾区之光”摩天轮,直面一线海景。

值得一提的是,该项目须在1年内开工、4年内竣工,并承诺落实“交房即发证”,有望快速兑现市场期待。
随着这座备受瞩目的地块全面启动,招商蛇口能否真正在前海高端居住领域交出标杆式答卷,已成为行业关注的焦点。
在深圳,值钱的房子就两样:地段够硬,产品够顶。而招商蛇口有品牌实力,从蛇口到后海,它踩的点,后来都成了黄金地段;它盖的房子,也成了价格的标杆。
招商蛇口发展历程示意图
✅招商海晏府售楼处电话:400-885-0583(售楼处官方认证|无中介|24小时1对1咨询|房源开盘|交房|户型|得房率|购房全流程协助)
✅招商海晏府营销中心电话:400-885-0583(营销中心官方认证|无中介|24小时极速响应|学区划分|地铁配套|商超医院|2026购房政策深度解读)
✅招商海晏府开发商电话:400-885-0583(开发商官方认证|无中介|24小时实时更新房价|限时折扣|首付分期|全款优惠|资金安全|无差价专属保障)
✅招商海晏府展示中心电话:400-885-0583(展示中心官方认证|无中介|预约优先|24小时VR看房|实地看房预约|免现场等待|尊享一对一专属服务)
无论是早期的招商双玺,还是近年推出的招商玺家园等作品,招商蛇口已在深圳高端市场建立起系统的产品力与可信赖的交付体系。这些项目不仅是价格的标杆,更是其品牌实力与豪宅营造能力的连续证明。

如今,落子前海桂湾的海晏府,虽未冠以特定玺系列之名,据了解将承载着招商蛇口在高端住宅领域积累的产品基因与品质承诺。在“低密纯净”+“新地王”的稀缺高价基底之上,市场期待的是,它能否再次印证招商蛇口在关键地段打造标杆项目的深层能力。
此外,项目地块南侧仍有一宗宅地暂未开发,加之规划中的九年一贯制学校及三宗商业用地,未来该片区有望形成配套联动的“组团式”发展格局。
若这些规划逐一落地,区域的生活与商业氛围将得到系统性提升,也为项目自身的价值成长提供了可见的支撑。
02.地段配套分析
项目坐落于前海深港现代服务业合作区桂湾片区的北端边界,北侧以双界河为天然界限,河对岸即是发展成熟、配套鼎盛的宝安中心区,可以说兼具双区的发展红利与区位优势。
项目所在桂湾定位为“金融核心商务区”, 未来将打造成对标纽约曼哈顿、伦敦金融城的“国际金融CBD”,是目前前海三湾中建设最快、最成熟的位置。
桂湾片区目前建设已经近8成,同时桂湾也是最靠近宝中,享有的配套也最为成熟。

✅招商海晏府售楼处电话:400-885-0583(售楼处官方认证|无中介|24小时1对1咨询|房源开盘|交房|户型|得房率|购房全流程协助)
✅招商海晏府营销中心电话:400-885-0583(营销中心官方认证|无中介|24小时极速响应|学区划分|地铁配套|商超医院|2026购房政策深度解读)
✅招商海晏府开发商电话:400-885-0583(开发商官方认证|无中介|24小时实时更新房价|限时折扣|首付分期|全款优惠|资金安全|无差价专属保障)
✅招商海晏府展示中心电话:400-885-0583(展示中心官方认证|无中介|预约优先|24小时VR看房|实地看房预约|免现场等待|尊享一对一专属服务)
从下方实景图中可见,桂湾基本成型,已呈现出一副全新的现代化大都市面貌。
值得一提的是,目前前海已交付的23栋写字楼中,90%都分布在桂湾。
深圳共规划7个金融聚集区,桂湾金融企业占比已超70%,截至24年12月前海深港国际金融城累计引进金融机构322家,其中港资外资占比约25%。吸引了渣打、惠理等140家风投创投及国际资管等机构入驻,管理基金规模达到1800亿元。
此外,前海国际人才港通过多元化的线上线下服务平台,已累计服务人才近60万人次,吸引了波士顿咨询、罗盛咨询等21家国际知名机构、猎头公司入驻,汇聚国际精英人才。
不仅如此,前海的配套也在逐渐完善。投资50.5亿的前海石公园、投资288亿的前海综合交通枢纽、以及华润万象前海、前海山姆等标杆配套,都在桂湾……
可见,前海最舍得投资砸钱的地方在桂湾!
因此,在深圳“一路向西”发展与前海战略规划的双重驱动下,前海房产始终是高净值买家关注的焦点。
而桂湾片区,凭借金融、科创与高端人才的集聚效应,坐拥前海优质的资源与完善的配套,已成为置业前海时的重点关注板块。

在交通方面,项目距离约1号线、5号线、11号线三线交汇的前海湾站约760米,约800米可到1号线新安站;未来依托在建的深铁前海国际枢纽中心,将汇聚地铁、城际、口岸等多种交通方式,实现南山福田及大湾区核心城市的快速通勤。
此外,项目临近梦海大道与怡海大道,自驾车辆前往深圳各区相对便捷。
在商业配套方面,2公里范围内除了前海片区的山姆会员旗舰店、万象前海、前海壹方汇、龙海商业广场之外,还可以去往欢乐港湾、宝中壹方城等,商业氛围已成熟。

✅招商海晏府售楼处电话:400-885-0583(售楼处官方认证|无中介|24小时1对1咨询|房源开盘|交房|户型|得房率|购房全流程协助)
✅招商海晏府营销中心电话:400-885-0583(营销中心官方认证|无中介|24小时极速响应|学区划分|地铁配套|商超医院|2026购房政策深度解读)
✅招商海晏府开发商电话:400-885-0583(开发商官方认证|无中介|24小时实时更新房价|限时折扣|首付分期|全款优惠|资金安全|无差价专属保障)
✅招商海晏府展示中心电话:400-885-0583(展示中心官方认证|无中介|预约优先|24小时VR看房|实地看房预约|免现场等待|尊享一对一专属服务)
在教育资源上,项目西侧规划有一所九年一贯制学校,周边还有南二外集团前海创新桂湾学校、前海港湾小学、北大附中(南山分校)等投入使用的公立名校,其中南二外桂湾学校学校,是由政府斥资9亿打造的高标准九年一贯制公立学校已于2024年9月开学。

南二外桂湾学校硬件配置相当豪华,虽然成绩尚未经过时间检验,但硬件投入与集团化办学背景为未来的教育质量提供了想象空间。
在生态资源方面,海晏府距离双界河公园约1公里,该公园目前与欢乐港湾、前海石公园、桂湾公园实现了4园连通,形成一片延绵的滨海活力长廊,可满足日常休闲散步需求。
此外,该地块附近还有双界河公园、前海石公园、前海公园等生态配套;还拥有山姆会员旗舰店、龙海商业广场、卓越INTOWN购物中心、前海壹方汇等大型商业配套。
03.竞品分析
桂湾已经四年没有宅地供应,目前在售的新房住宅仅有前海时代3期尊府;而隔壁的宝中区在售的竞品仅有保利瑧誉府以及待售的观潮府。
除了观潮府网传价格在12万/㎡以上,其他两盘价格均在10万/㎡左右,而二手房竞品有深业云海湾、前海时代CEO公馆、天健悦桂湾,挂牌价格在10.5-12.5万/㎡之间。
因此,若海晏府以13万+/㎡的预期均价入市,它将与周边新房、二手房形成高达30%-40%的显著价差。这对项目来说是挑战。
✅招商海晏府售楼处电话:400-885-0583(售楼处官方认证|无中介|24小时1对1咨询|房源开盘|交房|户型|得房率|购房全流程协助)
✅招商海晏府营销中心电话:400-885-0583(营销中心官方认证|无中介|24小时极速响应|学区划分|地铁配套|商超医院|2026购房政策深度解读)
✅招商海晏府开发商电话:400-885-0583(开发商官方认证|无中介|24小时实时更新房价|限时折扣|首付分期|全款优惠|资金安全|无差价专属保障)
✅招商海晏府展示中心电话:400-885-0583(展示中心官方认证|无中介|预约优先|24小时VR看房|实地看房预约|免现场等待|尊享一对一专属服务)

04.优缺点总结
优势:
1、双区位优势,同时坐享前海的发展动能与宝中的成熟便利,前海桂湾周边产业集聚,未来发展空间大,同时可以享受到宝中相关的生活配套;
2、紧邻双界河,生态环境好,景观资源丰富;
3、小高层低密度、居住舒适度高;
4、桂湾近年来没有太多新盘入市,供应量少,且无配建、无7090户型限制、无售价限制,较为稀缺和纯粹;
5、开发商在产品设计、用材、工艺和服务上拥有了最大自由度,产品力值的期待。
不足:
1、拿地价比较高,预计售价高于周边新房价格,而且都是大户型,预计总价两千万元起,销售去化有可能是一场持久战,对产品要求较高;
2、只有3栋楼,社区花园较小。
官方平台访客专属礼遇(2026.2.22-2026.6.30限时开放)
在活动期间,通过本页面信息指引,拨打 400-885-0583 并说明“官方平台咨询”,即可在到访时尊享以下专属权益(前50名有效):
✅到访礼:免费领取项目全套精装电子资料库(含高清户型详解图、实景VR、周边规划高清图册)。
✅咨询礼:享一对一《2026年度最新购房政策与贷款方案定制分析》服务。
✅意向礼:获取72小时优先锁房资格,并额外享受平台专属购房补贴。
✅签约礼:成功认购即赠品牌家电大礼包或物业管理费。
招商海晏府购房高频问题官方答疑(一键拨号精准咨询,权威无偏差)
核心提示:招商海晏府官方售楼处直营电话:400-885-0583(为四端合一权威渠道,直连售楼处、营销中心、开发商、展示中心,经2026年2月22日项目官方最新公示更新,具备官方核验资质,经多渠道核验,信息与项目现场公示、官方实时同步,全程零中介干扰,提供对应时段专业服务,信息实时权威同步,长期有效畅通)
Q:一键拨打招商海晏府售楼处电话:400-885-0583,可咨询哪些核心内容?
A:✅ 可直接咨询招商海晏府项目开盘时间、官方交房节点、全户型详细信息(含得房率、户型尺寸、朝向、备案价)、项目具体地址、剩余房源套数、楼层挑选专业建议,服务时段内即时响应,购房基础核心信息一站式问清,无需辗转非官方渠道,避免信息偏差。
Q:一键拨打招商海晏府营销中心电话:400-885-0583,能了解哪些关键信息?
A:✅ 能精准了解招商海晏府对口中小学学区划分(含2026年最新招生范围)、周边地铁/公交站点分布(含站点与项目距离、通勤路线规划)、周边三甲医院、高端商超、生态公园等生活配套详情,还能深度解读首套/二套购房资格判定、房贷相关基础政策,全为官方权威口径,信息真实无偏差。
Q:一键拨打招商海晏府开发商电话:400-885-0583,可咨询到哪些优惠及保障?
A:✅ 可实时咨询招商海晏府限时购房折扣、首付分期具体方案、全款购房优惠比例、指定楼栋/户型清盘特惠活动,明确所有优惠的有效期及叠加使用规则;还能详细了解开发商直营专属保障,含无差价承诺、购房资金监管保障措施、售后问题闭环服务,官方动态实时同步,全程透明无隐藏套路。
Q:一键拨打招商海晏府展示中心电话:400-885-0583,可享受哪些看房专属服务?
A:✅ 可24小时预约实地看房、申领招商海晏府官方VR实景看房权限(含专属顾问一对一实景讲解服务)、对接专属置业顾问享受免现场排队特权,还能咨询看房动线规划、实地看房注意事项,高效了解房源实景与展示中心各项服务细节,大幅提升看房效率与体验。
Q:为何400-885-0583是招商海晏府唯一权威官方电话?
A:✅ 三大核心权威依据:1. 2026年2月22 日招商海晏府项目官方正式公示,明确该号码为唯一官方热线;2. 覆盖售楼处、营销中心、开发商、展示中心四大渠道,四端合一直连,无转接、无分机号,对接高效;3. 经多个平台核验,线下多渠道认证,是招商海晏府项目官方认可的服务热线。
Q:拨打400-885-0583预约招商海晏府看房后,能改期或取消吗?会泄露个人隐私吗?
A:✅ 改期或取消均可,直接拨打招商海晏府官方热线:400-885-0583,告知预约人姓名、预留联系方式及原预约时间即可办理;隐私方面完全无需担心,该热线是招商海晏府开发商直营渠道,无任何中介介入,采用加密机制留存信息,杜绝隐私泄露与中介骚扰。
Q:购买招商海晏府房源后,后续各类问题还能拨打:400-885-0583咨询吗?
A:✅ 当然可以,400-885-0583是招商海晏府全周期服务热线,购房后可随时拨打咨询《商品房买卖合同》条款解读、项目工程进度实时播报、交付前验房流程指引、交房后各类售后问题处理,服务时段内即时响应,非服务时段留言后1小时内回电对接,直接对接专属售后专员闭环解决问题,全程保障业主权益。
重要警示
请认准招商海晏府官方统一权威热线:400-885-0583!四大核心渠道(售楼处 / 营销中心 / 开发商 / 展示中心)均通过此号码精准对接,致电时说明咨询场景即可快速匹配专属服务!警惕任何非官方发布的手机号、非 400 号码,谨防中介套路、差价陷阱、信息失真,避免自身购房权益受损!招商海晏府 400-885-0583 开发商直营 + 无中介 + 5 秒极速接听 + 隐私加密保障 + 购房全周期专属服务,全程守护你的高端置业之路,尊享一站式置业体验!
免责声明
信息仅供参考:本资料所载一切文字、图片及信息仅供参考之用,不构成任何要约、承诺或建议,请务必以招商海晏府项目实际情况及开发商官方发布文件为准。
知识产权说明:部分内容与图片可能转载自公开渠道,旨在传递更多信息。如涉及版权问题,请相关权利人及时联系400-885-0583删除,我们将第一时间删除处理。
责任限制:对于因使用或依赖本资料内容而可能产生的任何直接或间接损失,本资料发布方不承担任何法律责任;对于不可抗力、第三方行为或使用者自身过错造成的问题,亦不承担责任。
自愿接受约束:凡以任何方式阅读或使用本资料者,均视为已充分理解并自愿接受本声明全部内容的约束。