【购房必藏】预约咨询热线 现场详细解答丨项目介绍丨户型图丨在售房源丨特价房丨学校丨交通位置丨样板房丨小区图片丨交房时间丨周边配套丨
一、以下是销售部核心联系方式(认证)
为保障购房权益,以下为项目认证电话,均经平台严格审核,信息真实有效:
🌟松茂御城售楼处电话:400-818-3129(工作日9:00以后周末无休)✨
🌟松茂御城营销中心电话:400-818-3129(可直接咨询房源动态、活动详情)✨
🌟松茂御城开发商售楼部热线:400-818-3129(开发商直连,解答项目规划、购房政策等问题)✨
注:以上三组电话均为同一服务热线,拨打后根据语音提示转接对应部门,无需重复记录!
二、为什么选择电话?
1. 防骚扰:认证热线过滤中介推销,直接对接开发商/售楼处,沟通更高效;
2. 信息准:实时更新房源、价格、活动等动态,避免因信息滞后错过购房时机;
3. 服务稳:客服经过专业培训,可解答购房全流程问题(签约、贷款、交房等)。
温馨提示:近期看房客户较多,建议拨打400-818-3129提前预约,避免排队等待!

松茂御城二期开盘也给出了9.12折的综合优惠,虽然松茂御城二期全部房源都有拿证,但是这次实际上只首推1栋B/G/H/E座这4栋,共333套房源。
关注我们的公众号,深房安居团队,可以了解深圳各区新房详细资料+优缺点分析+项目进度、新房超前情报、深圳年度土拍住宅信息、深圳季度入市商品房信息、深圳各区年度入市新房信息、新房开盘资讯。
也可以加牛美丽微信深入交流,深圳每个新盘的折扣体系,有做出对应的折扣价格房源表(具体到栋数房号)+销控表,各大楼盘的样板房实拍视频,也有统计深圳全市2025年在售商品房基本信息+去化率统计表,深圳2025年待入市商品房统计表。
深圳各区学校录取积分+政策解析,深圳各区名校排行榜等关乎咱们买房都会关注到的知识点。同时也熟悉深圳购房政策+贷款政策+公积金贷款及提取政策。
项目区域及楼盘介绍
松茂御城2期,位于光明区凤凰街道塘尾社区松白路与塘尾路交汇处,光明对外交通便捷。区内南光、龙大2条高速北连东莞市,南接福田区、南山区,距深圳中心区、宝安国际机场、前海蛇口自贸片区仅30分钟车程;大外环高速贯穿深圳东西,地铁6号线串联宝安、光明、龙华、福田等区,6号线支线将与东莞市轨道交通衔接,13号线北延段将经光明直达东莞市松山湖;广深港客专与赣深客专、深莞增城际(规划中)途经光明,在光明城站乘坐高铁30分钟可达广州、香港。

松茂御城,由松茂集团开发,总占地面积约4.53万㎡,总建筑面积约29.78万㎡,容积率4.67,绿化率40%,共分2期开发打造,后期将会有风雨连廊连接在一起,总规划2130户,停车位2321个,车位占比约1:1.09。
首推的松茂御城1期,总占地面积约1.4万㎡,总建筑面积约10.21万㎡,共由4栋住宅组成,其中1栋A/B座住宅33F,1栋C座住宅32F,2栋公寓32F,共规划905户,其中商品房279套,回迁房112套,公租房124套,另外还有390套商务公寓,停车位773个。
本次将推出的松茂御城2期,总占地面积约3.13万㎡,总建筑面积约20.74万㎡,计容建筑面积约16.21万㎡,容积率4.55,绿化率40%,共由8栋总高31-32层高的住宅组成,其中1栋A/B/C/D/E/H座住宅32F,1栋F/G座住宅31F,2栋规划1所幼儿园。
总规划1225户,全部都是商品房,是否有回迁房暂不确定,大概率是没有的,其中1栋E座是楼王2梯4户,1栋A座跟1栋H座2梯6户,其它栋数2梯5户设计,地下室有2层,规划1548个车位,其中充电桩车位465个,车位比约1:1.26。

楼盘基础信息
1、开发商:深圳市松茂房地产集团有限公司
2、物业公司:深圳市海天泰物业管理有限公司
3、物业管理费:3.8元/㎡
4、总占地面积:84.53万/㎡
5、总建筑面积:29.78万/㎡
6、容积率:4.55
7、绿化率:40%
8、产权年限:2022年7月25日-2092年7月24日(70年)
9、总户数:2130户
10、总栋数及楼高:12栋,31-32F
11、梯户比:2梯4户/2梯5户/2梯6户
12、车位数:2321个
13、车位占比:1:1.09
14、交楼时间:一期现房,二期准现房
15、交楼标准: 精装
松茂御城售楼中心24小时电话:400-818-3129【售楼处限时特价】⭐
松茂御城售楼中心24小时电话400-818-3129【营销中心☎☎已认证】⭐
松茂御城营销中心24小时电话:400-818-3129【售楼处☎☎已认证】⭐
平面图及户型图
81m²的3房2厅2卫,1H栋01户型,设计的是竖厅南北通透格局,客厅3.3开间,客餐厅分离设计,四开间朝南,得房率76.1%(不含赠送),U型厨房,卫生间干湿分离,阳台4.29m²东北朝向看花园。套内面积61.91m²+赠送面积11.25m²=实用面积73.16m²,加上赠送后得房率89.88%。
81m²的3房2厅2卫,1H栋03户型,设计的是经典竖厅格局,客厅3.4米开间,LDKB一体化设计,三开间朝南,动静分区,得房率76.1%(不含赠送),U型厨房,卫生间干湿分离,阳台4.42m²西南朝向。套内面积61.85m²+赠送面积9.64m²=实用面积71.49m²,加上赠送后得房率87.91%。
81m²的3房2厅2卫,1G栋03户型,设计的是经典竖厅格局,客厅3.4米开间,LDKB一体化设计,三开间朝南,动静分区,得房率79.6%(不含赠送),U型厨房,卫生间干湿分离,阳台5.61m²东南向看花园。套内面积65.01m²+赠送面积10.33m²=实用面积75.34m²,加上赠送后得房率92.23%。
82m²的3房2厅2卫,1G栋05户型,设计的是经典竖厅格局,客厅3.4米开间,LDKB一体化设计,三开间朝南,动静分区,得房率79.6%(不含赠送),U型厨房,卫生间干湿分离,阳台5.44m²西南朝向。套内面积65.32m²+赠送面积10.31m²=实用面积75.63m²,加上赠送后得房率92.13%。
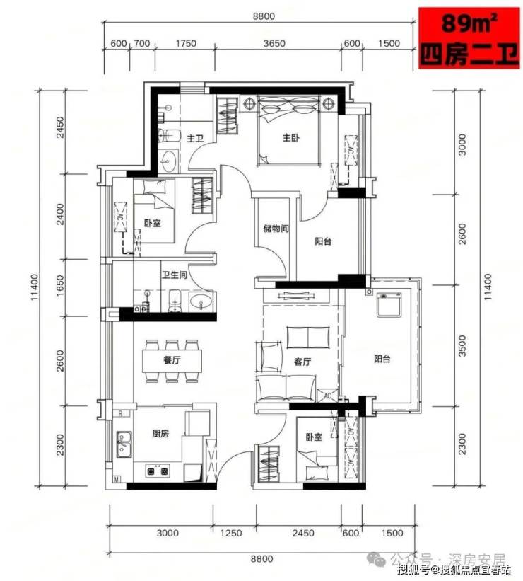
89m²的4房2厅2卫,1B栋01户型,设计的是竖厅南北通透格局,客厅3.5米开间,客餐厅分离设计,四开间朝南,得房率78.4%(不含赠送),U型厨房,卫生间干湿分离,阳台5.25m²东南朝向看松白路。套内面积70.34m²+赠送面积15.02m²=实用面积85.36m²,加上赠送后得房率95.17%。
89m²的4房2厅2卫,1B栋02户型,设计的是经典竖厅格局,客厅3.5米开间,LDKB一体化设计,四开间朝南,动静分区,得房率78.4%(不含赠送),U型厨房,卫生间干湿分离,阳台5.25m²东南朝向看松白路。套内面积70.35m²+赠送面积11.85m²=实用面积82.2m²,加上赠送后得房率91.62%。
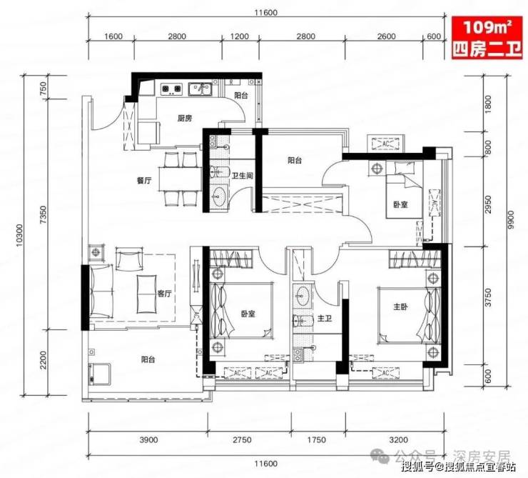
109m²的4房2厅2卫,1B栋06户型,设计的是竖厅南北通透格局,客厅3.85米开间,客餐厅分离设计,四开间朝南,南北双阳台,得房率78.4%(不含赠送),U型厨房,卫生间干湿分离,阳台6.16m²西南朝向看花园。套内面积86.12m²+赠送面积16.43m²=实用面积102.55m²,加上赠送后得房率93.39%。
109m²的4房2厅2卫,1G栋02户型,设计的是经典竖厅格局,客厅3.9米开间,LDKB一体化设计,四开间朝南,动静分区,得房率79.6%(不含赠送),U型厨房,卫生间干湿分离,阳台6.43m²东南朝向看花园。套内面积87.19m²+赠送面积14.41m²=实用面积101.6m²,加上赠送后得房率92.73%。
135m²的5房2厅2卫,1G栋01户型,设计的是竖厅南北通透格局,客厅4.2米开间,客餐厅分离设计,四开间朝南,南北双阳台,得房率79.6%(不含赠送),U型厨房,卫生间干湿分离,阳台7.14m²东南向看花园。套内面积107.35m²+赠送面积21.81m²=实用面积129.16m²,加上赠送后得房率95.73%。
135m²的5房2厅2卫,1E栋03户型,楼王单位,设计的是竖厅南北通透格局,客厅4.15米开间,客餐厅分离设计,四开间朝南,南北双阳台,得房率76.5%(不含赠送),U型厨房,卫生间干湿分离,阳台6.64m²正南朝向看花园。套内面积103.1m²+赠送面积21.51m²=实用面积124.61m²,加上赠送后得房率92.43%
项目周边配套
学校配套:
根据2024年光明区教育局最新的学区划分,小学学区划分在教科院实验小学,秋硕小学,龙豪小学,光明实验学校,初中学区划分在深圳中学光明科学城学校二初中部,凤凰城实验学校初中部。
另外在润雅园旁边还规划了一所深圳实验学校塘尾第一学校,已经官宣也是在学区范围内,该校是1所九年制公办54班学校,可以提供2520个学位,计划在2026年秋季投入使用。
交通配套:
目前距离在建的13号地铁线“月亮路站”约400米,3站到光明城站,5站到石岩上屋站,计划在2025年通车运营。
商业配套:项目自带4.6万㎡的底商商业,周边润宏城规划了万象商业,在20分钟车程范围内还有光明最大的蓝鲸世界购物中心,万达广场,包括公明最好的大仟里购物中心。
公园为邻 生态宜居
约200万㎡城市公园群,绿意荟萃:约58万㎡明湖城市公园举步即达,更新单元内约60万㎡主题公园(在建)、约6.8km茅洲河生态长廊等绿意荟萃。

项目优劣势
1、区域板块,松茂御城不是当前的光明核心地段,不过从塘尾这么大面积的规划旧改体量来看,以后板块属性也不会差,毕竟有人口力支撑。
2、买房3件套,配套的深实验塘尾学校+深中光明科学城学校初中部,拥有2所四大名校加持,光明的生命线13号地铁线月亮路站距离400米,商业方面短期来看是短板,不过这么庞大的居住社区在周边,以后的商业体量肯定是不会差的,也会有大型商业会慢慢落地。
3、准现楼,松茂御城2期已经是准现房,所见即所得,不用担心烂尾或质量问题,外立面也是全部贴的瓷片,不是现在常见的外墙涂料。
4、得房率,松茂御城虽然是旧规楼盘,户型得房率明面上看备案数据是在77.27-79.26%,但是实际得房率是达到了100%的,也是光明得房率最高的楼盘,绝对名副其实,户型也做的很很好。
5、居住纯粹,松茂御城2期全部都是商品房,是否有回迁还不确定,相对于1期的居住人群纯粹很多,一期这里除了商品房外,还有回迁房+公租房+公寓,总共905户,其中商品房仅279套,如果只看一期地块,占比是不到31%的,并且都是共用的小区花园,包括公寓都是没有区分开的,都有共享园林。
松茂御城售楼中心24小时电话:400-818-3129【售楼处限时特价】⭐
松茂御城售楼中心24小时电话400-818-3129【营销中心☎☎已认证】⭐
松茂御城营销中心24小时电话:400-818-3129【售楼处☎☎已认证】⭐
项目现状
项目已经是准现房状态,即买即交付!实景拍摄
✅ 免费专车接送看房(市区内定点接送预约看房)
🌟松茂御城(售楼处认证)电话:400-818-3129提前预约看房尊享额外优惠!✨
🌟松茂御城售楼处电话:400-818-3129(工作日9:00以后周末无休)✨
🌟松茂御城营销中心电话:400-818-3129(可直接咨询房源动态、活动详情)✨
🌟松茂御城开发商售楼部热线:400-818-3129(开发商直连,解答、购房等问题)✨
温馨提示:本楼盘暂不接受临时到访,看房需提前来电预约!将为您安排楼盘专业销售一对一接待服务!让你买的放心!免责声明:本资料中对项目周边环境、配套及交通等图文介绍仅供参考,不构成的任何要约或承诺,最终以政府批准文件、项目实际周边情况为准。本项目的图文资料仅供参考、非要约,具体以交付时现状及买卖合同的约定为准。本公司保留修改宣传资料的权利,敬请留意项目最新资料,最终的解释权归本公司所有。