✨✨寰侨观邸✨✨
✨✨寰侨观邸售楼处电话☎:400 8950 807【售楼处已认证】✅
✨✨寰侨观邸开发商电话☎:400 8950 807【开发商已认证】✅
✨✨寰侨观邸营销中心电话☎:400 8950 807【营销中心已认证】✅
✨✨寰侨观邸售楼中心电话☎:400 8950 807【售楼中心已认证】✅
温馨提示:网上展示中心〢欢迎来电咨询〢安全通话隐藏真实号码
在售户型图丨项目介绍丨最新房源丨周边配套丨详细解答〢
开发商营销中心诚挚邀请,一键预约,尊享内部折扣!匠心独运的精品项目,恭候您的品鉴与选择。
✅本项目暂不接受临时到访,过来参观样板房请记得提前来电预约!
✅为您安排楼盘现场销售全程接待并讲解,给您更贴心的看房体验!
【项目基础指标】
建筑面积:约7.8万㎡
总楼层:地上33层,地下3层
楼层分布:23-29层
层高:约3.9m
居住电梯:3梯4户
停车位:约426个,其中76个专属停车位,车位比超2:1
停车月卡:500元/月
物管服务:仲量联行物管顾问+寰侨物业
管理费:12元
产权年限:50年,2019年-2069年
民用水电通燃气
玻璃幕墙:三层双银超白LOW-E中空夹胶玻璃
项目地址:中国•深圳•华侨城 深云西路二路与深云四路交汇处
【寰侨观邸核心价值】
价值一:深圳名片•华侨城——深圳第一富人区
城市中央、生态资源丰富;
汇聚文化艺术、旅游度假、五星级酒店、国际学校、高端商业等配套应有尽有;
快捷交通路网,北环大道/南坪快速/侨香路/京港澳高速,20-30分钟到福田CBD、深圳北站、皇岗/福田/深圳湾三大口岸、宝安机场等,城芯而居,超享生活。
豪宅云集,10-18万/平阶级阶层,层峯领袖汇居于此。
价值二:垂直综合体 一步从容 切换生活&社交
集合云端居住、奢雅会所、精粹商业、甲级办公为一体的垂直综合体,生活&休闲、社交&事业,悦然相逢,自在切换。
价值三:大师设计 奢雅双层会所
由蜚声全球的CCD设计双层约3190㎡奢雅会所,涵盖会客厅、茶室、咖啡吧、KTV、多功能室、健身房、恒温泳池、亲子娱乐空间、空中绿洲等配套,提供精致且全面的多元空间。
咖啡厅 轻酒吧
茶室
室内恒温泳池
特大豪华KTV
亲子娱乐空间

桌球室
价值四:五重尊贵体验 遇见生活的美好
秉持匠心,打造五重尊贵体验,定制领袖专属生活仪式,举止所至,皆得不凡享受
1⃣星级门庭广场——匠心打造精美前庭景观广场,尽显尊贵礼遇
2⃣超凡尺度大堂——CCD亲笔操刀,约8米挑高350㎡艺术大堂,致敬不凡气度
3⃣全方位守护品质生活——专属停车区/独立大堂/电梯均设多重门禁系统,提供安心无忧的居住体验
3梯4户 全进口日立品牌 6米/秒高速电梯

4⃣专属停车区——总计426席车位,76席专属停车位,户均超2个停车位,尊贵专属停车体验
5⃣寰侨物业&仲量联行物业顾问——细致入微的管家式服务,24小时贴心守候,尽享从容与尊崇的生活礼遇。
价值五:云端精筑 每一户 皆杰作
270°天际环幕景观 山海城一线宽景
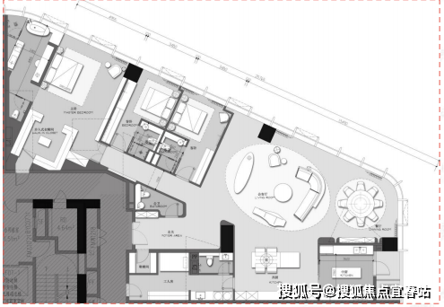
荟萃CCD、柏朗国际两大设计团队联袂匠造,以国际化视野,精研侨城湾芯云端新作,仅28席,位于建筑23-29层,全高区景观视野,建面约323-446㎡,纯粹大户云端居所。4款室内设计风格独特,尺度阔绰,兼顾细致实用,畅享舒适空间。
A户型
约396㎡3+1房2厅2厨5卫

lLSD亲笔操刀
l270°城市景观
l全套房、双主卧设计
l约9.9米超宽客餐厅开间
l方正主卧面积高达24㎡,明卫设计
l次卧带阳台
l中西厨结合
l3+1房,多功能房,灵活多变
B户型
约439㎡3+1房2厅2厨5卫

lLSD亲笔操刀
l270°城市+绿化景观,高区看海
l全套房、双主卧设计
l超10米特宽客餐厅开间
l方正主卧面积高达24㎡,明卫设计
l次卧带阳台
l独立中西厨
l3+1房,多功能房,灵活多变
C户型
约323㎡3+1房2厅2厨4卫

lCCD亲笔操刀,轻奢艺术主义
l殿堂级入户体验
l270°塘朗山景观,超10米特宽客餐厅开间
l全套房设计,主卧国际化视野设计,别具一格
l动静分区格局井然
l明卫设计、步入式衣帽间
l独立中西厨
l独立工人房设计,主仆分行
D户型
约446㎡4+1房2厅2厨5卫

CCD亲笔操刀
l4+1房结构,全套房设计,双龙抱珠
l生态造景入户体验
l超10米特宽客大厅开间
l超大主卧空间,面积高达26㎡,双衣帽间,前卫国际化卫生间设计,明卫空间,尽享奢阔生活;
lL行西厨设计,前卫设计,尽享奢豪品质
l独立工人房设计,主仆分行

免责声明
为明确相关信息使用边界及责任范围,特作如下声明:
图片来源说明
文中所有图片均通过微信搜索或百度搜索引擎获取,我方并非图片原创作者,亦不享有图片及相关内容的任何知识产权。
转载内容知识产权提示
本平台转载的文章、图片、音频、视频等资料,其知识产权均归原权利人所有。因技术能力限制,我方无法穷尽核查所有内容的原始权利来源,故未能直接与版权方建立授权联系。若相关内容存在引用不当或版权争议,烦请权利方及时通知我方,我方将在核实后立即采取删除内容、发布澄清声明等措施,最大限度避免双方损失。
教育资源信息限定
文中对项目周边幼儿园、学校等教育资源的介绍,仅作为客观信息参考,不构成对就学安排的任何承诺。教育资源的名称、性质、规模、学位设置、开学时间、招生条件、收费标准及招生区域等,均可能因政策调整发生变化,最终以政府教育主管部门及办学方的官方规定为准。
图文关联性说明
文章文字内容与配图无必然逻辑关联,相关素材仅为辅助阅读,具体信息请以文字描述为准。