✨✨会展湾东城售楼处电话:400-985-0087☎开发商已认证✨✨
✨✨会展湾东城营销中心电话400-985-0087☎营销中心已认证✨✨
✨✨会展湾东城售楼中心电话:400-985-0087☎24小时预约热线✨✨
➢ ➢本项目采用预约制,过来营销中心参观样板间请记得提前拨打开发商楼盘售楼处400热线电话在线预约,感谢您的配合!
✨✨会展湾东城售楼处电话:400 985 0087☎营销中心已认证丨详细解答丨在售户型图丨项目介绍丨在售房源丨周边配套丨VR看房丨楼盘图丨沙盘图丨位置图丨配套图丨售楼处销售1V1讲解
项目概况
【项目地址】:深圳宝安区展云路与重庆路交汇处
【总占地】:约5.3万㎡
【总建面】:约8.8万㎡
【产权年限】 : 40年
【容积率】:1.66
【商务公寓】 : 约35016㎡
【商业】 : 约10316㎡
【办公】:约42500㎡
【停车位】:773个
【物业公司】:深圳华侨城湾区发展有限公司
【物业费】:7元/㎡
【交付时间】:现楼交付
———————————————————————
七大价值亮点
立足湾区核心,多重战略区位叠加,深圳经济增长极
全球第一大会展综合体,鼎立湾区门户
全球最大会展中心,深圳面向全球的窗口
9倍会展经济带动效应,深圳经济加速器350万会展经济圈
华发冰雪文旅城,世界级文旅配套
两大央企华侨城&招商联袂,品牌保障实力护航
湾区五维立体交通,构建跨越时区的交通网
—————————————————————

会展中心经济带动1:9,深圳经济增长级 不完全统计,2023年展会已排期超80场,预计总展览面积超500万㎡、参展人数预计将超1000万人,无限拉动周边区域配套收入,会展湾酒店供不应求,缺口巨大,公寓价值凸显

✨✨会展湾东城售楼处电话:400-985-0087☎开发商已认证✨✨
✨✨会展湾东城营销中心电话400-985-0087☎营销中心已认证✨✨
✨✨会展湾东城售楼中心电话:400-985-0087☎24小时预约热线✨✨
产品特性(采光明亮,河畔公寓,户型方正,使用率高达73%)

———————————————————————
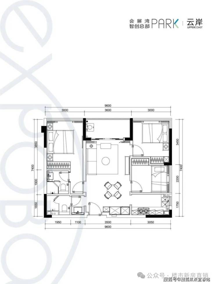
户型鉴赏(主力户型)
【A1户型:33㎡】
房型:酒店式公寓
朝向:E1、E2(东南、西北)
户型优势:户型方案、3.6米开间、独立阳台
【B2户型:63㎡】
房型:两房一厅一卫
朝向:E1、E2(西南、东南)
户型优势:端头位、双面采光、无敌景观
✨✨会展湾东城售楼处电话:400-985-0087☎开发商已认证✨✨
✨✨会展湾东城营销中心电话400-985-0087☎营销中心已认证✨✨
✨✨会展湾东城售楼中心电话:400-985-0087☎24小时预约热线✨✨
【C1户型:92㎡】
房型:三房两厅两卫
朝向:T5、T6(正南)
户型优势:端头位、双面采光、主客分区、无敌景观 (瞰河)
展示空间鉴赏
【A1单房33㎡】



【B1(2房)63㎡】

✨✨会展湾东城售楼处电话:400-985-0087☎开发商已认证✨✨
✨✨会展湾东城营销中心电话400-985-0087☎营销中心已认证✨✨
✨✨会展湾东城售楼中心电话:400-985-0087☎24小时预约热线✨✨



✨✨会展湾东城售楼处电话:400-985-0087☎开发商已认证✨✨
✨✨会展湾东城营销中心电话400-985-0087☎营销中心已认证✨✨
✨✨会展湾东城售楼中心电话:400-985-0087☎24小时预约热线✨✨
➢ ➢本项目采用预约制,过来营销中心参观样板间请记得提前拨打开发商楼盘售楼处400热线电话在线预约,感谢您的配合!
✨✨会展湾东城售楼处电话:400 98 50087☎营销中心已认证丨详细解答丨在售户型图丨项目介绍丨在售房源丨周边配套丨VR看房丨楼盘图丨沙盘图丨位置图丨配套图丨售楼处销售1V1讲解
免责声明:本宣传资料不构成邀约邀请,对周边、政府规划、商业配套、教育资源、投资前景等数据和图文仅为提供相关信息,本文如无意中侵犯了某方的知识产权告知即删,部分内容图片可能来源于网络,无法核实其真实出处,如涉及侵权请联系删除!!!
1、[贷款] 央行:2025年二季度末,人民币房地产贷款余额53.33万亿元,同比增长0.4%,增速比上年末高0.6个百分点,上半年增加4166亿元。房地产开发贷款余额13.81万亿元,同比增长0.3%,上半年增加2926亿元;
2、[外贸] 深圳海关:2025年上半年深圳进出口2.17万亿元人民币,占同期全国进出口总值的9.9%。其中,出口1.31万亿元;进口8588.6亿元。进出口、出口规模居内地城市首位,进口规模创历史同期新高;
3、[规划] 龙华区国际医疗器械城产业片区土地整备规划公布:规划容积超145万平,其中住宅74.5万平方米(含保障性住房9.9万平方米),深圳打造首个国际医疗器械城;
4、[新政] 惠州第四代住宅标准发布:空中花园不超过套内面积的35%;
5、[规划] 香港发展局与教育局宣布“城中学舍计划”接受申请,鼓励将现有商厦改装为学生宿舍;
6、[新盘] 上海海上原墅二批次开盘:86套房源在约2小时内迅速售罄;
7、[土拍] 上海第六批土拍7月24日开拍,8宗地块总起拍价236.7亿;
8、[土拍] 杭州两宗住宅用地约18.98亿元成交,其中余杭区地块溢价率29.65%、拱墅区地块溢价率7.29%;
9、[交通] 交通运输部:“十四五”时期,我国城市轨道交通运营里程约1.1万公里、居世界首位,城市公交运营线路总长度达到175万公里,比“十三五”末分别增加48.5%、18.3%;
10、[规划] 国资委:央企要主动融入城市发展创新生态,积极参与城中村和危旧房改造。