项目详情介绍
开发商:广东城脉地产有限公司
项目总建筑面积:37000平方米
容积率:8.74
建筑密度:46.38%
绿地率:30%
住宅占地:21606平方米
商业:4000平方米
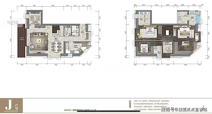
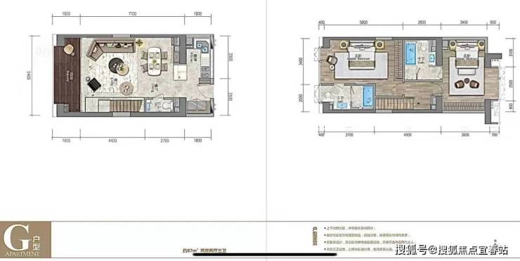
主推产品: 79㎡-88㎡ -113㎡ -152㎡ 3-4房 智能豪装
其以建筑美学诠释生活美学,作为 150 米人居地标,傲占山海盛境。历经国际设计团队 AECOM 七轮方案调整,确定为特色 L 型建筑,高 150 米屹立深圳湾,周边景观丰富,一湾繁华、山海盛境皆为业主窗前日常风光。
该项目在建筑设计上独具匠心,采用独特的L形态布局。这种设计最大限度地优化了每一户的通风、采光及景观视野,使得清风与阳光能够更顺畅地融入室内,同时让住户能够毫无遮挡地欣赏到山海城的壮阔景色。
【产品推荐】(纯复式,层高5.7米。一层2.9米,二层2.8米)
★79㎡复式三房两厅三卫 南北通透,5.4米大开间,复式下层餐厨客厅连宽景阳台,另带一个法式小阳台。复式上层私密卧房全明采光,动静分区私享个性生活。另一个次卧带衣帽间。
★88㎡复式两房两厅三卫 双向通透采光,5.4米开间客厅及主卧,双套房周全设计,室内多变空间可根据家庭需要设置独特的功能。
★113㎡复式三房两厅三卫+工人房 南北通透三面景观,5.6米客厅与主卧开间,独具品位,尽享奢阔。
★152㎡复式三套房两厅四卫+双功能房 双向通透三面采光,尽赏深圳湾景观,6.3米开间,三套房设计,两间多功能房满足个性化使用。

【七大必买理由】
区域价值,世界级湾区,后海总部基地,顶级经济聚核:后海金融总部基地与深圳湾超级总部携手,打造以深圳湾为中心,具备全球竞争力的深圳湾超级经济体,其将成为推动深圳超级未来发展的源动力;
中国特色社会主义先行示范区
---------------------------------------
粤港澳大湾区核心引擎,大湾区城市群NO.1
深圳湾超总基地,核心中的核心
百亿级企业总部汇聚
毋庸置疑的经济驱动力
“海陆空轨”国际化高效立体交通
---------------------------------------
五分钟达深圳湾口岸
香港、宝安双国际机场
多条城市主干道畅通全城
打造最高效30分钟国际社交圈
最具国际人文生活中心区
---------------------------------------
150万顶级商业配套
全龄层国际教育、医疗服务一应俱全
15公里滨海休闲长廊、深圳湾文化广场、深圳湾大街、深圳湾歌剧院
商业配套:深圳湾万象城|万象天地|来福士广场|海岸城|海上世界|天虹君尚等繁华一站式商业

人文配套:15公里滨海休闲长廊|深圳湾超级总部基地|深圳湾文化广场|深圳湾大街|深圳歌剧院
深圳湾唯一在售稀缺复式住宅
绝版臻品现楼,极致奢阔空间
现代极简主义设计风格,打造品质居住空间
一屋尽拥德意顶级奢装品牌
国际一线精装品牌打造
深度智能家居系统
引领人居科技前沿
顶级圈层私享配套
定制私家空中铂金会所
3D垂直绿化富氧空间
全天候室外恒温泳池
THE ICON酒店式服务公寓,全球甄选一线奢装家私配备
✅深圳湾公馆售楼处电话是多少?答:400-831-7991【已认证】项目基本信息,楼盘价格,区域板块,开发商资料,楼盘详细地址,物业类型,产权年限,销售信息,销售状态,装修情况,交房时间,开盘时间,售楼处地址,营销中心地址,楼盘户型图,小区规划,绿化率,容积率,占地面积,建筑面积,总户数,物业费,车位数,物业费,楼盘介绍,踩盘报告,梯户比,标准层高,交楼标准,项目有缺点有哪些?是否有团购?找开发商买房便宜?还是找中介买房便宜?最新折扣是多少?最新房价是多少?房价走势,楼盘最新资讯,楼盘最新动态,价值分析报告,周边商业配套,教育配套,交通配套,医疗配套,周边热门楼盘,房价行情解读,