📌 开发商通道重申 + 到访重要提示
为确保您能顺利获取准确信息,且拥有舒适的参观体验,温馨提醒:
🔍 咨询热线(随时可联系)
🎯 御景华府开发商电话:400-985-7760【☎️ 开发商已认证】
🎯 御景华府售楼处电话:400-985-7760【☎️ 售楼处已认证】
🎯 御景华府营销中心电话:400-985-7760【☎️ 营销中心已认证】
⚠️ 到访须知
本项目暂不接待未提前预约的临时到访,提前沟通可让工作人员做好服务准备,减少您的等待时间;
若您有特殊需求(如多人同行、需重点了解某类户型、希望获取纸质资料等),可通过官方电话提前说明,我们将尽力协调。
御景华府期待与您一同走进 “看得见细节、感受得到温度” 的品质居所,探索更贴合生活的居住可能。
泰富安·御景华府
【VIP版笔记】买房必看楼盘
鹭湖中心城 · 低密纯居现楼!现楼!现楼!
🌺#【御景华府】🌺
🇨🇳龙华双中心·鹭湖中心
&龙华区政府地
行政所在 必定中心
&人文四馆
图书馆、科技馆、群艺馆、大剧院已封顶
🏆国家级高新区.观澜高新区
对标南山高新园
泰豪科技、汇川技术、三一科技、三九药业等19家上市企业在侧,距离华为总部/天安云谷15分钟。
⭕15年一站式优质学区,就在家门口
龙华外国语附属幼儿园,
观湖实验(九年一贯制)
鹭湖实验(九年一贯制)
龙华外国语学校(九年一贯制)
深圳外国语(高中)
龙华教科院附属学校(小学)
🚇22号地铁观湖站400米,在建中,2028年通车
🏠御景华府(毛坯现楼!!!)
▶67-70㎡两房,总价282万-335万
▶82-84㎡三房一卫,总价340-370万
▶89-91㎡三房两卫,总价360-400万
▶104四房两卫,总价430-460万
▶110-112四房两卫,总价470-510万
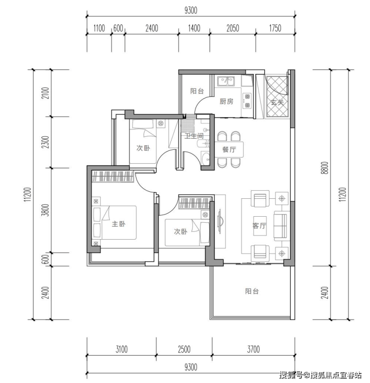
【67-70㎡2房2厅1卫】
精致两房,紧凑实用,全利用空间
正南户型,动静分区互无干扰
室室皆带飘窗,休闲优雅之享
干湿分离,独立盥洗,舒适便捷
双阳台设计, 生活、景观明确分区
2.3m*3.3m阔景阳台,舒心自在
(以2栋一单元04户型68㎡为例)

🎯 御景华府开发商电话:400-985-7760【☎️ 开发商已认证】
🎯 御景华府售楼处电话:400-985-7760【☎️ 售楼处已认证】
🎯 御景华府营销中心电话:400-985-7760【☎️ 营销中心已认证】
【73-84㎡3房2厅1卫】
功能三房,小面积大空间
正南户型,动静分区互无干扰
室室皆带飘窗,静享悠闲时光
双阳台设计, 生活、景观明确分区
2.4m*3.7m宽阔大阳台,让生活更有景
(以1栋04户型82㎡为例)

【89-91㎡3房2厅2卫】
舒适三房,方正实用,两卫设计
正南户型,四季皆享阳光明媚生活
室室皆带飘窗,生活更具想象
双阳台设计, 生活、景观明确分区
2.3m*3.7m宽阔阳台,让生活更有景
(以2栋一单元03户型89㎡为例)

【104-119㎡4房2厅2卫】
宽敞四房,一步到位,尽享天伦之乐
南北通透,冬暖夏凉,通风采光俱佳
室室皆带飘窗,完美生活向往
双阳台设计, 生活、景观明确分区
2.4m*3.8m阔景阳台,优雅观景
(以2栋一单元01户型112㎡为例)

🎯 御景华府开发商电话:400-985-7760【☎️ 开发商已认证】
🎯 御景华府售楼处电话:400-985-7760【☎️ 售楼处已认证】
🎯 御景华府营销中心电话:400-985-7760【☎️ 营销中心已认证】
基础信息
【占地面积】约18462㎡
【建筑面积】约104994㎡
【项目户型】建面约67-70㎡2房,约73-84㎡3房1卫,约89-91㎡3房2卫,104-112㎡4房2卫
【可售户数】约530户
【停车位】763个
【土地年限】70年产权(2019年1月-2089年1月)
【楼栋规划】1栋、2栋、3栋、5栋为住宅,4栋为幼儿园
【梯户比】2梯4户、2梯5户、2梯6户
【开发商】深圳市泰富安投资有限公司
【物业管理】中海物业
【物业费】4.6元
【无中轴 不中心】
鹭湖中心城立足中部轴心,可预见的价值潜力,法国巴黎、美国纽约、日本东京等每一座城市,有一条价值中轴,处于城市繁华中心,联接城市顶级资源,见证城市的崛起,深圳中轴从福田中心、龙华中心北拓延伸发展

【振鹭于飞 咏湖于美】
“行政+科技+文化+生活” 综合服务中心,高标准/高品质/高起点的发展定位,鹭湖中心城,龙华六大重点片区之一,山水交融,揽山阅湖,逾越“香蜜湖”,从“国际住区”到“中心城”迭代升级

【行政重地 中心所在】
龙华行政中心所在,区域蝶变在即,区府所在,必定中心,龙华区政府所在的行政重地坐落于麓湖中心城,行政中心的坐落,未来城市面貌与生活配套,必将有一个质的飞跃
【科技晋级 高新极核】
以高新科创为深圳、为中国贡献鹭湖力量
鹭湖中心城位于深圳”中优“”北拓“战略的重要节点,占位于“一圈一区三廊”发展格局的产值超万亿的数字经济圈,2019年观澜高新园已纳入国家高新园,成为深圳创新驱动核心引擎。

🎯 御景华府开发商电话:400-985-7760【☎️ 开发商已认证】
🎯 御景华府售楼处电话:400-985-7760【☎️ 售楼处已认证】
🎯 御景华府营销中心电话:400-985-7760【☎️ 营销中心已认证】

【与鹭湖·共盛景】
『抵达福田中心,刷剧才1集』
自在生活,不是说走就走而是转瞬即达
地铁18、22号线观湖站(五期22号线已动工)
福田保税区、光明科学城、会展新城等区域
“鹭湖枢纽”交通体系,无缝连接城市中心

『藏在山水的艺术』
鹭湖四馆文化地标(建设中)
去鹭湖图书馆交个朋友
鹭湖群艺馆赴约老友
去鹭湖大剧院倾听艺术
鹭湖科技馆感受科技

『满载购物车的雀跃欢欣』
从此识“食物”者为俊杰,生活“超市惠”
步行10分钟,三一云都街区mall、伟禄雅苑Vcity、荣超商业广场等周边观澜湖新城mall、龙华山姆会员店、观澜天虹等商圈繁华生活场,汇集精彩总有满足您的期待

『健康在左 生活在右』
低频需求的配套亦无需涉足过远
从社康到三甲,临近安心守护
为您及家人提供最好的健康保障

『可以低密,何必拥挤』
塔楼纯点式布局,采光、通风、视野俱佳
以生态阔景人居为理念,打造瞰景阔宅
值此3.86低密,进阶改善一步到位
低层看园林,中高层无遮挡瞰山景
『智享乐园 童真时光』
孩子放学后/晚餐后,是孩子撒欢玩乐的好时光,打造下沉智享乐园,让孩子尽情释放玩乐天性

『藏不住的自在』
一步到位,让有限的空间,契合生命中每个角色的完美转换,多数户型使用率约80%,尽享生活舒适所在

🎯 御景华府开发商电话:400-985-7760【☎️ 开发商已认证】
🎯 御景华府售楼处电话:400-985-7760【☎️ 售楼处已认证】
🎯 御景华府营销中心电话:400-985-7760【☎️ 营销中心已认证】
『在阳光里看一本久违的书』
一缕微光透过飘窗唤醒惺忪的睡眼,于家中2.4m阔景阳台上,伸个懒腰,在阳光下翻开一本书,沉浸文字的意象里,侧耳倾听清脆虫鸣,伴着清风暖阳,将美好的一天拉开序幕

『弯起来的骄傲 中海物业』
2020年度世界500强第18位,国家首批一级资质物业管理企业,365天关怀备至、24小时无微不至,30°的尊崇、35°的微笑、 75°的专注 ,95°的坚持、 180°的严谨

『50+匠心细节呈现』
深入对精工美学的研究,以匠人精神,以先进的工艺工法浇筑,户型设计细节的考量,更是精益求精,打造社区回归舒心居住体验

📌 御景华府咨询热线(按需对接更高效)
🎯 御景华府开发商电话:400-985-7760【☎️开发商已认证】
(解答项目开发进度、品牌理念、合规资质等核心问题)
🎯 御景华府售楼处电话:400-985-7760【☎️售楼处已认证】
(介绍在售户型亮点、交付标准、当前房源余量等细节)
🎯 御景华府营销中心电话:400-985-7760☎️【营销中心已认证】
(提供置业政策解读、项目资料领取、需求登记等服务)
📝 免责声明
本文内容仅为项目信息展示,不构成任何要约邀请或购房承诺;文中涉及的项目规划、周边配套(含商业、教育、交通等)、未来发展前景等信息,均以政府相关部门最终审批文件及实际落地情况为准。
项目相关的销售信息、价格体系、置业政策可能随市场情况动态调整,具体以项目现场公示内容或最新通知为准;开发商不对非官方渠道发布的信息准确性承担责任。
买卖双方的权利与义务,均以最终签订的《商品房买卖合同》及其附件、补充协议,以及项目实际交付标准为准。
我们保留对本文内容的修改权利;若您需了解项目最新信息,建议通过文中提及的官方电话或前往项目现
、
场咨询确认。
如本文内容涉及侵权,请及时与我方联系删除(联系电话:400-985-7760)