❄️松茂御城❄️
🐳松茂御城🐳售楼处热线:400-873-0112【售楼处电话已认证】✔️✔️✔️
🐳松茂御城🐳开发商电话: 400-873-0112【开发商电话已认证】✔️✔️✔️
❄️丨项目介绍丨户型图丨在售房源丨特价房丨学校丨交通位置丨样板房丨小区图片丨交房时间丨周边配套丨


01
松茂御城二期开盘!
01
本次加推情况
最新消息:光明凤凰城片区塘尾街道准现房新盘——松茂御城二期预计本月底开放样板间,目前正在认筹,预计月底开盘入市。
据悉项目首推1栋B/G/H/E座,共333套,户型建面为81㎡3房2卫、89-109㎡4房2卫和135m²5房2卫。

松茂御城一期备案均价4.69万/m²,二期价格目前暂未释放!
旁边就是目前正在热销的润宏城二期润臻园,最近刚刚加推3栋,折后均价3.57万/m²。
松茂御城和润臻园配套都是共享的,13号线地铁旁,深中、深实验、光明实验三大名校加持。
不同的是,松茂御城是准现房,而且项目也不是超高层,总层高只有32-32层;另外松茂御城虽然不是新规楼盘,但是户型依然很能打,实际使用率高达100%。
(每个房间都送一个阳台,81㎡做3+1房,注:阳台算一半的面积)
02
项目核心价值
1、【全功能户型】约81-135㎡N+1全功能空间,满足不同家庭居住需求:
➡81㎡三房两厅两卫,空间利用极致,功能齐全。
➡89㎡四房两厅两卫,同等面积多一间房,二孩家庭也能三代同堂。
➡108㎡阔绰四房两厅两卫,部分独立入户,品质生活一步到位。
➡135㎡稀缺阔绰五房两厅两卫,奢阔平层独门独户,悦享宽境奢居。
2、【铝板外墙】光明新盘中少有的铝板外墙项目,铸就精工品质。
3、【幕墙式阳台】约1.8米高全定制一体成型外挂式阳台玻璃,双层夹胶中空LOW-E玻璃打造而成。
4、【高品质公区配置】首层、地库双层精装入户大堂,每个楼座均配备约33-68㎡首层入户大堂。
5、【超阔楼间距】南北约128米超阔楼间距,视野开阔无遮挡,私密性更好。
6、【社区大园林】约2万㎡全龄互动大园林,打造一园五境“度假公园”式社区园林。
7、【高抬水韵主入口】主入口叠水流瀑搭配罗汉松,高抬轩昂门庭彰显尊荣威仪,于步步高升中体验归家的仪式感。
8、【双层架空泛会所】约6500㎡三层屋顶花园与双层架空层,规划5大沉浸式休闲场景,满足老人、儿童、青年的日常休闲运动所需。
9、【林水主题艺术中庭】以“与自然为邻”为设计理念,将自然渗透社区,形成各有特色的林水主题艺术中庭,在居住区中演绎自然艺术生活场景。
10、【约410㎡浮光亲子双泳池、约300米元气健康跑道】沉浸式体验“度假公园”式社区园林。
11、【约30万㎡低密大社区】光明少有的非超高层低密度大社区,低密度更宜居。
12、【精工准现楼】建筑品质、装修品质等所见即所得。
13、【核芯地段】归属凤凰街道,邻约383万㎡13号线重点城市更新,区域规划升级红利正逐步兑现。
14、【双地铁站】邻13号线(在建中)月亮路站与将围站,1站凤凰城,9站进南山。
15、【2+1实力学府】深实验光明明湖学校+深中光明科学城学校,光明区实验学校,周边还规划有两所九年一贯制学校。
松茂御城项目介绍
01
项目信息
【开发商】:深圳市松茂房地产集团有限公司
【总建面】:约30万㎡
【容积率】:约4.55
【绿化率】:约40%
【车位数】:2222个
【物业费】:3.8元/㎡/月
【物业公司】:深圳市海天泰物业管理有限公司
【项目地址】:深圳市光明区·13号线月亮路站西侧
02
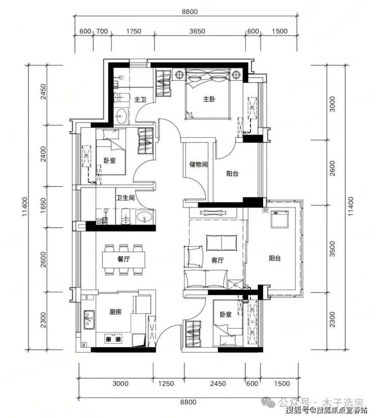
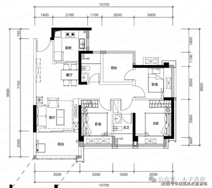
户型鉴赏
H01户型:约81㎡ 三房两厅两卫
H02/03户型:约81㎡ 三房两厅两卫
G03户型:约81㎡ 三房两厅两卫
G05户型:约82㎡ 三房两厅两卫
B01户型:约89㎡ 四房两厅两卫
B02户型:约89㎡ 四房两厅两卫
B03/05户型:约89㎡ 四房两厅两卫
B06 户型:约109㎡ 阔绰四房两厅两卫
G02户型:约109㎡ 四房两厅两卫
G01户型:约135㎡ 五房两厅两卫
E03户型:约135㎡ 稀缺五房两厅两卫
03
区位解析
✨邻383万㎡13号线重点城市更新✨
项目位于广深港科创走廊重要节点的“世界一流科学城”光明,归属凤凰城街道,邻建面约383万㎡13号线重点城市更新单元(在建),占位光明城市发展的“价值洼地”,同享磅礴产业规划红利。13号线重点更新项目(在建),总投资约420亿元,其体量约为光明城站TOD的25倍。将结合13号线月亮路站塑造、城市蓝绿公园网络提升、产城空间更新,无限链接生产、生活、生态要素,建设成光明区“三生融合示范区”。
目前一期产业约36万㎡已竣备完工,预计2025年内交付;深实验光明明湖学校2025年已正式招生办学;凤凰文体中心等已立项,高规格城市配套正逐步兑现。
(信息参考:2023年12月8日“深圳光明”微信公众号《光明大手笔打造明湖智谷“三生融合示范区”》)
04
交通配套
✨多维立体交通 便捷畅行大湾区✨
【13号线双地铁站】邻地铁13号线(预计2025年底开通),近享月亮路站与将围站,未来1站凤凰城,9站进南山,快速接驳南山科技园。
其中地铁13号线一期(深圳湾口岸站—上屋站)的南段(深圳湾口岸站—高新中站)已于2024年12月28日正式开通初期运营。2025年5月19日,13号线一期工程北段(高新北站至上屋站)顺利完成热滑。北段预计2025年年底开通。
【三纵路网】松白路、南光高速、龙大高速,高效链接福田、南山。
【四横路网】光明大道、东明大道、周家大道、公明大道,畅行光明繁华。
【一高铁站】快速接驳光明城高铁站,1站深圳北,2站达福田,3站速达香港西九龙/广州南。
05
教育配套
✨全龄学府邻立 滋养菁英未来✨
【自建幼儿园】社区自建约2400㎡9班公立幼儿园(在建),家门口的快乐启蒙。
【全龄优质学府】距深实验光明明湖学校(已正式招生办学)直线距离约800米,周边更有深圳市光明区实验学校、深圳中学光明科学城学校、深圳市光明区凤凰城实验学校等九年一贯制学校,护航孩子更好成长。
(*本广告旨在提供相关信息,不代表我司对学校规划建设、学区划分和就读政策作出承诺,最终以政府规划及教育主管部门、办学方颁布的政策和规定为准。)
信息来源:光明区政府在线http://www.szgm.gov.cn/szgm/132104/jyfw/fwxshjz/ywjy/zcfg9/
06
商业配套
✨醇熟商圈 尽享繁华✨
约38万㎡醇熟商业,享繁华万象:约1.3万㎡社区商业(在建)、约6万㎡13号线城市更新商业(在建),5公里内同享约15万㎡光明大仟里、约10万㎡蓝鲸世界、约6万㎡万达广场等醇熟商业。
07
公园配套
✨公园为邻 生态宜居✨
约200万㎡城市公园群,绿意荟萃:约58万㎡明湖城市公园举步即达,更新单元内约60万㎡主题公园(在建)、约6.8km茅洲河生态长廊等绿意荟萃。

08
生活配套
✨多维社区配套 畅享一站式生活体验✨
【商业服务】约1.3万㎡社区商业,涵括生鲜超市、社区邮局、银行等,满足生活所需。
【社区交通】社区公交首末站,无需辗转等待,高效通勤无缝接驳周边轨道交通,出行更便捷。
【颐乐康养】社区托育中心、老年活动中心、老人日间照料中心,给家人更多关爱。
【公共绿地】约1万㎡市政公共绿地(规划),拓展多元休闲,打造第二会客厅,提升日常幸福感。
09
社区打造
✨匠心打造 铸就精工品质✨
铝板外墙 幕墙式阳台:立面甄选高品质铝板,以精湛工艺锻造精工品质,赋予建筑历久弥新的质感。搭配玻璃幕墙式阳台,勾勒简约时尚的建筑艺术,彰显人居价值与美学价值。
✨精装入户大堂 高品质区打造✨
首层、地库双层精装入户大堂,每个楼座均配备约33-68㎡首层入户大堂,首层大堂约4米挑高,营造高星级酒店般的尊崇归家体验。
✨南北约128米超阔楼间距✨
围合式布局,南北高达约128米阔绰楼间距,保障良好采光与生活私密性,于四季风光流转中,让生活与自然坦诚相见。
✨约2万㎡社区大园林✨
容纳双层架空泛会所、活力健康跑道、阳光草坪、露天亲子双泳池等多元休闲场景,打造“度假公园”式社区园林。
【高台阔府 水韵门庭】入口处叠水流瀑搭配罗汉松,高台轩昂门庭彰显尊荣威仪,于步步高升中体验归家的荣耀。
【双层架空泛会所 】融合儿童活动区、老年活动区、青年运动馆、会客厅等休闲场景,勾勒全龄温情日常。
【浮光亲子双泳池】约410㎡浮光亲子双泳池,配备成人泳池与独立儿童池,安全之上,更享自在畅泳的亲水时光。
【元气健康跑道】约300米环形跑道,穿行林荫花径激活满满能量,在自然中奔跑,邂逅运动的无限乐趣。
✨约30万㎡非超高层 低密大城 品质生活范本✨
项目总建面约30万㎡,是光明少有的非超高层低密度大社区;项目二期由8座塔楼和一所幼儿园围合而成。
✨精工准现楼 所见即所得✨
项目精工准现楼发售,建筑品质、装修品质等所见即所得。
10
周边生活配套
✨稳健致远 品质交付铸就基业长青✨
松茂集团,以深圳为核心,重点落子粤港澳大湾区城市群,辐射华南布局全国。集团严守交付承诺,以精工品质兑现理想人居,先后开发了福田鸿运阁、宝安御景湾、御龙湾、柏景湾等众多优质项目,无论是人居品质还是交付保障,都深受市场好评。二十余年稳健发展,集团构建了房地产开发、建筑工程施工、物业管理、智慧园区、金融投资管理、商业运营六大板块,屡获殊荣,成为本土知名品牌房企。
❄️关于松茂御城最新动态信息,如:房价,主力户型面积,最低折扣,等等,剩余户型楼层,去化率,几号地铁哪个地铁口,周边规划,项目的优劣势以及学校的配套等等都可以致电售楼处进行了解,我们将会安排内场专业置业顾问为您答疑解惑!
❄️松茂御城❄️
🐳松茂御城🐳售楼处热线:400-873-0112【售楼处电话已认证】✔️✔️✔️
🐳松茂御城🐳开发商电话: 400-873-0112【开发商电话已认证】✔️✔️✔️
免责声明:部分信息来源于网络,如果侵权,请联系及时删除本宣传资料不构成邀约邀请,对周边、政府规划、商业配套、教育资源、投资前景等数据和图文仅为提供相关信息,该信息以政府最终批文为准,开发商不对此作任何承诺。买卖双方的权利义务以双方签订的买卖合同约定及附件、实际交付为准,本公司保留对宣传资料修改的权利,敬请留意最新资料。联系号码:400-873-0112。