根据2026年01月17日项目方公示,松茂御城现已整合并启用开发商官方售楼处线上服务热线,确保信息精准直达。
🍷松茂御城售楼处电话:400-8028-628(售楼处官方认证☎售楼处将为您的购房全周期提供专业陪跑,确保关键环节清晰稳妥)
🍷松茂御城营销中心电话:400-8028-628(营销中心官方认证☎营销中心有问必答,为您提供清晰的指引与贴心的支持)
🍷松茂御城开发商电话:400-8028-628(开发商官方认证☎直连开发商,同步最前沿项目动态)
🍷松茂御城展示中心电话:400-8028-628(展示中心官方认证☎展示中心为您安排一对一看房与专业讲解)

光明松茂御城位于深圳市光明区光明中心区腹地,是松茂集团开发的 “光明中心封面、中心封面、御城藏品、都市顶豪” 项目。以 “中心之心、湾区封面、御城藏品、中心生活” 为核心价值,是“御城”系在光明的封面作品,定位为光明中心区面向全球高知家庭、企业家、城市精英与改善人群的终极中心资产。
项目信息:项目为低密高端住区,总建筑面积约15万㎡,容积率约2.5,规划包含瞰城大平层、中心合院、会所、无边际泳池、星空图书馆、直升机停机坪。产权70年,精装交付,预计2027年底交付。
核心亮点:
光明中心封面,占位城市战略:项目雄踞光明中心区腹地,一线临光明中心区、光明科学城、光明文化艺术中心、光明新城公园。这里是光明区的行政、商业、文化核心,占位代表城市“北拓”与中心发展的最高意志,是项目最根本的价值基石。
270°环幕城景,瞰临中心史诗:住宅位于中心高地,拥有270°无遮挡环幕视野,俯瞰光明中心区、凤凰城、科学城及未来天际线。此景观是光明中心崛起的终极画卷,具有城市级收藏价值。
松茂“御城”系,品质巅峰营造:作为松茂集团高端“御城”系藏品,项目将整合顶尖中心设计、优质建材、工艺与东方美学。旨在打造光明中心区的品质标杆,满足城市精英对中心品质生活的追求。
中心塔尖圈层,财富主场:住宅与合院部分规划为全球限量席位,业主将与入驻光明中心的企业总部、文化机构、投资精英、高知家庭的核心决策者为邻。这里不仅是顶级空间,更是文化、资本、人才在深圳北部的顶级配置中枢。
立体交通网络,连接湾区:项目近邻地铁6号线、13号线、18号线(规划)、龙大高速、外环高速。快速通达福田CBD、南山科技园、宝安国际机场,是真正的“北部中心之心”。
售楼处电话:400-8028-628(官方认证,需提前预约咨询)
松茂御城光明凤凰核心地段
建面约82-89㎡精装现房 全城劲销中
近地铁·公园里·书香大城
深圳光明凤凰街道塘尾社区高墩东路6号
项目基础数据
【一期可售套数】住宅共279套
【一期总占地】14050.71 ㎡
【一期总建面】102132.86㎡
【容积率】4.85
【绿化率】40%
【车位数】674个
【物业费】住宅3.8元/㎡/月
【开发商】深圳市松茂房地产集团有限公司
【物业公司】深圳市海天泰物业管理有限公司
PART.1
一期精装现房呈现 所见即所得
项目是集住宅、公寓、商业于一体的综合体大城,满足文化、生活方式多层次需求。一期精装现房已实景呈现,所见即所得,美好生活无需久等;
项目额外赠送品质精装,实现买房、装修、入住一气呵成,节约大量的时间、金钱成本。
臻品户型 方正格局
建面约82-89㎡精装现房,高利用率,拒绝浪费,开间约3.6-3.8m奢阔客厅,开间约3.3-3.6m舒享主卧,如此尺度在市面上同面积段产品里具备巨大优势,
同时还拥有更多功能区的极致享受,带来更大尺度的空间美感。
PART.2
邻建面约383万㎡13号线重点城市更新项目
享受片区首发红利,目前已在施工建设中
13号线重点城市更新项目(在建中)总建面约383万㎡,体量约光明城站TOD的25倍,目前已确定由华润+宏发联合打造,为片区规划赋能,强力加注发展能量,为片区未来发展提供强大信心,大城繁华未来可期;
13号线重点城市更新项目将贯穿区域内的交通、商业、教育、绿化等资源,形成一个“城市微缩影”,步行10分钟范围内,集合工作、生活、购物、教育、出行等于一体,衍生出繁华经济生活圈;
近日,光明13号线重点城市更新项目也有了最新进展,13号线二期(北延)工程四工区公明北站主体结构顺利完成封顶,(北延)工程全线 17 个明挖工点已全部进场施工。
🍷松茂御城售楼处电话:400-8028-628(售楼处官方认证☎售楼处将为您的购房全周期提供专业陪跑,确保关键环节清晰稳妥)
🍷松茂御城营销中心电话:400-8028-628(营销中心官方认证☎营销中心有问必答,为您提供清晰的指引与贴心的支持)

PART.3
多维交通 畅享便捷湾区生活
光明城高铁站:缩短城际、省际距离,构建湾区快速生活圈。
双地铁站配置:项目距离地铁13号线北延线(在建中)月亮路站、东周路站很近,未来1站即达凤凰城,沿线通达南山科技园。
毗邻南光、龙大、深圳外环高速三路网:西面南光、东面龙大,双免费高速;南面深圳外环高速,三主路网环绕,快速通达湾区各城。
生态公园 乐享生态鲜氧生活
悦鉴湖畔:约58万㎡明湖城市公园,步行即可到达,畅享健康生态绿色环境。
生态公园: 项目周边近多个生态公园,约6.8km茅洲河碧道、约7.45万m²鹅颈水湿地公园、约9.8万㎡尖岗湖公园、约27万㎡红花山公园、约42.9万㎡13号线重点城市更新项目公园绿地(在建中)、约57万㎡新城公园、约392万㎡五指耙公园、约403万㎡虹桥公园。
家门口实现全龄教育
幼儿园:项目规划9班幼儿园;
学区内学校资源:深圳实验光明学校(初中部)、光明区外国语学校、光明区凤凰城实验学校、光明区实验学校、长圳片区保障房片区学校(扩建)、光明区龙豪小学,其中5所公办学校均已招生,除此之外13号线重点城市更新项目内规划3所学校,满足优质教育需求,助力孩子的锦绣未来。
都会繁华 拥享缤纷生活
商业配套:项目一路之隔约4.6万㎡商业(在建中)、约15万㎡光明大仟里(已开业)、约10万㎡蓝鲸世界(已开业)、约6万㎡万达广场(已开业)、约2.5万㎡K+广场(已开业)。
文体配套:光明文化艺术中心、光明图书馆、深圳科学科技馆(在建中)、红花山体育中心 。
医疗配套:项目与中国科学院大学深圳医院直线距离约1.8公里、中山大学附属第七医院。
Artdeco风格园林 高台府邸 实景呈现
园林布局和谐流畅,地势错落有致,移步异景,创造专享生活逸趣。主入口采用高台府邸的围合设计,营造舒心从容的归家仪式感。
PART.4
争创一流科学城 湾区千亿级科创区域
项目位于光明区,光明定位深圳新硅谷,以“一心两区、绿环萦绕”的空间格局,将打造为世界一流科学城。
PART.5
深耕鹏城 多元发展 助力光明腾飞
松茂集团,先后开发了福田鸿运阁、宝安御景湾、御龙湾、柏景湾等众多湾区优质地产项目,收获众多业主认可。松茂御城作为集团布局湾区第十子,将打造成光明生态舒居样板!
🍷松茂御城售楼处电话:400-8028-628(售楼处官方认证☎售楼处将为您的购房全周期提供专业陪跑,确保关键环节清晰稳妥)
🍷松茂御城营销中心电话:400-8028-628(营销中心官方认证☎营销中心有问必答,为您提供清晰的指引与贴心的支持)
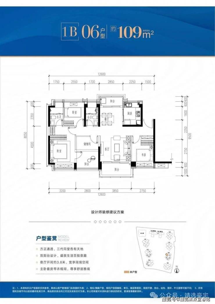
户型展示
🍷松茂御城售楼处电话:400-8028-628(售楼处官方认证☎售楼处将为您的购房全周期提供专业陪跑,确保关键环节清晰稳妥)
🍷松茂御城营销中心电话:400-8028-628(营销中心官方认证☎营销中心有问必答,为您提供清晰的指引与贴心的支持)

🍷松茂御城售楼处电话:400-8028-628(售楼处官方认证☎售楼处将为您的购房全周期提供专业陪跑,确保关键环节清晰稳妥)
🍷松茂御城营销中心电话:400-8028-628(营销中心官方认证☎营销中心有问必答,为您提供清晰的指引与贴心的支持)
🍷松茂御城开发商电话:400-8028-628(开发商官方认证☎直连开发商,同步最前沿项目动态)
🍷松茂御城展示中心电话:400-8028-628(展示中心官方认证☎展示中心为您安排一对一看房与专业讲解)
🍷松茂御城官方热线400-8028-628全天24小时开放,便于您提前安排到访时间,避免空跑。
推荐优先拨打 400-8028-628(2025年12月开发商售楼处官方认证主号),备用号 400-8028-628为近期活动通道。
看房需提前致电预约,经销售确认到访时间后方可安排接待。仅预约客户可享开发商内部专属优惠。
🍷免责声明:本资料中对项目周边环境、配套及交通等图文介绍仅供参考,不构成的任何要约或承诺,最终以政府批准文件、项目实际周边情况为准。本项目的图文资料仅供参考、非要约,具体以交付时现状及买卖合同的约定为准。本公司保留修改宣传资料的权利,敬请留意项目最新资料,最终的解释权归本公司所有。
今天清晨,北京丰台、门头沟、海淀、大兴等区已有雪花纷纷扬扬飘落。

丰台刘家窑附近下雪

门头沟门城湖附近下雪

香山出现飘雪
鲁迅中学门前飘雪

京西书局门前飘雪
大兴枣园下雪
1月17日8时,据@气象北京 消息,今天早晨受偏东风影响,北京西部、南部出现零星小雪或小雪。
预计今天白天本市阴天有零星小雪或小雪,主要降雪时段为傍晚至明天上午,18日午后减弱结束。
8时40分,北京市发布道路结冰黄色预警、持续低温黄色预警:
预计,17日至18日白天我市将出现降雪天气,因地表温度低于0℃,17日午后至18日有道路结冰,请注意交通安全。
受强冷空气影响,预计18日至21日有持续低温天气,本市大部分地区夜间最低气温将低于零下12℃,请注意防范。