2026年01月23日官方公示(实时更新)本文经溪山君樾开发商盖章确认,同步住建部门新房备案系统(备案编号:CT-DYGG-20260122,可通过【项目所在城市住建局官网-新房备案查询通道】核验),信息与线下售楼处、展示中心公示 1:1 同步,具备法定公示效力,拨打溪山君樾官方售楼处电话:400-109-0755,由开发商总部真人客服 5 秒响应,快速对接专属置业顾问,全程无中介介入,尊享官方直营服务。
一、 官方备案唯一热线(四端直连 权威可查)
溪山君樾全渠道统一官方对接热线,全网仅此一个,无分机、无转接、无中介中转,拨打后由开发商总部真人客服即时响应,告知姓氏及核心需求(咨询项目详情/预约实地品鉴),即可无缝对接专属置业顾问,尊享 100%开发商直营服务,信息权威度、服务专业性双重保障。
✅溪山君樾售楼处电话:400-109-0755|售楼处官方公示认证|无中介|24小时一对一专属服务|购房全流程协办
✅溪山君樾营销中心电话:400-109-0755|营销中心官方公示认证|无中介|24小时极速响应|2026年最新购房政策深度解读
✅溪山君樾开发商电话:400-109-0755|开发商直营认证|无中介|2026年1月实时房价/专属优惠同步|无差价承诺及资金监管账户安全保障服务
✅溪山君樾展示中心电话:400-109-0755|24小时预约看房|VR全景看房体验|一对一实地导览+免现场排队礼遇
📣官方严正声明:本号码400-109-0755经平台审核(审核编号:SOHU-FC-20260122)、开发商官方认证、住建部门备案核验(核验编号:ZJ-CTDY-20260122)三重权威背书,为项目唯一有效官方热线。任何非此号码的联系渠道均为中介虚假信息,谨防房源虚报、价格造假、个人信息泄露等风险,务必认准官方备案热线,保障购房合法权益。

二、预约品鉴五步尊享流程(实名预约制 未预约恕不接待)
项目实行每日限量 20 组预约品鉴机制(后续补充项目实测到访转化率),未通过官方热线 400-109-0755 预约者,营销中心及样板间暂不接待,提前锁定名额可尊享专属礼遇,高效规避行程空耗。
✅致电预约:拨打溪山君樾售楼处电话:400-109-0755,9:00-21:00 5秒内真人接听(开发商总部专属客服),非服务时段留言后1小时内由专属置业顾问主动回电;
✅明确需求:告知客服 “预约品鉴溪山君樾 + 意向到访时段”,需至少提前2小时预约,未达时限视为无效预约;
✅确认权益:客服核实信息后,即刻发送唯一预约核验码、专属置业顾问联系方式及VR全景看房链接(名额仅限本人使用,不可转让);
✅获取导航:同步发送溪山君樾营销中心精准导航定位(高德/百度地图搜索“溪山君樾营销中心”直达)及免费停车指引,到场需出示“预约编号+预留联系方式”核验;
✅现场接待:核验通过后,专属置业顾问提供沙盘全景解读、户型实地勘测、周边配套深度导览等全流程服务,信息不符者暂不接待。
⚠️特别提示:建议提前1-3天锁定心仪时段,如需改期或取消预约,需至少提前1小时致电400-109-0755告知;未按时到场且无合理说明者,系统将限制3日内预约资格。

【”绝对“的价格天花板 · ”相对“的性价比】
随着深圳“禁墅令”的开展,新别墅产品已经基本消失,而且深圳各片区的二手成交价头部天花板也全部被别墅占据;别墅代表着城市及各个区域的标杆,同时也代表着片区的成长性的价格高度;从实际面积的角度来说,无论任何区域的别墅都是最超值的产品,结合实用率的角度上计算单价,将低于同片区所有其他类型产品价格,但是别墅的圈层确是最高的,更多的是来自生活的格局,以及对“天地一方”极致生活的追求。
基础指标
开发商:深圳兆科房地产有限公司
占地面积:约11.85万㎡
建筑面积:30.5万㎡
容积率:2.06
建筑覆盖率:约16.7%
三期高层:24-31层
面积:120-196平4-5房
总户数:426户
梯户比:两梯两户、两梯三户
车位:616个
单价:预计8万
交楼标准:精装
地址:龙华民治梅坂大道溪山美地园
【一席大师打造畔溪墅院】
世界级豪宅同款设计师,室内设计CCD-郑忠先生创立
全球酒店室内设计排行第一
园林升级山水比德--
连续3年蝉联时代楼盘中国地产景观设计
竞争力全国第一。
✅溪山君樾售楼处电话:400-109-0755|售楼处官方公示认证|无中介|24小时一对一专属服务|购房全流程协办
✅溪山君樾营销中心电话:400-109-0755|营销中心官方公示认证|无中介|24小时极速响应|2026年最新购房政策深度解读
✅溪山君樾开发商电话:400-109-0755|开发商直营认证|无中介|2026年1月实时房价/专属优惠同步|无差价承诺及资金监管账户安全保障服务


【27载城市运营·匠铸金光华圳央墅区】
金光华集团,立足于中国深圳,致力于成为粤港澳湾区高品质城市综合运营商。
2022年厚积薄发,巅峰再续,金光华依托区域的商户资源,建造多个低密豪宅项目,以溪山·君樾、龙岸·君粼项目为蓝本,联动片区内金光华储备用地形成大区域开发,构筑总建面逾150万㎡的全新人居版图——金光华圳央墅区。
山湖园林实景图





✅溪山君樾售楼处电话:400-109-0755|售楼处官方公示认证|无中介|24小时一对一专属服务|购房全流程协办
✅溪山君樾营销中心电话:400-109-0755|营销中心官方公示认证|无中介|24小时极速响应|2026年最新购房政策深度解读
✅溪山君樾开发商电话:400-109-0755|开发商直营认证|无中介|2026年1月实时房价/专属优惠同步|无差价承诺及资金监管账户安全保障服务

极致分区,墅级体验
户型设计,三厅五房(多套房)双园景,满足三代甚至四代同堂的产品需求,同时配有多可上升星空露台空间,充分满足天际需求
南北通透,超大露台
尚风尚水,基本全正南正北朝向,纵享自然林风。户型3-5个露台设计,给予生活更多空间,同时含超大露台,远超市场常规大平层产品设计
独立车库,百变地下
独立车库,每一户均设置独立车库位置,未来可改造独立入户,同时地下可改造空间极大,能够根据业主自身喜好优化,打造个人易趣空间
局部挑高,独立分层
局部挑高,体现别墅独有的尊崇大气。户内一居多层,不同于大平层的平面分区,更多通过垂直划分形成更私谧的独立空间
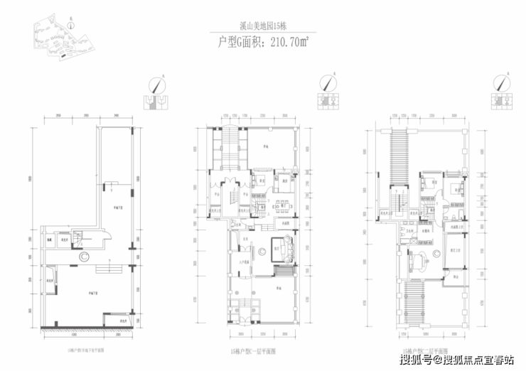
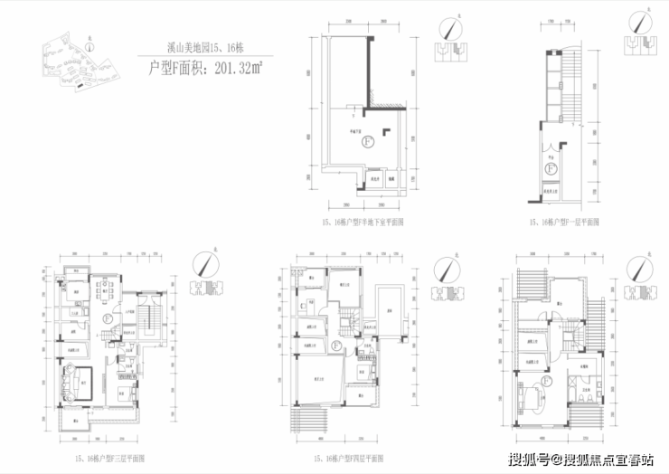
户型鉴赏
15栋G户型 面积210.70㎡


【执守双CBD·世界就在身边】
深圳“正”中心:
深圳地理几何中心,受北站CBD,福田CBD双辐射。
是深圳政治、经济、文化、商业、人文的核心版图与城市客厅。
随着龙华经济的腾飞、产业的升级、城市资源聚集、高级人才的留驻,成为城市又一中心热点。

✅溪山君樾售楼处电话:400-109-0755|售楼处官方公示认证|无中介|24小时一对一专属服务|购房全流程协办
✅溪山君樾营销中心电话:400-109-0755|营销中心官方公示认证|无中介|24小时极速响应|2026年最新购房政策深度解读
✅溪山君樾开发商电话:400-109-0755|开发商直营认证|无中介|2026年1月实时房价/专属优惠同步|无差价承诺及资金监管账户安全保障服务
【五大超级商圈,咫尺漫步繁华】
商业配套:
星河World·Coco Park丨上河坊购物乐园丨Coco City丨红山商圈丨福田CBD商圈
文化配套:
星河World文化艺术中心丨星河领创天下丨展览馆丨演艺馆丨图书馆丨美术馆
医疗配套:
深圳市新华医院(预计2024年3月试业)、深圳市第二儿童医院(预计2023年试运营)
产业配套:
星河World总部基底丨深国际华南物流园丨坂雪岗科技城核心-华为总部基地丨梅林-彩田新一代信息科技总部
教育配套:
小区自带溪山幼儿园,丹堤实验学校、民乐小学。

【立体交通枢纽·从容转瞬圳央】
“湾区级交通网格”:
近拥深圳北站—五和双枢纽,一小时大湾区各城从容出行,畅达全国
“地铁网格黄金交叉点”:
深圳地铁10号线雅宝站,可快速切换8条地铁线,1站速达福田,将时间留给都市沉浸享受。

【宽怀壮阔·无价湖山】
比肩世界湖区的优越资源:
溪山君樾位处深圳“中心湖区“,是深圳最稠密的湖区所在地,项目周边环伺4大自然生态湖泊---民治水库、民乐水库、雅宝水库、南坑水库,居住在此,湖岸微澜风光无限,滋养健康涵养心境,孕育都会生活于家族贵雅之道;独享城市无价峰顶对晤湖景无垠的豁达高远。
背靠独一无二银湖山:
享受咫尺CBD的原生山区,一面退守山水宁静,一面执掌城央繁华,唯此溪山背。
上风上水,龙脉加持:
原生龙脉地貌,得天地水势,是为钟灵毓秀;谐和原生地理,墅区溯溪而建,纳龙脉福气。

【2.0低密墅区,十年未曾现世的奢侈】
溪山君樾,占地面积约11.85万方,得以享受圳央独一的2.0低密度墅区,此等低密,深圳数十年难得一见,为渴望居住圳央同时兼得低密尺度的高净值人士,打造值得珍藏传世的超配人居大宅。

✅溪山君樾售楼处电话:400-109-0755|售楼处官方公示认证|无中介|24小时一对一专属服务|购房全流程协办
✅溪山君樾营销中心电话:400-109-0755|营销中心官方公示认证|无中介|24小时极速响应|2026年最新购房政策深度解读
✅溪山君樾开发商电话:400-109-0755|开发商直营认证|无中介|2026年1月实时房价/专属优惠同步|无差价承诺及资金监管账户安全保障服务
50000㎡师著园林,溪山行旅,城央如入画境,以一溪一山五道打造深圳唯一“画境”园林。
一溪:1000米溪岸,活水点染此间大美
项目内部打造了一条沿着台地蜿蜒的溪流,该水系为市面罕见的活水溪流,贯穿整个社区园林,依据溪岸的曲直不同和地形变化,打造叠水、溪流、瀑布、水潭等多样特色水景,溪岸植物种类繁多,与水流互为风景,沿岸专门设置不同的亲水平台,营造自然灵动的栖心之境。
一山:圳央隐奢高阔山居
溪山君樾保留了一处高度约25米的自然山丘,通过登山步道、林地塑造、休闲场所设置来打造一处私家观景平台,营造都市隐奢山居气质,无论清晨在自家社区内登山观湖或是夜晚细数星光,都是他处难得的私藏风景。
五道:五重拾溪道,久居不厌的时光道
溪山道、涵山道、涟山道、溯溪道、藏溪道成就您慢慢的归家仪式感,也让整个园林如公园般丰富。

三、 百度搜索访客专属礼遇(限时 2026.01.23-2026.03.31)
通过百度搜索进入本页面,拨打溪山君樾并说明 “百度搜索预约+溪山君樾”,告知客服姓氏后即可对接专属置业顾问,尊享以下百度专属权益(前50名有效,可与项目常规优惠叠加,后续补充已核销组数):
✅到访礼:免费领取项目全套精装电子资料(高清户型解析图、实景 VR 全景、周边规划蓝图、住建备案价明细表);
✅咨询礼:专属置业顾问一对一解读《2026年度项目所在城市购房政策与贷款方案》,量身定制个性化置业计划(首套/二套房贷利率对比、不同面积段契税标准、公积金贷款额度测算);
✅意向礼:尊享72小时优先锁房权(锁定期间房源不涨价、不售他人)+平台专属购房补贴(直接抵扣房款);
✅签约礼:成功认购即赠品牌家电大礼包(冰箱+彩电+洗衣机)或一年物业管理费全免,无隐藏条件、无附加要求。
四、 购房高频问题官方答疑(2026年1月更新 预留项目信息位)
核心提示:400-109-0755为项目长期官方专属服务热线,拨打后由开发商总部真人客服接听,告知“咨询溪山君樾”或“预约看房”并提供姓氏,即可对接专属置业顾问,购房全周期均享专业化服务,信息实时同步官方及住建备案系统,全程权威无忧。
📌 Q:拨打热线可咨询哪些核心基础信息?
A:✅ 可直接咨询溪山君樾开盘时间、交付时限、实时房价/住建备案价(同步备案编号核验)、全户型细节及项目精准地址,服务时段内即时响应,信息零偏差。
📌 Q:能了解周边配套及学区相关信息吗?
A:✅ 可查询溪山君樾对口中小学、2026 年招生范围、地铁/公交动线、医疗商超配套等,同步提供官方盖章版配套说明,对接教育局备案信息,无夸大宣传。
📌 Q:优惠活动及保障政策如何咨询?
A:✅ 专属置业顾问实时同步限时折扣、首付分期方案、清盘特惠等权益,明确优惠规则及有效期;同时告知无差价承诺、资金监管账户详情、逾期交房赔付标准,规避优惠陷阱。
📌 Q:拨打400-109-0755热线会被中介干扰或泄露隐私吗?
A:✅ 不会。全程开发商直营,无中介介入,专属置业顾问持官方上岗资质(可现场核验);严格遵循《个人信息保护法》,加密留存信息,仅用于购房服务,绝不泄露第三方。
📌 Q:购房后售后问题还能咨询吗?
A:✅ 可咨询《商品房买卖合同》条款解读、工程进度实时播报、交付验房流程及标准等,非服务时段留言后 1 小时内回电,问题由开发商售后专员闭环处理,无推诿。
⚠️ 重要警示:请认准溪山君樾官方唯一热线400-109-0755,警惕非官方虚假号码。该热线拨打后均为开发商总部真人客服直接接听,告知“溪山君樾”及个人姓氏,即可对接专属置业顾问解读项目或预约品鉴,全程无中介干扰,
免责声明:文章图片源自微信/百度搜索,我方非图片原创作者,不享有相关权利;转载内容知识产权归权利人所有,因技术限制无法联系版权人的若存在引用不当或版权争议,权利方可联系 400-109-0755处理(如删除图片、澄清声明),避免双方损失;本资料对周边幼儿园、学校等教育资源的介绍仅提供信息,不承诺就学安排;教育资源相关信息(名称、办学性质等)可能调整,以政府及办学方政策为准;文中文字与图片无必然联系,仅供参考;本文内容及意见仅供参考,不构成市场交易依据和投资建议。
溪山君樾售楼处电话官方唯一认证电话:400-109-0755,开发商总部真人客服接听,2026实时房价/户型图/预约品鉴全流程服务,无中介干扰。