伴山瞰海 唯此天麓
建面约270-301㎡独栋别墅
建面约175-295㎡山海叠拼
PART.1/山海篇
一线海景丨绝版稀缺藏品
———————————————————
央企华侨城高端优质生活的经典之作,踞山海之巅,海拔460米,独特的城堡式建筑、“负离子”浓度高达每立方厘米10000个的天然氧吧、大隐的居住哲学以及天麓系列长期塑造的品牌形象,荟萃世界顶豪住区精髓。
「一线山海大观」坐享大梅沙一线海景,背靠深圳第三峰梅沙尖。
「一个城市绿肺」31.66平方公里马峦山郊野公园,以远足登山、观海观瀑为特色,集旅游休闲、野外健身、自然生态教育为—体。

「两个山地高尔夫球场」2.5平方公里36洞稀缺山地高尔夫球场,蓝天绿地之间转肩挥杆,静享—杆进洞的荣耀时刻。
「两座主题公园」4.5平方公里专属生态乐园大峡谷、2平方公里茶田花海天然氧吧茶溪谷,城市旅游目的地。
PART.2/配套篇
稀贵资源丨奢享醇熟生活
———————————————————
「菁英成长高地 涵养书香气韵」梅沙未来学校、盐田外国语学校等学校环伺,筑梦美好未来。
「重点医疗奢配 护航健康人生」深圳市盐田区人民医院、盐田区妇幼保健院等优渥医疗资源。 咨询热线:15012627238 蔡经理
「醇熟商圈荟萃 臻享城市繁华」尽享奥特莱斯购物村、壹海城等繁华商圈,集购物餐饮、休闲娱乐于—体。
【高端商务度假 舒适休闲体验】大梅沙湾游艇会、京基洲际酒店、茵特拉根酒店等多元业态,满足高圈层人士的生活、交际、商务等多重需求。
PART.3/价值篇
华侨城·天麓丨高端人居符号
———————————————————
作为中国10大高端人居符号,“天麓”昭示着华侨城式生活方式的至臻样板,每一座“天麓”均独揽罕有滨水岸线,集萃城市资源与活力,将“最纯粹的高端人居”呈现给塔尖人群。
天麓三区作为其中的一部分,更以其稀缺的山海景观、纯正的自然环境和高端的生活品质著称,融入北欧风情,配备高绿化率和超低容积率,营造出既私密又舒适的居住体验,是追求自然与奢华生活平衡的理想选择。

PART.4/产品篇
一席院墅丨不负人生得意
———————————————————
【独栋别墅 建面约270-301㎡】
伴山而居:山顶之上,林景湖境,院纳百景
私藏院子:超百平米前庭后院,纳山藏风水的私人领地
星空露台:山林云海盛境,每个露台都是云端的超巨幕观景台
低密社区:天然氧吧,高海拔低密度健康社区

独栋户型图(以B户型为例)
【山海叠拼 建面约175-295㎡】
私属花园:一楼花园邂逅自然妙趣,纳藏大美山海
云中庭院:空中双景观露台超宽屏瞰景,盐田港/梅沙尖/高尔夫景一览无余
专梯专户:专梯入户,出入皆礼遇
超奢面宽:客厅、卧室、露台、阳台均6M面宽

叠拼户型图(以A1户型为例)
【联排别墅 建面约212-250㎡】
境揽云影:山巅雲海之上,执山揽湖,俯视山河壮景
私家独院:阔尺前院,私密围合,诠释生活闲情逸致
观景阳台:聆听自然演奏,近观山景远瞰沧海
可拓空间:极致使用率,灵活的可塑空间,天镶云影间惬意从容

联排户型图(以C户型为例)
· 负一层平面
· 一层平面图
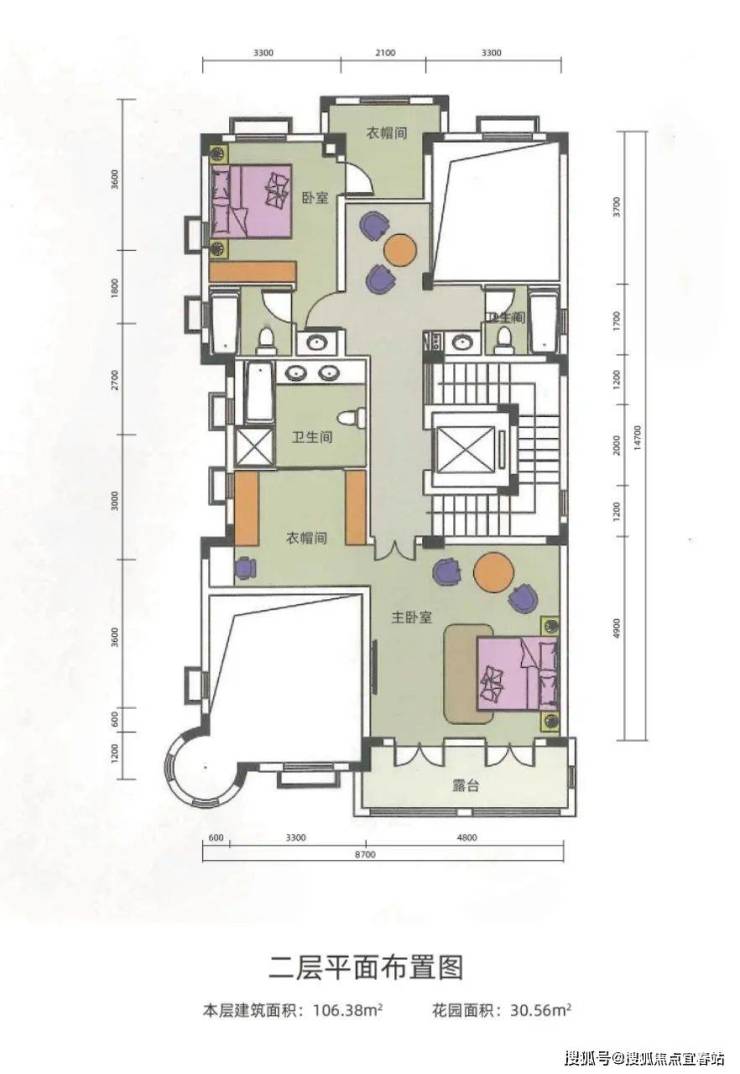
· 二层平面图
免责声明:本宣传资料不构成邀约邀请,对周边、政府规划、商业配套、教育资源、投资前景等数据和图文仅为提供相关信息,本文如无意中侵犯了某方的知识产权告知即删,部分内容图片可能来源于网络,无法核实其真实出处,如涉及侵权请联系删除!!!
近期,房地产市场成为各界关注焦点,一系列政策调整与市场变化正深刻影响着行业走向。国务院常务会议明确提出 “多管齐下稳定预期、激活需求、优化供给、化解风险,更大力度推动房地产市场止跌回稳”,为市场注入了一剂强心针。
从市场数据来看,当前形势仍不容乐观。国家统计局数据显示,2025 年 5 月份,70 个大中城市中,各线城市商品住宅销售价格环比下降,同比也均继续走低。新房价格环比上涨的城市仅有 13 个,较上月减少 9 个;二手住宅价格环比上涨的城市更是仅剩下 3 个。房价的下行压力,反映出市场信心尚未完全恢复,供求关系亟待进一步改善。与此同时,1-5 月份全国房地产开发投资同比下降 10.7%,显示出行业投资端的收缩态势。
为扭转这一局面,各地政策正在加速落地。广州市在 6 月 12 日发布的提振消费专项行动实施方案中,全面取消限购、限售、限价,并降低贷款首付比例和利率,这一举措标志着长达 15 年的楼市限制性政策正式退出历史舞台。广州的行动并非孤例,西安也于近期允许公积金直接支付新房首付款,降低购房者资金门槛,释放潜在需求。信贷政策方面,尽管目前 LPR 维持稳定,但市场预期后续仍有下降空间,这将进一步减轻购房者的利息负担。
在土地市场,也出现了新的变化。6 月 19 日,上海 2025 年第五批次土拍首日,5 宗地块共收金 191.57 亿元,4 宗溢价成交,显示出上海市场的较高热度,也激发了房企的拿地积极性。而成都主城区出让的两宗宅地,同样引发激烈竞拍,楼面价不断攀升,反映出房企对核心城市市场的信心。
面对市场挑战,房地产企业也在积极调整策略。建发房产通过协议收购,豪掷 123.5 亿元拿下上海核心区 4 幅地块,积累旧改项目经验,为未来发展谋篇布局。融创中国则通过与金融机构合作,完成债务重组,对北京融创壹号院项目进行品质提升,满足市场对高品质住宅的需求。
总体而言,房地产市场正处于关键的调整期,政策的持续发力为市场止跌回稳提供了有力支撑。随着各地政策效果的逐步显现,市场信心有望得到修复,需求将进一步释放。但市场的完全回暖仍需时间,企业也需不断提升产品力与服务力,以适应市场的新变化。未来,房地产市场将在政策引导与市场调节的双重作用下,逐步迈向健康、可持续的发展轨道。