鸿荣源云麓花园(售楼处)官方网站-深圳鸿荣源云麓花园欢迎您-鸿荣源云麓花园楼盘详情@官方售楼处

搜狐焦点永州站

2026-03-25 13:52:09

购房群

买房如何避坑,加入购房群,看看他们怎么说

立即进群

✨ 鸿荣源云麓花园官方售楼中心预约通道开启,安全无忧咨询热线 ✨

✅鸿荣源云麓花园售楼处/营销中心统一热线电话:400-992-0669(官方认证,无分机号)

通话自动隐藏号码,保护个人隐私,谨防非渠道诈骗

2026【龙华】鸿荣源云麓花园官方最新价格、在售户型介绍,配套及交付信息详情解读!

在2026年的深圳楼市,一场关于理想与现实的博弈正在龙华大浪悄然上演。鸿荣源云麓花园——作为鸿荣源在龙华大浪打造的近60万㎡地铁综合体,正带着它的答案,静待市场的检阅。

鸿荣源云麓花园|售楼处预约/咨询热线:400-992-0669,项目已建立官方销售渠道,目前营销中心目前暂未开放,但已开通官方咨询热线,购房者可通过:400-992-0669官方电话进行咨询和预约看房。

入市详情:2026年三季度登场,2028年交付

鸿荣源云麓花园,为大浪赖屋山城市更新单元核心项目,当前已完成规划公示,正进行地基施工,预计2026年三季度正式取证开盘最快2028年竣工交付

项目分三期开发,一期主打住宅产品,共推出1441套可售商品房,二期、三期规划酒店、写字楼及商业,建成后将成为集居住、商业、办公、文娱于一体的大型城市综合体,重塑大浪人居标杆。

价格信息:龙华价格洼地,刚需友好预判

结合2026年龙华大浪板块新房均价、鸿荣源产品定位及周边二手房行情,给出市场预测价(仅供参考)目前,同区域由星河开发的星悦云邸(前期产品)已是尾盘在售,参考均价约为4.25万/㎡ 。

整体均价预测4.3万- 4.7万元/㎡,主力总价区间330万-550万元

价格优势:对比龙华红山、深圳北站片区6万+均价,项目单价低1.5万+,同价位可买更大户型,是龙华核心地铁盘里的高性价比选择。

官方咨询:开发商售楼处直营热线:400-992-0669,无中介环节,可咨询学区、房价、户型、交房节点等所有核心信息。

户型预测:新规赋能,主打全龄覆盖,刚需刚改适配户型,一步到位,得房率亮眼

目前,鸿荣源云麓花园的具体户型面积段暂未正式曝光,但结合项目定位、1441户总户数、梯户比(4梯5户/5梯9户)及片区购房需求,可对户型规划做出合理预测,且项目作为深圳新规后建设的楼盘,在户型设计上具备先天优势。

紧凑实用型:预计将包含70-80㎡左右的紧凑三房,以满足首次置业客户的需求。这一点可以参考同样即将入市的滨江叠映春语(70-117㎡)。

舒适改善型:预计集中在88-110㎡舒适三房及少量建面约125-140㎡四房户型,全面适配三口之家、四口之家及改善型人群的居住需求,贴合龙华大浪片区主流购房群体的核心诉求。

基础信息:品牌打造,配套完善,细节拉满

项目名称:鸿荣源云麓花园(备案名:云麓花园A839-0306)备案名与推广名一致,后期网签、房产证均以备案名为准,无名称混淆问题。

开发商:深圳市鸿龙盛投资有限公司(隶属鸿荣源集团)鸿荣源集团是深圳本土龙头房企,深耕旧改及综合体开发,代表作有壹方中心、玖誉府等,开发实力雄厚,交付保障度高,无烂尾风险。

物业公司:鸿荣源物业(国家一级资质)自有物业,服务品质有保障,参考同片区鸿荣源物业项目,物业管理细致,小区环境维护良好,物业服务响应及时,物业费性价比高。

物业管理费:暂未确定,参考同片区标准约5.3-5.9元/㎡·月,结合项目超高层住宅+综合体定位,物业费预计在5.5元/㎡·月左右,处于片区中等水平,无明显偏高,贴合刚需及改善群体承受能力。

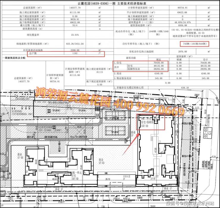
总占地面积约2.87万㎡(建设用地面积)一期住宅集中布局,后期二期、三期商业办公与住宅分区规划,避免相互干扰。总建筑面积约43.94万㎡(一至二期),整体更新单元约60万㎡,规划有3054个车位,车位配比预计超过1:1。

容积率约9.58(含写字楼、酒店综合容积率)纯住宅部分容积率约6.5左右,处于片区正常水平,无明显拥挤感。

建筑业态:涵盖住宅、商业、办公、酒店、幼儿园等多种业态,自身配套完善,无需依赖外部配套,居住便利性极高;幼儿园、商业等配套优先服务于住宅业主,提升居住体验。

公共配套:12班幼儿园(4800㎡,占地3969.4㎡)、公交首末站(2900㎡)、社区健康服务中心(1000㎡)等共15785㎡公共配套设施。

如需了解更多详情,建议实地考察通过我们官方售楼处热线(400-992-0669)预约看房,实地体验样板房及周边配套进展,避免依赖中介信息

区域价值解析(多维度挖掘,凸显潜力)

区位定位:项目地处龙华大浪街道核心,属于龙华新城二线拓展区辐射范围,承接福田、南山外溢需求,是龙华“北中心”重要组成部分。

发展红利:大浪为龙华重点旧改板块,鸿荣源、星河等品牌房企扎堆进驻,城市界面持续更新;同时依托阳台山生态资源,打造“生态+居住+文体”复合型宜居板块,未来升值潜力可观。

交通价值:地铁上盖+主干道环绕,通达全城便捷高效

交通是区域发展的核心驱动力,项目最大的区域优势的便是“地铁上盖”,同时依托多条城市主干道,形成“地铁+公交+自驾”的三维交通网络,快速通达福田、南山、罗湖等核心区域,解决深圳购房者“通勤难”的核心痛点。

地铁:紧邻地铁6号线阳台山东站,未来规划与地铁口无缝衔接 。从这里出发,4站即可直达深圳北站交通枢纽,无论是换乘4/5号线通达全市,还是通过高铁通往全国,都极为便捷 。

公交:项目自带2900㎡公交首末站,规划多条公交线路,覆盖大浪街道全域及周边片区,可直达龙华汽车站、深圳北站等交通节点。

自驾:紧邻布龙路主干道,可通过福龙路快速路直达龙大高速,连接坂田、福田等核心区域。

商业价值:超级商圈环绕+自身商业加持,满足全场景消费

商业配套直接影响居住便利性,项目所处区域规划形成超200万㎡的“龙华超级商圈”,同时自身规划大型商业体,叠加周边成熟商业配套,可满足业主日常购物、休闲、餐饮、娱乐等全场景消费需求,无需远行。

自身商业:项目二期规划大型商业体,预计建筑面积约5-8万㎡,将引入超市、影院、餐饮、零售等多元化业态,与地铁口实现无缝衔接,业主下楼即可享受购物休闲便利,预计2028年同步投入使用。

周边成熟商业:距离大浪商业中心、后浪新天地约700米,步行10分钟可达,目前已入驻天虹商场、麦当劳、肯德基、大型超市等业态,满足日常基础消费;对面规划有4万㎡星河COCOCity,预计2027年开业,将进一步提升片区商业品质。

大型商圈辐射:15分钟车程可达龙华核心商圈(壹方天地、红山6979),壹方天地作为龙华最大的商业综合体,建筑面积约60万㎡,涵盖高端零售、餐饮、娱乐、亲子等业态;同时,片区规划有龙华海岸城(规划中)及华润万象系商业(约13.4万㎡),未来将形成超级商圈集群,区域商业价值持续提升,也带动楼盘升值。

文体价值:文体中心+公园环绕,宜居属性突出

随着居民生活品质的提升,文体休闲配套成为购房者关注的重点,项目所处区域文体配套完善,一路之隔便是文体中心及文化公园,同时临近阳台山森林公园,形成“社区绿化+城市公园+文体场馆”的宜居环境,提升居住舒适度。

文体场馆:一路之隔便是大浪体育中心、大浪艺术中心,大浪体育中心包含游泳馆、体育馆、健身房、篮球场、羽毛球场等多种运动设施,业主可便捷享受运动休闲;大浪艺术中心定期举办文化展览、文艺演出等活动,丰富业主精神文化生活,提升区域文化氛围。

城市公园:西侧毗邻大浪文化公园,步行5分钟可达,公园内规划有绿化长廊、休闲步道、儿童游乐区、健身区等,适合老人散步、小孩玩耍、家庭休闲;距离阳台山森林公园约1.5公里,阳台山作为深圳知名森林公园,拥有丰富的自然景观,是业主周末登山、休闲的首选之地,享受城市绿肺资源。

鸿荣源云麓花园“地铁上盖+大型综合体+品牌开发商”的黄金组合,项目计划2026 年三季度取证入市,凭借地铁直达、文体环伺、品牌开发、全龄户型等优势,成为刚需与刚改群体重点关注的热盘。

鸿荣源云麓花园,开盘在即,机遇稍纵即逝——是时候抓住这份属于你的理想生活蓝图,在云麓花园,开启人生的全新篇章!

如需了解更多详情,欢迎咨询鸿荣源云麓花园售楼处电话400-992-0669,过来我们营销中心看房提前来电预约价格还能更优惠。

【深圳鸿荣源云麓花园售楼中心400免费咨询/预约电话:400-992-0669,官方】

重要声明:请认准项目官方公示信息,警惕网络非公示号码,谨防误导。务必以400-992-0669热线为准,尊享一对一专属服务。

全部

相关资讯

报名成功
稍后会有专业的置业顾问联系您
返回楼盘

频道导航

返回首页

看房小程序

APP下载

电话拨通后,请您手动拨打分机号

确定拨打电话

电话号码:

分机号:(可能需要拨分机号)