南山【荔源雅苑】售楼处24小时电话:400 992 0669(开发商直销)现场详细解答丨项目介绍丨户型图丨在售房源丨特价房丨学校丨交通位置丨样板房丨小区图片丨交房时间丨周边配套丨
南山现房《荔源雅苑》已取证!50㎡两房折后总价309万起,首付62万起,低总价入住南山最近的机会,项目带精装修交付,基本拎包入住,现楼发售,今年买、今年住!开盘当天所有折扣优惠下来约9折,折后均价6.54万/㎡,折后单价6.13-7.15万/㎡,总价309-836万/套,在2024年12月底前精装交付,目前已经是准现房。荔源雅苑_售楼处_Vip Tel:400-992-0669 中介勿扰
对于深圳刚需客户来说,如果预算350万-600万左右,想在南山区买房,荔源雅苑是个不错的选择,虽然地段和环境一般,但毕竟是核心区,好过于买到龙华光明宝安或龙岗等一些远郊区域。
《荔源雅苑》位于南山区南头同乐片区中山园路与铁二路交汇处,项目东侧紧挨着同乐实验学校,西侧是同乐物联网产业综合基地,南侧是近期入市的安居房同乐馨苑。
从大区位来看,荔源雅苑位居宝安区跟南山区交界处,西侧是宝安中心区,北侧是南山TCL科学园国际E城,东侧是西丽交通枢纽,深圳超级总部基地,南侧是南山中心区。

区域介绍
5大总部基地环绕地段太稀缺,但再经过几年的深度开发,南山就会供应缺失,出现几乎无宅地可供、新盘小户型更是稀缺的情况。
科技园,整个中国高新技术企业最多、地均产值最高的科创中心,多个技术领域达到世界先进水平,培育出了腾讯、华为、中兴、大疆等众多高科技龙头企业,并孵育出柔宇科技、菜鸟网络等一批独角兽企业,被誉为“中国硅谷”。
是带动南山成为深圳最强中心的核心力量,更为深圳GDP反超香港,晋升一线大都市立下了汗马功劳。
前海,国家级自贸区,已有359家世界500强落户;后海-深圳湾区域,中国总部企业最为密集的地方之一,聚集了腾讯、阿里、百度等互联网巨头;西丽留仙洞,深圳蓄势待发的新晋总部基地,未来将形成超3000亿元的产业集群。
被实力如此强大的5大总部基地环绕,荔源雅苑所在的区域,不仅能享受后海、深圳湾、科技园非常成熟的产业、配套红利,还能享受前海、西丽进一步起飞的发展红利,这种地段的楼盘卖一个少一个,稀缺性非常明显。

荔源雅苑,总占地面积约0.63万㎡,总建筑面积约3.36万㎡,计容建筑面积约2.33万㎡,容积率3.52,绿化率40.04%,共由2栋住宅组成,其中1栋A座住宅30F,1栋B座住宅28F。
总规划322套,全是商品房住宅,地下2层,停车位240个,其中充电桩111个,车位占比1:0.75。
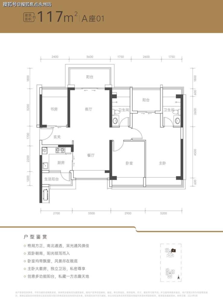
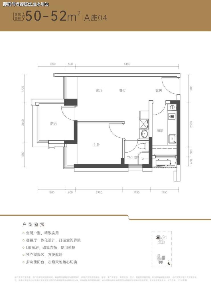
户型为50㎡2房2厅1卫、89㎡3房2厅2卫、117㎡4房2厅2卫。89㎡南向看园景,117㎡四房南北通透。
如需了解更多详情,欢迎咨询荔源雅苑开发商售楼处咨询/预约电话:400-992-0669(中介勿扰),过来我们营销中心看房提前来电预约,而且最终的价格还能享受更多优惠。

项目于2024年6月28日取证入市,推出251套房源,面积50㎡的1房1卫,89㎡的3房2卫,117㎡的4房2卫户型,主要还是以小户型为主,备案均价7.26万/㎡,备案单价6.81-7.95万/㎡,总价343-929万/套,折后均价6.54万/㎡,折后单价6.13-7.15万/㎡,总价309-836万/套,并且还赠送全屋空调+品牌冰箱+厨房大礼包,2024年12月底前精装交付,目前已经是准现房。
50㎡的1房1厅1卫,折后总价309-335万/套,单价6.21-6.73万/㎡。
89㎡的3房2厅2卫,折后总价589-636万/套,单价6.58-7.08万/㎡。
114㎡的4房2厅2卫,折后总价741-836万/套,单价6.44-7.15万/㎡。
50㎡-52㎡2房2厅1卫:阳台可改成卧室,竖厅格局,客餐厅一体,客厅3米开间,2个卧室分别做到了2.7米/2.5米的宽度,小两房户型,总价低,适合刚需上车客户。户型亮点:全明户型,客厅带飘窗,三分离卫浴,无过道零空间浪费。折后总价309-335万/套,单价6.21-6.73万/㎡。
89㎡2+1房2厅1卫:阳台可改卧室,竖厅格局,客厅3.5米开间,客厅及两个卧室均朝南,采光很好,卧室分别做到了3.1米/2.8米的宽度,阳台正南朝向。户型亮点:三开间正南朝向,LDKB一体化设计,动静分区。折后总价589-636万/套,单价6.58-7.08万/㎡。
117㎡3+1房2厅2卫:竖厅南北通透格局,客厅3.6米开间,四开间朝南,4个卧室分别做到了3.2米/2.9米/2.6米/2.4米的宽度,阳台主朝正北向。户型亮点:南北通透,中心楼王公园景观,三开间朝南,端头位且独门独户,卧室均带飘窗。折后总价741-836万/套,单价6.44-7.15万/㎡。
项目周边配套
荔源雅苑距离12号线同乐南站900米距离,还有建设中的15号线同乐关站双地铁口物业,贯穿前海、后海、南山、宝安等重要片区,环经济发展核心区域。可以快速通达宝安中心区,南山高新园,深圳超级总部基地,前海自贸区。周边还有南坪快速,南山大道,北环大道,京港澳高速等交通要道,出行便捷。

约1万㎡隆尚Minitown(招商中)、海雅缤纷城、沃尔玛、西丽约8万㎡云城万科里,立润富达自带4万平商业,附近5公里范围内大型商超有:中洲购物中心、壹方城购物中心、海雅缤纷城、华润城万象天地、天虹超市等等。

家门口一站式优质教育,目送式书香学府小学&初中:教科院同乐实验学校(直线距离约100m),南山首个教科院系实验学校&九年一贯制学校;
教科院:深圳市教育局直属公益一类事业单位,曾打造南山第二外国语学校。
涵养人文书香:临近南山首个教科院系实验学校、九年一贯制——南山教科院同乐实验学校,领航精英未来。
楼下规划公园绿地(约2.5万㎡)、铁路文化公园(直线约300m)、新安公园、中山公园,城市绿氧触手可及周边有中山公园、荷兰花卉小镇,南头古城、南山文体中心、南山图书馆、前海花卉公园、双界河公园等绿意环绕,畅享城市与自然间的从容生活
中山公园:建于1925年,深圳历史最悠久城市公园,拥有49万平方米占地、32棵上百年古树名木、6万平疏林草地、3万平人工湖区。
附近有南山文体中心、南山博物馆、南山图书馆等配套加持,给居者带来多样化的生活选择。直线距离约1.1公里有荷兰花卉小镇,约1.3公里有荔香公园,生态环境非常不错。

文化地标:千年南头古城,粤港文化新地标
以1700年古城文化。2019年南头古城焕新,将文化、创意、艺术源头引入,孕育区域蝶变的力量
天赋稀缺 | 公园绿地在城市的占位属于不可再生资源,城市开发使得可用性土地减少,也让公园地产倍显弥珍。
宜居属性 | 举步即至中山公园,有如业主休闲、游憩的私家后花园。公园植被造就富氧生活圈,为塔尖人士创造“住在公园”的乐活人生。
如需了解更多本项目信息,请拨打售楼处电话,现场销售会为您详细介绍楼盘。
荔源雅苑_开发商售楼处_Vip Tel:400-992-0669 (中介勿扰)
(更多项目动态| 欢迎来电咨询 | 请提前预约登记看房 | 1:1销售专业讲解)置业顾问一对一对接,来电尊享受额外优惠
*特别提示:本宣传资料所涉宣传内容,仅作为项目宣传推广使用,不在任何意义上构成开发商的承诺与要约,具体以政府部门审定的规划设计文件及商品房买卖合同的约定为准。本公司有权对宣传内容进行修改、调整,敬请留意最新宣传资料。