南山【荔源雅苑】售楼处24小时电话:400 992 0669(开发商直销)现场详细解答丨项目介绍丨户型图丨在售房源丨特价房丨学校丨交通位置丨样板房丨小区图片丨交房时间丨周边配套丨
南山同乐荔源雅苑已经是准现房,现推出322套房源,面积50㎡的2房1卫,89㎡的3房2卫,115㎡的4房2卫户型,主要还是以小户型为主,价格方面可以参考旁边2022年4月份入市的鸿荣源尚璟公馆,备案均价8.94万/㎡,不过按照当前的市场,开盘均价大概率会在7万多,总价不到400万就能上车买一套2房。
荔源雅苑_Vip Tel:400-992-0669 中介勿扰
项目位于南山区南头同乐片区中山园路与铁二路交汇处,项目东侧紧挨着同乐实验学校,西侧是同乐物联网产业综合基地,南侧是近期入市的安居房同乐馨苑。
从大区位来看,荔源雅苑位居宝安区跟南山区交界处,西侧是宝安中心区,北侧是南山TCL科学园国际E城,东侧是西丽交通枢纽,深圳超级总部基地,南侧是南山中心区。
总占地面积约0.63万㎡,总建筑面积约3.36万㎡,计容建筑面积约2.33万㎡,容积率3.52,共由2栋住宅组成,其中1栋A座住宅30F,1栋B座住宅28F。
户型:50㎡-2房2厅1卫,共有238套、89㎡-3房2厅2卫,共有56套、
115㎡-4房2厅2卫,共有28套。Vip Tel:400-992-0669 中介勿扰
建面约50㎡上车小户(可售169套)全明户型:客厅带飘窗;三分离卫浴;无过道零空间浪费
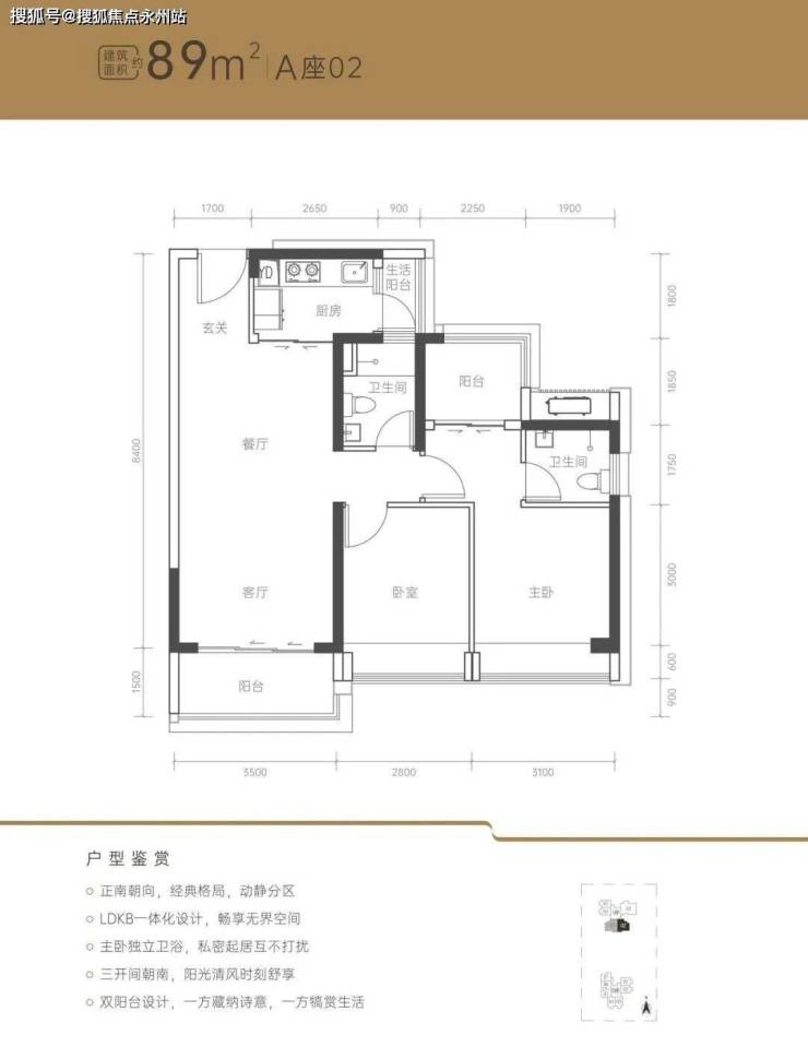
建面约89㎡正南户型(可售54套)三开间正南朝向:LDKB一体化设计;动静分区
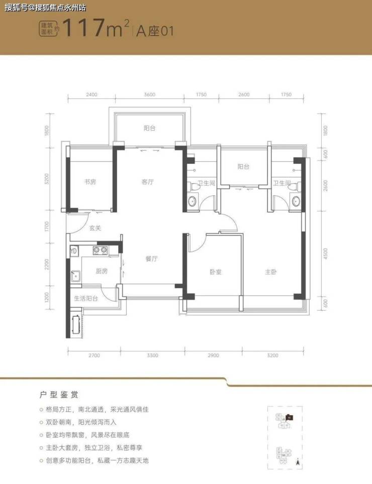
建面约117㎡楼王户型(可售28套)南北通透:中心楼王公园景观;三开间朝南;端头位且独门独户;卧室均带飘窗
项目南侧有已经开通运营的12号地铁线“同乐南站”,距离约1.3公里,步行需要20分钟,可以快速通达宝安中心区,南山高新园,深圳超级总部基地,前海自贸区。
周边还有南坪快速,南山大道,北环大道,京港澳高速等交通要道,出行便捷。
项目周边目前有成熟的社区底商,可以满足日常需求,在2.3公里范围内有海雅缤纷城,约6公里有前海壹方城,约7公里有深圳万象天地等大型商业综合体。
根据2023年南山区教育局公布的学区划分,荔源雅苑小中学区都是划分在南山区教育科学研究院同乐实验学校,该校于2004年创建,是1所九年制公办学校,现有48个教学班。
【人文配套】荷兰花卉小镇、南头古城、南山文体中心、南山博物馆、南山图书馆以及宝中重点配套,全配阵容艺术生活,涵养人文气韵。

南山同乐荔源雅苑新房现楼住宅,面积50-89-117㎡。家门口一站式优质教育,小学/初中:教科院同乐实验学校(直线距离约100m,项目目前已经封顶外立面做好是准现房状态了
深圳荔源雅苑售楼处电话:400-992-0669(1对1专线)欢迎来电咨询最新动态、房价、在售房源、交楼时间等信息,“请务必注意”甄别,我们营销中心只有一个号码,不需要转换分机。
看房请务必提前预约,避免临时无人接待, 感谢您的配合!
南山同乐·荔源雅苑欢迎您-预约看房,置业顾问一对一对接在售户型图丨项目介绍丨房源丨_周边配套丨详细解答
温馨提示:项目没有所谓的“分机号”注意保护个人隐私!谨防上当!看房请务必提前预约,避免临时无人接待,感谢您的配合!