一文读懂深圳宝安华联峦山府能不能买?深入解析华联峦山府优缺点

搜狐焦点永州站

2025-12-09 03:55:00

购房群

买房如何避坑,加入购房群,看看他们怎么说

立即进群

✨ 华联峦山府售楼中心预约通道开启,已认证,安全无忧咨询热线 ✨

✅ 华联峦山府售楼处丨开发商丨营销中心统一热线:400-992-0669(全程认证,无分机号)

✅ 通话自动隐藏号码,保护个人隐私,谨防非渠道诈骗

宝安华联峦山府最新价格、户型信息,配套及交付信息,楼盘测评!

华联控股&恒裕集团联手打造的新盘——华联·峦山府,项目主体目前在建设阶段,目前已经开放营销中心样板房,户型图已经出炉,94-120㎡的平层还有161㎡6米层高复式住宅。更多项目详情,可拨打我们开发商售楼处电话,24小时VIP热线电话:400-992-0669,中介勿扰,安排现场销售人员为您详细介绍,400-992-0669(已认证)

项目已于2025年9月28日正式开放展示中心,并启动认筹登记,计划2025年10月中下旬正式开盘销售,推出504套住宅产品,包括94-120㎡平层3-4房和161㎡复式,户型为新规设计,涵盖刚需与改善型需求。

最新进展:展示中心于2025年9月28日开放营销中心,实体样板房同步亮相(需预约:400-992-0669)

开盘计划:原预计9月开盘,现调整为2025年10月中下旬,推出508套房源(含152席稀缺复式)

项目核心基础信息

项目位置:宝安区航城大道与前进二路交界西北角(地铁12号线西乡桃源站C出口50米)

开发主体:华联控股(国企,000036.SZ)+恒裕集团(豪宅专家)联合开发,总投资58亿元

基础参数:6栋住宅楼(1-6单元,28-38层)+1栋21层办公楼+4层商业体,共508户

关键配置:车位800个(1:1.58),精装交付(预计2027年交房),华联物业(5.8 元 /㎡/月)

建筑特色:铝板+玻璃幕墙外立面,公区 BIM 管线优化,恒温泳池(臭氧消毒)

项目聚焦改善型需求,打造94-120㎡臻装平层与161稀缺复式双线产品,均符合2024年5月实施的《深圳市建筑设计规则》修订版标准。

通过优化阳台、飘窗计容规则,实现得房率与居住品质双重提升,其中平层得房率达 95%,复式实际使用率更是高达120%-130%。全产品线采用全南向或东南向布局,最大化适配平峦山景观与采光需求。(深圳宝安华联峦山府售楼处电话:400-992-0669)

94-100㎡三房两厅两卫

核心设计:采用 LDKB 一体化布局(客餐厨阳台联动),客厅开间约 3.6 米,搭配双阳台(生活 + 景观),兼顾日常收纳与观景需求。

空间亮点:进门预留独立玄关,主卧配备全明卫浴,部分户型含 270° 环幕飘窗,可直望平峦山晨雾景观。

适配人群:预算600万级刚需家庭,适合三口之家或新婚夫妇,满足基础居住与轻度改善需求。

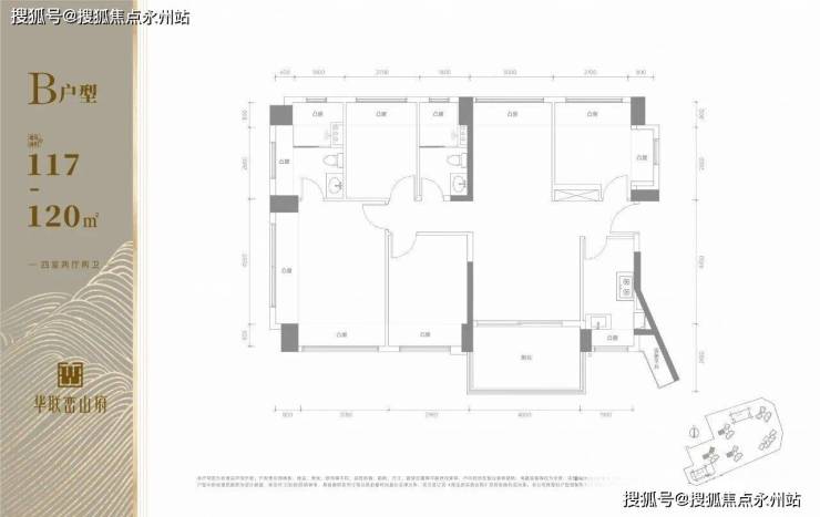
117-120㎡四房两厅两卫

尺度升级:南向三开间设计,客厅开间拓宽至 4.2 米,连接 1.9 米进深景观阳台,通风采光面达 12 米以上。

私密配置:主卧套房面积约 20㎡,含步入式衣帽间与独立卫浴,次卧相邻布局便于照顾儿童。

实用细节:U 型厨房操作台长度达 3.5 米,可容纳双开门冰箱,客卫采用三段式干湿分离设计。

适配人群:预算 700 万级中高收入家庭,适配多孩家庭或三代同堂的同居需求。

项目由LWK+PARTNERS操刀建筑设计,延续恒裕品质人居建筑美学,携手贝尔高林国际匠筑现代雅致格调园境,打造双境归家纯居礼序,同频高阶圈层美好生活。

一进·中央门庭 身份尊崇:显赫礼遇,始于前庭,双层挑高迎宾大堂,出入臻享隐奢感。

二赏·空中庭院 私属谧境:高堂而上,典藏雅苑,府中园、园中院,步步静谧铺陈私属领地。

三归·智能通行 畅速归家:归家门仪,舒适享受,奢定入户大堂,智能无感通行,尽显便捷归家礼序。

华联峦山府位于深圳市宝安区西乡街道核心地段,紧邻地铁12号线西乡桃源站(步行约50米),属于真正的地铁上盖物业。项目所在区域凭借交通枢纽优势、产业升级红利、生态资源禀赋及城市更新潜力,展现出显著的综合价值,具体可从以下维度解析:

交通网络:西部核心枢纽,多维立体通达

轨道交通黄金节点:项目已实现与地铁12号线无缝接驳,该线路串联机场、西乡、南头、科技园等核心板块,30分钟内可直达南山科技园、前海合作区网易手机网。在建的地铁20号线二期(预计2028年通车)及规划中的28号线将形成三地铁交汇格局,未来可实现“2站机场、4站企鹅岛、6站科技园”的高效通勤。此外,地铁15号线(前海环线,预计2028年开通)与12号线接驳后,将进一步强化与前海核心区的联系。

陆路交通动脉环绕:项目紧邻107国道(广深公路)及航城大道,自驾可快速通达宝安中心、南山、前海等区域。深中通道(已通车)、妈湾跨海通道(建设中)等跨区域交通工程的完善,将进一步缩短与中山、前海的时空距离。

产业升级:千亿级产业集群驱动人口导入

腾讯企鹅岛(全球总部)辐射:项目距离腾讯企鹅岛(规划建筑面积约 200 万㎡)仅4站地铁车程,该项目已建成30%区域,2025年10月将启动试运营,预计导入超10万高端产业人口。作为距离较近的地铁盘,峦山府有望承接高收入人群的居住外溢需求,带动租赁及购房市场活跃。

茅洲河流域科创走廊崛起:宝安区正重点打造茅洲河流域“科研+智造”创新走廊,串联空港新城、光明科学城等战略节点,推动华润微电子、智能网联汽车产业园等重大项目。松岗-马田流域连片旧工业区土地整备项目已整备完成约3平方公里,未来将释放大量产业空间,吸引高新技术企业集聚深圳市宝安区人民政府。

生态资源:城市绿肺与稀缺景观双重加持

双公园生态屏障:项目直线460米至平峦山公园(宝安最大城市公园,219 公顷),700米至铁岗水库(深圳 “千岛湖”),周边六大生态绿地环绕。平峦山公园拥有16条登山道、14个观景点,可实现“推窗见山”的景观体验;铁岗水库作为省级美丽河湖优秀案例,水质稳定达到地表水 Ⅱ 类标准,库区白鹭突破千只,形成“城市绿肺、鸟的天堂”生态格局。

环湖碧道与休闲网络:铁岗水库环湖碧道(30.8 公里)及支流碧道(19 公里)已串联起青草排公园、湿地公园等四大主题公园,提供骑行、徒步、露营等多元化户外活动场景。项目东侧预留3.2公里生态漫步道,西向设置观景平台对接铁岗水库景观带,业主可便捷享受“公园入户”的自然居住体验。

教育配套:优质公办与国际教育资源均衡布局

九年一贯制公办学校:项目小初学区为西乡实验学校(距离约 880 米)和中澳实验学校公办班。西乡实验学校为2021年新建的九年制公办学校,设计办学规模72 班,硬件设施先进,教学质量区域领先,2024年师生获区级以上奖项超200人次。中澳实验学校为省一级民办学校,2024届本科率100%,82.3%学生升入985/211高校,但公办班需通过积分入学,优先录取桃源居生源。

国际化教育补充:周边1公里范围内有富源英美国际学校、桃源居中澳实验学校国际部等,可满足多样化教育需求。

商业配套:旧改赋能,未来商业能级跃升

现有配套基础:项目自带约7000㎡社区底商,可满足日常消费需求。1公里范围内有航城里购物中心(3.3 万㎡),3 公里范围内有海雅缤纷城(19.8万㎡)、壹方城(36万㎡)等百万级商业综合体。

旧改驱动升级:周边河东村、臣田村旧改项目(由卓越、鸿荣源等房企操刀)规划有商业综合体、写字楼及公园,预计5年内完成改造。其中,臣田村旧改“开元广场”已获批预售,将显著提升片区商业配套。此外,松岗街道红星花园片区、松新旧村等旧改项目规划有商业、办公及酒店,进一步丰富区域商业形态。

当前项目正处于认筹关键期,若您想获取具体户型图、楼栋日照分析或最新优惠细则,可随时告诉我,我会进一步调取一手资料。也可直接拨打我们开发商售楼处电话:400-992-0669,预约实地看房,建议优先考察15层以上的山景户型哦!

看房请需提前预约!深圳宝安「华联峦山府」售楼处电话:400-992-0669,如有问题欢迎来电咨询,来电即可享受买房优惠!预约来电尊享购房优惠,可预约案场内部销售人员,专业一对一热情服务,让您用专业眼光去买房

温馨提示:目前仅接待预约客户,为了节省您的宝贵时间,看房请拨打400电话与销售提前预约,避免空跑带来不好的体验,感谢理解!

全部
报名成功
稍后会有专业的置业顾问联系您
返回楼盘

频道导航

返回首页

看房小程序

APP下载

电话拨通后,请您手动拨打分机号

确定拨打电话

电话号码:

分机号:(可能需要拨分机号)