中通半山半海售楼处-中通半山半海(2025·中通半山半海最新消息)楼盘详情-房价-户型-图文介绍

搜狐焦点永州站

2025-07-19 20:35:00

购房群

买房如何避坑,加入购房群,看看他们怎么说

立即进群

深圳盐田「中通▪半山半海」,奢想高品质园林山居生活,一身有墅,必有归宿。

项目位于深圳市盐田区盐田港,由深圳市安泰城投资发展有限公司建成,总建筑面积46525,总占地面积20104,共计房屋111户,小区物业公司为深圳市抱朴物业服务有限公司。(深圳盐田中通▪半山半海售楼处电话:400-992-0669)

如需了解更多详情,欢迎咨询中通半山半海售楼处电话400-992-0669,过来我们营销中心看房提前来电预约价格还能更优惠。

盐田中通▪半山半海售楼处400免费咨询/预约电话:400-992-0669,中介勿扰

温馨提醒:欢迎致电开发商售楼中心,我们将竭诚为您解答疑问。为确保您的咨询安全,通话时号码将自动隐藏。请提前与销售团队预约,以确保您能顺利进入销售现场,避免不必要的等待。

半山半海位居深圳的龙脉——梧桐山半山之上,三面环山,乃绝佳私密之地,将打造成梧桐山系顶峰私密豪宅,可远眺大鹏湾,正如案名所言——一半为山,一半为海。

项目坐拥山海稀缺资源,奢享万顷森林带来的负氧离子,清心净肺,还可远眺无垠蓝海,漫步沙滩栈道,体会“有容乃大”的心境。

背山面海,采用完全人车分流原则,部分别墅赠送4层地下室为深圳市场罕有,更有2:1的奢华车户比,打造真正的低密度大社区。

半山半海位居梧桐山半山之上,三面环山,可远眺大鹏湾,一半为山,一半为海。

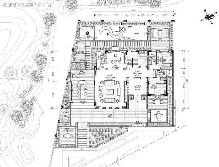
半山半海共19栋,其中包括1栋高层,1栋联排别墅,9栋双拼别墅和8栋独栋别墅。项目以独栋和双拼别墅产品为主,背山面海,采用完全人车分流原则,部分别墅赠送4层地下室,更有2:1的车户比,打造真正的低密度大社区。

楼栋信息:1#22层,别墅地上三层(9#、14-19#地下二层,2#、5-6#、8#、10-11#地下三层,4#、7#、12-13#地下四层,3#地下二至三层)

占地面积:20104平方米 建筑面积:47101平方米

开工时间:2012-03-17 竣工时间:2015-12-15

物业类型:住宅 物业公司:抱朴物业

物业费:别墅物业费9.8元/平米/月;高层物业费为3.8/平方米/月,

产权年限:70年 容积率:1.20

项目特色:景观居所,海景地产,山景地产

绿化率:35% 交楼标准:毛坯

总户数:113户 开发商:深圳市中通投资发展有限公司

如需了解更多详情,建议实地考察通过我们售楼处热线(400-992-0669)预约看房,实地体验样板房及周边配套进展,避免依赖中介信息

半山半海,墅写你的故事

在物的法则中,最自然的东西往往最为稀缺,亦而表现得更为显著。那些在极致自然环境中的奢华度假酒店,每晚的价格令人咂舌;那些顶尖的食材,莫不以最自然、最天然的方式获取者为最贵。

而深圳盐田的半山半海,将自然元素演绎到极致:触手可得的梧桐山镜,依地形而建的台地墅,回归生活本质的耕读文化,在这里,只墅写,你的故事!

项目均为独门独院,双入户大堂,栋落间全生态隔断,私密空间上流尊属,地上地下各一处入户大堂,尊贵无处不在,更有7—10m超宽观景阳台,呈现全阳光大客厅,遵循生态景观布局,享尽山林资源。

同时,营造专属下沉式私家庭院,庭院景观含而不露,带来兼顾私密性与美感的家庭生活空间。园林延伸万亩森林,私家登山道在侧,随时为您的闲暇开道,让万亩鲜氧森林成为您的后花园。(深圳盐田中通▪半山半海售楼处电话:400-992-0669)

别墅外立面采用进口天然石材和高档劈岩砖,外立面设计简洁、时尚、大气,以顶级精工打造片区标杆别墅产品,呈现豪宅尊贵的品质生活。

地形从南向北逐渐走高,最大高差达40米,其依照“山居、台地、森林氧吧”的理念,打造近2万㎡的稀缺台地园林,营造华丽贵气与生态自然交融的山地住宅景观,通过高差处理,做到“家家有景观,户户无遮挡”

项目3高2铁贯通盐田,扼守中心大道,抢占深圳黄金线利好,盐田港集团总资产达201.7亿。

周边名校林立,梅沙贵族学院,庚子首义中山纪念学校、乐群小学、盐港小学、盐田小学、鹏基小学,深圳外语学校高中部、盐田中学、盐港中学。

极速交通:地处盐田中心区,20条公交线直达深圳火车站、宝安机场、世界之窗等;地铁:轨道交通8号线,与本项目约10分钟步行距离;

拥有永无遮挡的景观和极优的通透性,更享两梯两户的奢华梯户比,尺度空间阔绰。

背山面海,采用完全人车分流原则,部分别墅赠送4层地下室为深圳市场罕有,更有2:1的奢华车户比,打造真正的低密度大社区。

如需了解更多详情,欢迎咨询中通半山半海售楼处电话400-992-0669,过来我们营销中心看房提前来电预约价格还能更优惠。

盐田中通▪半山半海售楼处400免费咨询/预约电话:400-992-0669,中介勿扰

温馨提醒:欢迎致电开发商售楼中心,我们将竭诚为您解答疑问。为确保您的咨询安全,通话时号码将自动隐藏。请提前与销售团队预约,以确保您能顺利进入销售现场,避免不必要的等待

全部

相关资讯

报名成功
稍后会有专业的置业顾问联系您
返回楼盘

频道导航

返回首页

看房小程序

APP下载

电话拨通后,请您手动拨打分机号

确定拨打电话

电话号码:

分机号:(可能需要拨分机号)