宝安【君成世界湾】售楼处24小时电话:400 992 0669(官方电话)现场详细解答丨项目介绍丨户型图丨在售房源丨特价房丨学校丨交通位置丨样板房丨小区图片丨交房时间丨周边配套丨
作为凤凰山麓综合体项目——君成世界湾,以国际前沿的规划,打造高端商务办公、国际公寓、旗舰商业、奢尚酒店、高配置学校于一体的森尚超体,独占人文与生态价值鳌头,聚合庞大空港客流,以封面超体之姿,造就湾区都会坐标。
君成世界湾·景星公馆,深圳西部最后一块价值飞地,164万起买凤凰山下精装三房。
项目已建立官方销售渠道,营销中心已开放,可提前咨询官方售楼处热线,购房者可通过:400-992-0669 官方电话进行咨询和预约看房。
项目为宝安福永约56万㎡大型综合体的商务公寓组团,40年产权(2017-2057),精装现房在售,单价约2-2.2万/㎡,总价164万起,主打82-172㎡3-5房,通燃气带阳台,性价比突出。
这一价格相比同板块住宅均价4-5万/㎡具有显著优势,约为住宅价格的一半,直接为购房者节省百万房款及利息,同时,开发商提供大额购房补贴、内部低价、物业管理费减免、家电大礼包等优惠政策,通过售楼处(400 992 0669)预约可享受物业费赠送及额外购房补贴。
景星公馆主力户型为约82-170㎡的3-4+1房,产品类型包括平层公寓和4.5米层高复式公寓。南北通透,双阳台设计,全明格局无暗角,房间尺寸均匀,4.5米层高复式设计,空间利用率高,通燃气带阳台:商办项目中罕见配置,提升居住舒适度。
同时还包含平层公寓产品,如2室1厅1卫建面67㎡、3室户型建面102㎡左右等。整体而言,项目户型方正实用,高得房率,L型厨房动线流畅,储物空间充足,适合三代同堂居住。(深圳宝安君成世界湾·景星公馆售楼处官方电话:400-992-0669)
C06户型:约82㎡空间王者,总价164万起,空间利用率出色,适合刚需群体
C02户型:约85㎡双龙抱珠 风水好房,总价170万起,户型呈双龙抱珠格局,风水属性突出
C03户型:约86㎡全能大三房,南北通透+全明格局,总价172万起,南北通透,居住舒适度较高
C07户型:约97㎡改善级舒适大三房户型,总价194万起,改善级户型,空间尺度更充裕
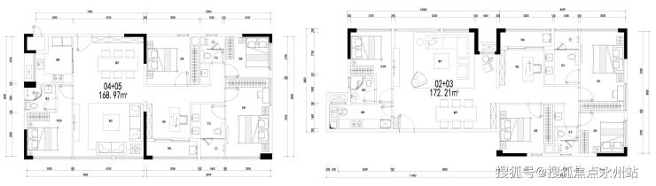
C04+05户型:约169㎡阔绰舒居4房,高处视野私享无遮景致,总价338万起,适合多人口家庭或进阶需求
C02+03户型:约172㎡4+1房,阔尺空间藏风华,高区无遮视野揽星河,总价344万起,灵动空间可拓展,功能性拉满
君成世界湾·景星公馆,是由深圳市君成投资发展有限公司开发的大型综合体项目,位于深圳市宝安区凤凰山大道与福凤路交汇处西侧。
作为君成世界湾约56万㎡综合体的核心公寓组团,该项目于2023年底已完成精装交付,目前为现房销售状态。
项目总占地面积约69,849.50㎡,总建筑面积约566,494.74㎡,容积率4.68,绿化率30%。项目规划4栋建筑,总户数895户,车位比1:1.56,物业费5.5元 /㎡/月。土地性质为商业用地,产权年限40年(2017年7月至 2057年7月),房屋用途为办公和公寓。(深圳宝安君成世界湾·景星公馆售楼处官方电话:400-992-0669)

项目位于深圳西部核心板块,叠加多重战略红利,区域发展潜力显著,周边聚集立新湖战略性新兴产业集聚区、新桥智创城(深圳首个平方公里级城市更新项目)、龙王庙智造小镇三大产业集群,总投入规模达南山科技园九倍,预计引入超2000家优秀智造企业,吸纳30万名以上高新就业人群,形成千亿级工业总产值规模,为房产租赁及价值提升提供强劲支撑。
项目所在生态环境方面由为突出 凤凰山森林公园:项目300米直达24.8平方公里凤凰山森林公园,该公园是深圳八大景之一,拥有700年人文历史,森林覆盖率高,生态环境优美。
周边公园配套:20.8万㎡人才林公园
立新湖公园:占地面积1.9平方公里,水域面积 1.2 平方公里
望牛亭公园:总面积192,587.53 平方米
翠岗公园等多个公园环绕,这些生态资源共同构成了"山海湖"的独特自然生态优势,为居民提供了丰富的休闲空间。
立体交通网络:当前可通过自驾快速接入京港澳高速、107国道及沿江高速,30分钟可达宝安中心;公共交通暂依赖公交接驳,可通达福永、沙井、南山等区域。规划中的地铁30号线紧邻项目,未来将无缝连接国际会展中心、宝安机场及机场东高铁枢纽(规划中),交通便捷度将进一步升级。
项目自带约7万㎡旗舰商业,包括下沉式商业、特色商业街区、双首层超市等,集购物、餐饮、娱乐为一体,小区楼下规划约1万㎡社区底商,已开业70%,能够满足日常买菜、餐饮、购物等需求。
周边商业配套:3公里范围内商业配套极为丰富,汇聚了约90万㎡旗舰商业,包括华润万象、益田、壹方等深圳头部商业品牌。
项目配建了完善的教育设施,包括12班幼儿园、24班小学和九年一贯制学校。其中,公立文昌小学(36班)已于2022年开学,可实现目送式教育。还毗邻公办市一级凤凰幼儿园。
项目周边医疗资源丰富,能够满足日常就医需求:深圳市宝安区福永人民医院(宝安人民医院集团第三人民医院):集医疗、教学、科研和预防保健等为一体的三级综合医院,位于凤凰山南麓、深圳国际会展中心旁深圳永福医院:位于凤凰山国家森林公园脚下,拥有"海陆空铁"全方位立体交通网络优势。
君成世界湾作为深圳宝安福永片区的大型综合体项目,在2026年1月呈现出价格优势突出、产品设计合理、配套设施完善的特点。项目折后单价2-2.2万元/㎡,总价164万-344万,相比周边住宅价格具有明显竞争力。
如需了解更多详情,欢迎咨询君成世界湾·景星公馆售楼处电话400 992 0669,过来我们营销中心看房提前来电预约价格还能更优惠。
【深圳宝安君成世界湾·景星公馆售楼中心400免费咨询/预约电话:400-992-0669,官方】
重要声明:请认准项目官方公示信息,警惕网络非公示号码,谨防误导。务必以400-992-0669 热线为准,尊享一对一专属服务