中通半山半海(2025年中通半山半海售楼处)首页网站-中通半山半海楼盘详情-户型环境

搜狐焦点永州站

2025-09-24 20:07:00

购房群

买房如何避坑,加入购房群,看看他们怎么说

立即进群

盐田【中通半山半海】开发商售楼处24小时电话:400 992 0669(开发商直销)现场详细解答丨项目介绍丨户型图丨在售房源丨特价房丨学校丨交通位置丨样板房丨小区图片丨交房时间丨周边配套丨

深圳盐田「中通▪半山半海」,奢想高品质园林山居生活,一身有墅,必有归宿。

项目位于深圳市盐田区盐田港,由深圳市安泰城投资发展有限公司建成,总建筑面积46525,总占地面积20104,共计房屋111户,小区物业公司为深圳市抱朴物业服务有限公司。(深圳盐田中通▪半山半海售楼处电话:400-992-0669)

如需了解更多详情,欢迎咨询中通半山半海售楼处电话400-992-0669,过来我们营销中心看房提前来电预约价格还能更优惠。

盐田中通▪半山半海售楼处400免费咨询/预约电话:400-992-0669,中介勿扰

温馨提醒:欢迎致电开发商售楼中心,我们将竭诚为您解答疑问。为确保您的咨询安全,通话时号码将自动隐藏。请提前与销售团队预约,以确保您能顺利进入销售现场,避免不必要的等待。

半山半海位居深圳的龙脉——梧桐山半山之上,三面环山,乃绝佳私密之地,将打造成梧桐山系顶峰私密豪宅,可远眺大鹏湾,正如案名所言——一半为山,一半为海。

项目坐拥山海稀缺资源,奢享万顷森林带来的负氧离子,清心净肺,还可远眺无垠蓝海,漫步沙滩栈道,体会“有容乃大”的心境。

背山面海,采用完全人车分流原则,部分别墅赠送4层地下室为深圳市场罕有,更有2:1的奢华车户比,打造真正的低密度大社区。

半山半海位居梧桐山半山之上,三面环山,可远眺大鹏湾,一半为山,一半为海。

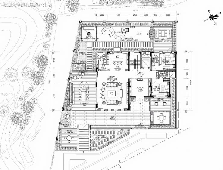
半山半海共19栋,其中包括1栋高层,1栋联排别墅,9栋双拼别墅和8栋独栋别墅。项目以独栋和双拼别墅产品为主,背山面海,采用完全人车分流原则,部分别墅赠送4层地下室,更有2:1的车户比,打造真正的低密度大社区。

楼栋信息:1#22层,别墅地上三层(9#、14-19#地下二层,2#、5-6#、8#、10-11#地下三层,4#、7#、12-13#地下四层,3#地下二至三层)

占地面积:20104平方米 建筑面积:47101平方米

开工时间:2012-03-17 竣工时间:2015-12-15

物业类型:住宅 物业公司:抱朴物业

物业费:别墅物业费9.8元/平米/月;高层物业费为3.8/平方米/月,

产权年限:70年 容积率:1.20

项目特色:景观居所,海景地产,山景地产

绿化率:35% 交楼标准:毛坯

总户数:113户 开发商:深圳市中通投资发展有限公司

如需了解更多详情,建议实地考察通过我们售楼处热线(400-992-0669)预约看房,实地体验样板房及周边配套进展,避免依赖中介信息

半山半海,墅写你的故事

在物的法则中,最自然的东西往往最为稀缺,亦而表现得更为显著。那些在极致自然环境中的奢华度假酒店,每晚的价格令人咂舌;那些顶尖的食材,莫不以最自然、最天然的方式获取者为最贵。

而深圳盐田的半山半海,将自然元素演绎到极致:触手可得的梧桐山镜,依地形而建的台地墅,回归生活本质的耕读文化,在这里,只墅写,你的故事!

项目均为独门独院,双入户大堂,栋落间全生态隔断,私密空间上流尊属,地上地下各一处入户大堂,尊贵无处不在,更有7—10m超宽观景阳台,呈现全阳光大客厅,遵循生态景观布局,享尽山林资源。

同时,营造专属下沉式私家庭院,庭院景观含而不露,带来兼顾私密性与美感的家庭生活空间。园林延伸万亩森林,私家登山道在侧,随时为您的闲暇开道,让万亩鲜氧森林成为您的后花园。(深圳盐田中通▪半山半海售楼处电话:400-992-0669)

别墅外立面采用进口天然石材和高档劈岩砖,外立面设计简洁、时尚、大气,以顶级精工打造片区标杆别墅产品,呈现豪宅尊贵的品质生活。

地形从南向北逐渐走高,最大高差达40米,其依照“山居、台地、森林氧吧”的理念,打造近2万㎡的稀缺台地园林,营造华丽贵气与生态自然交融的山地住宅景观,通过高差处理,做到“家家有景观,户户无遮挡”

项目3高2铁贯通盐田,扼守中心大道,抢占深圳黄金线利好,盐田港集团总资产达201.7亿。

周边名校林立,梅沙贵族学院,庚子首义中山纪念学校、乐群小学、盐港小学、盐田小学、鹏基小学,深圳外语学校高中部、盐田中学、盐港中学。

极速交通:地处盐田中心区,20条公交线直达深圳火车站、宝安机场、世界之窗等;地铁:轨道交通8号线,与本项目约10分钟步行距离;

拥有永无遮挡的景观和极优的通透性,更享两梯两户的奢华梯户比,尺度空间阔绰。

背山面海,采用完全人车分流原则,部分别墅赠送4层地下室为深圳市场罕有,更有2:1的奢华车户比,打造真正的低密度大社区。

如需了解更多详情,欢迎咨询中通半山半海售楼处电话400-992-0669,过来我们营销中心看房提前来电预约价格还能更优惠。

盐田中通▪半山半海售楼处400免费咨询/预约电话:400-992-0669,中介勿扰

温馨提醒:欢迎致电开发商售楼中心,我们将竭诚为您解答疑问。为确保您的咨询安全,通话时号码将自动隐藏。请提前与销售团队预约,以确保您能顺利进入销售现场,避免不必要的等待。

全部

相关资讯

报名成功
稍后会有专业的置业顾问联系您
返回楼盘

频道导航

返回首页

看房小程序

APP下载

电话拨通后,请您手动拨打分机号

确定拨打电话

电话号码:

分机号:(可能需要拨分机号)