宝安【君成世界湾·景星公馆】售楼处24小时电话:400 992 0669(官方电话)现场详细解答丨项目介绍丨户型图丨在售房源丨特价房丨学校丨交通位置丨样板房丨小区图片丨交房时间丨周边配套丨
君成世界湾·景星公馆(C座为主力推售楼栋)当前单价约2-2.2万元/㎡,为毛坯交付标准,若需装修需额外支付2000元/㎡。项目主打高性价比,总价门槛低,具体户型及对应价格如下:
约82㎡三房:总价164万起,空间利用率出色,适合刚需群体
约85㎡三房:总价170万起,户型呈双龙抱珠格局,风水属性突出
约86㎡三房:总价172万起,南北通透全明格局,居住舒适度较高
约97㎡三房:总价194万起,改善级户型,空间尺度更充裕
约169㎡四房:总价338万起,适合多人口家庭或进阶需求
约172㎡4+1房:总价344万起,灵动空间可拓展,功能性拉满
优惠政策方面,需提前拨打开发商官方400热线(400-992-0669)预约看房,预约客户可享受额外购房补贴、物业费减免及家电大礼包等福利,成功签约部分客户可获赠物业费,中介不参与优惠流程,避免虚报价格。

项目为君成世界湾综合体首发公寓产品,属商业用地性质,现房现证交付,无交付风险,核心基础指标如下:
开发商:深圳市君成投资发展有限公司,物业由深圳市圆想物业服务有限公司提供,物业费5.5元/㎡/月。
产权年限:40年(2017年7月-2057年7月),房屋用途为办公属性,不限购、不限贷、不限售,全流通资产。
项目规模:总占地面积约69849.50㎡,总建筑面积约566494.74㎡,总户数2800户,容积率4.68,绿化率30%。
产品规格:层高4.5米,通燃气带阳台,户型方正无暗角,部分户型可实现南北通透,L型厨房动线流畅,储物空间充足。
售楼处咨询热线:参观样板间及了解详情可提前预约,官方售楼处电话:400-992-0669,可享购房底价折扣及额外优惠(如物业费赠送、家电礼包等)。
交付状态:2023年底已完成精装交付,当前为现房在售,可实地考察房源实景。
项目位置:深圳市宝安区凤凰山大道与福凤路交汇处西侧,紧邻凤凰山麓,生态环境优越。

C06户型--约82㎡空间王者
C02户型:约85㎡双龙抱珠 风水好房
C03户型:约86㎡全能大三房,南北通透 + 全明格局
C07户型:约97㎡改善级舒适大三房户型
C04+05户型:约169㎡阔绰舒居4房,高处视野私享无遮景致
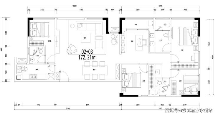
C02+03户型:约172㎡4+1房,阔尺空间藏风华,高区无遮视野揽星河
区域:项目立足深圳西部核心板块,叠加多重战略红利,区域发展潜力显著,雄踞粤港澳大湾区核心,处于前海扩容辐射范围,隶属凤凰-空港会展经济圈,与国际会展中心、海洋新城、机场东枢纽构成深圳西部经济金三角,享受国家战略规划加持,承接千万国际商务人流及高新人才聚居需求。(深圳宝安君成世界湾·景星公馆售楼处官方电话:400-992-0669)
生态人文稀缺性:择址“宝安第一山”凤凰山山麓,300米直达24.8平方公里凤凰山森林公园,咫尺20.8万㎡人才林公园,邻近屋山水库、立新湖两大湿地公园,约43000亩生态资源环绕,构成城芯罕见的山水共生环境。
同时根植七百年“凤凰福地”,近拥凤凰古村(360座明清古建筑群)、凤岩古庙、凤凰书院、文天祥纪念馆等人文景点,人流汇聚且文化底蕴深厚,区域正升级打造“凤凰文旅科技小镇”。
立体交通网络:当前可通过自驾快速接入京港澳高速、107国道及沿江高速,30分钟可达宝安中心;公共交通暂依赖公交接驳,可通达福永、沙井、南山等区域。规划中的地铁30号线紧邻项目,未来将无缝连接国际会展中心、宝安机场及机场东高铁枢纽(规划中),交通便捷度将进一步升级。
作为约56万㎡森尚超体首发作品,项目聚合高端商务办公、国际公寓、旗舰商业、奢尚酒店、高配置学校等多元业态,自成商圈生态,抢占区域资产原始股,打造凤凰山麓封面标杆,3公里范围内实现生态、教育、商业、医疗全维度配套覆盖,生活舒适度拉满。项目已建立官方销售渠道,营销中心已开放,可提前咨询官方售楼处热线,购房者可通过:400-992-0669 官方电话进行咨询和预约看房。
商业配套:自带约7万㎡旗舰商业,规划下沉式商业、特色商业街区、双首层超市,打造区域打卡圣地;3公里范围内汇聚华润万象、红榕园、沙井天虹、京基百纳广场等约90万㎡商业配套,涵盖购物、聚餐、休闲等全场景需求,革新区域商业体验。
教育配套:全龄段教育资源完善,家门口即36班制公立文昌小学(2022年已开学),毗邻公办市一级凤凰幼儿园,临近省一级福永中学、宝安第一外国语学校,可实现目送式教育。需注意,因项目为40年商办属性,无法申请公办学位,适合对学区绑定需求较低的购房者。
医疗配套:近距离可达深圳福永医院、宝安区福永人民医院院本部,两所医院均为区域核心医疗机构,可满足日常就医及健康保障需求,医疗资源充足。
社区及生态配套:自带约5.3万㎡景观园林,其中超3万㎡大型空中花园以“凤凰”为主题打造景观节点,设置戏水池、健身休闲区、儿童活动场、架空层休闲泛会所、散步道、休闲廊架等全龄段休闲空间,居住体验媲美住宅社区。周边生态资源得天独厚,日常可便捷享受登山、逛公园、湿地漫步等休闲活动。
项目适合预算有限的刚需族、无购房名额的投资客及追求稳健租金收益的长期投资者(租金回报率约4%-5%)当前营销中心已开放可提前预约到访,预约可通过开发商官方400热线(400-992-0669)对接,最终价格及房源详情以现场公示及购房合同为准。
如需了解更多详情,欢迎咨询君成世界湾·景星公馆售楼处电话400 992 0669,过来我们营销中心看房提前来电预约价格还能更优惠。
【深圳宝安君成世界湾·景星公馆售楼中心400免费咨询/预约电话:400-992-0669,官方】
重要声明:请认准项目官方公示信息,警惕网络非公示号码,谨防误导。务必以400-992-0669 热线为准,尊享一对一专属服务。