华联峦山府(华联峦山府)官方网站丨华联峦山府楼盘详情_房价_户型_详情

搜狐焦点永州站

2025-12-19 14:51:00

购房群

买房如何避坑,加入购房群,看看他们怎么说

立即进群

宝安【华联峦山府】售楼处24小时电话:400 992 0669(官方电话)现场详细解答丨项目介绍丨户型图丨在售房源丨特价房丨学校丨交通位置丨样板房丨小区图片丨交房时间丨周边配套丨

华联控股&恒裕集团联手打造的新盘——华联·峦山府,项目主体目前在建设阶段,目前已经开放营销中心样板房,户型图已经出炉,94-120㎡的平层还有161㎡6米层高复式住宅。更多项目详情,可拨打我们开发商售楼处电话,24小时VIP热线电话:400-992-0669,中介勿扰,安排现场销售人员为您详细介绍,400-992-0669(已认证)

项目已于2025年9月28日正式开放展示中心,并启动认筹登记,计划2025年10月中下旬正式开盘销售,推出504套住宅产品,包括94-120㎡平层3-4房和161㎡复式,户型为新规设计,涵盖刚需与改善型需求。

最新进展:展示中心于2025年9月28日开放营销中心,实体样板房同步亮相(需预约:400-992-0669)

开盘计划:原预计9月开盘,现调整为2025年10月中下旬,推出508套房源(含152席稀缺复式)

项目核心基础信息

项目位置:宝安区航城大道与前进二路交界西北角(地铁12号线西乡桃源站C出口50米)

开发主体:华联控股(国企,000036.SZ)+恒裕集团(豪宅专家)联合开发,总投资58亿元

基础参数:6栋住宅楼(1-6单元,28-38层)+1栋21层办公楼+4层商业体,共508户

关键配置:车位800个(1:1.58),精装交付(预计2027年交房),华联物业(5.8 元 /㎡/月)

建筑特色:铝板+玻璃幕墙外立面,公区 BIM 管线优化,恒温泳池(臭氧消毒)

项目聚焦改善型需求,打造94-120㎡臻装平层与161稀缺复式双线产品,均符合2024年5月实施的《深圳市建筑设计规则》修订版标准。

通过优化阳台、飘窗计容规则,实现得房率与居住品质双重提升,其中平层得房率达 95%,复式实际使用率更是高达120%-130%。全产品线采用全南向或东南向布局,最大化适配平峦山景观与采光需求。(深圳宝安华联峦山府售楼处电话:400-992-0669)

94-100㎡三房两厅两卫

核心设计:采用 LDKB 一体化布局(客餐厨阳台联动),客厅开间约 3.6 米,搭配双阳台(生活 + 景观),兼顾日常收纳与观景需求。

空间亮点:进门预留独立玄关,主卧配备全明卫浴,部分户型含 270° 环幕飘窗,可直望平峦山晨雾景观。

适配人群:预算600万级刚需家庭,适合三口之家或新婚夫妇,满足基础居住与轻度改善需求。

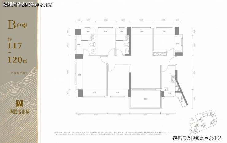
117-120㎡四房两厅两卫

尺度升级:南向三开间设计,客厅开间拓宽至 4.2 米,连接 1.9 米进深景观阳台,通风采光面达 12 米以上。

私密配置:主卧套房面积约 20㎡,含步入式衣帽间与独立卫浴,次卧相邻布局便于照顾儿童。

实用细节:U 型厨房操作台长度达 3.5 米,可容纳双开门冰箱,客卫采用三段式干湿分离设计。

适配人群:预算 700 万级中高收入家庭,适配多孩家庭或三代同堂的同居需求。

项目由LWK+PARTNERS操刀建筑设计,延续恒裕品质人居建筑美学,携手贝尔高林国际匠筑现代雅致格调园境,打造双境归家纯居礼序,同频高阶圈层美好生活。

一进·中央门庭 身份尊崇:显赫礼遇,始于前庭,双层挑高迎宾大堂,出入臻享隐奢感。

二赏·空中庭院 私属谧境:高堂而上,典藏雅苑,府中园、园中院,步步静谧铺陈私属领地。

三归·智能通行 畅速归家:归家门仪,舒适享受,奢定入户大堂,智能无感通行,尽显便捷归家礼序。

华联峦山府位于深圳市宝安区西乡街道核心地段,紧邻地铁12号线西乡桃源站(步行约50米),属于真正的地铁上盖物业。项目所在区域凭借交通枢纽优势、产业升级红利、生态资源禀赋及城市更新潜力,展现出显著的综合价值,具体可从以下维度解析:

交通网络:西部核心枢纽,多维立体通达

轨道交通黄金节点:项目已实现与地铁12号线无缝接驳,该线路串联机场、西乡、南头、科技园等核心板块,30分钟内可直达南山科技园、前海合作区网易手机网。在建的地铁20号线二期(预计2028年通车)及规划中的28号线将形成三地铁交汇格局,未来可实现“2站机场、4站企鹅岛、6站科技园”的高效通勤。此外,地铁15号线(前海环线,预计2028年开通)与12号线接驳后,将进一步强化与前海核心区的联系。

陆路交通动脉环绕:项目紧邻107国道(广深公路)及航城大道,自驾可快速通达宝安中心、南山、前海等区域。深中通道(已通车)、妈湾跨海通道(建设中)等跨区域交通工程的完善,将进一步缩短与中山、前海的时空距离。

产业升级:千亿级产业集群驱动人口导入

腾讯企鹅岛(全球总部)辐射:项目距离腾讯企鹅岛(规划建筑面积约 200 万㎡)仅4站地铁车程,该项目已建成30%区域,2025年10月将启动试运营,预计导入超10万高端产业人口。作为距离较近的地铁盘,峦山府有望承接高收入人群的居住外溢需求,带动租赁及购房市场活跃。

茅洲河流域科创走廊崛起:宝安区正重点打造茅洲河流域“科研+智造”创新走廊,串联空港新城、光明科学城等战略节点,推动华润微电子、智能网联汽车产业园等重大项目。松岗-马田流域连片旧工业区土地整备项目已整备完成约3平方公里,未来将释放大量产业空间,吸引高新技术企业集聚深圳市宝安区人民政府。

生态资源:城市绿肺与稀缺景观双重加持

双公园生态屏障:项目直线460米至平峦山公园(宝安最大城市公园,219 公顷),700米至铁岗水库(深圳 “千岛湖”),周边六大生态绿地环绕。平峦山公园拥有16条登山道、14个观景点,可实现“推窗见山”的景观体验;铁岗水库作为省级美丽河湖优秀案例,水质稳定达到地表水 Ⅱ 类标准,库区白鹭突破千只,形成“城市绿肺、鸟的天堂”生态格局。

环湖碧道与休闲网络:铁岗水库环湖碧道(30.8 公里)及支流碧道(19 公里)已串联起青草排公园、湿地公园等四大主题公园,提供骑行、徒步、露营等多元化户外活动场景。项目东侧预留3.2公里生态漫步道,西向设置观景平台对接铁岗水库景观带,业主可便捷享受“公园入户”的自然居住体验。

教育配套:优质公办与国际教育资源均衡布局

九年一贯制公办学校:项目小初学区为西乡实验学校(距离约 880 米)和中澳实验学校公办班。西乡实验学校为2021年新建的九年制公办学校,设计办学规模72 班,硬件设施先进,教学质量区域领先,2024年师生获区级以上奖项超200人次。中澳实验学校为省一级民办学校,2024届本科率100%,82.3%学生升入985/211高校,但公办班需通过积分入学,优先录取桃源居生源。

国际化教育补充:周边1公里范围内有富源英美国际学校、桃源居中澳实验学校国际部等,可满足多样化教育需求。

商业配套:旧改赋能,未来商业能级跃升

现有配套基础:项目自带约7000㎡社区底商,可满足日常消费需求。1公里范围内有航城里购物中心(3.3 万㎡),3 公里范围内有海雅缤纷城(19.8万㎡)、壹方城(36万㎡)等百万级商业综合体。

旧改驱动升级:周边河东村、臣田村旧改项目(由卓越、鸿荣源等房企操刀)规划有商业综合体、写字楼及公园,预计5年内完成改造。其中,臣田村旧改“开元广场”已获批预售,将显著提升片区商业配套。此外,松岗街道红星花园片区、松新旧村等旧改项目规划有商业、办公及酒店,进一步丰富区域商业形态。

当前项目正处于认筹关键期,若您想获取具体户型图、楼栋日照分析或最新优惠细则,可随时告诉我,我会进一步调取一手资料。也可直接拨打我们开发商售楼处电话:400-992-0669,预约实地看房,建议优先考察15层以上的山景户型哦!

看房请需提前预约!深圳宝安「华联峦山府」售楼处电话:400-992-0669,如有问题欢迎来电咨询,来电即可享受买房优惠!预约来电尊享购房优惠,可预约案场内部销售人员,专业一对一热情服务,让您用专业眼光去买房

温馨提示:目前仅接待预约客户,为了节省您的宝贵时间,看房请拨打400电话与销售提前预约,避免空跑带来不好的体验,感谢理解!

全部

相关资讯

报名成功
稍后会有专业的置业顾问联系您
返回楼盘

频道导航

返回首页

看房小程序

APP下载

电话拨通后,请您手动拨打分机号

确定拨打电话

电话号码:

分机号:(可能需要拨分机号)