河东骏濠园官方网站-2026最新房价+户型图+小区环境+配套

搜狐焦点永州站

2026-01-21 19:42:00

购房群

买房如何避坑,加入购房群,看看他们怎么说

立即进群

宝安【 河东骏濠园】售楼处24小时电话:400 992 0669(官方电话)现场详细解答丨项目介绍丨户型图丨在售房源丨特价房丨学校丨交通位置丨样板房丨小区图片丨交房时间丨周边配套丨

河东骏濠园,位于西乡街道河东社区,宝民二路以南,望达二路以东,107国道以北,宝丰路以西。(深圳河东骏濠园售楼处电话:400-992-0669)

占地面积:约1.9万㎡ 建筑面积:约16万㎡

绿化率:30% 售楼热线:400-992-0669

可售户数:公寓264套;商务办公164套 住宅175套

产品户型:24-73㎡公寓,21-54㎡/215-265㎡商务办公 44-63-87㎡住宅

层高:公寓2.85m;商务办公4.5m

产权年限:40年(2018.5 - 2058.5)

物业公司:深圳市河东物业管理有限公司

物业费:4.5元/㎡·月 交付方式:毛坯

如需了解更多详情,欢迎咨询河东骏濠园售楼处电话400-992-0669,过来我们营销中心看房提前来电预约价格还能更优惠。

宝安河东骏濠园售楼处400免费咨询/预约电话:400-992-0669,中介勿扰

温馨提示:过来营销中心参观样板间请记得提前拨打售楼处400热线预约,感谢您的配合!

河东骏濠园疑问解答

1,这个项目我之前带看过,明明是公寓

之前确实卖过公寓,55,000左右的单价,但是这一批是红本住宅,第一次对外发售,合计175套

2,为什么产权是40年?

这个项目是住宅!之所以40年产权是因为整一个大地块都是商务产权,所以住宅也跟着年限一起走。现在最新的土地规定,小地块跟着大地块的产权年限一起走,现在很多70年的商办公寓就是这么来的

3,是哪个开发商,会不会小开发商不靠谱

项目属于河东村委集体资产,因为集体资产受管控,而且项目现在是现楼,不存在烂尾问题,即买即交付

项目能租多少钱?租金回报率多少?

根据目前实际已经装修好,对外出租的成交记录来看,可以租到4500

4,什么时候开卖

预计2024年12月31日正式开卖,直接认购,

6,得房率多少

项目为新规前的楼盘,所以房率约67%~73%

7,房本是住宅还是单身公寓或者宿舍?

项目为红本住宅

8,贷款年限有多久

最高可贷30年,可根据自身情况而选择贷款年限

9,几梯几户?

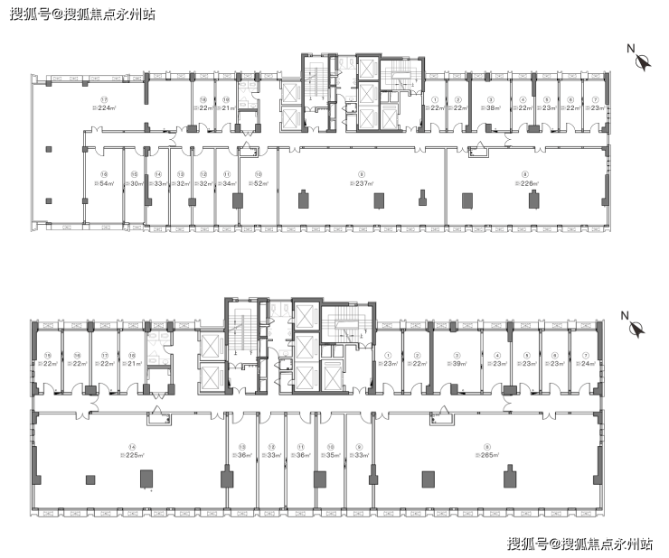
1B栋3T8户(约45㎡/64㎡/87㎡2~3房) 3栋4T12户(约45㎡2房)

10,批地时间?

项目于2018年5月拿地

11,容积率多少?

项目楼盘容积率约5.55

12,项目一共多少栋?

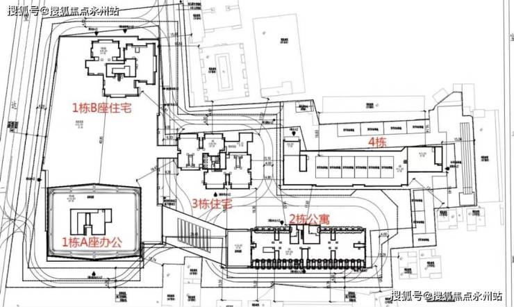
住宅2栋、公寓1栋、写字楼1栋

13,样板房位置,?

目前45㎡两房在3栋20~26楼均可看 其余户型暂不设样板间

14,交付标准?

毛坯交付

64㎡、87㎡剩余房源所在楼层?

64㎡两房1B-1408、2401、2702,87㎡三房1B-605。

16,总车位多少?停车费多少?

项目车位有1030个,停车费250/月

17,学校对应哪几个?

流塘小学,西乡中学,金碧实验学校,文汇中学,西乡小学等教育资源围绕

河东骏濠园』刚需小户型住宅45-63-87㎡全新开盘入市,45㎡总价220万起,63㎡总价375万起,前海内环,臻稀住宅,建面约45-63-87㎡现楼发售。 (深圳河东骏濠园售楼处电话:400-992-0669)

商务45㎡2房1卫210-240万

73㎡2房1卫370-400万

商办24㎡1房1卫95-120万

54-57㎡3房1卫220-240万

215㎡4-6房680-750万

建面约44-63-87㎡住宅,户型方正、带阳台、通燃气,首付30万起,抢占核心地段。

建面约24-73㎡瑧品公寓,户型方正、带阳台,不限购不限贷,首付50万起,抢占核心地段。

建面21-54㎡/215-265㎡商务办公,不限购、不限售、不限贷。

项目平面•户型图

想了解更多我们项目近期动态、剩余楼层、底价信息与保留房源,请认准我们售楼处电话/预约热线:400-992-0669中介勿扰

区位介绍【前海重构版图,深圳西部增长极】前海,作为粤港澳大湾区全面深化改革创新试验平台和高水平对外开放门户枢纽,目前已吸引超300家世界500强投资设立企业,累计注册港企数量超1.1万家,注册资本超1.2万亿元。目前已汇聚金融、现代物流、信息服务、科技等产业,众多高端人才聚集。

前海合作区已由14.92平方公里扩展至120.56平方公里,超2/3面积集中于宝安,将进一步带动宝安发展驶入快车道。河东骏濠国际拥享前海发展辐射,共享优质生活配套。(深圳河东骏濠园售楼处电话:400-992-0669)

【前海内环加持 连接城市未来】地铁15号线(规划中)作为深圳首条环线轨道,起终点均为前海站,作为战略上的“产业线”,极速串联前海、宝中、大铲湾“腾讯科技岛(在建中)”、南山科技园、后海总部基地、留仙洞总部基地等高端产业密集区,推动资金流、人才流、技术流汇聚,构筑“前海内环”经济大动脉。

5大高新产业园区规划就业人口超190万人,规划居住人口仅有80万人,未来预计将产生超110万的外溢居住需求。

【107发展主轴,执掌大道封面资产】宝安十四五规划提出,107发展主轴将以高标准打造成为广深港澳科技创新走廊的重要,107发展主轴沿线城市更新,预计超19个城市更新和土地整备项目落地,未来将打造深圳发展战略性走廊和大道经济范例。(深圳河东骏濠园售楼处电话:400-992-0669)

支撑区,持续发挥连接中心城区的区位优势与湾区产业链发展脊梁的战略优势。107发展主轴未来将打造成为“第二深南大道”,沿线规划大型产业园超50个,经济规模预计超万亿元,万千菁英汇聚。

项目小区信息

【河东百万大城首发 都会综合体】河东社区作为大型社区,分为南北两大区域,打造河东百万大城,其南区规划107发展带城市更新单元,总建筑面积达235万㎡,集办公、商业、酒店、公园等多元业态,带动人流聚集。

项目配套信息简介

【多维立体交通,出行快人一步】三地铁物业,直线距离12号线流塘站(已通车)约700米,15号线、20号线二期西乡公园站(规划中)约200米,可快速换乘1号线、5号线等多条地铁线。

紧邻107国道,宝安大道、西乡大道环绕,快速接驳京港澳高速、北环大道,贯通南山、福田等重要区域。

直线距离穗莞深城际(在建中)西乡站、宝安站约2.5公里。

【百万商圈环伺,美好举步即享】下楼即享约1.9万㎡集中商业,直线距离约1公里范围聚集港隆城、仟悦城、天虹、万达广场。

约3公里范围内汇聚大仟里、大悦城(在建中)、中洲πMALL、海雅缤纷城、壹方城等大型商业集群,满足日常吃喝玩乐购等需求,都市繁华尽在掌握。

【7大市政公园,平衡繁华与静谧】周边汇聚西乡公园、流塘公园、宝安公园、灵芝公园、铁仔山公园、尖岗山公园、平峦山公园等,演绎都市自然生活。

其中距离项目直线约1.3公里的宝安公园为深圳西部最大的市政公园,是休闲、观光、运动的好去处。

【6大人文艺术,沉浸式体验美好】近距西乡会堂,直线距离宝安体育中心约1.4公里,约3.5公里范围内汇聚欢乐港湾、宝安区公共艺术中心(在建中,含博物馆、美术馆、艺术馆)、宝安区青少年宫、宝安区图书馆等。

【教育资源 医疗资源】流塘小学,西乡中学,金碧实验学校,文汇中学,西乡小学等教育资源围绕

深圳宝安中医院(三甲医院距离深圳市宝安人民医院(三甲医院),距离宝安妇幼保健院,医疗资源丰富。

约16万㎡都会综合体 河东匠心首作:总建面约16万㎡,汇聚商务公寓、办公、商业等于一体,多重复合业态共融,打造107国道封面都会综合体,公寓约1.3万㎡,办公约4.6万㎡,商业约1.3万㎡,位于2栋,绿化率30%。

总建筑面积160313.25㎡,由一个三层地下室、一栋5层的商业裙房以及地上4栋塔楼组成。其中1栋塔楼A座31层,1栋塔楼B座31层,2栋29层,3栋33层,4栋3层为独立幼儿园。(深圳河东骏濠园售楼处电话:400-992-0669)

项目总结:

地理位置优越:河东骏濠园紧邻107国道,位于深圳北上的门户位置,交通便利,紧接107大道发展主轴,未来发展潜力大。

快速交通网络:项目附近有地铁12号线的流塘站,通过少数换乘即可到达深圳的主要商务区,如南山和宝安中心。此外,周边的交通网络发达,可以快速连接京港澳高速等主要高速公路。

丰富的商业配套:河东骏濠园附近有多个大型商业中心,如港隆城、仟悦城和万达广场等,满足居民的日常生活需求。

优质的生活配套:项目周边有多个公园和体育设施,如西乡公园、流塘公园等,提供了良好的休闲和运动环境。

看房需请提前预约!

深圳宝安「河东骏濠园」售楼处电话:400-992-0669 中介勿扰

如有问题欢迎来电咨询,来电即可享受买房优惠!预约来电尊享购房优惠,可预约案场内部销售人员,专业一对一热情服务,让您用专业眼光去买房

温馨提示:目前仅接待预约客户,为了节省您的宝贵时间,看房请拨打400电话与销售提前预约,避免空跑带来不好的体验,感谢理解!

注意:本项目不收任何费用,售楼中心〢欢迎来电咨询〢安全通话隐藏真实号码

全部

相关资讯

报名成功
稍后会有专业的置业顾问联系您
返回楼盘

频道导航

返回首页

看房小程序

APP下载

电话拨通后,请您手动拨打分机号

确定拨打电话

电话号码:

分机号:(可能需要拨分机号)