绿景白石洲·璟公馆欢迎您(深圳绿景白石洲·璟公馆)首页网站丨楼盘价格/配套/学区/户型

搜狐焦点永州站

2025-10-29 12:32:00

购房群

买房如何避坑,加入购房群,看看他们怎么说

立即进群

绿景白石洲·璟公馆推出45-60-75㎡小面积公寓产品,总价230万起,单价5.1万/㎡起,送精装,同时样板房已开放。

项目首推48套公寓房源,位于1栋1单元32-34层,主力户型为45-75㎡一至两房,均为70 年产权公寓,民水民电通燃气,带阳台设计,可积分入学。目前仍可直接认购,无额外中介费用。

更多项目详情,可拨打我们开发商售楼处电话预约看房,24小时VIP热线电话:400-992-0669,中介勿扰,安排现场销售人员为您详细介绍,400-992-0669(已认证)

入市节奏:项目已于2025年9月正式开盘,未采用集中摇号方式,以顺销为主。由于价格倒挂显著,45㎡小户型去化较快,剩余房源中 75㎡大两房占比提升

总价范围:核心公寓总价230万起,具体为:

45㎡一房一厅:230-252万(单价约5.1-5.6万/㎡)

60㎡两房两厅:319-323万(单价约5.32-5.38万/㎡)

75㎡大两房:437-440万(单价约5.83-5.87万/㎡)

项目采用“底价成交+额外优惠”策略,通过开发商售楼处预约(400-992-0669)看房可享物业费减免、家电礼包等福利。

绿景白石洲·璟公馆南山核心区唯一在售的70年红本公寓,可落户、可积分入学,填补区域市场空白。

户型设计:方正实用,得房率约70%,75㎡户型实现南北通透,高于南山同类公寓(如丹华公馆得房率 65%)片区罕见带阳台公寓设计。

噪音控制:依托超级大盘规划,通过50米绿化隔离带+双层中空 Low-E 玻璃,有效降低深南大道噪音影响,目前无业主反馈显著噪音问题。

45㎡一房一厅(A1户型)方正实用,动静分区,玄关设置独立收纳柜,厨房 U 型设计,卫生间干湿分离。

空间利用:阳台进深1.5米,可改造成书房或儿童活动区;飘窗赠送面积约3㎡,提升得房率至70%。

采光:东南朝向,主卧与客厅双开间采光,阳台直面中央绿轴景观。

适合人群:单身青年、小情侣或投资客,总价低、流动性强。

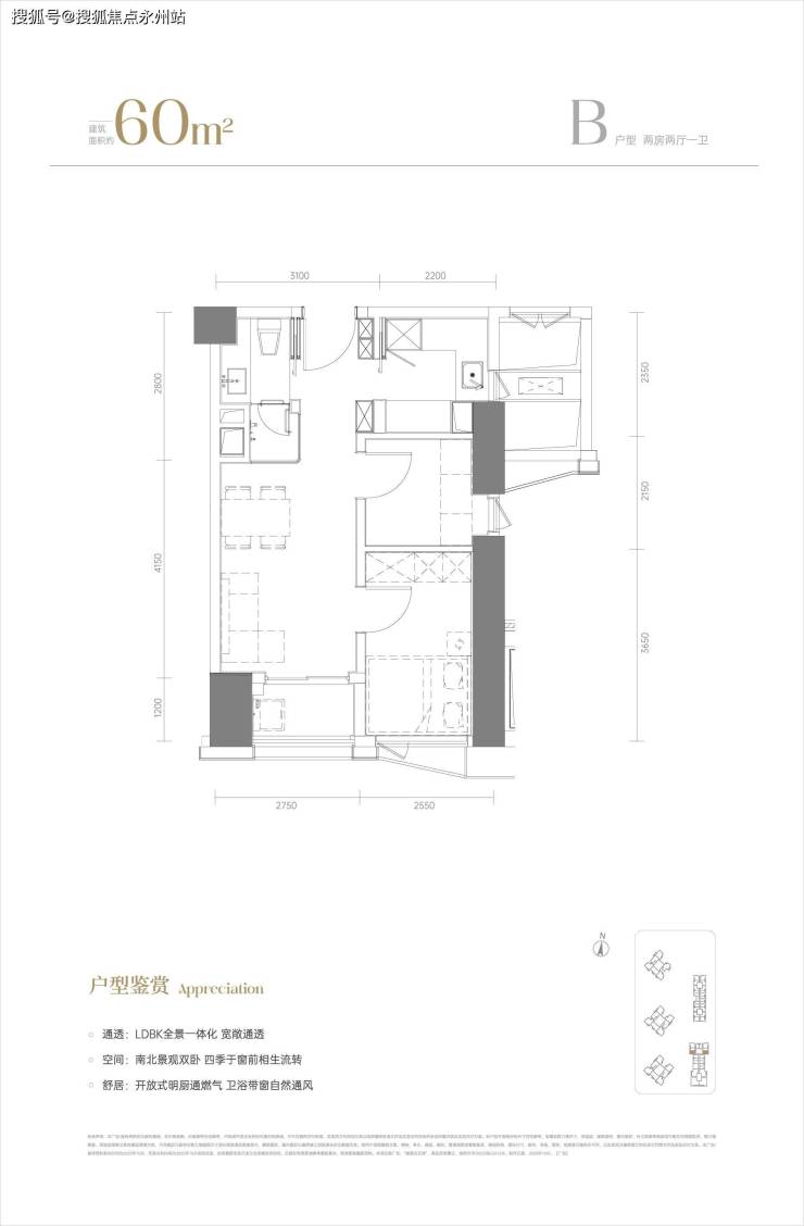
60㎡两房两厅(B2户型)经典竖厅设计,客厅开间3.6米,主卧带独立衣帽间,次卧可改造成书房或儿童房。

功能升级:厨房连通生活阳台(约4㎡),可放置洗衣机与杂物柜,卫生间三段式分离,提升使用效率。

景观:西南朝向,高层房源可远眺深圳湾海景,低层房源近享社区园林。

适合人群:年轻家庭或注重功能性的自住客,满足“上车南山+学位需求”双重目标。

75㎡大两房,南北通透,双阳台设计(景观阳台+生活阳台),客厅开间4.2米,主卧套房设计(含独立卫浴+衣帽间)。

稀缺性:片区罕见带阳台的南北通公寓,次卧可改造成三房,满足家庭成长需求。

噪音控制:通过50米绿化隔离带+双层中空 Low-E玻璃,有效降低深南大道噪音,实测室内噪音低于40分贝。

适合人群:改善型家庭,追求居住舒适度与空间扩展性。

项目作为总建面约500万m2城市航母的首发作品,居住氛围浓厚纯粹,地铁无缝接驳,精奢商业、优质学府、社区公共配套、中央绿轴花园等完善生活配套同步开启白石洲未来生活。

超级居住群 深圳核芯人居示范:景观住宅、服务式公寓、艺术公寓等多元人居产品,满足全龄段、全职业的居住需求。(深圳绿景白石洲·璟公馆售楼处电话:400-992-0669)

共享大城:六重立体城市规划释放空间想象,构筑无边界共享大城;约1.2公里中央绿轴,打开生活场域;架空层约30万m2空中花园及约3.5万m2泛会所,业主私享休闲娱乐空间;首创50米空中连廊(规划中),创想无限可能。

艺术大城:国际顶级艺术机构 UAP 规划,构建深圳公共艺术社区,艺术大师作品步履之间相逢。

智慧大城:联合华为、联通等高新科技领军企业,打造深圳超大规模智慧城区标杆,盖城区、社区、家庭场景,全维演绎未来家园。

绿景白石洲位处深圳 gdp 首区南山区的核心地段,深南大道横轴和大沙河科创走廊纵轴交汇的超级十字轴心,链接四大总部基地,聚合城市发展能量,为未来总部基地规划的精英技术人才打造高端生活配套区,代言深圳价值高度。

2035规划中深圳中央公园 高阶峰层资产

深圳市南山区国土空间分区规(2021-2035年)(审批中)中提出深圳唯一的"中央公园",以深圳湾 Cbd +中央公园构筑深圳核芯引擎,集聚全球总部企业、高端居住圈层和高阶完善配套,一座中央公园代表深圳未来的价值选择,看见未来全球高级别城区风范。(深圳绿景白石洲·璟公馆售楼处电话:400-992-0669)

全能交通:四线三站的立体通达网络 轨道交通优势显著,地铁1号线已开通接驳,20号线(建设中)、29号线(规划中)无缝衔接,联合2号线形成“四线三站两枢纽”体系,1站直达高新园总部聚集地,换乘可快速通达福田、罗湖等区域。近享深南大道、北环大道等主干道,快速衔接西丽高铁站(规划中)、宝安国际机场等枢纽,实现海陆空无界出行。

商业配套:自身规划超40万㎡商业综合体,包括18万㎡国际购物中心、1.1公里中央绿轴商业街,预计2026年6月首期开业。目前已签约华润万象影城、Ole 超市等主力店。

周边配套:2公里范围内涵盖万象天地(1.5公里)、益田假日广场(1.2公里)、欢乐海岸(2公里),商业体量超150 万㎡。

教育配套:

已建成学校:南山外国语学校(集团)沙河小学(直线300米)、南外集团第二实验学校(直线500米)。其中,沙河小学2024年投入使用,提供48个班,2025年中考四大名校录取率18.7%

规划学校:项目配建21班幼儿园+63班九年一贯制学校(南外集团办学),另规划 4 所幼儿园、3 所九年一贯制学校,可满足全龄段教育需求

入学政策:实行“一户一学位”,深户+房产证积分100分,非深户+学区房积分85分。2025 年南外沙河小学学位缺口120个,建议提前1年落户。

医疗配套:

三甲医院:香港大学深圳医院(3公里)、深圳市人民医院(5公里)

社区医疗:项目配建6500㎡社康中心(2025年运营),提供24小时急诊服务。

休闲配套:

公园资源:大沙河公园(1.8公里)、塘朗山郊野公园(2.5公里)、深圳湾公园(3公里)。

文体设施:深圳湾体育中心(3公里)、南山文体中心(4公里),可满足运动、演艺需求。

绿景白石洲·璟公馆凭借“核心地段+倒挂价格+优质教育”三重优势,成为南山刚需及投资客关注焦点。

其70年产权公寓属性、民水民电通燃气设计,显著优于市场上多数商务公寓。对于预算有限但希望扎根南山的家庭,是性价比极高的选择,对于投资者而言,长期持有可享受城市更新带来的资产增值红利。建议结合自身需求,实地考察后决策。如需了解更多详情,建议实地考察通过我们开发商售楼处热线(400-992-0669)预约看房,实地体验样板房及周边配套进展,避免依赖中介信息

如需了解更多详情,欢迎咨询南山绿景白石洲售楼处电话400 992 0669,过来我们营销中心看房提前来电预约价格还能更优惠。

【深圳南山绿景白石洲·璟公馆开发商售楼处400免费咨询/预约电话:400-992-0669,中介请勿扰】

温馨提醒:欢迎致电开发商售楼中心,我们将竭诚为您解答疑问。为确保您的咨询安全,通话时号码将自动隐藏。请提前与销售团队预约,以确保您能顺利进入销售现场,避免不必要的等待。

全部

相关资讯

报名成功
稍后会有专业的置业顾问联系您
返回楼盘

频道导航

返回首页

看房小程序

APP下载

电话拨通后,请您手动拨打分机号

确定拨打电话

电话号码:

分机号:(可能需要拨分机号)