最新消息:南山同乐荔源雅苑推售面积50-89-117㎡,其中,50㎡可以改两房,其中阳台部分具备改成房间的功能!家门口一站式优质教育,小学/初中:教科院同乐实验学校(直线距离约100m,项目目前已经封顶外立面做好是准现房状态了)
项目总占地面积约0.63万㎡,总建筑面积约3.36万㎡,计容建筑面积约2.33万㎡,容积率3.52,绿化率40.04%,共由2栋住宅组成,其中1栋A座住宅30F,1栋B座住宅28F。
总规划322套(可售251套)全是商品房住宅,地下2层,停车位240个,其中充电桩111个,车位占比1:0.75。
南山同乐荔源雅苑_Vip Tel:400-992-0669 中介勿扰
推售户型:50㎡-2房2厅1卫,89㎡-3房2厅2卫,115㎡-4房2厅2卫
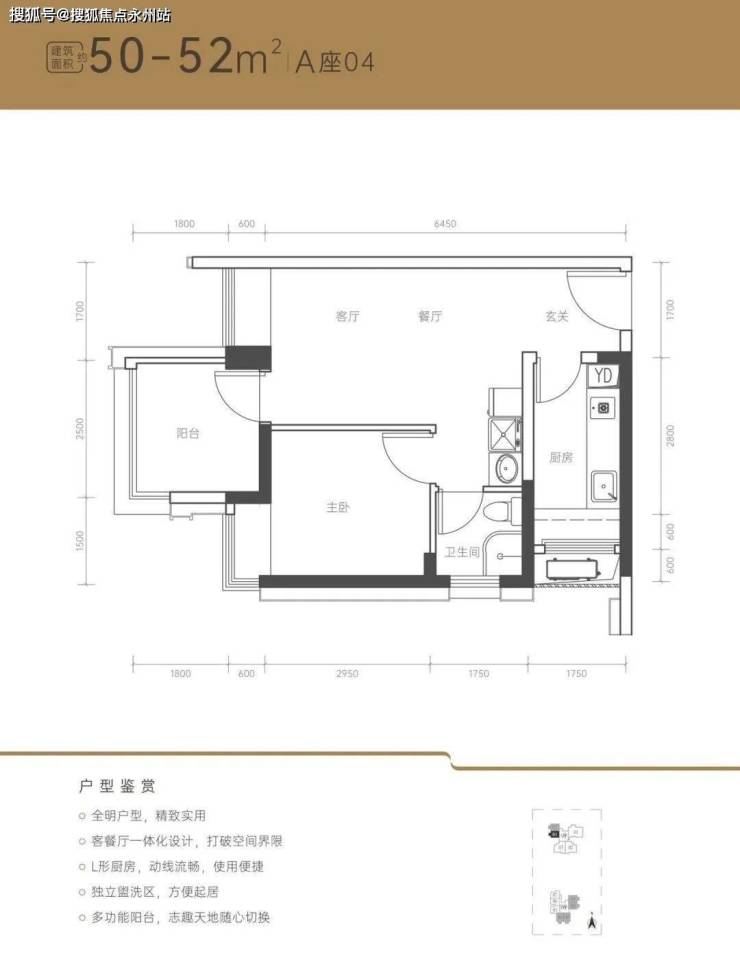
50-52㎡两房户型:全明户型,精致实用;客餐厅一体化设计,打破空间界限;L形厨房,动线流畅,使用便捷;独立盥洗区,方便起居;多功能阳台,志趣天地随心切换。
89平三房两卫户型:正南朝向,经典格局,动静分区;LDKB一体化设计,畅享无界空间;主卧独立卫浴,私密起居互不打扰;三开间朝南,阳光清风时刻舒享;双阳台设计,一方藏纳诗意,一方犒赏生活。
117平四房两卫户型:格局方正,南北通透,采光通风俱佳,双卧朝南,阳光倾泻而入,卧室均带飘窗,风景尽在眼底,主卧大套房,独立卫浴,私密尊享,创意多功能阳台,私藏一方志趣天地。
【进阶效率】地铁12号线旁立体多维路网
12/13(建设中)/15(建设中)号线三轨交汇,近邻西丽高铁站(建设中),优享南坪快速、京港澳高速、中山园路等主干道快速路网,楼下多条公交线路密集覆盖,多维立体交通,为美好生活提速。
地铁:12号线同乐南站(直线约800m),4站到宝中和科技园,5站到前海和后海,15号线(建设中)同乐关站(直线约1.5km),2站到西丽高铁站,贯穿前海、后海、南山、宝安等重要片区,环经济发展核心区域,另有13号线(建设中)等多轨交汇,高效出行。
立体交通:邻近未来深圳最大高铁站一一西丽高铁枢纽(在建中);享南坪快速等“两横四纵”交通路网。
约1万㎡隆尚Minitown(招商中,直线约100m)、海雅缤纷城1.7㎞、沃尔玛、西丽约8万㎡云城万科里、超50万㎡南山、宝中成熟中心高端商圈,尽揽一城繁华。
楼下规划公园绿地(约2.5万㎡)、铁路文化公园(直线约300m)、新安公园、中山公园,城市绿氧触手可及。
【浸润书香】家门口一站式优质教育目送式书香学府
项目直线距离约100m九年一贯制区属公办教科院同乐实验学校,作为南山区首个教科院系实验学校,以区教科院为智库,为儿女成长提供优质教育平台
近邻“深圳十强、广东省二十强”博纳学校、公办18班华泰幼儿园,人文优教荟萃,护航孩子成长。
教科院:曾创办南山第二外国语学校,现已发展为南山第一梯队名校。教科院同乐实验学校是教科院成立以来的第一所实验学校,预计承袭南二外的成功经验和成果。
荔源雅苑_Vip Tel:400-992-0669 中介勿扰

区域介绍
毗邻科技园及留仙洞总部基地双区核心,集前海、后海、深圳湾等五大总部基地发展利好,汇聚全球前沿科创菁英,承载超百万高净值人群居住、生活需求,成就总部都芯生活主场。

高新科技园(东向约3km):国家创新型城市的核心区域,就业人口约60万人。
留仙洞总部基地(北向约2.5km):打造国际化战略新兴产业CBD,规划约60万高端就业人口,10万高素质居住人群。
后海金融总部基地、深圳湾超级总部基地(东南向约6km):中国总部企业最为密集区域之一,规划就业人口约为54万人。
前海深港合作区(西南向约4km):定位国家战略性门户枢纽,未来将打造成世界级城市新中心,规划就业人口约65万人,居住人口15万人。
深圳荔源雅苑售楼处电话:400-992-0669(1对1专线)欢迎来电咨询最新动态、房价、在售房源、交楼时间等信息,“请务必注意”甄别,我们营销中心只有一个号码,不需要转换分机。
看房请务必提前预约,避免临时无人接待, 感谢您的配合!
南山同乐·荔源雅苑欢迎您-预约看房,置业顾问一对一对接在售户型图丨项目介绍丨房源丨_周边配套丨详细解答
温馨提示:项目没有所谓的“分机号”注意保护个人隐私!谨防上当!看房请务必提前预约,避免临时无人接待,感谢您的配合!