光明【满京华金硕华府】开发商售楼处24小时电话:400 992 0669(开发商直销)现场详细解答丨项目介绍丨户型图丨在售房源丨特价房丨学校丨交通位置丨样板房丨小区图片丨交房时间丨周边配套丨
光明中心区,满京华金硕华府于2023年9月12日取证入市,首推2栋1/2单元/3栋,共704套住宅房源,面积89㎡的3房1卫,98-103㎡的3房2卫,120-139㎡的4房2卫户型,备案均价4.65万/㎡,备案单价4.14-5.14万/㎡,总价368-722万/套,计划在2025年12月底前带简装交房!
后面在2023年11月28日再次取证加推,本次推出1栋1/2单元,共434套房源,面积89㎡的3房1卫,98-103㎡的3房2卫,120-139㎡的4房2卫户型,备案均价4.65万/㎡,备案单价4.21-5.16万/㎡,总价414-725万/套。
满京华金硕华府_售楼处_Vip Tel:400-992-0669 中介勿扰
目前我们打出了9.03折的优惠,折后均价4.19万/平,折后单价3.93-4.78万/平,总价在350-670万/套,项目至今为止已经销控500多套房源,整体去化率约45%,还剩600套房源左右在售,最为畅销的还是103-120-139平的大户型住宅,89平的3房1卫也所剩不多。
89㎡-3房2厅1卫,折后总价350-369万/套,单价3.93-4.1万/平。
99㎡-3房2厅2卫,折后总价382-434万/套,单价3.89-4.41万/平。
103㎡-3房2厅2卫,折后总价409-456万/套,单价3.99-4.38万/平。
120㎡-4房2厅2卫,折后总价498-517万/套,单价4.18-4.31万/平。
139㎡-4房2厅2卫,折后总价608-670万/套,单价4.38-4.78万/平。

89㎡-89㎡的3房2厅1卫:设计的竖厅格局,客厅3.5米开间,LDKB一体化设计,S墙设计预留冰箱位,3个卧室分别做到了3.05米/2.85米/2.7米的宽度,U型厨房,得房率:73.87%(不含赠送),阳台进深1.7米,有西南或东南朝向。
98㎡-100㎡的3房2厅2卫:设计的竖厅格局,客厅3.6米开间,LDKB一体化设计,S墙设计预留冰箱位,3个卧室分别做到了3.15米/2.7米/2.4米的宽度,U型厨房,得房率:74.48%(不含赠送),阳台进深1.7米,有南向、西南向、东南朝向。
102㎡-103㎡的3房2厅2卫:设计的横厅南北通透格局,客餐厅6.2米宽,进门独立玄关,3个卧室分别做到了3.15米/2.9米/2.9米的宽度,U型厨房,公卫三段式分离设计,得房率:73.88%(不含赠送),带大阳台进深1.7米,长6.2米,主朝西北或东北向,看科学公园景观。
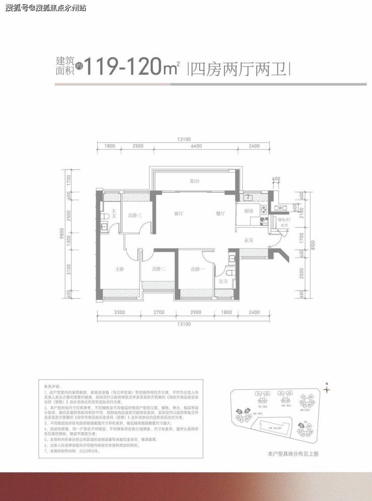
119㎡-120㎡的4房2厅2卫:设计的横厅南北通透格局,客餐厅6.4米宽,进门独立玄关,4个卧室分别做到了3.3米/2.9米/2.7米/2.5米的宽度,U型厨房,公卫三段式分离设计,得房率:74.47%(不含赠送),带大阳台进深1.7米,长6.2米,主朝西北或东北向,看科学公园景观。
138㎡-141㎡的4房2厅2卫:设计的横厅南北通透格局,客餐厅6.35米宽,进门独立玄关,4个卧室分别做到了3.7米/3.1米/2.9米/2.7米的宽度,U型厨房,公卫三段式分离设计,得房率:75.31%(不含赠送),带大阳台进深1.7米,长8.8米,主朝西北或东北向,看科学公园景观。
项目由满京华集团开发,位于光明区光明中心区光辉大道与狮山三街交汇处,项目所在区域是光明规划最宜居,居住小区板块最大的片区,北侧靠近科学公园,东侧及南侧是深圳小学光明学校狮山校区及初中校区,距离最近的6号地铁线“光明站”约800米。
满京华金硕华府,前身为光明狮山利益统筹项目,由满京华集团全盘操刀,涵盖有10块用地,总占地面积约10.9万㎡,总建筑面积约32.38万㎡,其中住宅用地有7块,返还用地1块,公共绿化用地2块,住宅用地有:满京华金硕和府,满京华金硕瑞府,满京华金硕臻府,满京华金硕华府,满京华金硕悦府,满京华金硕嘉府。
如需了解更多详情,欢迎来电咨询我们光明满京华开发商售楼处电话/咨询热线:400-992-0669(中介勿扰),过来我们营销中心看房提前来电预约,而且最终的价格还能享受更多优惠。
05-10地块:满京华金硕华府,总占地面积约2.28万㎡,总建筑面积19.8万㎡,计容建筑面积约13.7万㎡,容积率6.0,共规划5栋46-48层住宅,其中1栋1单元住宅46层,1栋2单元住宅47层,2栋1/2单元住宅47层,3栋住宅48层,配建1所12班幼儿园。
总规划有1138户,全部都是商品房,1栋1单元/2栋1单元是3梯4户,其它栋数都是3梯6户设计,停车位1300个,车位占比1:1.14。
项目周边配套信息介绍
地铁配套:项目距离6号地铁线“光明站”约800米,步行需要11分钟左右,2站到凤凰城站,可以换乘13号线,4站到光明城站,这里可以换乘光明城高铁站/6号地铁线,6站到宝安上屋站,11站到南山西丽留仙洞,14站南山高新园,18站到后海。
周边还有龙大高速、南光高速、深圳外环高速等交通要道,快速通达各大区域。
教育配套:项目自带1所12班制幼儿园,根据2024年光明区教育局最新的学区划分。
小学学区划分在南科大附属光明荔园校区、光明楼村第二学校小学部、教育科学研究院实验学校(光明)小学部、光明区楼村小学、中山大学深圳附属学校小学部
初中学区划分在光明楼村第二学校初中部、光明科韵学校、教育科学研究院实验学校(光明)初中部。
最值得一提的是满京华金硕华府西侧约200米规划有1所深圳外国语楼村第四学校,已经对外官宣,深圳四大名校之一,计划是在2025年首次招生,该校也是在学区范围内,是1所九年制公办学校,规划45个班,有2100个学位。
南方科技大学附属荔园校区,是1所九年制公办学校,办学规模72个班,其中小学48班/2160个学位,初中24班/1200个学位,由南方科技大学附属光明凤凰学校筹建,两校同受光明区教育局,南方科技大学附属教育集团双重管理,在2024年9月份开学,目前是借址办学,原址将在2024年底建成。
商业配套:项目自带1.5万平大体量底商,周边规划有星河Coco City,还有大片的社区底商,如果需要逛大型商业,可坐地铁2站到凤凰城站,这里有万达广场,光明蓝鲸世界购物中心等大型商业综合体。
光明中心208万占地的『科学公园』,目前已经对外开放了北翼园区,预计在2025年园区全部开通。
关于光明这个大公园,或许将来会是深圳未来做为粤港澳湾区引擎的核心建筑标志,多年后回头望,说一定还是一个时代的精神印记,『满京华·金硕华府』一街之隔的科学公园。
科学公园占地面积约208万平方米,大小相当于两个深圳湾公园。北接公常路,南临光辉大道,西至楼环路,东临光明大道、光侨路。
生态环境得天独厚,囊括马鞍山、柴山及两山之间的山坳地,坐拥楼村水、新陂头河两条水系,打造有科学芯、日之湖、环湖岸线、林霄栈道等标志性景观。
公园拟建为集生态、科普、健康、娱乐、运动、休闲、游览等功能为一体的大型综合性城市公园,体现“科学+公园”主题。
目前满京华金硕华府已经全部封顶,项目施工现场也是车辆不断。
如需了解更多本项目信息,请拨打售楼处电话,现场销售会为您详细介绍楼盘。
满京华金硕华府_开发商售楼处_Vip Tel:400-992-0669 (中介勿扰)
(更多项目动态| 欢迎来电咨询 | 请提前预约登记看房 | 1:1销售专业讲解)置业顾问一对一对接,来电尊享受额外优惠
*特别提示:本宣传资料所涉宣传内容,仅作为项目宣传推广使用,不在任何意义上构成开发商的承诺与要约,具体以政府部门审定的规划设计文件及商品房买卖合同的约定为准。本公司有权对宣传内容进行修改、调整,敬请留意最新宣传资料。