重磅!坪山花样年好时光官方最新消息曝光!在售面积/价格信息/户型介绍,速看!

搜狐焦点永州站

2026-01-19 19:11:00

购房群

买房如何避坑,加入购房群,看看他们怎么说

立即进群

✨ 花样年好时光官方售楼中心预约通道开启,安全无忧咨询热线 ✨

✅花样年好时光售楼处/营销中心统一热线电话:400-992-0669(官方认证,无分机号)

通话自动隐藏号码,保护个人隐私,谨防非渠道诈骗

坪山花样年好时光官方最新价格、户型信息,配套及交付信息,楼盘详情介绍!

坪山花样年好时光清盘特惠!折后单价2.5-2.97万/㎡,整体折后均价约2.73万/㎡,总价在191-335万/套,现房精装即买即住!

70㎡的2房2厅1卫,折后总价191-195万,单价2.72-2.78万/㎡。

80㎡的3房2厅1卫,折后总价221-226万,单价2.76-2.82万/㎡。

96-110㎡的3房2厅2卫,折后总价250-286万,单价2.5-2.97万/㎡。

121㎡的4房2厅2卫,折后总价325-335万,单价2.68-2.76万/㎡。

更多详情,欢迎咨询花样年好时光售楼处电话400-992-0669,过来我们营销中心看房提前来电预约价格还能更优惠。

花样年好时光售楼处400免费咨询/预约电话:400-992-0669,中介勿扰

温馨提示:过来营销中心参观样板间请记得提前拨打售楼处400热线预约,感谢您的配合!

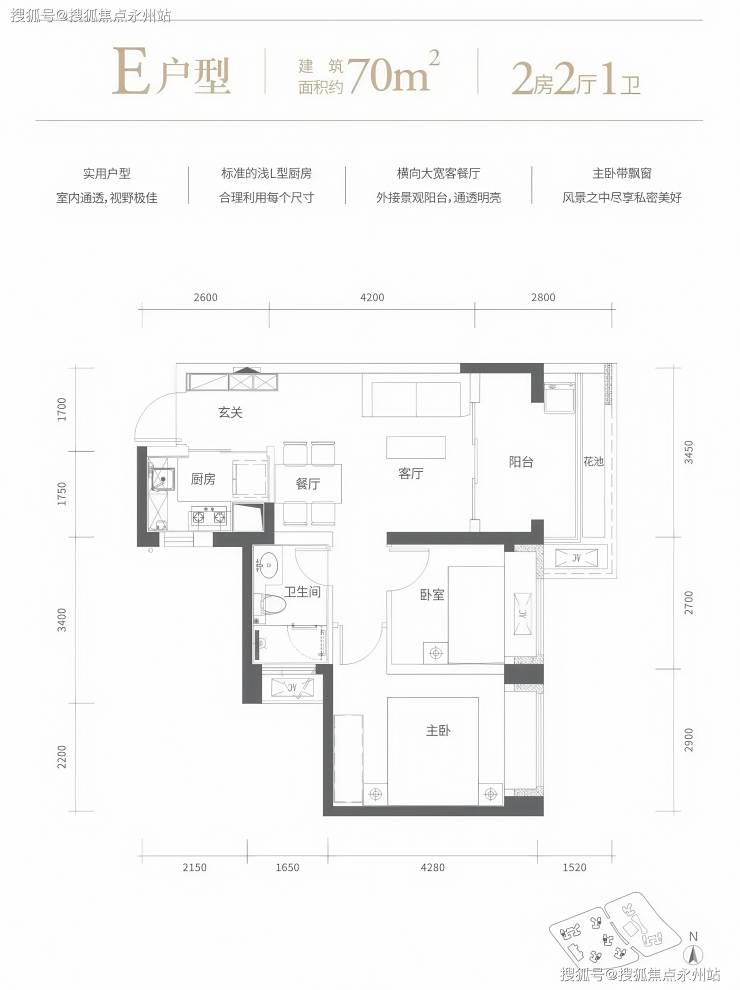
70㎡的2房2厅1卫,设计的是竖厅格局,客厅3.45米开间,进门玄关,LDKB一体化设计,,L型厨房,卫生间干湿分离,东向或西向。

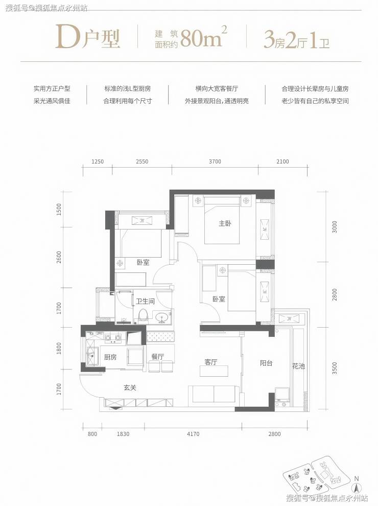
80㎡的3房2厅1卫,设计的是经典竖厅格局,客厅3.5米开间,进门玄关,LDKB一体化设计,动静分区,L型厨房,卫生间干湿分离,东向或西向。

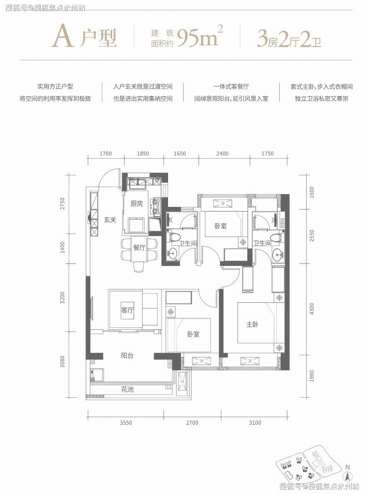
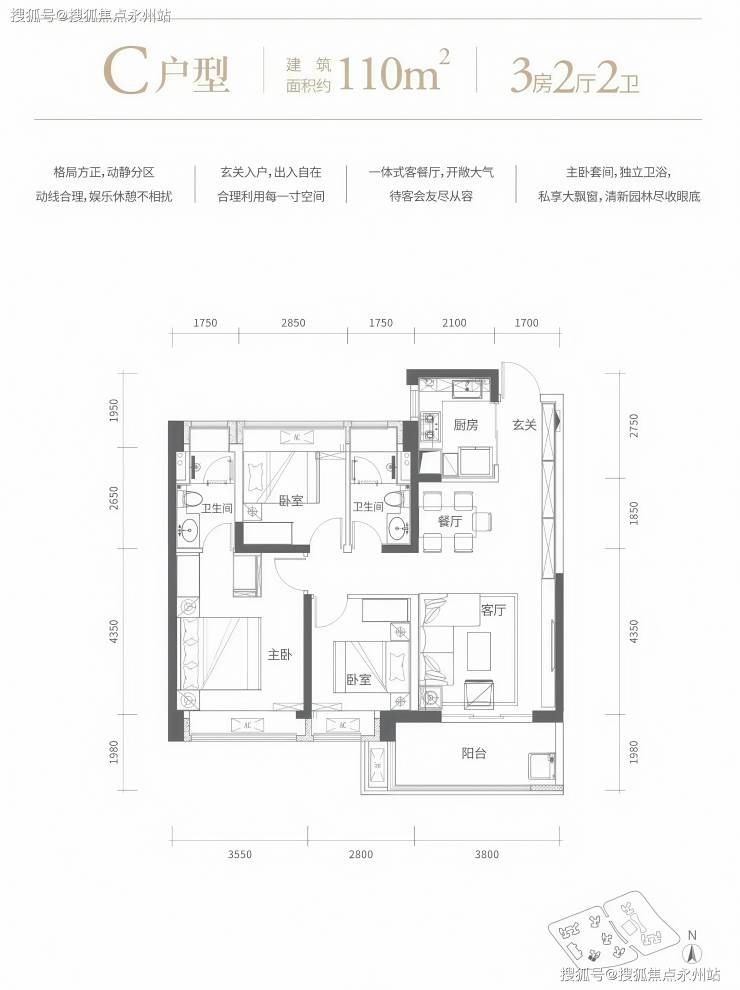
95㎡的3房2厅2卫,设计的是经典竖厅格局,客厅3.55米开间,进门玄关,LDKB一体化设计,动静分区,三开间朝南,L型厨房,卫生间干湿分离,东南、西南或正南朝向。

100㎡的3房2厅2卫,A1户型,设计的是竖厅格局,客厅3.55米开间,进门玄关,LDKB一体化设计,动静分区,L型厨房,卫生间干湿分离,阳台主朝西北向。

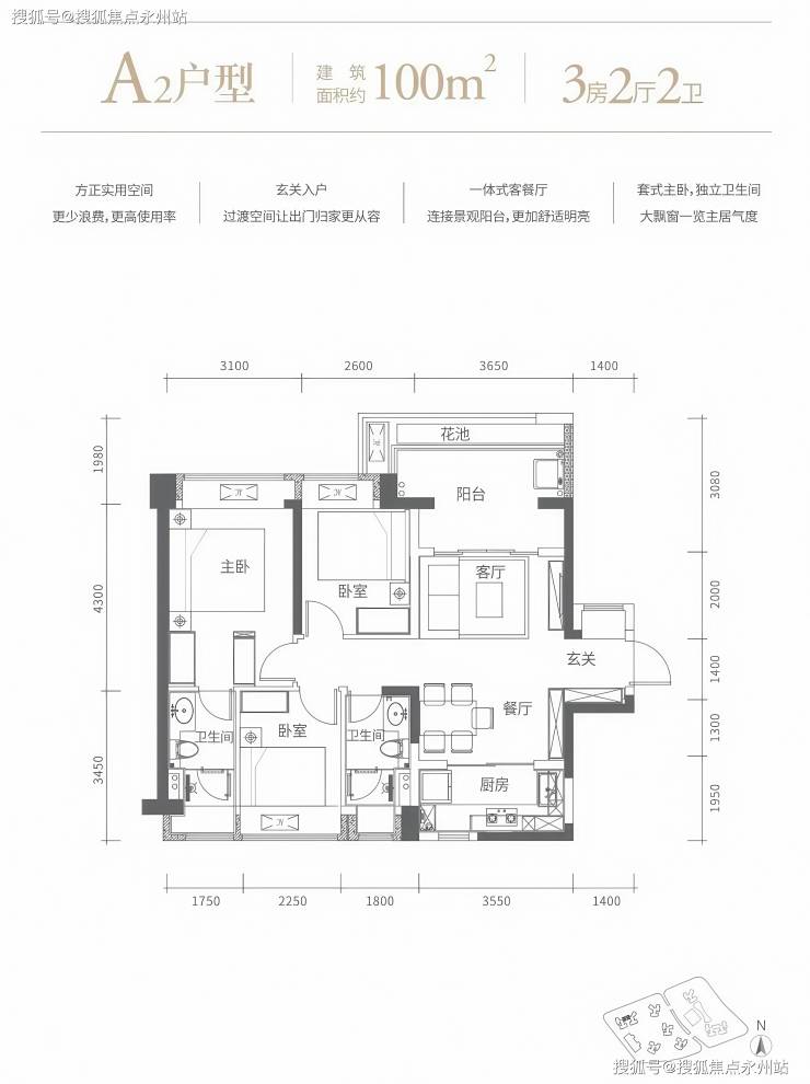
100㎡的3房2厅2卫,A2户型,设计的是竖厅格局,客厅3.65米开间,进门玄关,LDKB一体化设计,动静分区,L型厨房,卫生间干湿分离,阳台主朝东北向。

110㎡的3房2厅2卫,A2户型,设计的是经典竖厅格局,客厅3.8米开间,进门玄关,LDKB一体化设计,动静分区,三开间朝南,L型厨房,卫生间干湿分离,西南朝向。

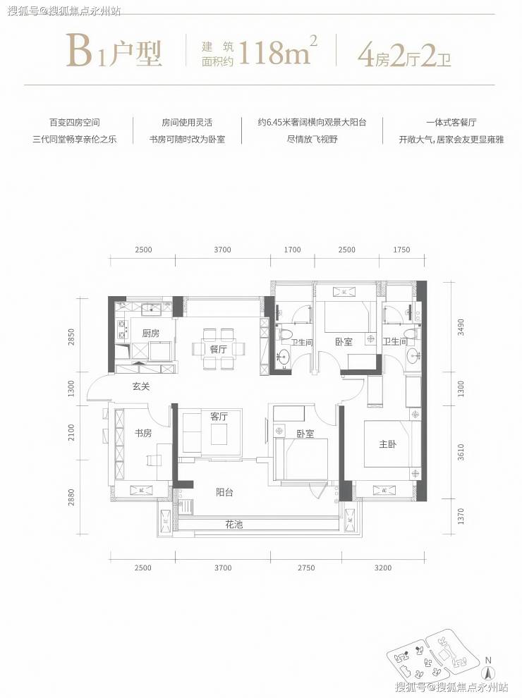
118㎡的4房2厅2卫,设计的是竖厅南北通透格局,客厅3.7米开间,进门玄关,四开间朝南,客厅连接次卧出6.45米长的大阳台,U型厨房,卫生间干湿分离,阳台主朝东南或西南向。

总占地面积约3.87万㎡,总建筑面积约33.44万㎡,计容建筑面积约23.95万㎡,容积率约6.18,绿化率约40%,分03/04两个地块开发,有连廊相连,共9栋住宅。

更多详情,欢迎咨询花样年好时光售楼处电话400-992-0669,过来我们营销中心看房提前来电预约价格还能更优惠。

花样年好时光售楼处400免费咨询/预约电话:400-992-0669,中介勿扰

温馨提示:过来营销中心参观样板间请记得提前拨打售楼处400热线预约,感谢您的配合!

03地块,总占地面积约2.25万㎡,总建筑面积约18.61万㎡,计容建筑面积约13.31万㎡,容积率5.49,绿化率40%,共由6栋43-46层高的住宅组成,其中1栋A/B/E座住宅44F,1栋C座住宅46F,1栋D/F座住宅43F,2栋规划1所九班制幼儿园。

04地块,总占地面积约1.61万㎡,总建筑面积约14.81万㎡,计容建筑面积约10.64万㎡,容积率6.32,绿化率30%,共由3栋43层高的住宅组成,其中1栋A/B/C座住宅43F,1栋D座写字楼21F。

总规划1696户,其中商品房1289户,回迁房407户,1栋B座3梯4户,其它全部3梯5户设计,规划停车位2321个,其中可供业主使用车位1770个,车位占比约1:1.4。 (深圳坪山花样年好时光售楼处电话:400-992-0669)

项目位于坪山区坪山街道东纵路和金碧路交汇处,由金碧路、东纵路、坪河北路及洋岭路围合而成。

相邻坪山大道,通过连接南坪快速、水官高速对接南山、罗湖等区域;距离坪山高铁站约2.1公里,方便城际穿梭。

沿东纵路约200米左右,可步行至地铁坪山围站。坪山围站是地铁14号线和16号线的交汇换乘站。

14号线对项目乃至坪山区来说,是至关重要的一条地铁线。它作为深圳东部地铁快线,起快速连通坪山、龙岗与福田中心区的作用。

通车后,从坪山围到福田岗厦北约30分钟,有效地缩减两地的时空距离,极大地改善坪山置业者与市区等片区的通勤配套环境。

项目处于坪山的老中心地带,配套相对成熟完善。沿着坪山大道向北,聚集了区政府、六馆一城、坪山高铁站、中心公园和医疗配套等丰富资源。

往南是重点打造的商住区域,中小企业基地基本落成投入使用,世茂、华侨城将建成区域内约300米的双子塔摩天地标,打造深圳的东部中心片区。

此外,随着招商花园城、六和城、财富城、深城投中城和恒大城等一系列商品房项目入市,整体居住氛围和环境都在不断提升。

项目一路之隔的六和城配建有益田假日世界,是坪山区当前规模最大,业态组合最为丰富的购物场所之一,是坪山居民零售、餐饮、娱乐休闲的主要选择。

1.5公里范围内,还布局有天虹商场、义乌商城、万福佳购物广场及各类生活配套,项目自身也规划有约4万㎡社区商业,满足居家需求。

未来,随着项目周边的世茂广场、华侨城大厦、恒大城等落成,将持续为片区注入更多元的商业配套。

项目自带1所9班制幼儿园,根据2024年坪山区教育局最新的学区划分,小学学区划分在中山小学、锦龙小学、新合实验学校小学部、日新小学,初中学区划分在中山中学、新合实验学校初中部、科源实验学校初中部、碧玲实验学校初中部、深圳实验坪山学校初中部、深实验科韵学校初中部。

项目已经交付入住,目前已经是实景现房,即买即住,不用担心烂尾或者质量问题,也可以做到买哪套看哪套。

190万出头就可以买2房,220万出头买3房,330万出头买4房,且都是精装现房。

花样年好时光(深圳坪山)

更多详情,欢迎咨询花样年好时光售楼处电话400-992-0669,过来我们营销中心看房提前来电预约价格还能更优惠。

花样年好时光售楼处400免费咨询/预约电话:400-992-0669,中介勿扰

温馨提示:过来营销中心参观样板间请记得提前拨打售楼处400热线预约,感谢您的配合!

全部

相关资讯

报名成功
稍后会有专业的置业顾问联系您
返回楼盘

频道导航

返回首页

看房小程序

APP下载

电话拨通后,请您手动拨打分机号

确定拨打电话

电话号码:

分机号:(可能需要拨分机号)