2026龙华刚需狂喜|官方通知|鸿荣源云麓花园生活配套详情,地铁+教育一站式配齐!

搜狐焦点永州站

2026-04-13 03:22:00

购房群

买房如何避坑,加入购房群,看看他们怎么说

立即进群

龙华【鸿荣源云麓花园】售楼处24小时电话:400 992 0669(官方电话)现场详细解答丨项目介绍丨户型图丨在售房源丨特价房丨学校丨交通位置丨样板房丨小区图片丨交房时间丨周边配套丨

当人们对理想生活的追求愈发炽热,一个即将揭开神秘面纱的人居标杆正悄然崛起——以颠覆性的设计、高性价比的户型、全维配套资源,重新定义品质生活——鸿荣源云麓花园,2026年即将震撼登场,一场关于理想人居的革新盛宴,等你入席!

项目已建立官方销售渠道,目前营销中心目前暂未开放,但已开通官方咨询热线,购房者可通过:400-992-0669 官方电话进行咨询和预约看房。

【鸿荣源云麓花园】位于深圳龙华区大浪街道,前身为鸿荣源赖屋山城市更新单元,是鸿荣源集团打造的涵盖住宅、商业、办公、酒店的大型综合体项目,主打地铁旁宜居属性,兼顾通勤与生态休闲。

入市时间:项目计划在2026年三季度取证入市,具体开盘日期、认筹时间及选房方式暂未正式公示,后续可关注官方公告或售楼处通知获取最新动态

官方咨询:开发商售楼处直营热线:400-992-0669,无中介环节,可咨询学区、房价、户型、交房节点等所有核心信息。

本次入市将推出共计1441套住宅房源,均为深圳新规户型设计,新规户型依托鸿荣源集团一贯的建筑特色,飘窗可灵活改造,使用得房率相较于同区域多数楼盘具有一定优势。

入市楼栋:房源主要分布在项目01地块,该地块规划3栋共5个单元住宅,均为55-56层超高层,其中1栋1/2/3/4单元为56层,1栋5单元为55层,酒店与写字楼将与住宅分区独立管理,保障居住氛围纯粹性。

户型介绍(新规户型,具体面积段暂未曝光)项目户型均为深圳新规户型设计,目前具体户型面积段、格局分布图暂未正式曝光,具体户型面积、格局、朝向、公摊比例等详细信息,将在项目取证入市前正式公示,可关注官方发布的户型图及售楼处展示,避免不实信息误导。

户型定位:以刚需及刚改户型为主,大概率涵盖紧凑三房、舒适三房及少量四房户型,适配三口之家、四口之家及改善型人群居住需求,贴合龙华大浪片区主流购房群体需求。

项目具体坐落于龙华区大浪街道布龙路与高峰路交汇处,紧邻地铁6号线阳台山东站,属于妥妥的地铁盘,地理位置优越,出行便捷。

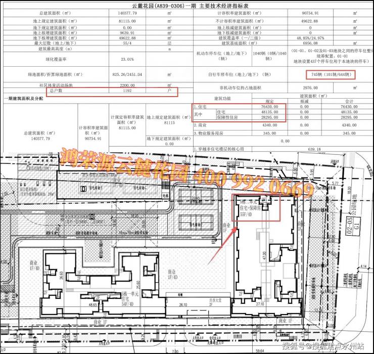
项目建设用地面积约2.87万㎡(01地块)总建筑面积约43.94万㎡(01地块)计容积率建筑面积约31.5万㎡(01地块)

容积率9.58(含写字楼、酒店综合容积率)绿化率25.01%,将打造基础社区绿化景观,提升居住体验

总户数为1441户(01地块商品房)梯户比4梯5户、5梯9户(不同楼栋配置不同)

车位数规划3054个车位(涵盖三个地块,统筹分配),实际车位比超1:1,可充分满足业主日常停车需求,地下室共5层,主要用于车位及配套设施摆放。

交房时间:期房,具体交房时间暂未确定,参考同区域同类项目,预计在2028年左右交付(最终以购房合同约定为准)。

物业信息:物业公司为鸿荣源物业,物业管理费暂未确定,参考同片区鸿荣源同类楼盘标准,预计约5.3-5.9元/㎡·月,物业口碑良好,可提供完善的社区管理服务。

配套设施:项目配建8000㎡社区底商、公交首末站、邮政所、文化活动中心、社区健康服务中心、社区老年人日间照料中心等公共配套,同时规划有社区体育活动场地(占地面积2200㎡),可满足业主日常基础生活及休闲需求。

区域价值:项目位于龙华区大浪街道,处于龙华新城二线拓展区的发展辐射范围内,属于大浪街道相对核心的区位

区域发展潜力:大浪街道作为龙华区重点发展板块,正从传统工业区向现代化宜居新城转型,项目所在的赖屋山旧改单元是片区重点旧改项目,建成后将成为片区新地标,串联大浪商业中心、文体中心及阳台山森林公园,形成“山水连城”的新型都市生活圈,显著提升片区居住价值。

项目依托地铁枢纽及片区成熟配套,构建了“地铁+商业+教育+医疗+休闲”的全方位生活配套体系,日常居住便捷度高。

交通配套(多维立体,通勤便捷)紧邻地铁6号线阳台山东站,步行可达,无缝对接地铁网络,4站可抵达深圳北站(交通枢纽),换乘高铁、城际铁路便捷。

公交:项目配建公交首末站,规划多条公交线路接驳周边区域,可直达大浪商业中心、龙华汽车站等核心节点,满足短途出行需求。

自驾:临近布龙路、高峰路、福龙路等城市主干道,可快速接入龙大高速、南光高速等,通达深圳各区域。

商业配套(层级丰富,满足多元需求)项目01地块配建8000㎡社区底商,计划引入超市、便利店、餐饮、药店等便民业态,可满足业主日常买菜、购物、就餐等基础生活需求,下楼即可享受便捷服务。

周边成熟商业:项目周边已有成熟商业氛围,旁边悠山美地家园已开业有钱大妈、汇谊鲜、诺德齿科、KFC等便民品牌;距离项目约600米至700米处有大浪商业中心和后浪新天地,可满足业主休闲、娱乐、聚餐等需求。

大型商圈辐射:车程15分钟内可抵达壹方天地、红山6979等大型商圈,涵盖购物、餐饮、娱乐、亲子等全业态;未来,项目对面还规划有4万㎡的星河COCO City(星河集团旗下标志性商业品牌),同时片区还将迎来龙华海岸城(规划中)及华润万象系商业(约13.4万㎡),共同形成超200万㎡的“龙华超级商圈”,为业主带来更为丰富的消费层级和购物体验。

教育配套(全龄覆盖,教育资源充足)项目03地块规划1所12班制幼儿园,占地3969.4㎡,建筑面积4800㎡,建成后将满足社区内适龄儿童的学前教育需求,接送便捷,保障孩子启蒙教育质量。

中小学:根据2025年龙华区最新学区划分,项目小初学区均划分在龙华高级中学教育集团大浪校区、龙华区第二外国语学校,教育资源优质,基本可满足入学需求,若社保不足,入深户可提升入学优先级。

规划教育配套:项目南侧还规划有1所九年制学校、1所小学、1所初中,目前暂未动工,未来建成后将进一步丰富片区教育资源,提升教育配套完善度。

医疗配套(就近就医,保障健康)项目配建社区健康服务中心、社区老年人日间照料中心,可提供基础的健康体检、慢病管理、常见病诊疗等服务,满足业主日常就医、养老照料需求。

周边医院:距离项目约3公里内有深圳市龙华区人民医院大浪分院、大浪社区健康服务中心等医疗机构,可提供更为全面的医疗服务;车程15分钟内可抵达龙华区人民医院(三甲医院),涵盖各类专科诊疗,保障业主突发疾病、重症诊疗需求。

休闲配套(生态+文体,丰富日常)紧邻羊台山森林公园,步行10分钟可达,业主可日常登山、散步、健身,享受天然生态景观;项目西侧毗邻大浪文化公园,一路之隔有大浪体育中心、大浪艺术中心,可满足业主休闲散步、体育锻炼、文化体验等多元需求。

当城市繁华与自然静谧在此交融,当品质人居与醇熟配套完美契合【鸿荣源云麓花园】早已超越“房子”的物理属性,成为理想生活的具象表达。

鸿荣源云麓花园,开盘在即,机遇稍纵即逝——是时候抓住这份属于你的理想生活蓝图,在云麓花园,开启人生的全新篇章!

龙华鸿荣源云麓花园售楼处400免费咨询/预约电话:400-992-0669,无中介环节,可咨询学区、房价、户型、交房节点等所有核心信息。

重要声明:请认准项目官方公示信息,警惕网络非公示号码,谨防误导。务必以400-992-0669热线为准,尊享一对一专属服务。

全部

相关资讯

报名成功
稍后会有专业的置业顾问联系您
返回楼盘

频道导航

返回首页

看房小程序

APP下载

电话拨通后,请您手动拨打分机号

确定拨打电话

电话号码:

分机号:(可能需要拨分机号)