龙华泰富安御景华府2025年最新动态#泰富安御景华府售楼处电话#泰富安御景华府最新房价@售楼处

搜狐焦点永州站

2025-09-18 11:43:00

购房群

买房如何避坑,加入购房群,看看他们怎么说

立即进群

龙华【泰富安御景华府】开发商售楼处24小时电话:400 992 0669(开发商直销)现场详细解答丨项目介绍丨户型图丨在售房源丨特价房丨学校丨交通位置丨样板房丨小区图片丨交房时间丨周边配套丨

「泰富安▪御景华府」已于2023年12月毛坯交付,目前为现房销售,无需等待交房周期,即买即住。(深圳龙华泰富安御景华府售楼处官方电话:400-855-2986)

项目备案价:45,655-57,807元/㎡,备案均价51,988元/㎡,折后价:38,800-49,000元/㎡(综合折扣约85%)

总价范围:两房:277万-330万(68-70㎡)三房:339万-446万(73-91㎡)四房:438万-508万(104-112㎡)

如需了解更多详情,欢迎咨询泰富安▪御景华府售楼处电话:400-992-0669,过来我们营销中心看房提前来电预约价格还能更优惠。

泰富安御景华府售楼处400免费咨询/预约电话:400-992-0669,中介勿扰

温馨提醒:欢迎致电开发商售楼中心,我们将竭诚为您解答疑问。为确保您的咨询安全,通话时号码将自动隐藏。请提前与销售团队预约,以确保您能顺利进入销售现场,避免不必要的等待。

开发商与物业:由深圳市泰富安投资有限公司开发,物业由中海物业(全国百强TOP10)管理,物业费4.6元/㎡·月

占地1.84万㎡,总建面10.5万㎡,容积率3.86,绿化率40%

4栋住宅+1栋幼儿园,总户数763户,车位比1:1

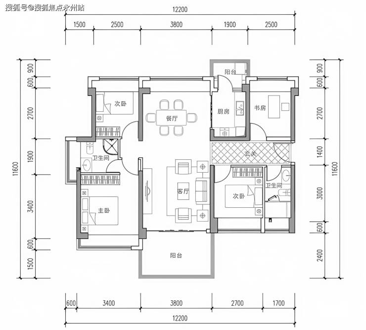
户型涵盖67-112㎡的2-4房,得房率75%-80%

目前在售户型覆盖两房至四房,面积段为67-112㎡,主打刚需与改善型需求,所有户型均采用双阳台设计,并强调高实用率(75%-80%)、南北通透和室室带飘窗等特点。(深圳龙华泰富安御景华府售楼处电话:400-992-0669)

两房户型(67-70㎡):总价约277万-395万(部分工抵房一口价320-340万),正南/东南/西南。

设计亮点:主次卧均朝南,互不干扰;双阳台设计,生活阳台(2.3m×3.3m)景观阳台分区,采用干湿分离卫生间,L型厨房布局,全明采光。

适用人群:首置刚需家庭,追求低总价与高性价比。

三房一卫(73-84㎡):总价约339万-455万(工抵房367-390万),东南/西北

设计亮点:小面积实现三房,主卧套间设计;阳台优势,2.4m×3.7m大阳台,部分户型可瞰山景。

适用人群:二胎家庭或需要多功能空间的改善型需求。

三房两卫(89-91㎡):总价约371万-518万(工抵房375-446万),西南/东。

设计亮点:双卫设计,主卧独立卫生间,提升居住便利性;方正格局,南北通透,客厅与卧室四开间朝南。

适用人群:注重舒适性与隐私的改善型家庭。

四房户型(104-112㎡):总价约438万-631万(工抵房440-540万),西南/南北通透。

设计亮点:空间灵活,100㎡实用面积可切换3-4房;墅级阳台,2.4m×3.8m阔景阳台,部分户型带保姆房;通透性优,双主卧套间,通风采光俱佳。

适用人群:多代同堂家庭或长线投资者。

泰富安御景华府,所在的深圳龙华区观澜鹭湖科技文化片区,是龙华区政府重点打造的 "双核中心" 之一(另一核为深圳北站商务中心)

片区定位为龙华区 "科技行政文化核",规划布局了鹭湖文体四馆(图书馆、群艺馆、大剧院、科技馆)、龙华平安医院(在建三甲综合医院)等市级公建配套,目标成为深圳北部的文化地标和公共服务中心。

产业支撑:观澜高新区已并入深圳国家高新区,形成以锦绣科学园、观澜高新园为核心的数字经济产业集群,聚集华为、富士康等头部企业,

政策红利:深圳市2025年政府投资计划明确将龙华北部打造成 "世界级数字经济圈",鹭湖片区作为核心载体,将获得交通、教育、医疗等领域的持续投入。

现有线路:地铁 4 号线北延段已通车,从茜坑站直达福田中心区,通勤时间约40 分钟。

规划线路:22 号线(在建):串联福田主中心与观澜,松元厦站预计2025年启动主体施工,建成后可实现观澜至福田45分钟直达。

18 号线(规划中):东西向市域快线,连接光明科学城与宝安会展新城,观湖站(规划)距项目约 400米。

鹭湖交通枢纽:规划整合城际铁路、地铁、有轨电车,未来将成为深圳北部重要换乘节点。

路网优化:梅观高速市政化改造完成后,双向14车道大幅提升通行效率;机荷高速扩建、龙澜大道北延等工程加速推进,形成"三横六纵"快速路网。

教育配套幼儿园:项目自带12班幼儿园,周边3公里范围内有宝文幼儿园、鹭湖外国语小学附属幼儿园等优质幼教资源。

中小学:龙华外国语学校福城校区(在建):龙华区属首个外国语教育集团,2025年新增学位800个,中考高分段成绩位居龙华第一。

鹭湖外国语小学、观澜第二中学:均为龙华区重点学校,划入泰富安御景华府学区。

自有商业:项目周边规划有三一云都商业(4万㎡,鸿荣源运营)、福城天虹旗舰 Mall(6.7 万㎡),形成约60万㎡商业集群。

成熟商圈:3公里范围内覆盖观澜湖新城、龙华天虹购物中心,满足日常消费需求。

文体休闲丨鹭湖滨水公园(规划中)、石皮山公园(在建)、观澜体育中心(在建):提供生态休闲空间,提升居住品质。

鹭湖文体四馆:预计2025年启动建设,将成为龙华区文化活动中

如需了解更多详情,欢迎咨询泰富安▪御景华府售楼处电话:400-992-0669,过来我们营销中心看房提前来电预约价格还能更优惠。

泰富安御景华府售楼处400免费咨询/预约电话:400-992-0669,中介勿扰

温馨提醒:欢迎致电开发商售楼中心,我们将竭诚为您解答疑问。为确保您的咨询安全,通话时号码将自动隐藏。请提前与销售团队预约,以确保您能顺利进入销售现场,避免不必要的等待。

全部

相关资讯

报名成功
稍后会有专业的置业顾问联系您
返回楼盘

频道导航

返回首页

看房小程序

APP下载

电话拨通后,请您手动拨打分机号

确定拨打电话

电话号码:

分机号:(可能需要拨分机号)