蛇口新盘招商望海玥家园预计将于2024年第四季度入市,目前项目正在打地基。项目部分户型可以看深圳湾海景,面积在66-125平之间。据说均价大约在11.3万/平(此价格仅为参考,最终价格以开发商备案官方网站公布为准)。
招商望海玥家园位置十分优越,前身为招商渔二村旧改,毗邻蛇口广场,与地铁2号线及13号线(建设中)东角头站相很近。望海玥家园_Vip Tel:400-992-0669(中介勿扰)
蛇口新盘本就不多,项目与中信东角头项目、半岛城邦5期并称“蛇口三大新盘”,项目这种有小户型的盘就更少了。不管是住宅(66-125平),还有项目的商务公寓(有一房两房,最大面积60平),都是刚需户型,属于蛇口片区上车新盘。
渔二村旧改(招商望海玥家园)相比一村旧改,位置更靠海,因此部分看海户型的海景景观更佳。
周边地理位置高大上,接下来蛇口渔港也将改造升级。

整个项目地块不大,有三栋高楼和少量底商。1-1栋、1-2栋为住宅楼,2栋为公寓
其中1-1栋临近望海路,为45F三梯五户住宅楼,这一栋多数户型享有海景资源,前方的海明苑约15F高度。
1-2栋在小区内侧,为44F三梯五户住宅楼,前方有34F公寓遮挡。这一栋不临近大马路,没有路噪影响。
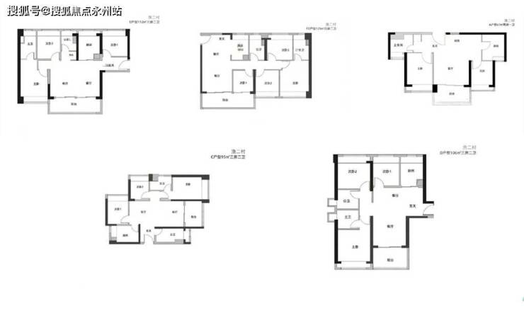
住宅面积为67㎡两房、88-112㎡三房、125㎡四房,四房比例不大,户型设计偏向刚需。
招商渔二村旧改,历时18年,终于盼来入市消息
望海玥家园前身为招商渔二村旧改,旧改项目历程也历经了漫长的过程,从2006年启动至今,已过去了18年,终于盼来入市消息。
渔二村始建于20世纪20年代初,至今已近百年历史,是深圳蛇口最古老的渔村之一。
2006年,渔二村被列入旧改计划;
2011年,渔二村举办项目启动暨合作签约仪式;
2014年,渔二村业主开始签约,2015年签约基本完成;
2018年,渔二村开拆,但建筑拆除完毕后未正式动工;
2021年,招商正式接手渔二村旧改,并于2022年年底项目开工。
最新情报:南山蛇口小户型招商望海玥家园(原渔二村旧改项目)预计今年第4度开盘入市,推出面积67-125㎡,单价预计10-11万/㎡左右
如需了解更多本项目信息,请拨打售楼处电话,现场销售会为您详细介绍楼盘。
招商望海玥家园_营销中心_Vip Tel:400-992-0669 中介勿扰
(更多项目动态| 欢迎来电咨询 | 请提前预约登记看房 | 1:1销售专业讲解)置业顾问一对一对接,来电尊享受额外优惠