泰富安御景华府(2025年深圳泰富安御景华府)首页网站-楼盘详情-房价-户型-容积率-小区配套

搜狐焦点永州站

2025-07-27 16:42:00

购房群

买房如何避坑,加入购房群,看看他们怎么说

立即进群

「泰富安▪御景华府」已于2023年12月毛坯交付,目前为现房销售,无需等待交房周期,即买即住。(深圳龙华泰富安御景华府售楼处官方电话:400-855-2986)

项目备案价:45,655-57,807元/㎡,备案均价51,988元/㎡,折后价:38,800-49,000元/㎡(综合折扣约85%)

总价范围:两房:277万-330万(68-70㎡)三房:339万-446万(73-91㎡)四房:438万-508万(104-112㎡)

如需了解更多详情,欢迎咨询泰富安▪御景华府售楼处电话:400-992-0669,过来我们营销中心看房提前来电预约价格还能更优惠。

泰富安御景华府售楼处400免费咨询/预约电话:400-992-0669,中介勿扰

温馨提醒:欢迎致电开发商售楼中心,我们将竭诚为您解答疑问。为确保您的咨询安全,通话时号码将自动隐藏。请提前与销售团队预约,以确保您能顺利进入销售现场,避免不必要的等待。

开发商与物业:由深圳市泰富安投资有限公司开发,物业由中海物业(全国百强TOP10)管理,物业费4.6元/㎡·月

占地1.84万㎡,总建面10.5万㎡,容积率3.86,绿化率40%

4栋住宅+1栋幼儿园,总户数763户,车位比1:1

户型涵盖67-112㎡的2-4房,得房率75%-80%

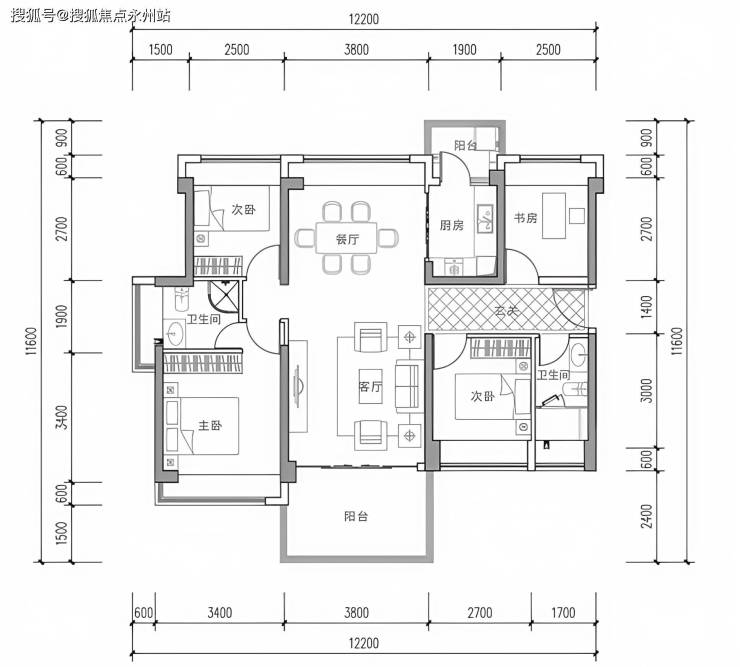
目前在售户型覆盖两房至四房,面积段为67-112㎡,主打刚需与改善型需求,所有户型均采用双阳台设计,并强调高实用率(75%-80%)、南北通透和室室带飘窗等特点。(深圳龙华泰富安御景华府售楼处电话:400-992-0669)

两房户型(67-70㎡):总价约277万-395万(部分工抵房一口价320-340万),正南/东南/西南。

设计亮点:主次卧均朝南,互不干扰;双阳台设计,生活阳台(2.3m×3.3m)景观阳台分区,采用干湿分离卫生间,L型厨房布局,全明采光。

适用人群:首置刚需家庭,追求低总价与高性价比。

三房一卫(73-84㎡):总价约339万-455万(工抵房367-390万),东南/西北

设计亮点:小面积实现三房,主卧套间设计;阳台优势,2.4m×3.7m大阳台,部分户型可瞰山景。

适用人群:二胎家庭或需要多功能空间的改善型需求。

三房两卫(89-91㎡):总价约371万-518万(工抵房375-446万),西南/东。

设计亮点:双卫设计,主卧独立卫生间,提升居住便利性;方正格局,南北通透,客厅与卧室四开间朝南。

适用人群:注重舒适性与隐私的改善型家庭。

四房户型(104-112㎡):总价约438万-631万(工抵房440-540万),西南/南北通透。

设计亮点:空间灵活,100㎡实用面积可切换3-4房;墅级阳台,2.4m×3.8m阔景阳台,部分户型带保姆房;通透性优,双主卧套间,通风采光俱佳。

适用人群:多代同堂家庭或长线投资者。

泰富安御景华府,所在的深圳龙华区观澜鹭湖科技文化片区,是龙华区政府重点打造的 "双核中心" 之一(另一核为深圳北站商务中心)

片区定位为龙华区 "科技行政文化核",规划布局了鹭湖文体四馆(图书馆、群艺馆、大剧院、科技馆)、龙华平安医院(在建三甲综合医院)等市级公建配套,目标成为深圳北部的文化地标和公共服务中心。

产业支撑:观澜高新区已并入深圳国家高新区,形成以锦绣科学园、观澜高新园为核心的数字经济产业集群,聚集华为、富士康等头部企业,

政策红利:深圳市2025年政府投资计划明确将龙华北部打造成 "世界级数字经济圈",鹭湖片区作为核心载体,将获得交通、教育、医疗等领域的持续投入。

现有线路:地铁 4 号线北延段已通车,从茜坑站直达福田中心区,通勤时间约40 分钟。

规划线路:22 号线(在建):串联福田主中心与观澜,松元厦站预计2025年启动主体施工,建成后可实现观澜至福田45分钟直达。

18 号线(规划中):东西向市域快线,连接光明科学城与宝安会展新城,观湖站(规划)距项目约 400米。

鹭湖交通枢纽:规划整合城际铁路、地铁、有轨电车,未来将成为深圳北部重要换乘节点。

路网优化:梅观高速市政化改造完成后,双向14车道大幅提升通行效率;机荷高速扩建、龙澜大道北延等工程加速推进,形成"三横六纵"快速路网。

教育配套幼儿园:项目自带12班幼儿园,周边3公里范围内有宝文幼儿园、鹭湖外国语小学附属幼儿园等优质幼教资源。

中小学:龙华外国语学校福城校区(在建):龙华区属首个外国语教育集团,2025年新增学位800个,中考高分段成绩位居龙华第一。

鹭湖外国语小学、观澜第二中学:均为龙华区重点学校,划入泰富安御景华府学区。

自有商业:项目周边规划有三一云都商业(4万㎡,鸿荣源运营)、福城天虹旗舰 Mall(6.7 万㎡),形成约60万㎡商业集群。

成熟商圈:3公里范围内覆盖观澜湖新城、龙华天虹购物中心,满足日常消费需求。

文体休闲丨鹭湖滨水公园(规划中)、石皮山公园(在建)、观澜体育中心(在建):提供生态休闲空间,提升居住品质。

鹭湖文体四馆:预计2025年启动建设,将成为龙华区文化活动中

如需了解更多详情,欢迎咨询泰富安▪御景华府售楼处电话:400-992-0669,过来我们营销中心看房提前来电预约价格还能更优惠。

泰富安御景华府售楼处400免费咨询/预约电话:400-992-0669,中介勿扰

温馨提醒:欢迎致电开发商售楼中心,我们将竭诚为您解答疑问。为确保您的咨询安全,通话时号码将自动隐藏。请提前与销售团队预约,以确保您能顺利进入销售现场,避免不必要的等待。

全部

相关资讯

报名成功
稍后会有专业的置业顾问联系您
返回楼盘

频道导航

返回首页

看房小程序

APP下载

电话拨通后,请您手动拨打分机号

确定拨打电话

电话号码:

分机号:(可能需要拨分机号)