【岗宏翰林汇】十年平湖,一城一心 翻阅与平湖美好共生的11载
岗宏始终以创新、极致的产品力 引领一座活力大城的无限想象
十年前,岗宏初次落子平湖 成为破力而行的大城“革新者”
见证平湖城市人居生活的深刻变革
十年后,岗宏再启新篇 以岗宏翰林汇,惊艳登临
罗湖北·约47万㎡公园学府大城
岗宏翰林汇_售楼处_Vip Tel:400-992-0669 中介勿扰

【27载岗宏 十余年平湖深耕 再展大城宏图】
27年耕耘深圳,岗宏集团10余载布局龙岗平湖,与片区发展共成长。在平湖,坚守品质初心,以时光匠铸融湖中心城,成就平湖盛景格局。继融湖中心城之后,岗宏步履不停,于丹平快速之上,再为平湖造一座大城——岗宏翰林汇,携手融湖中心城,以双星宏图,助力平湖人居向上。
【双千万级前瞻规划 重塑平湖发展版图】
地理中心:项目位距深莞几何中轴,链接龙岗与龙华,既是深圳的地理中心,也是深圳辐射粤东粤北地区的“桥头堡”。智造新城:平湖是深圳的智造新城,打造千万级新兴产业规划,也是深圳旧改的重要区域,超30个更新项目,千万级城市更新规划体量,双千万级前瞻规划,加速平湖价值腾飞。产业高地:约150万㎡鹅公岭高新技术产业园,是深圳未来物联网、航天科工的高新基地,目前已签约中国航天科工,未来将吸引大量的高新技术公司进驻。项目乘势区域焕新动能,打造宜业、宜居“泛高新产城生活圈”。

【3地铁+4高速枢纽构图,快速畅达全城】
3大地铁:咫尺17号线(规划中)鹅公岭站,无缝换乘10号线、18号线(规划中),贯通深圳各区,优享便捷出行。4大高速:紧邻丹平快速,全程少红绿灯,接驳沈海、水官、清平三高速,高效率往返罗湖、福田中心区,事业生活两不误。
【咫尺书香涵养 无忧护航菁英未来】
自带12班幼儿园,毗邻2所九年一贯制学校(平湖实验学校,园岭学校(暂定名)),近鹅溪小学,家门口畅享高质量全龄教育,为孩子成长写下满分答案。(平湖实验学校:2014年创办,共有教学班36个,荣获2022年中考录取分数平湖第一,曾获“全国教育科学‘十二五’规划教育部规划课题先进实验学校”、“广东省安全文明校园”、“深圳市年度美育典范学校”等荣誉称号;园岭学校:规划36班九年一贯制学校;鹅溪小学:1956年创办,区一级的14班公办小学)

【三大商圈赋能 畅享生活繁华境】
项目自带约4.3万㎡集中商业,打造成为集娱乐、文化、科技、美食、购物于一体的全新商业地标,举步即享万象生活。近享融湖广场、万达广场、大业城、红星美凯龙、奥特莱斯等大型旗舰商业,“平湖老街”、“华南城”、“鹅公岭社区”三大商圈环伺,满足一站式购物需求。Vip Tel:400-992-0669 中介勿扰

【五大超前纲领 再造平湖大城新范本】
1. 超越当下的美学大城引入6T生活空间理念,将项目整体以“垂直森林”作为建筑形态设计理念。
2. 超越想象的活力社区以纽约哈德逊广场为蓝本,结合自带集中式社区商业的开放空间,形成城市“公共生活轴”,满足全年龄、全时段、全周期休闲需求。柏涛团队担任设计,引入6T生活空间理念,打造成为集购物、自然、生态、娱乐、文化为一体的潮流生活目的地。

3. 超越边界的社区漫游打造24H全天候开放城市公共服务轴,无界相融社区与城市,将地铁枢纽、平湖主干道、社区花园、商业会所轻松接驳,畅享集购物、社交、娱乐、文化、休闲、居住为一体的全新生活体验。4. 超越品质的归家流线抵商——入景——入园——入户。

超越标准的舒居生活建面约73-131㎡美学人居空间,2-4房多元户型营造,满足不同家庭结构的高素质人群所享。以宝盾定制门、老板厨电、欧派橱柜、TOTO洁具等一线品牌高定臻装,打造高雅品质生活,焕新平湖舒居典范。

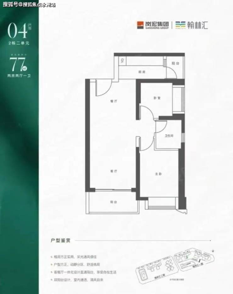
77㎡的2房2厅1卫,设计的是竖厅格局,客餐厅一体化,客厅3.3米开间,2个卧室分别做到了2.95米/2.4米的宽度,一字型厨房,还带1个小生活阳台,东南朝向
89㎡的3房2厅1卫,设计的是竖厅格局,客餐厅一体化,客厅3.4米开间,进门独立玄关,3个卧室分别做到3.1米/2.48米/2.48米的宽度,L型厨房,还带1个小生活阳台,朝南向。
107㎡的3房2厅2卫,设计的是竖厅格局,客餐厅一体化,客厅3.6米开间,进门独立玄关,L型厨房,还带1个生活阳台,东南朝向。
项目建设用地指标显示,有4栋住宅(其中1栋为安居房),层高32-46层,2栋1-2单元46层,2栋3-4单元32层。住宅共有535户,套内小于90平的493套,占比92.15%,安居房245户。
其中:住宅6.44万平方米(含安居型商品房1.56万平方米);
商业1200平方米
配建12班幼儿园、邮政所、社区服务中心等。
看完以上介绍,如需了解更多关于我们岗宏翰林汇楼盘最新消息、剩余房源、折扣优惠活动、近期房价走势等情况,欢迎咨询岗宏翰林汇售楼处咨询/预约电话:400-992-0669 中介勿扰。