联发·红山新澍雅居(官方)联发·红山新澍雅居_深圳联发·红山新澍雅居售楼处电话丨楼盘详情

搜狐焦点永州站

2026-01-19 05:22:00

购房群

买房如何避坑,加入购房群,看看他们怎么说

立即进群

最新官方信息,【联发·红山新澍雅居】计划于2026年一季度取证并开盘入市。项目已于2025年11月1日获得主体工程批复,合同竣工时间为2027年10月30日,预计2028年中下旬精装交付,产权年限为70年,从2025年6月起算。

项目为纯商品房,无配套租赁住宅或安居房,目前已开放前期咨询通道,可通过官方售楼处电话:400-992-0669 预约,提前预约可享受开盘额外优惠(中介勿扰)样板间已进入筹备阶段,需提前电话登记方可参观。

价格信息:基于地块成本和市场行情分析,该项目定价策略呈现以下特点: 成本构成分析:项目楼面价44,559元/平方米,加上建安、精装、营销等成本,开发商综合成本约6.8万元/平方米,保本售价需达7万元 / 平方米以上。

预计备案均价:约7.3万元/平方米,预计折后均价:6.8-7.0万元/平方米,市场低迷时可能降至6.5万元/平方米左右,基于楼面价4.5万/㎡及区域市场行情,预估单价约6-7万 /㎡

价格优势:作为不限价地块,项目以小户型设计降低刚需上车门槛,对比周边同学区二手房(如金地上塘道60余平两房355万起),具备一定性价比优势。

项目已建立官方销售渠道,目前营销中心目前暂未开放,但已开通官方咨询热线,购房者可通过:400-855-2986 官方电话进行咨询和预约看房。

项目位于深圳市龙华区民治街道民塘路与佳民路交汇处,紧邻金地上塘道二期,隶属红山核心居住区,处于深圳北站国际商务区与红山商圈的黄金交汇处,是龙华区“数字龙华、都市核心”战略的重要组成部分。项目已建立官方销售渠道,目前营销中心目前暂未开放,但已开通官方咨询热线,购房者可通过:400-992-0669 官方电话进行咨询和预约看房。

项目基础参数信息

占地面积:约1.09万㎡ 建筑面积:约4.29万㎡(计容建筑面积约3.37万㎡)

容积率:2.5(低密配置,在龙华新盘普遍高容积率的现状下优势明显)

绿化率:32.49% 总户数:332户

总楼栋及层高:3栋住宅,1栋1/2单元25层,1栋3单元16层,形成高低错落布局;层高3米,限高80米

梯户比:1栋1/2单元2梯6户,1栋3单元2梯4户

车位配置:地下室1层,规划360个车位,车位比1:1.08,充分满足停车需求

物业公司:深圳联粤物业,物业费待定,参考5.3元/㎡·月

规划设计:采用人车分流设计,内部打造能量营地、亲子趣园等景观空间;自身规划有约500平方米的裙房商业(1栋首层),提供日常生活便利服务

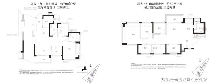
项目共规划332套房源,包含建筑面积约69-72-78-80-84-99㎡三至四房,涵盖6 个面积段,细分7种户型,横厅竖厅设计兼备。项目主打高得房率小户型,所有户型得房率均达到100%(包含赠送面积),且户户朝南,这在深圳新盘中极为罕见。

户型设计充分体现了"螺蛳壳里做道场"的理念,通过飘窗、设备平台等创新设计拓展使用空间,使用率达90%。所有飘窗均为非承重墙设计,业主可根据需求打掉拓展使用空间。

项目已建立官方销售渠道,目前营销中心目前暂未开放,但已开通官方咨询热线,购房者可通过:400-992-0669 官方电话进行咨询和预约看房。

69㎡2+1房1卫(可改三房)该户型采用竖厅格局,客厅 3 米开间,打造 LDKG+X 空间一体化设计,让公共区域更显开阔通透。户型设计特点包括:

空间布局:S 墙设计预留冰箱卡槽位,U 型厨房操作动线合理,卫生间实现三段式干湿分离

采光设计:三开间朝南,主卧与一个次卧配备双飘窗,另一个次卧带有设备平台可放置空调机位

朝向优势:西南朝向,能保证充足的采光

灵活改造:通过 S 型墙体嵌入冰箱位,阳台与书房区域可改造为房间,实现小面积多功能利用

78-82㎡3房2卫:该面积段涵盖竖厅和横厅两种设计,其中79-82㎡以竖厅为主,84㎡为横厅南北通透格局:

78㎡竖厅户型:客厅 3.4 米开间,主卧升级为套房,带独立卫浴,提升私密性与便利性

84㎡横厅户型:采用横厅南北通透格局,打破了竖厅的空间局限,空气流通性更佳。客厅 3.4 米开间,动静分区明确,主卧南北通透设计提升了居住舒适度

共同特点:均实现三房两卫配置,满足家庭基本居住需求,全屋多飘窗,餐厅位带设备平台

99㎡4房2卫:作为项目的改善型主力户型,采用横厅南北通透格局,客餐厅开间达到 5.35 米,空间尺度感十足:

入户设计:进门设有独立入户玄关,保障了居住私密性

采光优势:五开间朝南的设计让全屋采光无死角

主卧配置:主卧为大套间设计,配备衣帽间与主卫,舒适度与私密性兼具

功能空间:餐厅带有设备平台,U 型厨房满足多人协作烹饪需求,4 房 2 卫的配置完全能满足二孩家庭或三代同堂的居住需求

阳台设计:阳台东南朝向,采光条件优越。

智慧社区配置:与华为深度合作,搭载New Life OS智慧社区系统及华为鸿蒙智家,可与2800个品牌、7700+智能产品联动;全屋配备华为坤灵Wi-Fi6和PLC电力载波技术,实现“断网不断联”的全场景智慧生活体验。

品牌配置:入户门采用王力品牌铸铁门,配备华为智能门锁(掌静脉解锁技术);客厅配备日立中央空调和新风系统;卫生间采用科勒卫浴,厨房配备方太或同等品牌的洗碗机、燃气灶、油烟机,以及凉霸、直饮水、垃圾处理器等实用设备(厨房四件套标准达5万元)。

细节设计:标配玄关收纳和厨卫收纳,玄关柜、橱柜、厨房灶具&电器、卫生间镜柜等硬件齐全,添置软装家私电即可直接入住。

项目位于龙华红山核心居住区,配套还是很哇塞,地铁、学校、医院、商业、市政公园、文化场馆、体育场馆等几乎是一应俱全,并且大都比较优质。

交通方面,项目交通网络四通八达,距离地铁6号线上芬站约700米,步行10分钟即可抵达;距离4号线上塘站约1公里,步行12-15分钟,通过4号线可快速换乘5号线直达福田、罗湖等核心区域。

自驾方面,深华快速路 - 福龙路立交工程(一期)已通车,从项目经民塘路可快速接入福龙路,前往福田、南山可节省约 20 分钟车程。

项目属于民治街道大学区范围,教育资源丰富:

小学阶段:1 公里范围内的龙华未来小学(第二梯队)2025年录取积分为第六类 62.1分,非深户+学区租房即可入学,入学门槛相对较低。

初中阶段:主要对口龙华实验学校至美校区,2025年A1类录取积分为60.2分,此外还可参与华东师范大学附属深圳龙华学校的电脑随机派位。

学位优势:龙华实验学校为九年一贯制公办学校,2024年中考普高率达 78%,位居龙华区前三,且A2类户籍购房家庭100% 录取,学位稳定性高。

项目周边商业配套呈现"基础+未来"的立体化布局:

现有配套:1公里范围内拥有华南首家 Costco 会员旗舰店,提供仓储式购物体验;星河 COCO City(民治店)商业面积达9.5万㎡,日均客流量超3万人次,涵盖餐饮、娱乐、零售等多元业态

互补配套:10万㎡的龙华天虹购物中心与红山 6979商业中心形成互补,前者定位都市旗舰生活购物中心,后者为全天候开放式多元文化街区,2024年国庆假期客流量达60万人次

未来规划:计划2027年开业的华润超核万象城(13万㎡)将引入万象城品牌及五星级购物中心,进一步提升区域消费能级;AT MALL 上塘荟(8万㎡)主打年轻化潮流商业,满足不同年龄层消费需求。

项目周边医疗资源丰富,构建了完善的三级健康保障体系:

三甲医院:深圳市第二儿童医院:总投资 26 亿元的三甲专科医院,距离项目约 2 公里

新华医院:总投资 43 亿元的三甲综合性医院,已建成运营

龙华区人民医院:距离项目约 2.8 公里,提供基础医疗服务

其他医疗机构:深圳仁合医院、深圳健安医院等多家医疗机构分布在项目周边 3 公里范围内,满足日常就医需求。

目2公里范围内还有红山公园、图书馆、美术馆等文化休闲设施,为居民提供了丰富的精神文化生活选择。近享深圳美术馆新馆、深圳市图书馆北馆(均为深圳"新时代十大文化设施"),周边还有深圳文化馆新馆(在建)、深圳书城(龙华城)、演艺馆等市级文体项目,文化氛围浓厚。

公园绿地:周边阳台山森林公园、红木山郊野公园、北站中心公园、长岭陂水库等生态公园,

深圳龙华【联发·红山新澍雅居】以"新青年品牌挚友"的身份量身定制「新澍」产品为新青年打造高品质、强运营、智慧化的"人生第一套好房子"为城市留住青年人才,为区域注入活力。

目前已开放前期咨询通道,可通过官方售楼处电话:400-992-0669 预约,提前预约可享受开盘额外优惠(中介勿扰)样板间已进入筹备阶段,需提前电话登记方可参观。

温馨提示:项目没有所谓的“分机号”注意保护个人隐私!谨防上当!看房请务必提前预约,避免临时无人接待,感谢您的配合!

全部

相关资讯

报名成功
稍后会有专业的置业顾问联系您
返回楼盘

频道导航

返回首页

看房小程序

APP下载

电话拨通后,请您手动拨打分机号

确定拨打电话

电话号码:

分机号:(可能需要拨分机号)