宝安【 拾悦城楠园】售楼处24小时电话:400 992 0669(官方电话)现场详细解答丨项目介绍丨户型图丨在售房源丨特价房丨学校丨交通位置丨样板房丨小区图片丨交房时间丨周边配套丨
拾悦城楠园房价是多少,有那些优惠,拾悦城二期楠园在售的都有什么户型?宝安-沙井《拾悦城二期楠园》2023年10月11日取证,首推b座、e座共计520套房源。面积86平方3房2厅1卫,100-103-107平方3房2厅2卫,115平方4房2厅2卫,140平方5房2厅2卫,备案均价50057元/平方,总价最低374万,最高总价851万。折后均价4.5万/平方,对比2017年拾悦城一期开盘均价4.3万/平方,只相差2000元/平方,预计2025年交房带装修。售楼处营销中心电话_Vip Tel:400 992 0669
拾悦城楠园位于广东省深圳市宝安区宝安大道11号线沙井站B口/马安山站A口,宝安拾悦城二期楠园总户数约:2000套,可售约:1307套车位约:2300个,户型详细户型段:约86平(三房两厅一卫)约90平-107平(三房两厅两卫)约115平-125平(四房两厅两卫)约140平(五房两厅两卫)项目整体占地约3.54万㎡,总建面约17万㎡,共规划了14栋30-48层超高层住宅、4栋26-33F高端写字楼及部分商业配套组成,还规划了一所36班九年一贯制学校、一所18班幼儿园。
拾悦城楠园采用的是开发商直接在售楼处进行销售,并且通过网络平台进行推广
拾悦城楠园_开发商售楼处_Vip Tel:400 992 0669 (中介勿扰)
(更多项目动态| 欢迎来电咨询 | 请提前预约登记看房 | 1:1销售专业讲解)置业顾问一对一对接,来电尊享受额外优惠

拾悦城二期分为“楠园”和“沁园”,两个全新的住宅社区。率先入市的为楠园,居住属性纯粹,占地面积约3.5万㎡,计容建面约23.5万㎡。楠园由8栋建筑主体组成,分为1栋、2栋,其中1栋由A-G座组成,总房源1682套,其中商品房有1202户,回迁房480户。

项目户型介绍
86㎡的3房2厅1卫:设计的竖厅格局,向套内面积66.26㎡,得房率77%左右,客厅3.3米开间,目前仅B座06户型有,东北朝
100㎡的3房2厅2卫:设计的竖厅格局,套内面积77.24㎡,得房率77.24%左右,客厅3.4米开间,有西南及东南朝向
103㎡的3房2厅2卫:设计的竖厅格局,套内面积79.4㎡,得房率77.09%左右,客厅3.4米开间,目前仅B座07户型有,东北朝向
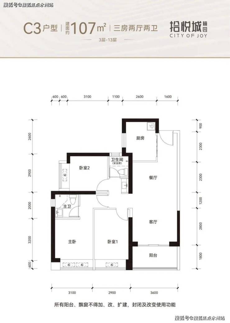
107㎡的3房2厅2卫:设计的竖厅格局,套内面积82.59㎡,得房率77.19%左右,客厅3.6米开间,西南朝向
115㎡的4房2厅2卫:设计的竖厅南北通透格局,套内面积88.51㎡,得房率76.97%左右,客厅3.6米开间,目前仅E座05户型有
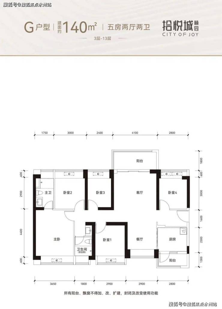
140㎡的5房2厅2卫:设计的竖厅南北通透格局,套内面积107.99㎡,得房率77.14%左右,客厅4.7米开间,目前仅B座05户型有
拾悦城楠园样板间鉴赏
作为拾悦城进阶归来的力作,楠园此次亮相的为建面约 86-140㎡全能3-5房,从对进阶生活方式的洞察出发,以 “舒居尺度” 为纽带,户型布局轻松适应不同家庭阶段及居家场景的变化,伴随着家庭成长的每一步,让生活一步到位。
86㎡硬核3房 刚需上车首选
餐客厅一体化设计,可根据喜好随心布局;动静分区的格局,让处于不同场景的家人各享所乐,又互不干扰;轩敞阳台空间,可根据家庭需求改造成不同区域,花园、茶室、健身室......让所有成员都能共享生活的美好从容。

100㎡升级3房 百变生长空间
三开间朝南设计,最大限度扩大室内采光面;创新户型布局,既保证了主卧的阔绰空间,也有pro max次卧,结构灵活百变,满足家庭不同阶段的不同需求;整体空间尺度大气舒适,为每位家庭成员提供了更多生活可能性。
118㎡宽阔4房 三代同堂优选
全明采光户型,四卧室、厨房、两卫、客餐厅等均设计超大采光面,带来明亮通透的舒适居感,客餐厅以横厅布局,让家庭居住空间的视野范围和活动区域扩大,加强家庭成员之间的情感交流;不论是三代同堂的天伦之乐,亦或是四口之家的温馨时刻,皆能一步到位。
交通:项目紧邻11号线沙井站约700米,前往宝中、南山和福田相对缘,到达科技园需要约1小时,自驾走宝安大道、广深公路或京港澳高速,到达宝中和南山需要约四五十分钟。
商业:自带部分商业,只能满足日常购物需求,随着旧改推进,会和招商雍和府形成一个小商圈。周边商业配套有百佳华MAX CITY(沙井店)、百佳华奥特莱斯、华润万家、西荟城购物广场,直线距离均在一公里范围内。
教育:项目自带一所18班的幼儿园,未来还将规划九年一贯制学校教育用地引进宝中集团合办分校;周边有壆岗小学、拾悦小学、万丰小学等学校,但对比宝安其余几个片区的教育资源,项目周边学校成色略显不足。
文娱:楼下步行可达约9.5万㎡占地的定岗湖湿地公园,茶余饭后散步的好地方,一公里范围有万丰羽毛球馆、大钟山公园新桥中心公园、新桥市民广场,这些可以作为日常休闲的去处。
拾悦城楠园售楼处电话:400-992-0669 售楼中心,项目全面介绍,包含楼盘简介、售楼电话、小区户型图片、营销中心位置、区位优势、交通、周边商业配套、户型图等楼盘详情以上全文就是【拾悦城二期楠园】楼盘详情,这篇文章的详细分析和点评,感谢您的阅读,希望为您的购房置业选择上提供帮助,开盘预售动态、价格走势资讯、项目最新消息,待定更新发布,敬请持续关注订阅。
如需了解更多本项目信息,请拨打售楼处电话,现场销售会为您详细介绍楼盘。
拾悦城楠园_开发商售楼处_Vip Tel:400 992 0669 (中介勿扰)
(更多项目动态| 欢迎来电咨询 | 请提前预约登记看房 | 1:1销售专业讲解)置业顾问一对一对接,来电尊享受额外优惠