鸿荣源珈誉府售楼处位置:位于宝安区沙井宝安大道与凤塘大道交汇处东侧,北侧靠近万丰海岸城,毗邻立新湖公园,11号地铁线“塘尾站”就在项目旁
最新消息:西部网红大盘珈誉府2区又要加推新品了!7月13号将再推308套,2栋二单元65-85-94-96㎡四个户型,新推产品届时楼层均有可以选择,预计本周末直接销售。
价格诚意满满,与上批差不多,折后均价约5.08万,65㎡折后仅306万起就可买到,首付仅需60万,整个珈誉府中仅有这两条腿的65㎡,还有新品96㎡横厅户型。项目出身即站在巅峰,基本每个周末都是人山人海销售数据也是遥遥领先,这次加推也一定会成为热点,对项目感兴趣的朋友可以直接来电咨询本项目售楼处。营销中心_Vip Tel:400-992-0669 中介勿扰
鸿荣源珈誉府二区-户型图-加推2栋2单元
产品面积跟价格:
01:约96m横厅3房2卫(折后约483~502万)
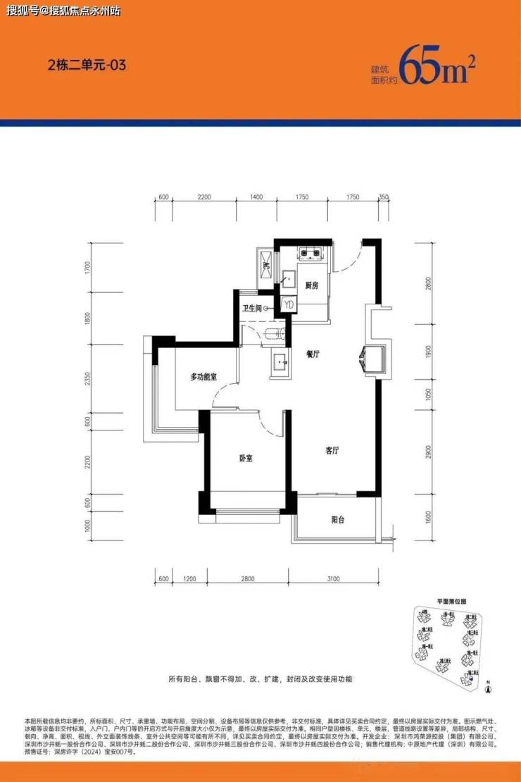
02、03:约65m竖厅2房1卫(折后约306~322万)
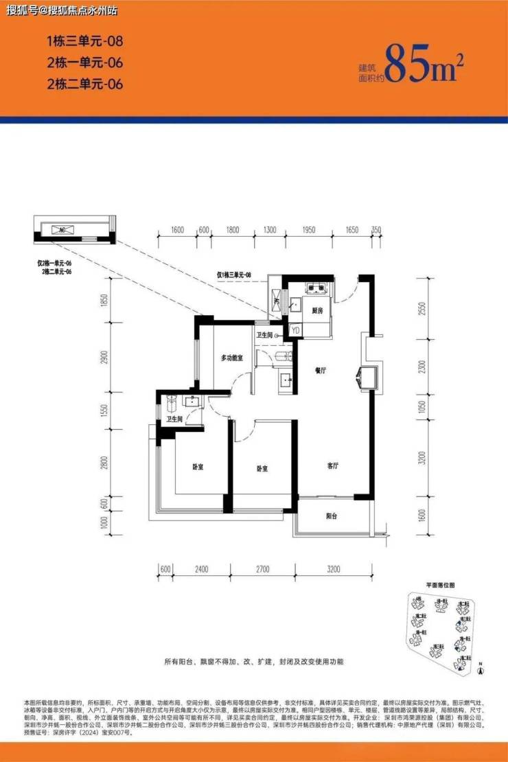
05、06:约85㎡竖厅3房2卫(折后约390~418万)
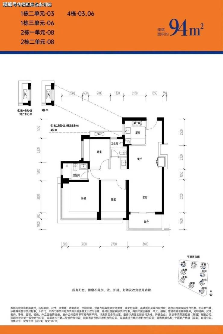
07、08:约94㎡竖厅3房2卫(折后约437~469万)
珈誉府2区名副其实西部热销大城,首批产品自三月开以来基本售罄,仅剩少量尾货。
先来看下战绩,5月网签67套,排名宝安第二名,6月网签124套,摘得桂冠,以优越的综合素质一骑绝尘。
珈誉府2区位于综合体的中间位置,相比1区更贴近11号塘尾地铁站和湾区壹方商业,下了楼就是深外宝安南校区,产品本次也做了全新升级,户型更实在了,使用率依旧达到片区最高标准。
珈誉府自开卖以来就是宝安的大热门新盘,主要亮点是11号线地铁站+超大型商业+深外宝安学区+超级大盘,这几点基本可以算是沙井的顶配,还有开发商的品牌实力与好口碑,优秀的产品力、以及性价比,所以热度一直很高。鸿荣源·珈誉府2区在上半年度成绩单是深圳最好的置业答案当之无愧的楼市冠军
如需了解更多详情,欢迎咨询鸿荣源·珈誉府开发商售楼处电话/预约热线:400-992-0669(营销部发布),过来我们营销中心看房提前来电预约,而且最终的价格还能享受更多优惠。
项目主打“地铁旁+大型综合体+深外宝安学校+上车门槛低”的卖点,项目还有一大亮点就是名校深外更为确定了!之前一直是只有深外宝安本部由于学位有限很多家长怕后期学位不够!在2023年12月11日,宝安区教育局发布通知,决定优化调整深圳市宝安中学(集团),新组建深圳外国语学校宝安学校(集团)等4个教育集团。
根据官宣文件,其中新建深圳外国语学校宝安学校(集团)(以下简称“深外宝”)南校区正是位于沙井片区04-09及12-01地块。
值的关注的是,目前在售的鸿荣源珈誉府,与这两个地块仅一路之隔。
本身鸿荣源珈誉府目前在售的地块也在已开学的深圳外国语学校(集团)宝安学校的学区范围内,如今是“稳上加稳”
另外,据可靠传闻,南校区年后将开工,预计2025年即可入学。鸿荣源珈誉府同样将在2025年入伙,这或将意味着,未来业主入伙即可享受学校配套。
再加上项目是净地开发,地铁口、约50万㎡城市级购物中心“湾区壹方”等综合配套,以及约85㎡做3+1房的王炸户型设计与高使用率,吸引力满满!

鸿荣源珈誉府户型产品介绍
120㎡的4房2厅2卫:设计的是竖厅格局,动静分区,客厅4米开间,S墙设计预留冰箱卡槽位,4个卧室分别为3.65/2.9/2.8/2.7米的宽度,主卧270°环幕飘窗视野,U型厨房,阳台进深1.55米,正南朝向看花园全景。
105㎡4房2卫:4开间均朝南看园林,主卧室双飘窗,做出了270°无敌视野。
94㎡的3房2厅2卫:设计的是竖厅格局,动静分区,客厅3.4米开间,S墙设计预留冰箱卡槽位,3个卧室分别为3.7/2.7/2.35米的宽度,主卧270°环幕飘窗视野,U型厨房,阳台进深1.6米,西南朝向。
85㎡的3房2厅2卫:设计的是竖厅格局,LDKB一体化,客厅3.2米开间,S墙设计预留冰箱卡槽位,3个卧室分别为3/2.7/2.4米的宽度,主卧270°环幕飘窗视野,U型厨房,公卫三段式分离设计,阳台进深1.6米,西北朝向。
86㎡的3房2厅2卫:设计的是竖厅南北通透格局,客厅3.2米开间,3个卧室分别为3.2/2.75/2.4米的宽度,主卧270°环幕飘窗视野,U型厨房,阳台进深1.3米,主朝西北、东北、东南或西南朝向。
87㎡的3房2厅2卫:设计的是横厅南北通透格局,客餐厅6.2米开间,3个卧室分别为3.3/2.65/2.35米的宽度,主卧270°环幕飘窗视野,U型厨房,阳台进深1.7米,主朝东南朝向。

76㎡的3房2厅1卫:设计的是竖厅格局,LDKB一体化,客厅3.1米开间,S墙设计预留冰箱卡槽位,3个卧室分别为2.9/2.8/2.25米的宽度,U型厨房,阳台进深1.6米,东南朝向。
鸿荣源珈誉府配套信息介绍
交通方面:该项目位于宝安沙井中轴板块,西临大空港与国际会展中心、海洋新城,南向紧邻福永中心。周边航空、海港、铁路、高速公路等立体交通网络发达,地块与地铁轨道11号线站点塘尾站实现无缝接驳,占据良好的交通优势。
片区中远期还有规划线路30号线横穿而过。30号线作为一条西部东西走向线,将活络大空港与国际会展中心与沙井中心区、立新湖、凤凰山等片区的联系。
地铁:无缝连接11号线塘尾站,6站到宝中(22min),7站到前海(25min),9站到后海、11站到车公庙,便捷到达南山、福田。(11号线通勤时间来源于深圳地铁官方网站乘车指引)
4站直达机场东综合枢纽(规划中):大型“空铁联运”的综合交通枢纽,集国际航空、高铁(深茂铁路-在建中)、城际铁路(穗莞深城际-在建中)、地铁(1号线、12号线)、公交等多种交通方式于一体
7站即达前海交通枢纽(在建中):是亚洲第一、世界第四大地下交通枢纽换乘站,预计日客流量达到75万人次

商业方面:鸿荣源斥资约250亿打造又一湾区地标级购物中心“湾区壹方”,约50万㎡城市级购物中心,是前海壹方城的1.5倍大。“湾区壹方”依旧沿用壹方商业大师级运营团队,自持自运营,比前海壹方城规模更大,业态更丰富。这里不再仅仅只是周末娱乐聚餐购物的地方,更是时尚潮居领地。

教育方面:鸿荣源珈誉府目前的学区划分都是深圳外国语宝安学校,是宝安区唯一的四大名校分校。项目还配建有一所63班九年一贯制学校。
深圳外国语学校宝安学校是宝安区引入的首个深圳四大名校,隶属的深圳外国语学校(集团)属于深圳市教育局直属学校、全国首批13所可保送20%毕业生上重点大学的外国语学校之一。
作为沙井片区唯一的名校,录取分上2023年96.9分,2022年88.7分,2021年79分。

项目建面约248万㎡城宇宙,鸿荣源礼献湾区,缔造城市地标,以“定中心、誉未来”为打造理念的城市级的恢弘钜作,集“誉”系高端住宅、约50万㎡城市级购物中心、总部办公、高端酒店于一体。
鸿荣源斥资约250亿打造的又一城市地标级“壹方城”,全国规模最大的“50万㎡全业态重奢奥莱”,由鸿荣源前海壹方城运营团队原班人马运营,相比于前海壹方城规模更大,业态更丰富,体验更高端,影响力更大,商业定中心,万千繁华尽在掌握。
如需了解更多本项目信息,请拨打售楼处电话,现场销售会为您详细介绍楼盘。
鸿荣源珈誉府_开发商售楼处_Vip Tel:400-992-0669 (中介勿扰)
(更多项目动态| 欢迎来电咨询 | 请提前预约登记看房 | 1:1销售专业讲解)置业顾问一对一对接,来电尊享受额外优惠
*特别提示:本宣传资料所涉宣传内容,仅作为项目宣传推广使用,不在任何意义上构成开发商的承诺与要约,具体以政府部门审定的规划设计文件及商品房买卖合同的约定为准。本公司有权对宣传内容进行修改、调整,敬请留意最新宣传资料。